HIS杭州国际学校
△ 摄影:苏圣亮
在当下这股校园建设的新浪潮中,校园建筑在建筑形制和空间范式上表现出了某种类型化特征——它们大多围绕线性的功能逻辑与日照、采光、间距等规范限定所展开,形成单元式、行列式、鱼骨式或院落式等常规布局。建筑师们作为教育资源与土地资源矛盾的解决者与新兴教育理念的践行者,正在不断地拓宽教育的边界和维度。基于来自校方的非传统教育理念的诉求、场地的客观条件限制和建筑师的自我反思,我们尝试在HIS杭州国际学校中提供一种新的解题思路——通过重新理解教育意义,实现以集约型用地和高效能空间为主要特征的、以共享与交流为空间主导的新教学场景构型。
△ ©line+

HIS杭州国际学校是最早进驻杭州的K-15国际学校,也是浙江省第一所只招收外籍及港澳台籍人士子女的学校,由美国国际教育基金会(IFS)负责建设和管理,2018年于钱塘江南麓的白马湖畔建设新校区,包含小学、初中、高中三个学部和独立的ECE幼教。
△ 总平面图 ©line+
△ 杭州国际学校鸟瞰 ©line+
△ ©line+
△ 典型校园布局 ©line+
△ 场地 摄影:陈曦
△ 场地布局推敲 ©line+
△ ©line+
另一方面,国际学校更注重学生的情感体验和开放交流的教育理念,以及素质教育与拓展活动并重的教学制度,均对校园的功能模块和教学场景产生了新的限定。
△ ©line+
在前期与校方交谈和深入了解学生的学习生活后,我们意识到未来教学场景应该是活力交织的,鼓励孩子们自发性的交流互动,如同邻里社区一样融洽。如社会学家伊凡·伊里奇在《Deschooling Society(非学校化社会)》所言:学习存在于学习者与学习资源之间不断被建立起来的动态关系之中,包括与师者、伙伴、物质和环境。
△ ©line+
在面临紧张用地限制和多元混合使用需求的情况下,我们需要同时满足国际化教育理念和本土设计规范的要求。因此,我们尝试跳出传统校园构型,探索未来教育场景的新可能——“Education Hub(教育枢纽)”,以非线性、平台化的方式统筹整合教学空间要素,从而创造更为高效、共享、平等的学习体验;另一方面,综合体的形体策略以最紧凑的方式组织校园动线,满足国际学校全天候全气候的教学空间使用需求的同时,最大程度地释放户外场地。
△ 摄影:苏圣亮
△ 对学校建筑进行原型转译 ©line+
△ 主教学楼施工到投入使用 ©line+
△ 宿舍楼施工到投入使用 ©line+
△ ©line+
与此同时,我们通过强调内部空间的丰富性和流动性,通过营造符合不同年龄段学生行为模式的空间,激发他们对空间的探索欲与体验感,从而打开人与人、人与建筑,以及建筑与环境、教育与环境的关系。不定性的教学空间经由师生的自发使用和多义阐释,从而实现了以空间体验成就开放教育理念的设计初衷。
△ 一层轴测图 ©line+

△ 摄影:苏圣亮
中庭楼梯是Hub枢纽的空间引导和组织者,同时与门厅大阶梯、教学组团内的廊道等串联成连贯的社交平台,为不同文化背景的师生们创造大量发生交集的机会。
△ 主教学楼长边剖轴测 ©line+
△ 摄影:苏圣亮
△ 摄影:苏圣亮
△ 摄影:苏圣亮

△ ©line+
| 作为活动平台的Hub枢纽
与一般学校的课程安排不同,每天下午三点后是围绕Hub枢纽展开的社团活动时间,在与伙伴的相处、合作、竞争中成长,在作为主角的“舞台”上获得自信,亦是Hub枢纽的设计初衷。
△ 摄影:苏圣亮
△ 主教学楼短边剖轴测 ©line+
Hub枢纽的西部依次容纳25m*6泳道的游泳馆(1F)、小学体育馆(2-3F)和中学体育馆(4-5F)。体育馆的空间尺寸分别按照中小学生的身体尺度进行规划,其中,小学部体育馆在剖面上分离出一层室内活动室兼做室内看台。中学部体育馆含两个标准篮球场尺寸,以体育竞技为标准设计。
△ 游泳馆(1F)摄影:苏圣亮
△ 中学体育馆(4-5F)摄影:苏圣亮、朱润资
小学体育馆通过空间合理划分、结构荷载计算,设置了灵活隔断,随着授课内容、活动形式的变化,体育馆可转化成全开放式、半开放式的空间,满足多样的非结构化教学活动场景。
△ ©line+
△ 体育馆立面光线分析 ©line+
△ 体育馆内充足均匀的光线 ©line+
△ 餐厅(1F)©line+
△ 黑匣子剧场(2-3F)摄影:苏圣亮
△ 大剧院(3-5F)摄影:苏圣亮、line+
△ ©line+
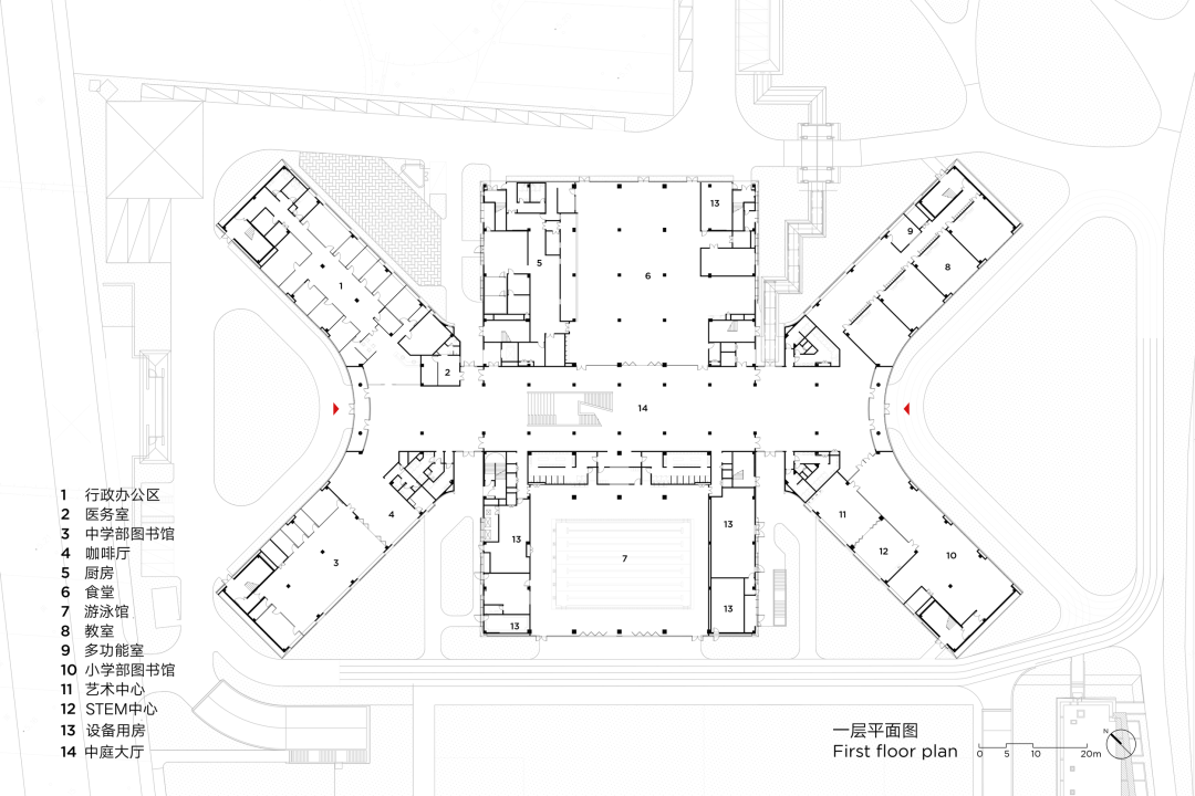
△ 主教学楼一层平面 ©line+
△ ©line+
△ 摄影:朱润资
△ 摄影:朱润资
△ ©line+
△ 非结构化交往空间 摄影:朱润资、line+
△ 主教学楼墙身大样 ©line+
△ 摄影:苏圣亮

△ 摄影:苏圣亮

△ 抽象提取枢纽建筑的空间原型 ©line+
在布局构型中,我们借鉴了现代枢纽类建筑灵活分区、配套共享等优势,以提高集约型用地的空间利用率和灵活度。枢纽建筑高效共享的空间体验和融合互通的空间感受,也为Education Hub(教育枢纽)的空间建构中提供了原型基础,继而我们根据学校建筑的功能逻辑、规模尺度等做适应性变体,以此回应新型教学空间的使用体验、效率和状态。

△ 摄影:苏圣亮
△ 中心化的向心布局(图左) ,去中心化的向心布局(图右) ©line+
△ ©line+
△ 摄影:苏圣亮
△ 摄影:苏圣亮
△ 摄影:苏圣亮
△ 摄影:苏圣亮
△ 主教学楼二层平面 ©line+
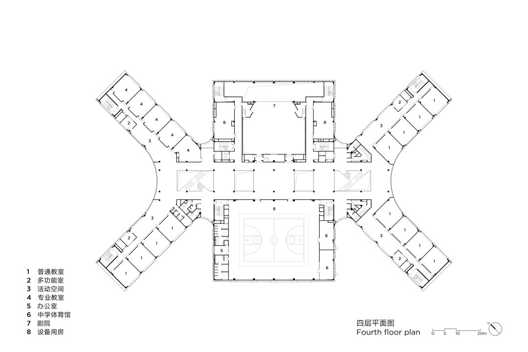
△ 主教学楼四层平面 ©line+
△ 幼儿园一层平面 ©line+
△ 幼儿园二层平面 ©line+
△ 幼儿园三层平面 ©line+
△ 主教学楼剖面 ©line+
△ 主教学楼剖面 ©line+
设计单位:line+建筑事务所、gad
主持建筑师/项目主创:朱培栋
结构机电设计:浙江绿城建筑设计有限公司
室内顾问:R+S (China),青岛时代建筑设计有限公司
景观顾问:上海天夏景观规划设计有限公司
市政顾问:浙江大学建筑设计研究院有限公司市政分院
装配化深化单位:上海研砼建筑设计有限公司
项目位置:浙江,杭州
建筑面积:49083.5㎡(地上)
设计时间:2018.06-2019.08
建造时间:2019.08-2022.08
结构:钢结构+钢筋混凝土框架结构
材料:铝板、水晶灰玻璃
摄影:苏圣亮、朱润资、line+
本资料声明:
1.本文为建筑设计技术分析,仅供欣赏学习。
2.本资料为要约邀请,不视为要约,所有政府、政策信息均来源于官方披露信息,具体以实物、政府主管部门批准文件及买卖双方签订的商品房买卖合同约定为准。如有变化恕不另行通知。
3.因编辑需要,文字和图片无必然联系,仅供读者参考;
青岛·精品项目考察
推荐一个
专业的地产+建筑平台
每天都有新内容
扫描二维码关注

微信公众号“搜建筑”(ID:sjz9999)
合作、宣传、投稿
联系微信:soujianzhu006
阅读原文:“line+建筑事务所”更多精品


