▲ 更多精品,关注“搜建筑”
近期,库博设计参与了龙岗区高品质校园“城长计划” ,其中12所学校方案设计,参赛单位总共提供了596份报名文件,平均1所学校有50家设计机构报名参与。经过一系列激烈的角逐,库博有幸入围了三所学校,其中吉华街道三联九年一贯制学校新建工程(方案设计)和宝龙街道南约九年一贯制学校新建工程(方案设计)入围前2,深圳中学龙岗学校(小学部)改扩建工程(方案设计)入围前5.

吉华街道三联九年一贯制学校
—永不消失的记忆
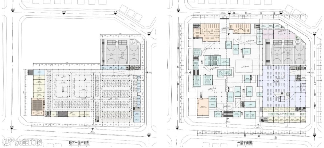
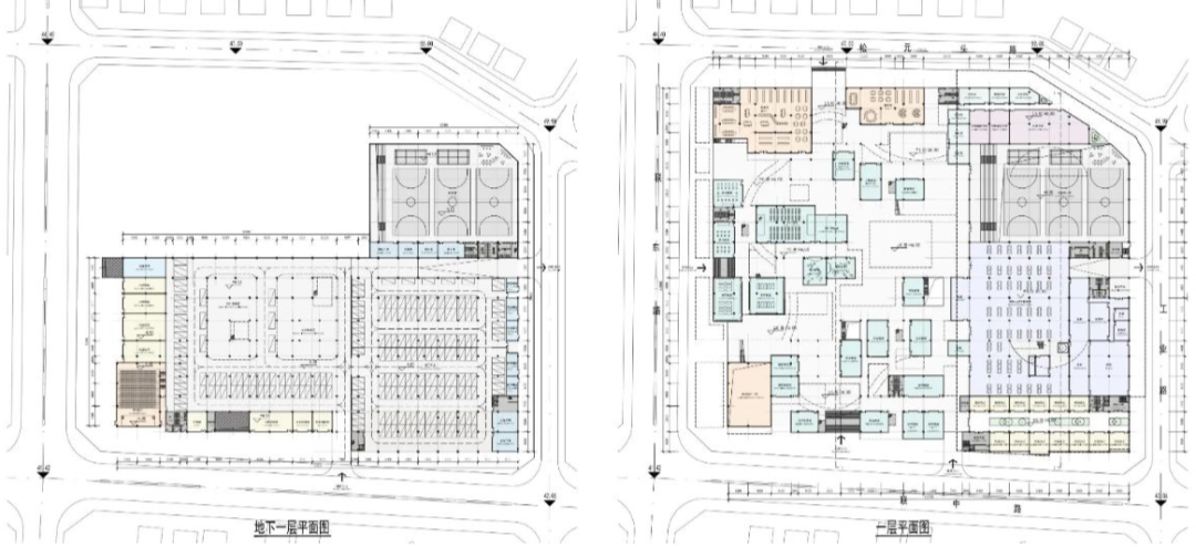
在场地被城中村围绕,我们试图还原场地多样性的公共生活。建立一个共享的社区中心将村子的肌理延续进场地 还原场地记忆,营造一个均质平等、创新灵活的教学聚落。
复原记忆

集落构建——均质、蔓延、平等、渗透的空间范式

班级单元与儿童成长需求相匹配的普通教学单元
基本教学单元从9M*9M扩展至12M*12M 灵活空间设计与儿童成长需求相匹配;
年级单元垂直分区,连接互动的独立年级教学单元
每8 个教学单位组合成一个“双拼”单元,并结合配套与专业教室,形成年级单元,年级之间保持相对独立,互不影响,年级之间通过连廊串联链接。

年级单元垂直分区,连接互动的独立年级教学单元





用地面积:70077㎡
建筑面积:31069.4㎡
规划班数:72个
新加坡高端楼盘
可持续发展建筑与垂直绿化
建筑、景观考察(四天三晚)

本资料声明:
1.本文为建筑设计技术分析,仅供欣赏学习。
2.本资料为要约邀请,不视为要约,所有政府、政策信息均来源于官方披露信息,具体以实物、政府主管部门批准文件及买卖双方签订的商品房买卖合同约定为准。如有变化恕不另行通知。
3.因编辑需要,文字和图片无必然联系,仅供读者参考;
推荐一个
专业的地产+建筑平台
每天都有新内容
扫描二维码关注

微信公众号“搜建筑”(ID:sjz9999)
合作、宣传、投稿
联系微信:soujianzhu006

