深圳中学初中部
背景
Background
Education is the foundation of a century-long plan. Shenzhen is fully promoting the high-quality development of basic education, striving to achieve "good education for young children and excellent education for learning" by "providing education that satisfies the people", and creating a benchmark for people's happiness. For this reason, Shenzhen has carried out new renovation and expansion projects for multiple primary and secondary schools, including the junior high school department of Shenzhen Middle School.As a shining business card of Shenzhen education, Shenzhen Middle School shoulders the responsibility of benchmarking world-class middle schools. The demolition and expansion project of the junior high school department of Shenzhen Middle School aims to expand the scale of education, optimize the teaching environment, and provide teachers and students with a distinctive, open, innovative, and ecologically friendly vibrant campus!

挑战
Challenge

营造
Construct

多首层概念分析图

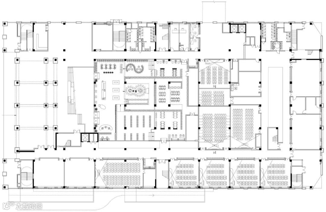
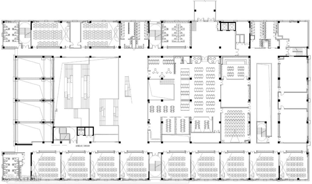
Superposition of Functions - The main teaching functions of the project are arranged on the south side of the site, and the teaching functions and teaching auxiliary functions are vertically superimposed to solve the problem of tight land use for the project. The teaching building and the comprehensive building are relatively independent of the overall plan and are interconnected through overhead floors and platforms. The library, landscape platform, and corridor serve as connecting systems, connecting various functional blocks.

Knowledge Ladder - The 'knowledge ladder' is composed of a library that falls down layer by layer, serving as a shared atrium and a vibrant gathering place for the entire campus. The 'knowledge ladder' not only expands the outdoor activity areas that students can reach during breaks on each floor, enriches the venues for extracurricular activities and informal learning, but also solves the problem of tight activity areas caused by high plot ratio. The "floating boxes" dotted around the "knowledge ladder" further provide a space for communication and rest. While enriching the fun of the atrium, the "floating boxes" also form a clever visual interaction with the "knowledge ladder", and communication quietly occurs between "seeing" and "being seen".

知识阶梯

悬浮盒子

走廊

教室

图书馆

报告厅

传承
Inherit
The architectural style of the new campus of Shenzhen Middle School's junior high school and senior high school is in a continuous line. The facade continues the classic three-section composition, incorporating modern design techniques into the iconic emblem of Shenzhen Middle School, creating a highly distinctive architectural image.


落成
Completion


总平面图

新建教学楼首层平面图

新建教学楼二层平面图

剖面图
项目地点:深圳市 罗湖区
项目类型:教育建筑
建筑面积:约6.3万平方米
业主单位:深圳市建筑工务署教育工程管理中心
建筑设计:香港华艺设计顾问(深圳)有限公司
项目总负责:陆强
设计团队:鲁艺、衷悦、宋丽娟、郑潇、毕悦媛、时华磊、雷音、张宝文、陈东源、黄鹤鸣、于丽霞、孙安、魏子恒、姜正聚、解准、曾锐、张燕龙、崔路明、彭旭敏、庄燕珊、陈世奇、汪洋、陈少林、衣欣、薛建明、张自胜、曹焕、周颖、吴长燕、高龙、杜昕芮、黄超宇、黄植有、赵广镇、李良财、石雅群、梁永超
施工总承包单位:中国建筑第四工程局有限公司
监理单位:深圳市邦迪工程顾问有限公司
勘察单位:深圳市工勘岩土集团有限公司
设计时间:2017年
竣工时间:2022年
新加坡高端楼盘
可持续发展建筑与垂直绿化
建筑、景观考察(四天三晚)
本资料声明:
1.本文为建筑设计技术分析,仅供欣赏学习。
2.本资料为要约邀请,不视为要约,所有政府、政策信息均来源于官方披露信息,具体以实物、政府主管部门批准文件及买卖双方签订的商品房买卖合同约定为准。如有变化恕不另行通知。
3.因编辑需要,文字和图片无必然联系,仅供读者参考;
推荐一个
专业的地产+建筑平台
每天都有新内容
扫描二维码关注

微信公众号“搜建筑”(ID:sjz9999)
合作、宣传、投稿
联系微信:soujianzhu006


