▲ 更多精品,关注“搜建筑”


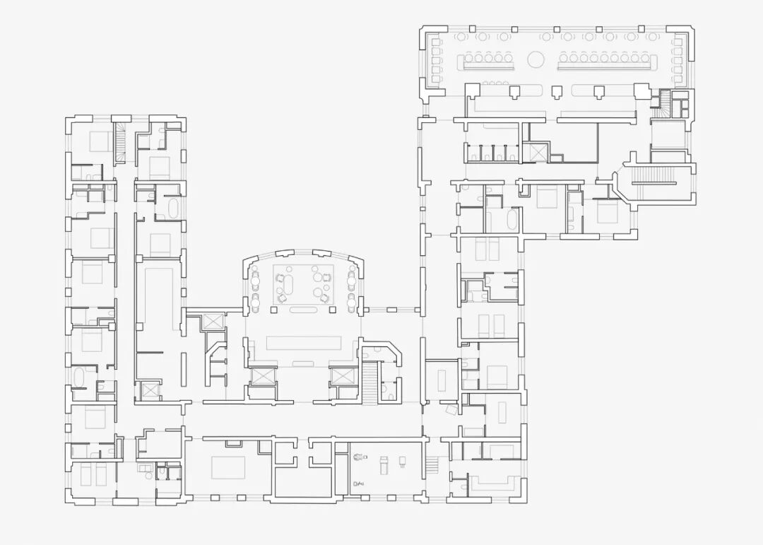
Designed by architect Jan Bernard Springer and built in 1908, the build- ing’s massive brick exterior has a formal facade on the streetside and three wings facing the park. Throughout the design process, the park remained the main muse: it now literally goes all the way to the building.

Each wing has its own relationship to the park – such as the brasserie located in the new wing, or the bird’s eye view offered from the museum- hall-turned-restaurant. In many ways, this project was about turning a closed monumental building into an accessible building in the park.

Highlights of the existing interior are the walls of glazed brick in the corridors and the large space and truss constructions of the former museum hall. These elements have remained visible and still determine much of the overall atmosphere. Office Winhov worked closely with the client Amerborgh, the operator IHMG and interior architects Studio Linse to create fitting, soft, and welcoming interiors – so the building can better fulfill its new role as a hospitable hotel open enough to welcome the general public, while not compromising on its original special qualities.

项目信息
建筑师:Office Winhov
地点:荷兰
面积:7225 m²
年份:2022
摄影:Karin Borghouts
本资料声明:
1.本文为建筑设计技术分析,仅供欣赏学习。
2.本资料为要约邀请,不视为要约,所有政府、政策信息均来源于官方披露信息,具体以实物、政府主管部门批准文件及买卖双方签订的商品房买卖合同约定为准。如有变化恕不另行通知。
3.因编辑需要,文字和图片无必然联系,仅供读者参考;
青岛·精品项目考察
推荐一个
专业的地产+建筑平台
每天都有新内容
扫描二维码关注

微信公众号“搜建筑”(ID:sjz9999)
合作、宣传、投稿
联系微信:soujianzhu006


