▲ 更多精品,关注“搜建筑”
一个「豪宅」更新迭代越来越快的时代。豪宅产品的迭代,表面上是生活品味和方式的变化,但本质还是顶豪人群在发生变化,他们思维越发超前。
豪宅经历了四代变革史,如今新一代豪宅有了跨越式升维。
「新一代豪宅」设计,需要特别注意的一些方面:
• 创新的设计理念,独特新颖的建筑形态、材料的使用等;
• 室内注重休闲娱乐区域、开放式空间设计;
• 户内豪宅泳池设计,一种独特的户型创新;
• 更加注重科技智能化、健康化设计;
• 奢装公区,不仅仅是面子问题;
• 园林景观设计注重多样化的社区活动区;
• 高科技安全系统,增强安全性和隐私保护;
• 跨界融合,建筑与商业、文化等领域结合起来;
......
建筑设计创新
在建筑设计方面的创新:新一代豪宅应当具备创新的设计理念,例如独特的建筑形态、自然材料的使用、艺术品的搭配等,为业主提供全新的视觉和审美体验。
新一代豪宅的建筑设计充分利用自然光线,如采用落地窗、大面积玻璃幕墙等设计元素,最大限度地让阳光进入室内,提高居住体验和舒适度。
比如重庆香港置地启元,外立面竖向飘带、流动曲线、大面积玻璃幕墙的设计,低饱和度的香槟金与蓝灰的主色系,以雕塑般的精致与空间、光线、材料和饰面的元素,极具韵律美感。
妥妥的的新一代豪宅设计思路。
正透视图

重庆启元实景图
横向线条细节
比如,广州越秀琶洲·樾项目的外立面。
琶洲·樾是琶洲城市天际线里的“光幕云帆”。其公建化外立面,以横向线条与通透玻璃构成晶莹通透的立面质感,辨识度极高。
如此前卫的建筑轮廓,将与阿里、腾讯等总部集群,共构琶洲标志性的天际线。

项目外立面效果图
龙湖云河颂致敬宾利EXP100GT经典的优雅流线设计,用形似世界超跑的优雅曲线圆角收边,打造时尚艺术的超流体立面。

效果图
福州国贸天琴湾立面采用国际主义风格,灰+白色的建筑底图与空中绿化系统交相辉映,体现“新一代住宅”特有气质。建筑被绿化包裹,曲面转角阳台的设计,打破了建筑的边缘。错落布置的空中花园,使立面造型颇具新意,彰显出国际化现代生活格调。
室内空间的创新
新一代豪宅的户型创新:
1、采用多功能设计,如可移动隔板、可折叠墙等,可以根据不同的需求和场景进行灵活转换,实现空间的多样化利用。
2、开放式空间设计,不仅可以提高室内的采光和通风效果,还能够营造更加宽敞和自由的居住氛围。
3、设计带状私密区域,来保护隐私,同时还能够将各个功能区域合理地组合起来,营造出更加完美的居住空间。
4、独立的休闲娱乐区域的打造,例如私人电影院、游戏室、酒吧等,使住户在家中也可以尽情地享受生活,感受豪宅的奢华舒适。
5、无边泳池设计,是一种独特的豪宅户型创新,让住户能够在家中感受到海景般的视觉冲击和无边无际的泳池乐趣,享受豪宅生活的无限可能。
比如广州越秀琶洲·樾建面约261平五房,双私梯入户,拥有独立后勤动线,为业主带来私密而尊贵的归家体验。

琶洲·樾建面约261平户型图
主卧直面270°室外景观,双衣帽柜精细化收纳,超大主卫容量,足够放下双台盆和大浴缸。
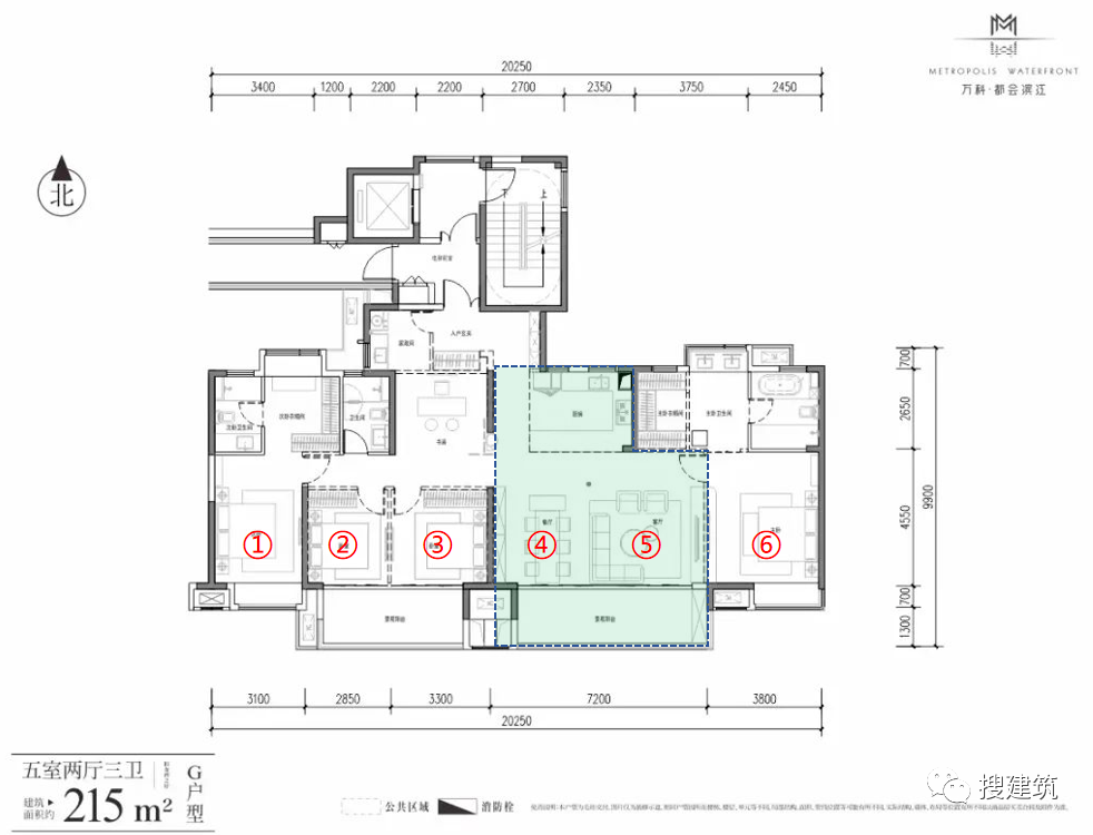
再来看万科都会滨江,建面约215㎡江景大平层有以下主要优势:

万科都会滨江建面约215平户型图
① 专梯专户,星级酒店装标,尊崇归家仪式感,保障居家的私密与安全。入户玄关设计,兼顾功能性与礼序;
② 约7.2米大横厅,6开间朝南,超20米南向超大面宽,室内尺度相当舒适;
③ 双套房,均带南向瞰景飘窗。南向双阳台,约2米进深,横跨客厅和次卧,既保证了房间良好的通透性。
项目效果图 仅供参考
龙湖被誉为“大平层专家”,昆明龙湖·揽境建面约184㎡户型做出大面积边厅设计,拥有空中别墅的视野。平层上很少能见到这样的面宽。还设计了约7.7米瞰景阳台。

昆明龙湖·揽境建面约184㎡户型图
龙湖·揽境的精装也是匠心满满:

龙湖·揽境样板间实拍
厅采用超薄悬浮吊顶,层次感拉满;吊顶隔音达到43分贝远远高于普通隔音;墙面采用布鲁特斯墙纸,木质墙面的柔和与简一大理石砖豪爽纹理构成一种空间视觉上的冲击。

龙湖·揽境样板间实拍
豪宅越来越重视“公区”和“门面”
社区主入口、社区大堂、单元入口、地下车库、地上地下双大堂、电梯厅等作为高品质住宅的“名片”,不断刷新着人们对公共空间的认识。为了符合业主们的尊贵身分与品味,各大房企在单元入口上花了大量的心思。
1、住宅社区入口的功能主要有交通与疏导、保护与阻隔、识别等;
2、社区大堂,跟奢华酒店一样,业主回家穿过大堂再进社区,仪式感十足;
3、单元入口要营造丰富的空间感,具有安全性、标志性、功能性、美观性、归家感、仪式感等;
4、地下车库是车行归家动线设计的要点,地下大堂和地上大堂也彰显了业主的尊贵性;
比如新希望·成都天府D10,约长50M广阔的艺术入口,铺满范思哲黑石材的墙面,定制的花瓣巧思岗亭,标志性的星空天幕,大门的左侧还配置了一块约250寸的超幕显示屏,一如奢侈品旗舰店的展示橱窗。

新希望·成都天府D10实景图 景观摄影:ZOOM琢墨摄影工作室
招商西安序,主入口立面形态:遥想凤弯,展翅振起。主归家大堂落客区的空间形态如凤弯振起,两翼舒展,同西安凤城相呼应,取意鸿翔弯起,引喻奋发有为。
招商西安序实景图 © HZS滙张思
其未来感十足的单元入口也是设计感满满。
招商西安序项目实景图 © HZS滙张思
成都中海浣云居,酒店式归家仪仗,考究空间礼序,增设了车行落客环岛和迎宾大堂,门楼挑高达9米,全玻璃幕墙打造,现代感十足。同时,宽达70米的风雨飘板,全铝板和石材打造。
社区大堂实景拍摄,非交付标准
武汉D10天元的住宅单元大门延续主大门的风格,以世界奢华酒店大堂为蓝本,单就入户门一项的打磨,就历经3000+次反复的推敲与考量,耗时近100多天,达到一种超脱的艺术高度。
地下归家大堂同样做了挑高设计,星空顶地库,加上铝板、奢石的应用等,以及国际一线装标艺术化电梯厅,通过这一系列的“记忆点”,带来不一样的体验,又是另一种新奇且隐奢的归家仪式感。
地下车库大堂 实景图
电梯厅、入户门 实景图

入户门 实景图
入户门一侧设计有专属定制门牌,门上配以线条简洁的三星入户门锁。宽约1.5米、高约2.4米,顶天立地设计,铝铸材质点缀“编织纹理”,纹理的细密程度拿捏得恰到好处。
社区园林更注重互动、圈层社交
新一代豪宅不仅仅是单独的居住空间,更应该注重社区互动,例如共享设施、社区活动等,增强业主之间的交流和互动。
多样化的活动区:新一代豪宅园林景观设计注重为居住者提供多样化的活动区,例如户外烧烤区、儿童游乐区、运动区等。这些活动区可以满足不同年龄段的居住者的需求,增加居住者的乐趣和舒适度。
新一代豪宅应当跨界融合,例如将豪宅设计与商业、文化等领域结合起来,为业主提供更加多元化的生活体验。例如,豪宅内部可以配备健身房、影音室、私人美术馆等,使豪宅成为生活和艺术的交汇点。
比如越秀·瑞麓府园区为全龄段人群设计了无龄界社交场所。通过研究人们在社区中的社交行为与场所活跃度,以组团形式置入功能各异的剧场。

示意图

示意图
全龄亲子系统、全龄运动系统及三大公园级专业跑道等覆盖从儿童至老人的细分年龄段,有战略规划性地以半径230M中心区、半径120M组团区与半径50M宅前区三重布局,搭建家门口的亲子运动剧场。
中山华侨城天鹅堡选用华侨城住宅产品系中最顶端的“堡系”,在设计理念上沿袭“在花园中造城,在城里造花园”,筑就自然与美景相容的理想人居家园,畅享一站式生活圈,启幕居者全优生活。

实景图 摄影:日野摄影
比如城市客厅板块,设计利用地形起伏,围绕景观水景建起涵盖林下休闲、户外会客、阳光草坪等多元化功能的城市客厅。

实景图 摄影:日野摄影
社区出礼仪、展示、会客、运动、休闲等多维度的功能分区,提供给居者更社区化、更开放的空间环境,构建更亲和的人际交往、社群关系。

活力公园鸟瞰 摄影:日野摄影
营造高科技智能化、健康化的生活
新一代豪宅应当融入的一些创新设计:
1、智能化设计,例如室内智能化家居系统、可穿戴设备、语音控制等;室外园林景观采用智能化设计,例如自动灌溉系统和智能照明系统等,为业主提供更加便捷的生活体验,提高了居住者的舒适度,还可以大幅度降低维护成本。
2、健康舒适设计,豪宅不仅仅是提供奢华的生活环境,更应当关注业主的健康和舒适感。例如,室内空气净化系统、舒适的温度控制系统等都是重要的因素。
3、可持续性设计,新一代豪宅应当注重可持续性设计,例如太阳能发电系统、雨水收集系统、绿化带等,以减少对环境的影响。
4、高科技安全系统,新一代豪宅采用高科技安全系统,如人脸识别、指纹识别等技术,增强住户的安全性和隐私保护,使住户更加安心舒适。
比如刚荣获“2022年亚洲最佳科技豪宅大奖”的招商西安序,区别于市面上集中式科技系统,以分户式“六衡系统”,利用毛细管网和科学新风在节能同时实现温湿度分户调节,更科学、人性化的实现“衡温、衡湿、衡氧、衡静、衡洁、衡智”。

△招商西安序六衡系统示意
福州建发·玺云以“智能门禁、智能安防、智能家居、智能新风、智能中央空调、健康厨卫、三重净水”七大智慧科技系统,从户外到室内实现全智能化科技、健康双升级。



示意图
结语
于豪宅市场而言,并非是价格高,户型大,就能称之为豪宅,真正新一代的豪宅是业主生活方式的体现。
那么“新一代豪宅”究竟只是噱头、概念,还是真正的颠覆性产品?欢迎大家积极讨论。
新加坡高端楼盘
可持续发展建筑与垂直绿化
建筑、景观考察(四天三晚)
本资料声明:
1.本文为建筑设计技术分析,仅供欣赏学习。
2.本资料为要约邀请,不视为要约,所有政府、政策信息均来源于官方披露信息,具体以实物、政府主管部门批准文件及买卖双方签订的商品房买卖合同约定为准。如有变化恕不另行通知。
3.因编辑需要,文字和图片无必然联系,仅供读者参考;
推荐一个
专业的地产+建筑平台
每天都有新内容
扫描二维码关注

微信公众号“搜建筑”(ID:sjz9999)
合作、宣传、投稿
联系微信:soujianzhu006





