长飞光纤产业大楼
设计联接新未来
长飞光纤产业大楼位于武汉光谷,Gensler的设计团队与业主基于“智慧联接,美好生活”的愿景,秉持“联结、创新、绿色、健康”的设计理念,共同打造了一座以人为本,促进协作与创新、绿色低碳的总部办公大楼,全方位展现了长飞光纤全球光通讯行业的领军地位以及“中国制造、联结全球”的国际化战略。
设计,自内而外
建筑的设计灵感来自于业主的核心产品——光纤,五束巨型“光纤”在建筑中心点汇聚,打造醒目视觉地标的同时,形成了极具凝聚力的中庭空间,促进员工的交流与协作,从而激发创新。建筑的“五翼”以中庭为核心,以开放包容的姿态向四面八方自然延展,表达了长飞光纤致力于用光纤联接世界每一个角落这一初心和使命。
建筑体量生成分析图
由建筑两翼造型自然形成的入口广场,以欢迎的姿态引入人行及车行动线。建筑主入口采用了18米长的巨型悬挑结构,无柱结构营造极具冲击力的视觉感受,与建筑中庭形成强烈的视觉联系。
作为整座建筑的空间及视觉中心,设计团队打造了一个7层通高的中庭空间,将位于五翼的办公空间紧密联结在一起,并围绕中庭空间布局灵活会议空间,供创意讨论、交流协作的“第三空间”。
中庭透视效果
围绕中庭布局的“社交楼梯”仿若一座视觉雕塑艺术品,连接各个楼层,旨在鼓励员工步行前往其他空间,使不同部门之间的互动和“不期而遇”成为可能。楼梯的动线设计还造就了若干与主中庭空间相连的“口袋中庭”,使室内空间更加灵动。根据Gensler办公空间调研报告,员工间的协作会显著的提升工作效率,建筑中庭周围的开放式动线为跨部门协作提供了平台。

位于建筑五翼的办公空间,更多为员工提供深度思考及专注办公的空间。灵活的空间布局也可以更好地满足未来办公的增长需求,打造一个混合空间来满足员工社交、学习、协作、专注等各类工作模式。高效的平面布局,确保各个办公区域的员工都可以以最短的距离抵达中庭。
中庭协作空间
绿色、智慧的立面设计

为助力长飞光纤的双碳目标及绿色发展战略,Gensler在项目的建筑设计中应用了领先的可持续设计策略,大幅提升了建筑在建造及运营中的可持续性能。
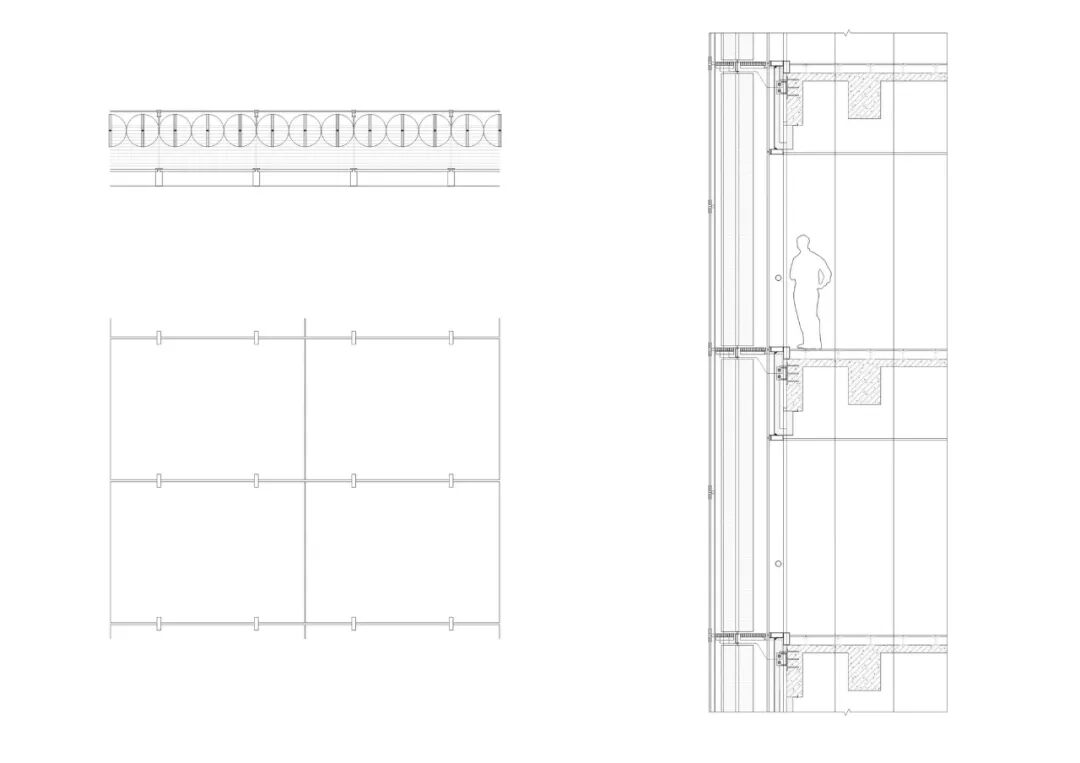
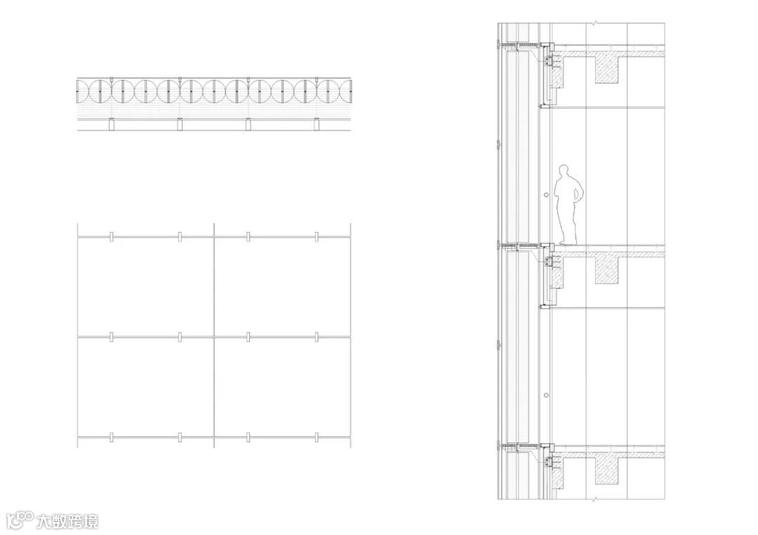
设计团队从中国传统窗棂中汲取灵感,结合高科技幕墙技术,打造了智能的三层立面系统。建筑立面可以根据周边环境和光线条件的变化,通过传感器和内置电机来控制中间层遮阳百叶进行旋转,进而调节透过外立面进入建筑内部的光线和热量。智能立面系统使建筑能够优化自加热和自冷却性能,可以更好地应对高温、暴晒、强降雨等各种极端天气,具有出色的节能效果,为员工营造舒适的室内环境,并营造出多变的建筑外观效果。
幕墙细节

示意图
健康设计
建筑的健康设计可以定义为“对使用者的健康和需求产生积极影响的环境”,根据Gensler多年的办公设计趋势研究,员工的身心健康将成为未来办公设计的重要关注点。设计团队专注于健康设计的三个方面:采光和视野,户外空间的可达性,社交空间的打造,通过多种设计策略,为长飞的员工营造提升效率,激发创意,并且有助于平衡身心健康的办公空间环境。
通过建筑的造型自然形成了五个主题室外庭院:到达广场、运动广场、下沉式花园、露天舞台,以及开放绿地。健身中心与运动广场相连,员工食堂直通室外下沉式花园,赋予员工配套设施丰富的自然光线和景观。丰富的室外亲自然空间被垂直布局在建筑的各个高度。建筑的五楼和七楼分别设有屋顶露台,从内部中庭可以轻松抵达,为员工提供了社交、非正式讨论以及灵活办公的室外空间。
“智能立面”为位于大楼每翼的办公区域引入了自然光线,以及优越的可见度,同时借助先进技术来优化室内空气质量和温度。建筑中庭顶部设有电动可开启窗,在室外温度和空气质量适宜的情况下,对建筑内部进行自然通风,将优质的室外空气引入室内,增加室内的健康指标及舒适度,同时还能够实现长期的运营成本节约。
设计,“预见”未来
长飞光纤产业大楼基于国际领先的办公设计理念,通过设计的力量,量身打造了一个契合企业文化,且面向未来的总部办公大楼。为员工搭建了一个学习、交流与创新的平台,赋予其归属感,使员工的目标与企业的愿景同频共振,从而助力企业蓬勃发展。
项目图纸

总平面图

1F平面图

2F平面图

5F平面图

剖面图

示意图
新加坡高端楼盘
可持续发展建筑与垂直绿化
建筑、景观考察(四天三晚)
本资料声明:
1.本文为建筑设计技术分析,仅供欣赏学习。
2.本资料为要约邀请,不视为要约,所有政府、政策信息均来源于官方披露信息,具体以实物、政府主管部门批准文件及买卖双方签订的商品房买卖合同约定为准。如有变化恕不另行通知。
3.因编辑需要,文字和图片无必然联系,仅供读者参考;
推荐一个
专业的地产+建筑平台
每天都有新内容
扫描二维码关注

微信公众号“搜建筑”(ID:sjz9999)
合作、宣传、投稿
联系微信:soujianzhu006
阅读原文:“Gensler”更多精品


