▲ 更多精品,关注“搜建筑”

140 Wireless is a new office building on Wireless Road next to Lumpini Park in the Bangkok CBD area. The building floor plate provides as maximum rental space as the site can be. With the prime location in Bangkok, not only just in the middle of the city but also sitting next to the big green space area. It is beneficial to be a great atmosphere in office space.

Due to the tropical climate in Thailand, the architecture always has to deal with the sun and rain almost all year round. The design is highly concerned with heat gain in the building. Instead of using high-performance glass to wrap up the building, the wide aluminum fin is chosen to be the choice for this project.


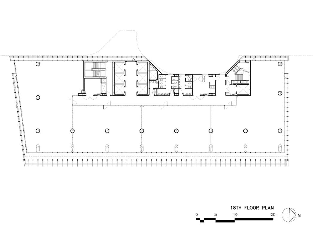
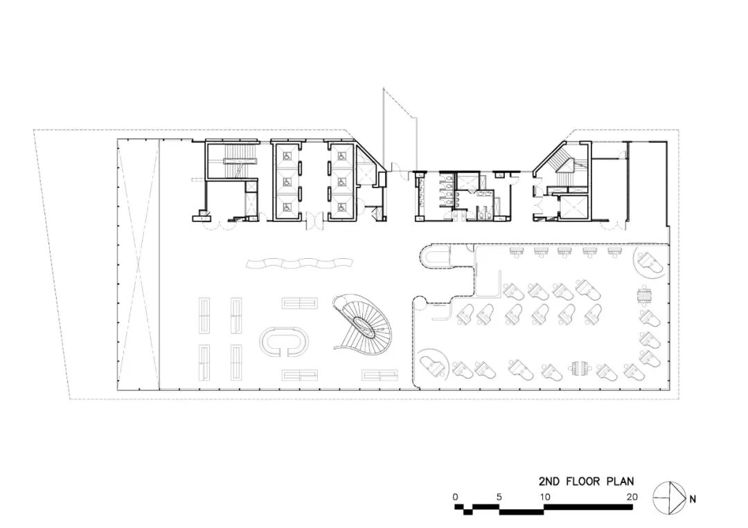
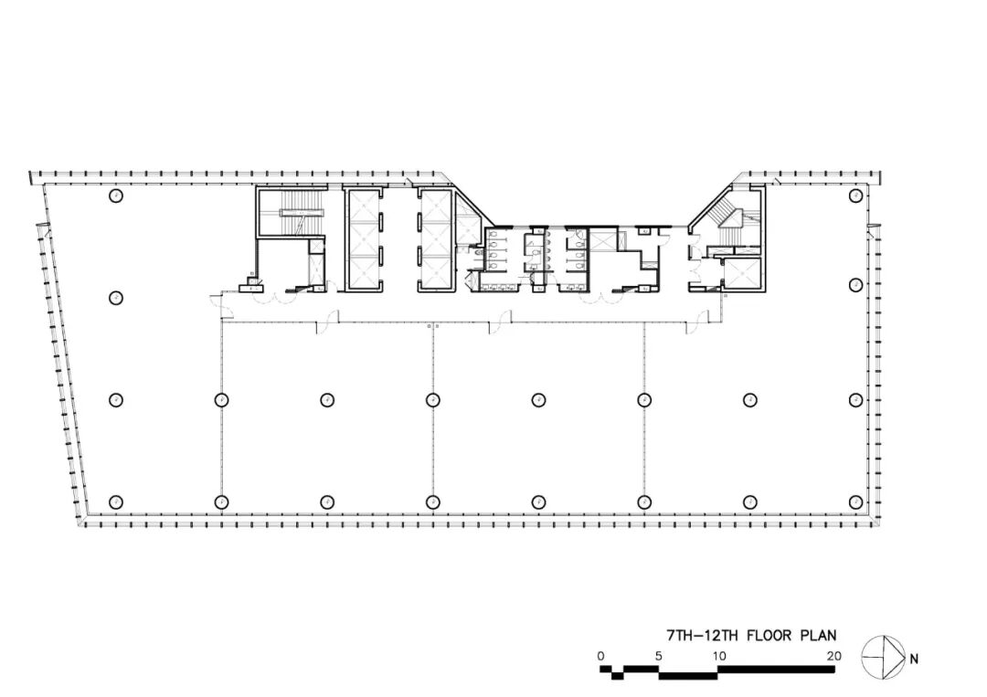
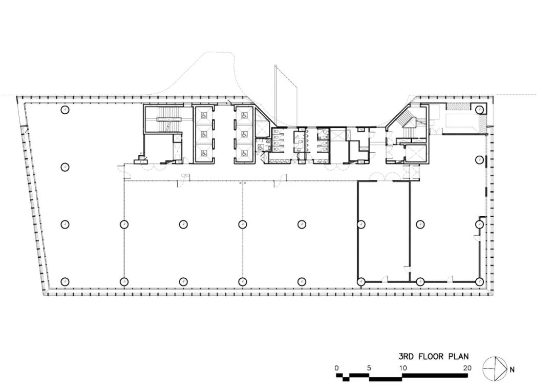
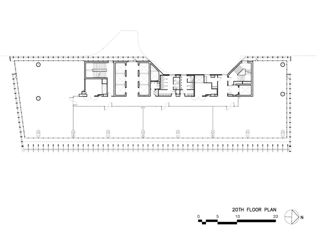
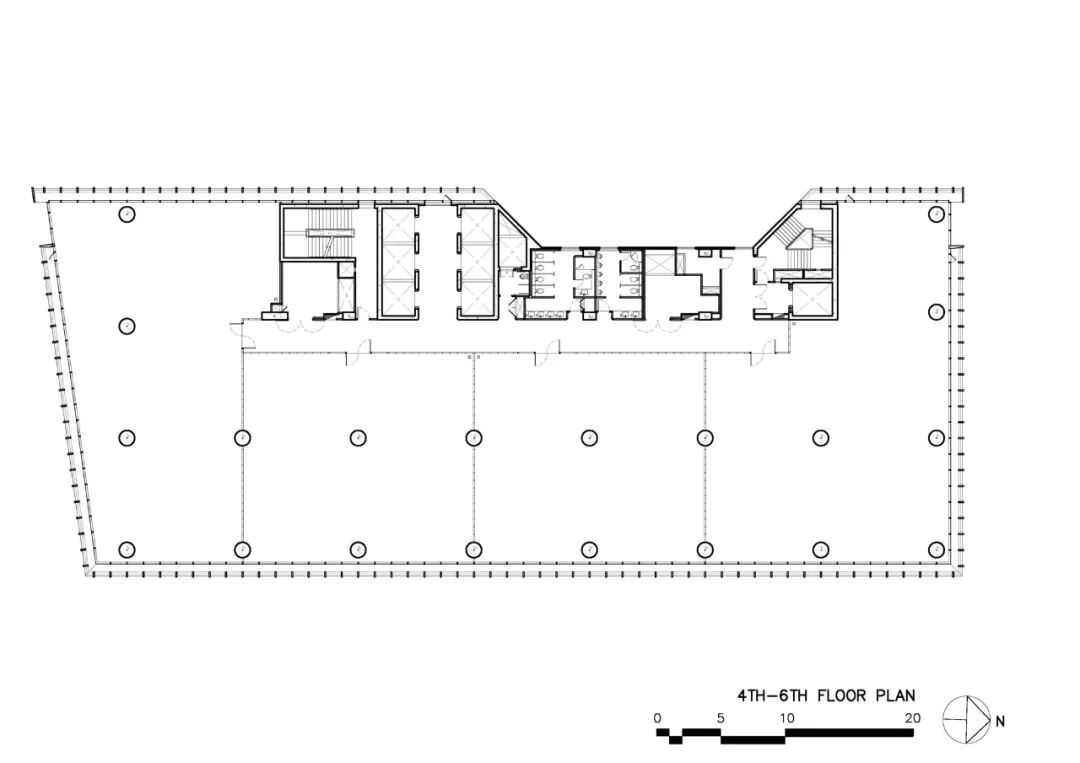
The planning system is set the lift core align on the back of the building together with the staircase and WC area separated by the main corridor to provide all rental space facing with the view as much as it can and give flexible rental space for various sizing requirements with large windows provide an excellent view of Lumpini park and Bangkok’s city skyline. This building also provides many arts and cultural space such as The Met store, the piano museum, book shop, and provide space for local artist and exhibitions.

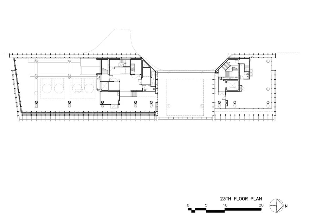
The slope building shape on the top is set following the Bangkok regulation. But the triangle shape on the top also provides the complete iconic shape as a landmark when looking from the street or even from the park. This project also has a penthouse unit with a swimming pool on the top part. From the unit, the endless horizontal perspective view of Bangkok is spontaneous.

项目图纸
剖面图
建筑师:Plan Architect
地点:泰国
面积:39900 m²
年份:2022
摄影:Panoramic Studio
本资料声明:
1.本文为建筑设计技术分析,仅供欣赏学习。
2.本资料为要约邀请,不视为要约,所有政府、政策信息均来源于官方披露信息,具体以实物、政府主管部门批准文件及买卖双方签订的商品房买卖合同约定为准。如有变化恕不另行通知。
3.因编辑需要,文字和图片无必然联系,仅供读者参考;
厦门·精品项目考察
推荐一个
专业的地产+建筑平台
每天都有新内容
扫描二维码关注

微信公众号“搜建筑”(ID:sjz9999)
合作、宣传、投稿
联系微信:soujianzhu006


