项目位于苏州虎丘新区。基于现阶段地界周边基础配套商业较为薄弱,设计以社区配套功能,将生活配套核通过植入体验式精品商业模块,来补足区域配套劣势,聚集人气,打造区域标杆示范区。
设计通过场地对城市的大幅退让,回馈给城市超尺度的广场空间。建筑形态采用了纯粹直接干净的一道弧线,自然分割出富有人气的城市级别前场及面向小区的休闲静谧后场。
✦
#01 初心
CITY TREE
如鲸向海、如鲲遨于天际
鲲栖于此,
如你我心中对生活的理想幻化在这片土地。
“从童年的夏天出发,智慧雀跃了少年的时光,惊艳了整个夏天。美好的青春物语,伴着夏夜的星空,散落在有萤火虫出没的深深庭院。
鲲落池中,建筑以环抱的姿态拥抱城市。怀中尽是有趣的活动场地,孩子们在其中嬉闹,家长在一杯咖啡、一本书的陪伴中,静静的看着孩子们长大。”
这是甲方对项目的美好期待和精准描绘,而作为设计者,我们秉承着对土地的尊重,对城市的回应,对苏州人文的关注开始设计。有幸的是我们的想法与甲方的诉求不谋而合,我们希望在这片土地营造出真正的诗意空间,真正的公园里的家。
△ 图源:中建智地
#02 探索
CITY TREE
浒墅关位于苏州的新区,现阶段的基础设施以及周边的社区商业还未完全成熟。那我们的社区,可以为当地做点什么?为我们的社区居民做点什么?
“早上赶着上班能买到面包和咖啡最好啦”
“有个小超市就更方便了”
“能有个书店多好,哈哈哈,不过这个要求可能有点高”
………
这些周边居民的声音汇聚、这些诉求也被植入到了设计中。最开始,我们以“配套核=配套盒”的想法生成了第一版设计,盒子的错位叠加植入服务配套功能,以及大型LED广告屏幕,要做浒墅关的“新天地”。
△过程方案:CORE-life聚力盒子
为了营造一个苏州的现代园林,我们尽可能的将住宅进行了合理的退让,在寸土寸金的高层社区中制造了一个00*00的园林空间。于是,树之公园诞生了,后场以千树为主题打造了游乐园式的现代园林。
但是,这是我们心中愿望最好的呈现么?立方体形成的配套核高端有余,但是亲民不足,游乐园式的千树公园会不会对于整个社区过于闹腾了……心中的诗意空间表达是不是还不够?
△过程方案:浒墅关“露台”
反思之后,我们调整了策略,面对浒墅关,我们更想去以一个拥抱的姿态给我们的社区:一个功能齐全的场域、一个充满生活气息的场所。于是在那个十一黄金周,我们携手甲方在浒墅关画下一道弧线……
△方案过程稿
接下来的日子里,我们调整曲线,调整曲线,调整曲线,画下不同的圆圈,不同的圆圈,不同的圆圈……
分散式的占地太大,广场变小了,连接体太多了,但实际功能性的活动场域太小,不好不好。
集中式的盒子变异体,倒圆角是不是也能起到同样的亲民感。好像还是过于周正,方形的广场缺乏了些许灵动……正对道路的轴线对称是不是有点刻板,不如从街角引入人流更加的顺畅……
#03 碰撞
CITY TREE
无数手稿的飞过,静下来,设计师在思考:不如回归初心,拥抱浒墅关,那我们就给浒墅关一个最直接最炙热的拥抱。
△ 图源:中建智地
一条曲线划分出前后场区域,前场动,后场静。前场就是元气活力满满的游乐场,后场就是我们想要的静谧的充满度假感的现代园林。
后场区域的面积,我们在之前的基础上进行了进一步扩大,不仅仅扩大了后场区域的平面面积,我们还以下沉庭院的形式双层立体地扩大了其空间。
甲方甚至牺牲货值来换取这城市中的园林,回馈给城市及居民。永远记得甲方的一句话“我们想要的场景是:萤火虫在飞,猫儿在追。”这一画面一直停留在我脑中,光是想想就很美好了。

一个弧线的主形态生成,功能逐步填入。为了保证便民功能都更加方便的到达,一层我们尽量将功能铺满,业态融入了星巴克,烘焙坊,全家超市,以及钟书阁书店(真的是社区顶配了,良心甲方,值得点赞)。
△ 图源:中建智地
二层剩余的面积作为物业辅助办公,以及养老服务站,这样南侧形成了极大的露台,既可以给商业提供外摆空间,还可以通过露台俯瞰整个前场。养老区域我们在北侧设计了挑檐露台,可以俯瞰整个静谧的后场景观。
△ 图源:中建智地
#04 演绎
CITY TREE
从前场到后场,我们用社区大堂作为转场,把前场的欢闹嬉笑热热闹闹的氛围通通留在了南侧。留给社区内部的是安静的水域,草木环绕的下沉庭院。微风拂过的水面的涟漪,树木花草遮阴之下,虫鸣鸟语,安然自在。
大堂一出来,便是一座桥。桥面微微的拱起,一侧是静水庭院,一侧是下沉会所。桥之尽头是归家仪式廊架,回望建筑,北立面面对着静水景观区域。在此处我们打断了飘檐,设计了出挑的盒子,干净的玻璃盒子漂浮在水面上,景观轻轻托着建筑,灯光斑驳在倒影中,好一副岁月静好。
为到达下沉庭院,除了通过电梯,我们还设计了室外景观楼梯,楼梯两侧也满是花池,更像是在草木中凿出台阶,藤蔓牵引,引人拾级而下。
下沉庭院融合了健身会所功能,为配套的功能性更升一级。秉承地面建筑的风格,地下庭院部分建筑更是隐匿在度假景观当中,通透的玻璃幕墙,对外展示着健身房各个区域,泳池区域更是通过斜角面的池壁设计,将室内水面与室外水面从视觉上连成一体。
出挑的跑步盒子也正对水景,与对面的泳池遥相辉映。可以完全打开的会所接待大堂区域更是将景观室内,建筑完美的连通起来。通透,开放,室内外交融。
△ 图源:中建智地
置身下沉庭院当中,回头仰望售楼处,最大的挑檐便是设计在这个角度,由于建筑体量变成了三层高度,所以我们增大了飘檐的出挑,来对应建筑尺度。超大的飘檐更加带来飘逸感。
在这静谧的花园中,穿孔板的点点光芒再增加一片闪烁的星空。这样的园林,让我们与星空更近,让我们健康自然,与花草林木,流水涌泉更近,让我们与生活更近。
△ 图源:中建智地
EPILOGUE
设计源于生活,造就生活,中建浒墅关售楼处让我们进行了一次全新的尝试。设计的初衷不在于花式的表达、复杂的线脚、而是最质朴地创造一个容器:贴合地域、贴合生活、贴合居者需求的容器。我们希望褪去华丽的外壳,还设计和场所一个生活的内核,去帮助居住在此间的人们向更美好的生活逐梦筑梦。
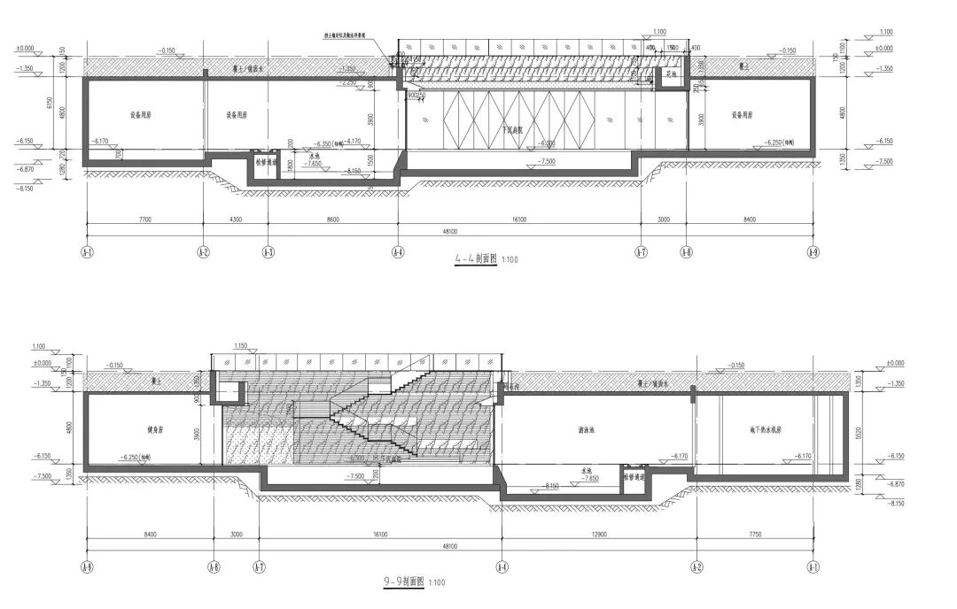
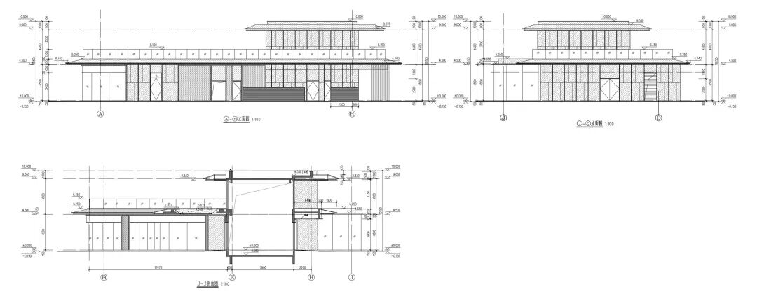
设计图纸
-节点分析-
-立面-
-下沉会所剖面-
项目概况
—
项目地址:江苏省苏州市高新区
建设单位:苏州金阖晟置业有限公司(中建智地)
甲方设计团队:王琼、肖方武、胡良、是佳晨、江婉玲、周晓宸
建筑设计:上海中房建筑设计有限公司
设计团队:
设计总负责人:包海泠
示范区:吕海贝、张潇爽
样板间:张发泳
大区:徐世敏、陈荣光、赵婉月、张发泳、郁超、符自正、刘嘉琪
施工图设计:苏州城发建筑设计院有限公司
景观设计:山水比德
室内设计:WJID维几
建筑摄影:黎伟(除标注外)
新加坡高端楼盘
可持续发展建筑与垂直绿化
建筑、景观考察(四天三晚)

本资料声明:
1.本文为建筑设计技术分析,仅供欣赏学习。
2.本资料为要约邀请,不视为要约,所有政府、政策信息均来源于官方披露信息,具体以实物、政府主管部门批准文件及买卖双方签订的商品房买卖合同约定为准。如有变化恕不另行通知。
3.因编辑需要,文字和图片无必然联系,仅供读者参考;
推荐一个
专业的地产+建筑平台
每天都有新内容
扫描二维码关注

微信公众号“搜建筑”(ID:sjz9999)
合作、宣传、投稿
联系微信:soujianzhu006

