▲ 更多精品,关注“搜建筑”
同济设计新作
▲ 施工中的生活中心 摄影:马元
▲ 项目总体鸟瞰日景 摄影:章鱼见筑
▲ 项目总体鸟瞰黄昏 摄影:章鱼见筑
▲ 建筑外观 摄影:马元
功能复合
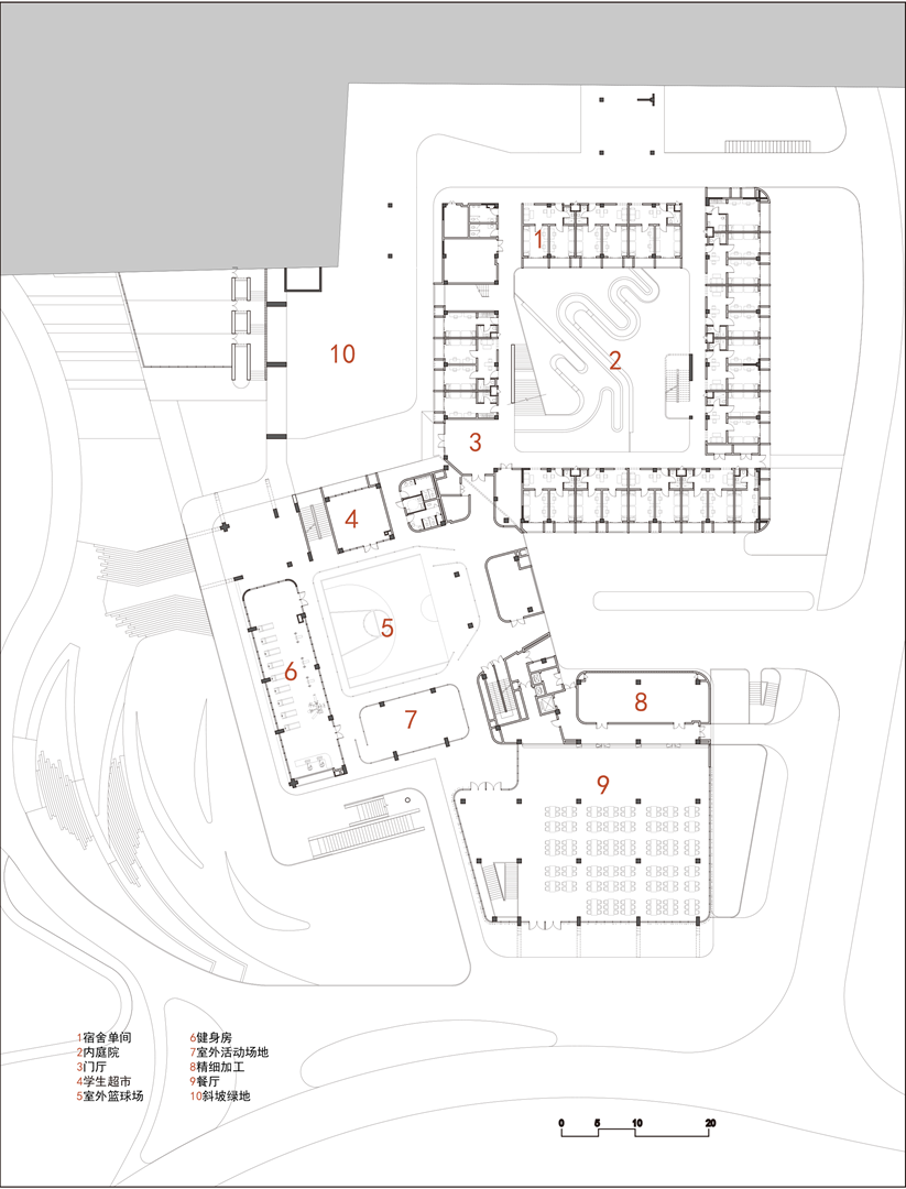
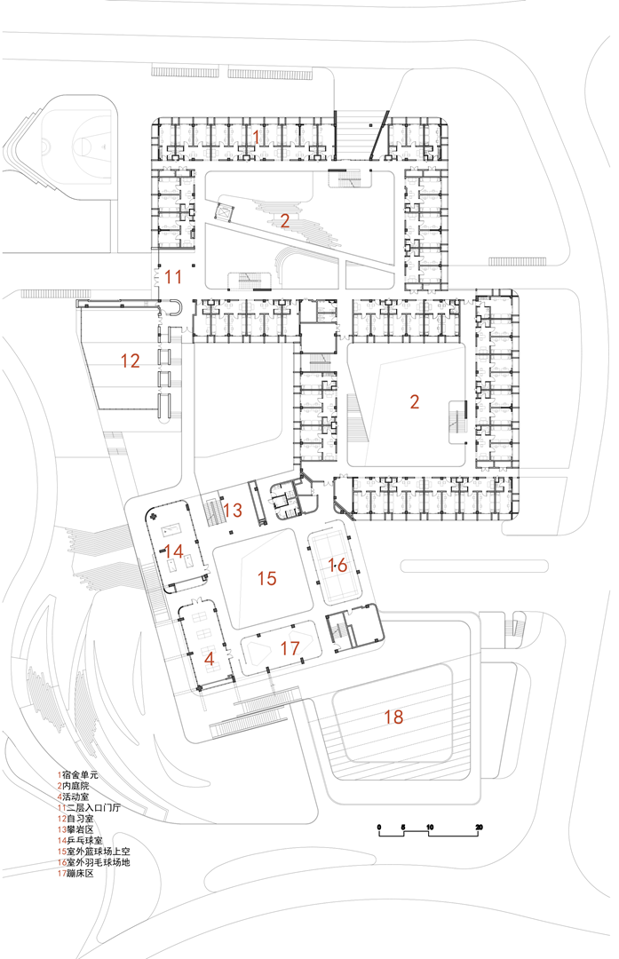
电子科大长三角研究院选址于衢州高铁新城,校园的一期工程建筑面积约为13万㎡。其中,生活中心约2万㎡,是承载全校师生的住宿、社交、运动、餐饮、购物、学习和娱乐等多种功能的校园综合体。
校园是城市的缩影,在高密度城市中,提到复合化往往是指在建筑垂直方向上多种功能的连续叠加。而生活中心面对场地的微地形变化,不仅采用了竖向的功能叠加,还顺应高差变化,进行了水平方向的延展,利用叠台跌落建构了一个立体的生活空间。
▲ 校园及生活中心功能配比与用地现状 ©TJAD
叠台柔院
叠台是组合建筑零散的功能体量以形成聚落。北区2栋宿舍楼、自习室及南区活动中心、学生餐厅等5个不同的建筑体量顺应场地高差变化由北向南,由高到低依次跌落,形成了一个复杂的综合体。
▲体块分析图 ©TJAD
▲ 功能分析图 ©TJAD
▲ 宿舍区立面 摄影:马元
▲ 自习室夜景 摄影:马元
▲ 活动中心水面倒影 摄影:马元
▲ 活动中心与下沉庭院 摄影:马元
▲ 活动中心局部空间夜景 摄影:马元
▲ 学生餐厅 摄影:章鱼见筑
▲ 学生餐厅负一层庭院与挡土墙隧道夜景 摄影:马元
5层“台”以错动的形式咬合,左右腾挪适应用地红线的同时创造出诸多大小不一的开放庭院。这些院落采用了适应原始地形与现有方案体量的柔性设计,创造了各自的身份特征。
宿舍大院是以自然为主题;宿舍中院利用清水楼梯体现雕塑感;南区运动小院以半场篮球为核心;自习室则将体量剖切拉开,通过两片剪力墙挤压出静谧的“缝之院”。
▲ 大院内景 摄影:章鱼见筑
▲ 中院内景 摄影:马元
▲ 中院雕塑感楼梯 摄影:马元
▲ 运动小院内景 摄影:章鱼见筑
▲ 运动小院半场篮球 摄影:章鱼见筑
▲“缝之院” 摄影:马元
▲“缝之院”侧墙处阶梯与连廊 摄影:马元
▲ 从活动中心看向自习室 摄影:章鱼见筑
屋面流动
在生活中心中,“叠台柔院”的设计策略,自然而然地创造了一个在水平和垂直两个方向同时展开的屋面。
不同于常规设计中屋面常常成为堆放设备的消极空间,在这里方案规划了一条红色的环形塑胶跑道,并与粗粝的黄色丙烯酸配合,让屋面从素雅的清水混凝土中凸显出来。跑道由运动中心出发延伸到北区宿舍,伴随着两旁的绿化,形成了最具活力的顶层空间,与下方安静素雅的内院,形成了鲜明的对比。
它就像是一块新的地面,描绘出人们对原生场地的想象,等待着师生们的探索。站在生活中心的屋面上,建筑师目视着远方低矮的群山和动人的夕阳,青年时期的高校住宿体验不断在脑海中涌现,那些曾因为炎热而不得不“席睡”屋顶的夏夜、漫天的星空开始在连续的屋面上流动起来。
▲水平与垂直双向展开的屋面 摄影:章鱼见筑
▲ 红色塑胶跑道与黄色丙烯酸范围 ©TJAD
▲ 从地下庭院走向屋面 摄影:马元
▲ 屋面上的行人 摄影:章鱼见筑
▲ 屋面塑胶跑道夜景 摄影:邱天
▲ 活动中心屋面夜景 摄影:马元
▲ 光影流动的屋面 摄影:尹明
▲ 生活中心整体夜景 摄影:马元
设计图纸
▲区位图 ©TJAD
▲ 总平面图 ©TJAD
▲负一层平面图 ©TJAD
▲ 一层平面图 ©TJAD
▲二层平面图 ©TJAD
▲ 剖面图 ©TJAD
▲墙身大样图 ©TJAD
项目档案
项目名称:电子科大长三角研究院(衢州)·生活中心
项目地点:浙江省衢州市
项目业主:衢州市衢通发展集团有限公司
设计时间:2020.08-2020.12
建设时间:2021.03-2022.03
用地面积:5930平方米
建筑面积:19488平方米
设计单位:同济大学建筑设计研究院(集团)有限公司 建筑设计四院
项目总负责人:江立敏、连津
主创建筑师:江立敏、桂耀国
建筑及室内设计团队:张佳、桂耀国、李泽敏、王艳
结构团队:胡广良、沈葵、张硕、杨付权
给排水团队:李丽萍、任军、张宝娣、唐玉艳、袁方
电气团队:宋海军、张英、顾玉辉、罗颜、蔡猛龙
暖通团队:秦卓欢、钱必华、吴虎彪、禹小明
景观设计:何强、肖鸿、连乐桐、张杰、黄郑涛、周耀辉、詹丽文
泛光照明:杨秀、徐霞青
绿建团队:徐晓燕、薛芳慧、朱翠雯、鞠辰、吴过、唐澄宇、张现、李鹏飞
幕墙设计:兰礼军、何谦
建筑摄影:马元、章鱼见筑、邱天
新加坡高端楼盘
可持续发展建筑与垂直绿化
建筑、景观考察(四天三晚)
本资料声明:
1.本文为建筑设计技术分析,仅供欣赏学习。
2.本资料为要约邀请,不视为要约,所有政府、政策信息均来源于官方披露信息,具体以实物、政府主管部门批准文件及买卖双方签订的商品房买卖合同约定为准。如有变化恕不另行通知。
3.因编辑需要,文字和图片无必然联系,仅供读者参考;

微信公众号“搜建筑”(ID:sjz9999)
合作、宣传、投稿
联系微信:soujianzhu006
阅读原文:“同济大学建筑设计”更多精品


