▲ 更多精品,关注“搜建筑”
不得不承认,高端改善型产品正在成为市场主流,尤其是,大平层产品作为一种“别墅式”的居住体验。
革新人居的同时,也释放了人们对改善性的需求。
何为改善型住宅?顾名思义,就是从基本的“居住需求”转向了“舒适需求”,是一种经济状况上升之后对生活品质的提升方式。
“大房”时代!严格来说,真正的大平层面积至少应该建面160㎡起,建面约160㎡以上大平层户型逐渐受宠。
搜建筑邀请大家一起来欣赏,各大地产的160㎡面积段大平层户型都有什么亮点!
1
整体面宽升级拉大
增加南向采光面
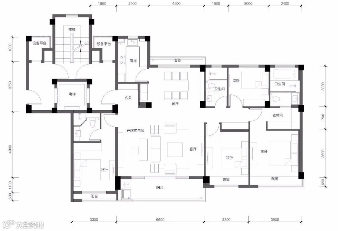
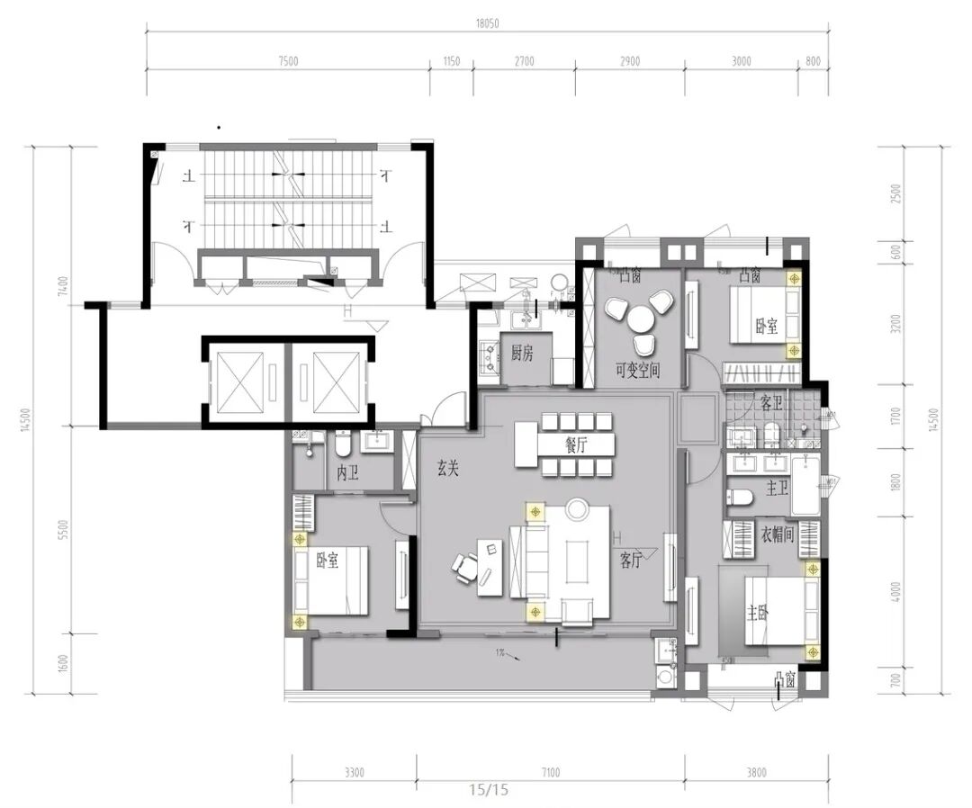
杭州中旅·名门府建筑面积约169㎡户型,五开间朝南,整体达到约18.7米大面宽,主卧+次卧+客厅+餐厅+客房以独栋尺度造高层。

杭州中旅·名门府建筑面积约169㎡户型
西安东原·印未央约168 m²户型,整体超18米南向面宽,做到了三卧室朝南。独立电梯入户,内外双玄关,还有约7m面宽的巨大方厅。

西安东原·印未央约168m²户型

西安东原·印未央实景图

西安东原·印未央实景图
杭州地铁万科·未来天空之城,建筑面积约168㎡洋房户型,四房两厅两卫,约17米大面宽,五开间南格局(含开放式书房),独立玄关+独立电梯厅设计,超大独立玄关厅,实现入户电梯与家的自然过渡,尊重户内的私密性与隐蔽性。

杭州地铁万科·未来天空之城约168㎡洋房户型图
嘉兴绿地香港·云缦世家,建筑面积约165㎡,4房2厅3卫格局,南向面宽达到了约16.7米大面宽,四开间向南一字铺陈,约6.25米洄游巨厅,约9.6米巨幕宽阔阳台,不仅横跨南向三个开间,而且拥有270°的景观视野,户内采光通风性能更佳!


嘉兴绿地香港·云缦世家约165㎡样板房实景

嘉兴绿地香港·云缦世家 效果示意图
2
多维复合空间
注重场景化、社交化
①、巨幕宽厅,墅级尺度
成都佳兆业麓山壹号,约169㎡户型,约8.5米阳光横厅,空间通透。超大面宽横厅,让客餐厅共享南北向阳光,在有限的面积里,尽可能让视线拓展开,居家更舒适。

成都佳兆业麓山壹号约169㎡户型

成都佳兆业麓山壹号实拍图

佳兆业麓山壹号效果图
西安招商央畔,宽约7.4米的大横厅,加上通过错层设计让奇数层洋房拥有的转角露台,完全达到了叠拼才有的居住体验。
西安中铁建·西派宸樾,约168㎡户型,7.1米横厅,无交互边界,让生活更多选择。每一个房间配备独立书写空间,或工作或记录生活,拥一方私密天地。

西安中铁建·西派宸樾约168㎡户型图

西安中铁建·西派宸樾约168㎡ 实景图
中梁弘元壹大院,建面约165㎡百变户型,中心聚合厅,尺度约7.1m*6.6m,面积约46㎡,结合后期阳台及可变房间拓展面积可接近70㎡,超大尺度淡化空间边界感,消除家庭社交隔阂,满足不同家庭及成员间的社交和娱乐需求。


江阴旭辉敔山公元洋房165㎡户型,巨厅设计,四房两厅两卫,实际面积等同于市面上高层190㎡左右的实际面积,居住舒适度可想而知。

旭辉敔山公元洋房165㎡户型
客厅面宽约6.6米,配上面宽约9.2米的三开间阳台,带来270°的空间视野,地方足够大,还可以自由布置。

示意图

成都中国铁建西派金沙 约164㎡户型

重庆融创壹号院169.89㎡户型图
②、270°全景边厅,采光视野更大化
重庆绿城华润·桂语九里建面约160㎡(套内130㎡)户型,不仅看上去很美,更要为客户提供真正高级的生活居住享受。
重庆桂语九里套内约131㎡广角边厅示意图
270°端厅推门见景,制造环幕震撼观景,一面是生活区和社交区的延伸,一面是主人私享的空中花园,这样的应用不仅有科学考虑,更是基于重庆人对于阳光的渴求。
意向图
成都绿城凤栖鹭鸣建面约167㎡户型 ,三室双厅双卫,270°广角客厅,流线型瞰景界面,呈现出宛如IMA观景视野;大尺度的露天花园,增添了生活的更多场景;超20㎡奢阔主卧,衣帽间、卫生间、淋浴和双台盆一应俱全,呈现出星级酒店的套房设计感。三个卧室全部南向排开,保证了居住的舒适性。

成都绿城凤栖鹭鸣建面约167㎡户型
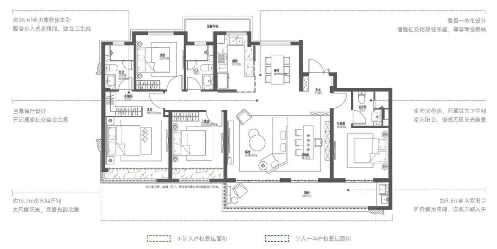
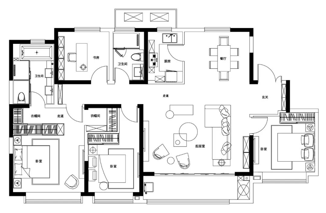
北京国誉·万和城,在户型的整体规划上强调了纯粹性,产品聚焦于高端改善人群。140㎡-180㎡的全四居大平层,结合地理优势,采用“多边户”的原则,打造环幕的观景面,充分满足于不同人生阶段财智人士对居住生活的需求。
北京国誉·万和城 效果图
建面约160㎡的户型为四室两厅两卫,格局方正,充分从居住角度考量了景观动线、舒适度、生活感,满足了高端改善型置业人群对居住空间的需求。
北京国誉·万和城建面约160㎡户型平面 示意图
边厅设计实现了LDK一体化,约50㎡的复合空间,将客厅、岛台、开放式中西厨位于同一动线上,所有的公共空间全部互通,本质也是为了促进家人之前的情感交流。
270°流光环幕的全景设计,拥有约10m+的采光面,充分利用社区及周边的景观资源,创造无边界的视觉效果。

北京国誉·万和城 效果图
③、LDKB一体化,复合多元化场景
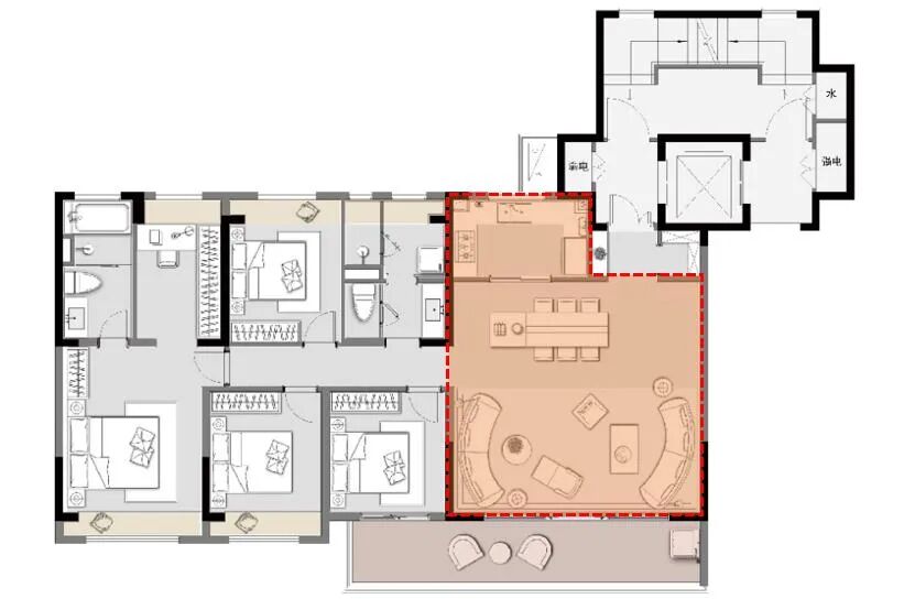
珠海中海 · 寰宇天下建筑面积约169㎡户型,大面宽、短进深,整体竟然做到了面宽约16.7米、4.5开间朝南设计,同面积段能做到这样的大户型其实不多。
入户电梯厅+私密玄关,独具归家仪式感;LDKG客餐厨阳台一体化设计,各空间既独立又能相互交流,营造更融合的家庭氛围感。约5米大尺度餐厨+约6.6米大面宽客厅,家庭聚会、社交宴会通通满足。整个空间不仅视觉冲击力强,6.6米的横厅更是让家庭公共空间更加复合,更具成长性。

建筑面积约169㎡户型 示意图
横厅的设计,使得沙发背后又增加了一个X空间,不同家庭根据不同需求依托不同的软装摆放,可营造不同的场景。
④、放大厨房空间,厨房+岛台设计
在当代家庭亲密关系的课题下,厨房显然需要突破传统需求,大窗设计,充分保证通风采光需求,同时配备U型橱柜,大幅增加操作台面积,可容纳2-3人同时操作,而合理的功能布局,也大大减少操作者来回走动、反复转身的不便。
郑州北龙湖保利·璞岸,建筑面积约160㎡户型,4房2厅2卫,LDK方厅设计,厨房开放式、岛台、吧台、餐厅全功能布置,时尚又实用。

郑州北龙湖保利·璞岸 约160㎡户型示意图

广州中海观云府,约164㎡户型,4室2厅2卫,超大开放式社交餐厨,更强调交流互动。

广州中海观云府约164户型示意图

效果图

石家庄中海汇德里约169㎡户型,开放式餐厨设计。

石家庄中海汇德里约169㎡户型图
3
动线升级
打破传统单一生活路径
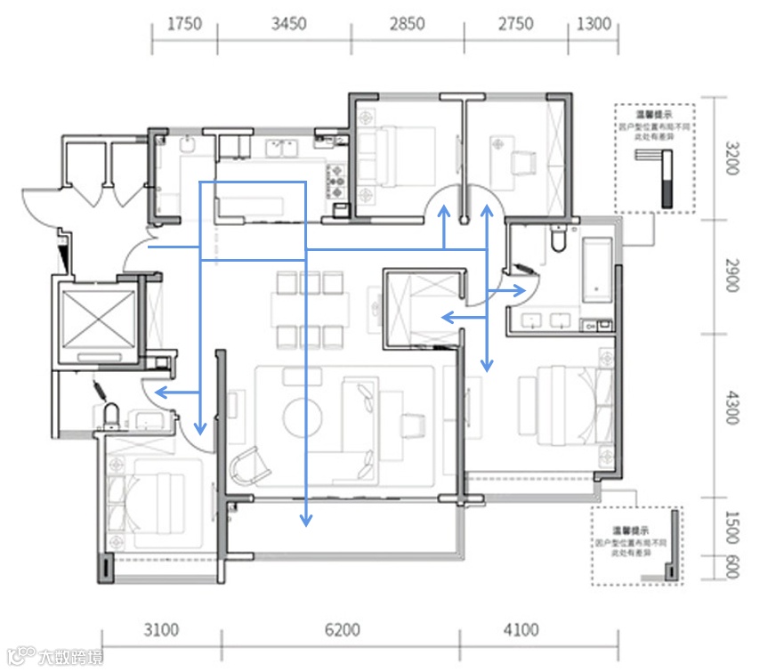
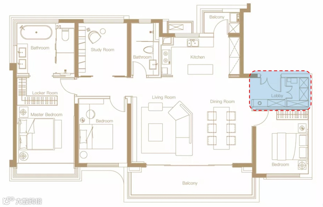
①、双流线设计
打破传统单一生活路径,增设“家政归家动线”,让更加连贯、有层次的理想品质生活画卷在身边绽放。
玄关直通家政区,回家后第一时间就能洗手消毒;采购的食物和生活用品也可以在这里喷上消毒液,直接送入厨房,无需经过客厅,避免传统户型中入户动线不分离带来的污渍、污染等情况。

苏州万科玉玲珑约165㎡户型图

徐州美的天誉约169㎡户型图

济南仁恒奥体公园世纪约168㎡户型图
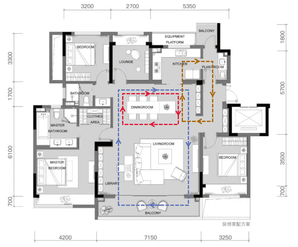
②、多洄游空间
大尺度洄游空间,为家人营造情感亲密交互的生活场景。

苏州天境澜庭约168户型

杭州仁恒前湾国际社区 洋房165E 边套
4
功能空间更加精细化设计
①、玄关储藏功能更强大


天津龙湖天曜,约168㎡3室2厅2卫户型,进门处设置了独立储藏间式玄关,给收纳和清洁提供了充足的空间。客厅面宽约6.3米的大方厅,南向总面宽高达约16.3米;中西交互双厨设计,餐厨空间一体,让家人交互有更多的场景;主卧面积达到32㎡,还有一个超大双排衣帽间 ……

天津龙湖天曜约168㎡户型示意图
②、卫生间分离更彻底
杭州棠玥湾洋房约164㎡户型的公卫:北面是可放洗衣机、烘干机的家政区和淋浴区,南面是台盆和马桶。南北区之间增加了一道移门,这样上厕所和洗澡就不会互相干扰,提高了公卫的使用率。

杭州棠玥湾约164㎡洋房户型图
江阴旭辉敔山公元洋房约165㎡户型更是做了四分离系统,将浴室、厕所、洗漱和洗衣区域进行分隔,对每个功能区都能合理分配,提高生活效率,甚至还可以腾出空间进行收纳,如此一来洗澡时的换洗衣物都有了存放之地。

江阴旭辉敔山公元洋房约165㎡户型
4
主卧强调生活享受
丰富居住空间的体验感
①、双衣帽间
正荣紫阙小高层约168㎡的四居户型,主卧套房精心打造双衣帽间,让男女主人都有了充足的存放空间,互不干扰。同时在双衣帽间内打造齐全的收纳系统,合理利用每一寸空间。
主卫也是更加奢侈,全部采用双台盆+独立淋浴房+独立马桶间+日光浴缸,舒适度堪比星级酒店,夫妻二人即使同时使用也都毫无压力。
正荣紫阙小高层约168㎡户型
户型整体南向面宽约16.65米,进深约9.35米,面宽进深比约1.78:1。
整个户型做成了四室两厅两卫,三个卧室及客厅均朝南。且客厅面宽达到约6米,相当于1.5个开间。也就是说,整个户型相有4.5个开间全部朝南。
②、双台盆
双台盆设计简直不要太实用,洗漱再也不用抢位置。

苏州弘阳天境澜庭约168㎡户型

成都德信弘阳·湖畔云璟约169户型图

上海保利天汇约162户型图
③、更多观景面
西安奥园·璞樾ONE,小高层约165㎡户型,4室2厅2卫,酒店式主卧套房,步入式衣帽间,主卫奢华五件套,多功能收纳空间,270度飘窗观景视野。

西安奥园·璞樾ONE约165㎡户型图

西安奥园·璞樾ONE 约165㎡户型 样板间实景图
门旁预留了充足的储物空间;约6.6m超尺度宽厅,大气宽奢;百变户型,宽厅空间可做书房,亲子空间、工作空间;L型南北通厅,餐厅独立采光;超大尺度景观阳台,尽享宽景视野。

西安奥园·璞樾ONE 样板间实景图
重庆金科·博翠未来,主卫不仅双台盆设计,主卧还双面观景,此外,整个户型动静完全分离,开放式中西厨设计,卧室全南向。

金科·博翠未来163.9㎡户型图

成都中海浣云居约168㎡户型 创意装修展示单位实景图
5
阳台不止大,更具“新意”
①、跑道式阳台
郑州绿城·湖畔雲庐,约168㎡,4房2厅2卫,三开间贯通式大阳台,总长达到约11.9m。户型方正,南北通透,三开间朝南,中西厨设计,主卧套房设计,配独卫,南向次卧配衣帽间,餐客一体的设计让空间更通透,分散四角的卧室也让居住环境更具私密性。

郑州绿城·湖畔雲庐约168㎡户型图
苏州大华春和景明约168㎡户型,大面宽,横厅宽度将近7米,更是拥有L形超大转角大阳台,270度观景。168㎡的户型有270°转角阳台,这种户型非常少见,采光和观景都能带来不一样的享受,于边厅交互感也更强。

苏州大华春和景明 约168户型图
②、植入“花园”概念
郑州瀚海航城,将“垂直森林”的理念再次进行了诠释。将绿意延伸至天际,打造人与自然和谐相处的家。在户型空间上,专属空中花园式阳台,巨幅观景视野,感受清风徐来,绿意满目的自在。

郑州瀚海航城165平米户型

郑州瀚海航城效果图
结语:
户型对生活改善意义重大,市场上很少出现的让人眼前一亮的户型,能够坚持在户型上做研究创新的开发商,我们必须要给出鼓励,相信更具有前瞻性和创新性的产品,在未来会更有竞争力。
新加坡高端楼盘
可持续发展建筑与垂直绿化
建筑、景观考察(四天三晚)
本资料声明:
1.本文为建筑设计技术分析,仅供欣赏学习。
2.本资料为要约邀请,不视为要约,所有政府、政策信息均来源于官方披露信息,具体以实物、政府主管部门批准文件及买卖双方签订的商品房买卖合同约定为准。如有变化恕不另行通知。
3.因编辑需要,文字和图片无必然联系,仅供读者参考;
推荐一个
专业的地产+建筑平台
每天都有新内容
扫描二维码关注

微信公众号“搜建筑”(ID:sjz9999)
合作、宣传、投稿
联系微信:soujianzhu006




