马耶纳空间是一个多功能的设施,包括一个可容纳4500人的大型体育和娱乐场所,一个带有国际比赛攀岩墙的体育馆,以及一个会议厅。除了这三个主要场馆外,还可以找到其他空间,如设计成模块化房间的合作伙伴休息室,在比赛或演出期间接待客人,以及艺术家和运动员的办公室和衣帽间。在建筑外部,该项目由一个670个车位的停车场、一个景观区和一个250米长的国家比赛用自行车环形跑道组成,其中心是一个训练跑道。
Espace Mayenne is a multifunctional facility including a large sports and entertainment venue with a capacity of 4,500, a gymnasium with a climbing wall for international competitions, and a conference hall. In addition to these three main venues can be found other spaces, such as partner lounges designed as modular rooms to receive guests during games or shows, as well as offices and cloakrooms for artists and sportsmen. Outside the building, the project is completed by a 670-space parking lot, a landscaped area, and a 250-meter-long cycling ring for national competitions integrating a training track in its center.
场地。马耶纳空间位于与法国拉瓦尔市接壤的一个前军事基地,沿着D900城市环路。该项目从城市和景观研究开始,旨在根据Ferrié新社区的框架,为该场地的未来发展确定指导方针。这是一个正在发生变化的区域,对城市的动态振兴至关重要。建筑的组织尊重景观结构和场地的记忆,结合生态学、紧凑性、经济手段,以及创造一个大规模的计划,为未来的项目节省地块。
The site. Espace Mayenne is located in a former military site bordering the French city of Laval, along the D900 urban ring road. The project began with an urban and landscape study aiming to define guidelines for the future development of this site in accordance with the framework of the Ferrié new neighborhood. This is an area undergoing change, crucial to the dynamic revitalization of the city. The building’s organization respects the landscape structure and the memory of the site, combining ecology, compactness, the economy of means, and the creation of a mass plan saving parcels for future programs.
该地的景观遗产非常显著。它由一个自然区域--沼泽、林地和湿草地--以及一个带有雕塑般的树木和下沉式小道的古老的bocage网格组成,这些都被完全保留下来。一条东西向的人行自行车道被创造出来,以构造场地,穿过公共停车场和湿地,然后在建筑前拓宽成一个入口广场。
The landscape heritage of the site is remarkable. It is composed of a natural area - marshes, woodlands, and wet meadow - and an old bocage grid with sculptural trees and sunken lanes, which are all entirely preserved. An east-west pedestrian-bicycle path is created to structure the site, crossing the public parking lot and the wetland, before widening itself in front of the building into an entrance piazza.
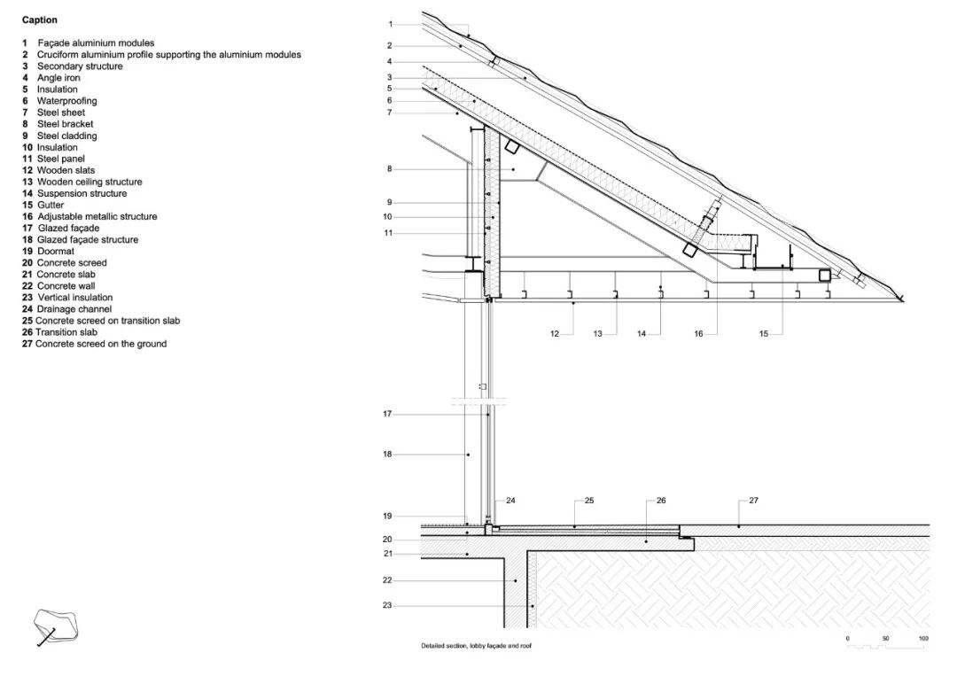
建筑物。为了参与土壤的经济性和形状的优化,该建筑是一个统一的体量,将三个场馆包裹在一个运动中。该建筑的有机性源于其概念。它与其说是一种设计姿态,不如说是一个过程的结果,这个过程将三个大厅衔接在一个单一的景观上。外墙就像一个包裹着房间的皮肤,形成了一个不断变化的形状,取决于观点。
The building. To participate in the economy of soils and shape optimization, the building is a unitary volume that envelops the three venues in one movement. The organic aspect of the building stems from its conception. It is less of a design gesture than the consequence of a process that articulates the three halls on a singular landscape. The façade is like a skin wrapping itself around the rooms, resulting in a shifting shape that constantly changes depending on the viewpoint.
它由三条水平堆叠的带子组成,它们自己变形,以便尽可能紧密地包裹住体积。这三条带子重叠并围绕建筑旋转,产生了流动性、统一性和运动性。它们共同创造了一个灵活的平面,覆盖了整个建筑的高度,有时在某些地方抬高自己,以揭开玻璃幕墙。其复杂的形式被细分为简单、相同的几何元素,允许使用有纹理的铝板进行合理的施工。
It is composed of three horizontally stacked stripes that deform themselves in order to envelop the volumes as tightly as possible. These three ribbons overlap and rotate around the building, generating fluidity, unity, and movement. Together, they create a flexible plane covering the entire height of the building and sometimes elevating itself at certain points in order to uncover glazed façades. Its complex form is subdivided into simple, identical geometric elements allowing a rational construction using textured aluminum plates.
大厅。大厅被设计在三个主要场地之间的间隙空间内。它的组织允许不同的公众流根据不同的占用情况进行流动--三个场地可以同时使用,也可以不使用。大厅的特点是其倒置的海螺形体和由木板制成的吸音天花板。该建筑有两个底层,其组织方式使不同类型的流动--公众、运动员、技术人员、艺术家、工作人员和合作伙伴--被明确分开。
The lobby. The lobby is designed within the interstitial space between the three main venues. Its organization allows a fluid circulation of the different public flows according to various scenarios of occupation - the three venues can be in use at the same time or not. The lobby is characterized by its inverted conch-shaped volume and its acoustic ceiling made of wooden boards. The building has two ground floors and is organized so that the different types of flows - public, sportsmen, technicians, artists, staff, and partners - are clearly separated.
体育和娱乐大礼堂。该建筑的功能组织响应了其多种用途。可转换大礼堂的设计是由其多功能性的需求引起的,因为它必须能用于表演、音乐会以及体育比赛。体育比赛需要一个竞技场系统,观众坐在场地周围,而音乐会和表演需要一个有舞台的正面系统。
房间是不对称的,一侧有一个大阳台,这使得在长长的北侧可以安装一个舞台,因此减少了表演者和公众之间的距离。对角线幕布可以拉开,将场馆配置变成一个从舞台框架开始外扩的梯形。在体育赛事的配置中,场地被一个由看台组成的竞技场紧密包围。
The sports and entertainment grand hall. The functional organization of the building responds to its multiple uses. The design of the convertible grand hall is induced by its need for versatility as it must be functional for shows, concerts as well as sports games. While sports events require an arena system where the spectators are sitting all around the field, concerts and shows require a frontal system with a stage. The room is asymmetrical with a large balcony on one side, which allows the installation of a stage on the long north side, therefore reducing the distance between the performers and the public. Diagonal curtains can be drawn to transform the arena configuration into a trapezium that flares out starting from the stage frame. In the sports events’ configuration, the field is closely surrounded by an arena of bleachers.
这个大厅的技术处理是经过深思熟虑的,因此它可以快速地从一种配置转换到另一种配置:空间根据程序完全被改造。墙壁的设计,在原始的白色混凝土和羊毛毡之间交替进行,是与声学专家合作制定的。
吸音区、混响区或两者的混合区都被定义了:波纹状的原始混凝土在空间中分布声音,混凝土条与羊毛毡条交替用于混合区,羊毛毡与吸音垫拉伸用于看台后面的吸音区。羊毛毡的悬挂板被设计在天花板上,创造了一个空中的几何图案。一个巨大的技术网格隐藏在它们后面,使设备和场景安排有很大的灵活性。
The technical treatment of this hall has been thought out so that it can be quickly converted from one configuration to another: the space is completely transformed according to the program. The design of the walls, alternating between raw white concrete and wool felt, was elaborated in collaboration with acousticians. Areas of sound absorption, reverberation, or a mix of both were defined: corrugated raw concrete to distribute the sound in the space, strips of concrete alternating with strips of wool felt for the mixed areas, wool felt stretched with an acoustic mat for the absorbing zones, behind the bleachers. Suspended panels of wool felt were designed for the ceiling, creating an aerial geometric pattern. A vast technical grid is hidden behind them, allowing great flexibility in equipment and scenic arrangements.
建筑师:Hérault Arnod Architects
本资料声明:
1.本文为建筑设计技术分析,仅供欣赏学习。
2.本资料为要约邀请,不视为要约,所有政府、政策信息均来源于官方披露信息,具体以实物、政府主管部门批准文件及买卖双方签订的商品房买卖合同约定为准。如有变化恕不另行通知。
3.因编辑需要,文字和图片无必然联系,仅供读者参考;

微信公众号“搜建筑”(ID:sjz9999)
合作、宣传、投稿
联系微信:soujianzhu006