▲ 更多精品,关注“搜建筑”

The City of Helsinki is redeveloping its former harbor areas for residential use. One of these areas, the vacated 100-hectare cargo port and dockyard in Jätkäsaari, right next to the city center, will, when completed, contain housing for 21,000 people and workplaces for another 6,000. As building all the required residential parking capacity underground, below sea level would be restrictively expensive, combined with the aim to reduce street-side parking, the city has commissioned a series of architecturally ambitious over-ground parking facilities to cover the residential parking needs in the neighborhood.

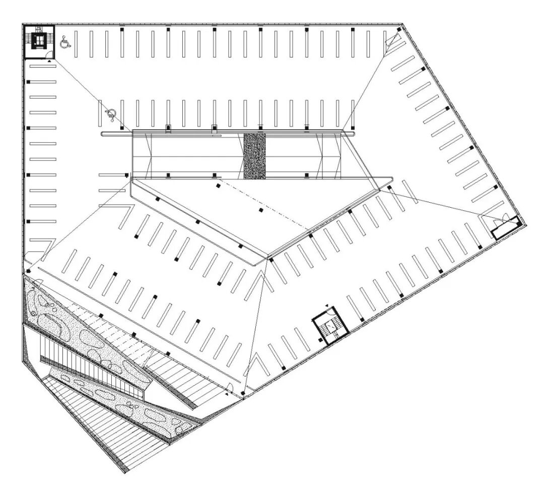
The new five-cornered, five-story-tall Saukonlaituri parking facility consists of six circuits of parking for 600 private cars around a landscaped central courtyard with boulders, moss and ferns. Five of the circuits are covered and the sixth one is located on the roof. The courtyard has a double function: it both forms a light well bringing daylight down to the lower parking circuits and serves as a stormwater retainer and snow deposit.

The southern side of the building falls back from the entrance square, stretching the ground-level public space as a terraced park all the way up to the roof. This solution allows the residents of the surrounding apartment blocks to access their cars by hiking up the terraces to the correct floor instead of taking the elevator there. The terraced area can also be used for picnics and sunbathing.

The load-bearing structure of the parking facility is cast-in-situ concrete, and the facades are prefabricated elements made of large hollow terracotta profiles in galvanized steel frames. The natural hues of the unglazed terracotta bars blend in softly with the neighboring buildings laid in various types of brick.

The sandy color scheme, the Lyme grass and the dune-like character of the terraces refer to the island called Saukko - its outline long since disappeared in land reclamation, and its only presence today is in street names used in the area. The terraces also make the almost 20,000 m2 parking facility seem smaller than its size.

In addition to functioning as a parking garage and offering charging stations for electric vehicles, the facility houses the maintenance depots of one private maintenance company and the Helsinki City Housing Company HEKA. In addition to having completed the Saukonlaituri parking facility in 2020, ALA is currently also working on the slightly smaller Melkinlaituri parking facility in the same area.

项目图纸
立面图
建筑师:ALA Architects
地点:芬兰
面积:19700 m²
年份:2020
本资料声明:
1.本文为建筑设计技术分析,仅供欣赏学习。
2.本资料为要约邀请,不视为要约,所有政府、政策信息均来源于官方披露信息,具体以实物、政府主管部门批准文件及买卖双方签订的商品房买卖合同约定为准。如有变化恕不另行通知。
3.因编辑需要,文字和图片无必然联系,仅供读者参考;

微信公众号“搜建筑”(ID:sjz9999)
合作、宣传、投稿
联系微信:soujianzhu006

