位于多伦多市中心的摄政公园是加拿大最古老和最大的社会住房项目,建于20世纪40年代末。该社区在历史上被视为新移民的过渡社区,但由于社会和物质规划的弊端,造成了社会边缘人口的集中。居住在摄政公园的人口中有41%在18岁以下,超过70%的人口生活在低收入截止率以下。
Located in downtown Toronto, Regent Park is Canada’s oldest and largest social housing project, built in the late 1940’s. The community has historically been viewed as a transitional community for new immigrants, but due to social and physical planning ills, has contributed to the concentration of a socially marginalized population. 41% of the population living in Regent Park are under 18, and over 70% of the population lives below the Low-Income Cut-Off Rate.
历时12年的丽晶公园振兴项目始于2005年,旨在将这个占地69英亩的社区重新发展成为一个充满活力的混合使用的混合收入社区。2012年竣工的丽晶公园水上运动中心,是以新的中央公园发展的东侧为中心的关键公民设施,是振兴项目的核心。
The 12 year Regent Park Revitalization project began in 2005 to redevelop the 69 acre community to be a vibrant mixed-use mixed-income community. The Regent Park Aquatic Centre, completed in 2012, is the key civic amenity centred on the eastern flank of the new central park development as the heart of the revitalization.
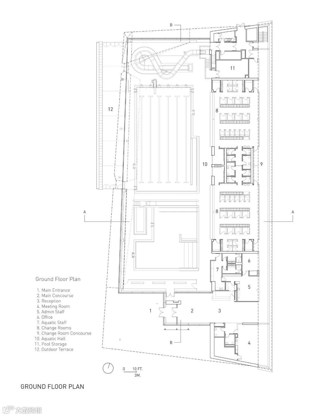
摄政公园水上运动中心被设想为一个 "公园中的亭子",底部非常开放,并被水上大厅的天空照明的 "背鳍 "分割成两部分。它是一个多功能的游泳池设施,包括一个25米的6线泳池、休闲泳池、儿童泳池、热水池、滑梯、泰山绳和跳水板。取代现有的室外游泳池,该项目被要求捕捉到一种透明和与室外连接的感觉。
Regent Park Aquatic Centre has been conceived as a ‘Pavilion in the Park’, very open at the base, and bisected lengthwise by a ‘dorsal fin’ of aquatic hall sky-lighting. It is a multi-purpose swimming pool facility that includes a 25m, 6-lane pool, leisure pool, tot pool, hot tub, slide, tarzan-rope, and diving board. Replacing an existing outdoor pool, the project was mandated to capture a feeling of transparency and connection to the outdoors.

平面图

平面图
水上运动中心是加拿大第一个采用单一的通用更衣室的设施,不再将男性和女性分开,而是采用带有私人更衣室的通用更衣室;解决了文化和性别认同问题,同时也提高了整个建筑群的开放性、安全性和可视性。
The Aquatic Centre is the first facility in Canada to adopt the singular use of universal changerooms, no longer separating males and females, rather common changerooms with private change cubicles; addressing cultural and gender identity issues, while also enhancing the openness, safety, and visibility throughout the complex.

剖面图

该设施还在主泳池大厅外设置了两扇双滑动玻璃门,供人们在公园边的露台上进行日光浴。为了回应公园周围新的高层塔楼的景观,该建筑的绿色屋顶被设计成第五个立面,与建筑特征和公园环境融为一体。
The facility also has two double sliding glass doors off the main pool hall for sunbathing access to the park-side terrace. Responding to the views from the new high-rise towers surrounding the park, the building’s Green Roof is designed as a fifth elevation, integrating with the building features and park setting.
在过去的三十年里,摄政公园已经成为一个移民定居社区。因此,新的水上运动中心为那些对隐私游泳感兴趣的文化团体提供了一个新的住宿水平,增加了一个完整的水上运动大厅筛选系统。采用这种新的进步功能,加上通用的更衣室,结合健身、休闲和治疗的水上用途,以及开放和诱人的设计,大大提高了人们对该市水上活动场所的兴趣。
In the last three decades, Regent Park has become an immigrant settlement community. As such, the new Aquatic Centre offers a new level of accommodation with the addition of a complete system of aquatics hall screening for those cultural groups interested in privacy swims. The adoption of this new progressive feature along with the universal change rooms, the combination of fitness, leisure, and therapeutic aquatic uses, and the open and inviting design has greatly increased interest in the City’s aquatic venues.
这个项目是摄政公园振兴计划的设计遗产承诺的典型。该建筑作为宗教城市网格中的一个公园亭子,既有雕塑感又有城市感。内部设计简洁明了,开放而诱人,使用起来活跃而有趣。这个设施为一个曾经被边缘化的社区提供了重要的公民设施。
This project typifies the design legacy commitment of the Regent Park revitalization program. The building is both sculptural and urban in its’ resolution as a park pavilion in a religious urban grid. The interior design is clean and simple in its’ resolution, open and inviting, and active and fun in use. This facility provides an important civic amenity to a once marginalized neighbourhood.
项目信息
摄影:Shai Gil, Scott Norsworthy
本资料声明:
1.本文为建筑设计技术分析,仅供欣赏学习。
2.本资料为要约邀请,不视为要约,所有政府、政策信息均来源于官方披露信息,具体以实物、政府主管部门批准文件及买卖双方签订的商品房买卖合同约定为准。如有变化恕不另行通知。
3.因编辑需要,文字和图片无必然联系,仅供读者参考;

微信公众号“搜建筑”(ID:sjz9999)
合作、宣传、投稿
联系微信:soujianzhu006