在北莱茵-威斯特法伦州Weeze市Wemb区的Schafweg,为地区消防队建造了一个新的消防站。该建筑由两个平面结构组成,重叠了近五米。共享的灰色熟料砖外墙使新建筑看起来像一个连贯的单元。该设计获得了建筑竞赛的一等奖。
A new fire station has been built for the regional fire brigade on Schafweg in the Wemb district of the municipality of Weeze in North Rhine-Westphalia. The building consists of two flat structures that overlap by almost five meters. The shared grey clinker-brick façade gives the new buildings the appearance of a coherent unit. The design was awarded first prize in the architectural competition.
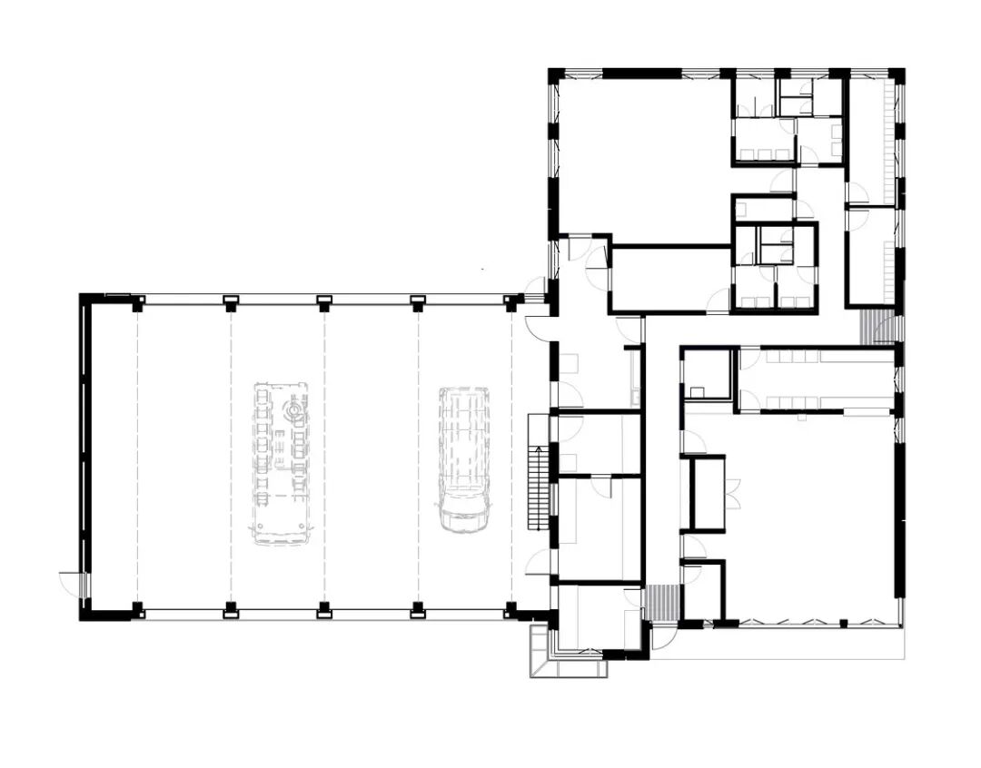
该建筑的第一部分是消防车大厅,建筑面积约320平方米,高度为5.75米。一个车间和额外的储藏室完成了空间方案。技术室位于主楼的第二层。
The building’s first volume is a hall for fire engines; this has a floor area of approximately 320 sqm and a height of 5.75 m. Abutting it at right angles is the main fire brigade building, which contains social areas with changing rooms and a training room. A workshop and additional storage rooms complete the spatial program. The technical rooms are located on the second floor of the main building.
外立面选择了标准格式的水红色Salinagrau(灰色)熟料砖。建筑的主要开口--消防车门、主入口和培训室以及警报器入口--都用红色熟料做框架,并有一个金属红色的核心。
For the façade, standard-format aqua terra Salinagrau (grey) clinker bricks were chosen. The building’s main openings - the fire-engine gates, the main entrance and training room, and the alarm entrance – are framed with red clinker and have a metallic red core.
大楼的室外设施分为自然和功能休闲区。功能区都位于建筑物的直接附近。它们包括一个位于场地东南部的23个车位的停车场。它的位置确保了从镇中心通过Schafweg快速到达消防站。毗连的草坪将来可以用来创造另外12个停车位。
The building’s outdoor facilities divide into natural and functional recreational areas. The functional areas are all located in the direct vicinity of the building. They include a 23-space car park in the south-eastern part of the site. Its location ensures quick access to the fire station via Schafweg from the town center. An adjoining lawn could in the future be used to create another 12 parking spaces.
除了功能之外,建筑师们还关注建筑的可持续性和高效经济的运行。热量是由一个热电联产装置提供的。通风系统配备了高效的热回收系统。
In addition to functionality, the architects focused on sustainability and efficient and economical operation of the building. Heat is provided by a combined heat and power unit. The ventilation systems are fitted with a highly efficient heat-recovery system.
建筑师:Tchoban Voss Architects

本资料声明:
1.本文为建筑设计技术分析,仅供欣赏学习。
2.本资料为要约邀请,不视为要约,所有政府、政策信息均来源于官方披露信息,具体以实物、政府主管部门批准文件及买卖双方签订的商品房买卖合同约定为准。如有变化恕不另行通知。
3.因编辑需要,文字和图片无必然联系,仅供读者参考;

微信公众号“搜建筑”(ID:sjz9999)
合作、宣传、投稿
联系微信:soujianzhu006