▲ 曲江文创中心城市视角效果
缘起
项目背景
“How much does your building weigh? ”
从轻与重的角度来看待一栋建筑为当代建筑师带来了新的思考维度——从历史到当下,当建筑材料从砖木发展到钢筋混凝土与玻璃幕墙,现代建筑的建构体系也体现出了“在轻盈中成长”的历史过程。
西安作为十三朝古都,拥有着悠远而厚重的历史;而面向未来,以数字媒体、文化创意产业为代表的轻经济与在西安自古至今衍变涌现的文化与创意的生命力共同拥有着无限的发展可能。而在历史与未来之间,在有着厚重历史的曲江与未来无限可能的文创产业之间,曲江文创中心项目设计,尝试通过现代建筑轻量化的幕墙设计,将庞大而厚重的建筑体量进行消解与抽象,将曲江新区以及文化创新产业凝聚成轻盈现代的城市形象。
01
设计背景
曲江文创中心项目位于西安市曲江新区二期,项目总用地面积约为4.5万平方米,总建筑面积达到48万平方米,是一个集238米高的超高层双子塔、超五星豪华酒店、以及五栋百米高层的甲级办公、文创孵化办公及商业等复合商务业态于一体的大型综合体项目。
作为曲江二期的门户形象工程,在面向城市快速路立交节点位置的复杂城市环境下,概念方案通过简洁明了的建筑设计,构建新的城市界面与天际线,打造新时代的曲江东大门地标形象。
▲ 整体效果
▲ 超高层塔楼幕墙效果
02
“晶之城”与“云之谷”的乐章
我们希望通过塔楼与裙楼异曲同工的设计理念来叙述整体造型轻盈明快的设计意向——
▲ 塔楼——晶之城
塔楼以“晶之城”为概念,打造温润轻盈的城市形象。“晶”所体现的玻璃体晶莹剔透、精致透明的意向将通过高层塔楼的三大类别玻璃幕墙体系来加以阐述:以竖明横隐幕墙作为基准类型,根据超高层双子塔、加速器办公、孵化器办公不同属性进行和而不同的立面设计与幕墙系统的深化。竖向元素幕墙构件不仅可以在光影变化中提供丰富的立面细节,消隐其巨大的建筑尺度感与厚重感,同时增强塔楼挺拔的视觉效果。
▲ 和而不同的立面设计体系 ©DDB秉仁设计
裙房通过错落有致的商业以及共享办公建筑群,共同建立文化创意产业所引领的产业聚集区,通过“云之谷”的设计理念来畅想当代创意基于传统文化,并融入现代城市生活将产生的无限可能。建筑立面通过横向与竖向折面幕墙体系的穿插变化,结合商业裙房超白高透玻璃以及共享办公的彩釉图案的设计,将都市中云雾缭绕的谷地意向进行抽象化的诠释。
▲ 裙房——云之谷
03
精益化的幕墙设计
从恢弘的城市意向到实际的建筑落地,从概念创意到工程竣工,从城市尺度到人的尺度再到材料尺度传递转化的过程中,如何完成高标准的幕墙设计把控,如何让不同的材料构建成一系列有秩序的立面整体,如何在建成后实现在创造之初对项目所期待的愿景与品质,是本项目设计过程中团队所思考的一系列问题。尽管项目整体以宏大的城市综合体体量形象展示在人们面前,但在幕墙设计方面,团队仍以大海不捐溪流的态度来处理每一处需要设计的幕墙节点,在庞大的尺度下体现着DDB对幕墙设计的精准把控。
在以往的DDB设计笔记中,均有对幕墙设计体系流程——精益化的幕墙设计——进行了阐述,即在项目进入方案设计、方案深化阶段就通过幕墙和泛光顾问单位的工作介入,参与到1:10的节点设计中。通过三方的共同讨论,首先确定幕墙形式的基本选型,继而共同设计1:10的节点,通过反向去验证1:30的典型系统详图的可行性,最后保证了1:100和1:50阶段图纸对立面外观控制的准确性。
▲ 精细化幕墙设计流程
不论是哪一种类型体系,幕墙作为外维护系统所肩负的基本任务以及对各个专业的整合与包容是必不可少的。这就需要在幕墙设计初期,根据幕墙的基本需求以及各个专业的综合考虑,将如下的内容纳入设计考虑的范畴:
1. 不同类型的幕墙体系区分;
2. 幕墙系统结合室内以及轴网的平面划分;
3. 设备区域与百叶的合理布局;
4. 结合层高、结构、设备、吊顶、消防等考虑的剖面划分;
5. 结合保温、遮阳、排水、通风等技术性建议的幕墙关照;
6. 根据室内外效果对标准段大样与节点推敲;
7.不同体系幕墙交接的构造处理;
8.泛光一体化以及泛光检修;
9.重点空间如主要入口形象设计;
10.不同类型的雨蓬设计;
……
04
塔楼幕墙体系
每一个幕墙体系的深化都建立在局部服从整体的大原则之上。
1、2号楼超高层双子塔作为本项目的重点,同样采用了上述设计方法。首先在方案深化设计阶段便与暖通以及机电顾问沟通讨论,将设备专业相关的百叶位置进行集中整合,力求避免出现立面上百叶混乱分布的情况;其次明确幕墙为单元式幕墙施工方式,预留足够的幕墙设计与施工在平面上的工作范围。在这样的基础上,对幕墙系统进行了分类,将塔楼裙房划分共计四种幕墙体系。
▲ 幕墙体系分类图
在确定幕墙体系后,针对每种幕墙体系的不同标准段进行1:30比例深度大样的研究,这些幕墙系统在或整体或细节的深化设计中,逐渐将效果图中的建筑形象精确地呈现在图纸上。
▲ 各个幕墙样板段及对应大样
T幕墙体系整体与局部的关系作为1、2号楼超高层双子塔立面面积占比80%的幕墙系统,对双子塔的整体效果起着决定性作用。此幕墙标准段在1:30尺度下的深化设计时需延续项目整体塔楼的设计概念,标准段的竖向构件在消解塔楼横向体量的同时,也将每一处节点用简洁的方式做到服从整体关系。我们在深化过程中综合考虑了如下的设计关系:
1) 通过轴网尺寸与酒店客房的室内划分确定了幕墙划分尺寸,通过最少的横向划分模数来控制单元幕墙的开模数量,从而控制总体幕墙造价。
▲ 立面划分与开间尺寸对应关系 ©DDB秉仁设计
▲ 幕墙划分的客房室内效果
2)在1:30的设计过程中尝试通过不同形状构件尺寸推敲竖向构件的立面关系、遮阳效果与室内视线干扰;在1:5的节点推敲时,在满足泛光灯具安装要求的前提下,将设计置入远、中、近景的立面进行效果比较,明确不同比例上的效果延续性,以确定墙身设计方向。
▲ T01竖向构件选型研究
▲ T01竖向构件选型研究
3)在与泛光公司沟通后,通过在构件节点处理藏灯问题以协调与立面的整体关系,保障在立面简洁大气的前提下也能满足夜间的泛光设计效果,进而完善灯光一体化设计。
▲ 玻璃百叶设计构造与效果(长按细部图片查看大图)
4)在处理竖向构件边界与交接位置做法时,首先考虑的是构件端部效果是否可以延续塔楼切面的形态效果:将端部进行斜向处理后可以与幕墙斜切面具有更好的呼应关系。
▲ 斜切面效果 ©DDB秉仁设计
▲ 竖向构件节点研究 ©DDB秉仁设计
5)在幕墙的转角与交接位置的处理:为减少雨水排水对局部幕墙顶部边缘的影响,在节点处增加交接收口与滴水处理。
▲ 节点滴水处理(长按细部图片查看大图) ©DDB秉仁设计
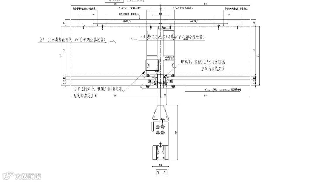
6)百叶设计:双子塔避难层与设备空间在立面上需要设计大量的百叶,传统的横向玻璃百叶尽管在质感上可以达到与玻璃幕墙相似的反射效果,但整体看来为保证百叶的平整度会需要较高的施工工艺。一旦施工平整度有误差,反而会通过反射幕墙竖向构件将这种不平整明显的暴露出来。所以我们在百叶设计时进行了不同方式的尝试,利用竖向百叶与立面竖向构件形成统一的秩序,同时利用较大块的玻璃百叶与开洞来集中整合,提高百叶位置立面的整体性效果(两种百叶均需室内预留排水措施)。
▲ 百叶做法与效果比选
▲ 竖向玻璃百叶渲染效果(设计过程版) ©DDB秉仁设计
05
近人尺度的精致感
近人尺度的裙房幕墙系统及入口空间的精细化设计,延续云之谷的设计概念,通过丰富的幕墙形式变化以及彩釉玻璃的朦胧效果,将云中缥缈的形象意向进行建筑立面的设计转译。
1
联合大堂入口——消解体量,化重为轻
联合大堂与位于其上的宴会厅北立面共同组成了双子塔裙房的主立面。在进行联合大堂主入口,即1、2号楼双子塔的办公主入口空间设计时,我们希望主入口空间的宏大体量尽可能通透,在近人尺度可以更多呈现室内空间的效果感受,以消解建筑巨构所带来的压迫感。
▲ 双子塔联合大堂入口效果
▲ 联合大堂正立面与背立面幕墙材料做法
联合大堂幕墙在结构预留反力的前提下主体部分采用单索幕墙,并最小化幕墙的结构构件尺寸来消隐构件对立面通透性的影响;门斗上方采用横明竖隐框架幕墙,通过较小的玻璃面积划分优化竖向龙骨的截面尺寸;同时在1:30的大样与节点的推敲中将明框型材部分藏于雨篷与门斗之中的装饰面板内,控制雨篷的最下沿与室内吊顶做平,保证在同室内净高8.9m一致的高度,达到将室内的大堂空间延伸至室外雨篷檐下的效果,这样也可使室内大堂在借助雨篷的空间感延伸后显得更加宽阔。
▲ 联合大堂节点设计 ©DDB秉仁设计
另外入口雨篷设计也需考虑与裙房立面的整体性关系:在与结构设计师沟通后可将雨篷进行6m的出挑,而不增加冗余的雨棚拉索;雨篷以整体横向的语言来延续裙房的体量感,在雨篷端部斜向的变截面型材收头也使厚重的雨棚显得轻盈起来;雨篷上表面为超白高透玻璃,下方通过细密的格栅在保证体量感的同时,也可以使光线洒落下来,确保6m宽的雨篷不致因为厚重的体量而产生压迫的感觉。
▲ 联合大堂雨棚节点设计 ©DDB秉仁设计
而以横向元素为主的二层宴会厅立面,延续了裙房立面的设计语言。我们将横向元素分配到不同层次的尺度中,形成一套主次清晰的组件来解决构造设计:第一层次的水平元素包括横向雨篷、横向折面幕墙,下一个层级则是横向雨篷格栅、结合灯具隐藏的横向幕墙型材、以及横向玻璃的划分和彩釉等设计语言。
2
五星级酒店入口——不同材质的不同体验
作为酒店形象担当的落客前区空间,在设计阶段进行了多轮不同形式与材质的尝试和对比,最终选择通过斜面形式回应塔楼的晶体设计元素,同时兼顾了结构与形态的统一性的方案。而不同的材料选择会对入口会带来不同的氛围感觉——玻璃的通透感、拉丝不锈钢的科技感、波纹不锈钢的灵动感以及雾化不锈钢的朦胧感。结合不同材质的渲染模拟及材料小样,我们最终确定以雾化不锈钢来作为施工样板的定样方向。
▲ 五星级酒店雨棚做法推敲方案
▲ 五星级酒店雨棚与入口做法
在确认设计方向以及材料后,与结构工程师对接并完成结构定位,进而将不规则形体与面板进行定位;在立面展开图上对板块进行尺寸与模数划分、立体拼接、以及与幕墙施工方探讨转角折边等做法;同时将泛光灯具融入雨篷的造型设计中,在与结构预留足够空间后增加隐藏天沟以及落水构造,最终完成雨篷的一体化方案设计。
▲ 五星级酒店雨棚收口与天沟节点处理 ©DDB秉仁设计
3
裙房竖向折面幕墙——轻透灵动
裙房商业立面通过超白高透玻璃来显示其内部的丰富性,而位于裙房高层的共享办公立面则通过不同的幕墙处理来体现建筑的丰富性。横向与竖向的折面幕墙通过不同方向的玻璃反射角度产生丰富的光影变化,彩釉玻璃则将反射的光影朦胧化处理,从而产生缥缈的云谷意向。
▲ 图片来自网络(经ddb意向处理)
▲ 竖向折面幕墙
▲ 竖向折面幕墙材料与节点做法
(长按细部图片查看大图)©DDB秉仁设计
竖向折面幕墙体系位于裙房的三层与四层,在设计时既要考虑到幕墙的整体性,又要兼顾每一片幕墙所需要满足的构造需求。由斜面玻璃与短边铝板共同组成,为了延续玻璃的连续性而不被铝板明显的隔断,玻璃在与铝板的交接节点处理上并没有采用常规操作,而是通过让玻璃“飞”起来----即将中空玻璃外侧的基片通过夹胶的方式形成飞翼,消隐了铝板与玻璃的交接节点,使得幕墙更加轻盈,同时也兼顾了直射的泛光照明对主动线上行人视线的影响;此外,为了弱化玻璃明框构件对幕墙整体效果的影响,通过节点优化将夹件进行尺度上缩小,并将玻璃端部藏于侧面的铝板中,使得整体的幕墙玻璃整体性更强。
▲ 竖向折面幕墙彩釉推敲 ©DDB秉仁设计
▲ 竖向折面幕墙彩釉室内效果(人视高度层间位置)
4
裙房横向折面幕墙——光影变化
▲ 横向折面幕墙效果
▲ 横向折面幕墙材料与节点做法
(长按细部图片查看大图)©DDB秉仁设计
横向折面幕墙在设计阶段考虑的则是利用对天空进行反射叠加彩釉效果处理所产生另一种独特的立面意向。在深化设计时,为了避免垂直划分对室内视线高度带来的干扰,需要对整体垂直方向上的划分模数进行极致控制;在节点设计时也同步考虑泛光灯具的暗装,在幕墙横梁开模时预留必须的灯具尺寸。在进行彩釉设计时也将视线高度的密度降低,在保证彩釉密度完整性、整体性效果的同时,尽可能的减小视线高度彩釉对的干扰。
▲ 横向折面幕墙彩釉推敲
▲ 横向折面幕墙彩釉室内效果(保证人视高度上的视线通透性)
在幕墙包裹下的裙房立面采用相同的材质进行不同的设计处理,从而产生可以随时间光线而变化的立面效果。横竖两种幕墙体系贯穿着整个作为项目连续基座的裙房界面,围护着不同大小体量的功能空间,形成丰富而和谐完整的立面形象。
06
材料控制与积累
在幕墙方案深化的同时,我们也将立面材料进行细分统计——在幕墙体系的模型深化过程中,通过犀牛图层来控制模型效果。不同的材料通过图层归类与细分处理最终导入到项目材料库,用以指导施工配合时的材料设计时提供选样参数,并开展接下来的定样与样板段制作工作。
▲ 模型工作界面
▲ 材料对比
▲ 材料选样
07
结语
曲江文创中心目前仍处于现场施工配合阶段,同时在准备超高层双子塔1:1样板墙制作工作。回顾项目设计过程,将幕墙立面作为设计专项,可以更好的延续超高层城市综合体项目在设计之初时所寄予的设计概念。当然在烈度为八度的西安,超高层的结构设计处于最高的优先级,而建筑轻盈化则是在这个前提下的“反重力”表达,更多是从心理层面传递出轻盈灵动的整体效果。我们从这样的矛盾点出发,通过空间、尺度、立面逻辑、幕墙节点等建筑师可控层面的设计,经历了概念到图纸再到将不同的材料组合落地,希望最终将不可度量的城市梦想,塑造成为曲江新区塑造未来更长的时间维度下、人们心目中的城市地标形象。
▲ 施工现场照片
项目概况
项目名称:西安曲江文创中心
项目业主:西安曲江丰欣置业有限公司
项目位置:陕西省西安市曲江新区
项目功能:超甲级办公、超五星豪华酒店、甲级办公、孵化办公、共享办公、商业
设计时间:2017-2023
用地面积:44954.22㎡
建筑面积:479104.59㎡
建筑设计:上海秉仁建筑师事务所(普通合伙)
总建筑师:马庆禕
设计团队:
方案阶段——滕露莹 马连文 章墨 王欢 吴彦霖 邵帅 孟凡宇 林采轩 黄立妙 黄紫璇 刘道锋 乔凯峰 徐荣耀 潘丽珂 李晓洋 高佳玉
深化阶段——颜莺 马连文 孟凡宇 章墨 邵帅 王欢 吴彦霖 林采轩 徐佳琳 熊天玉 胡贤红 刘华擎 黄绍楠
合作单位
建筑施工图:中国建筑西北设计研究院有限公司,上海颐景建筑设计有限公司
幕墙施工图:深圳广田方特科建集团有限公司
景观设计:上海魏玛景观设计规划有限公司
泛光设计:西安明源声光电艺术应用工程有限公司
室内设计:深圳市杰恩创意设计股份有限公司,深装总建设集团股份有限公司
施工方信息
土建施工方:中铁城建集团有限公司(1、2号楼总包),中建二局第三建筑工程有限公司(3-7号楼总包)
幕墙施工方:深圳市方大建科集团有限公司(1、2、6、7号楼),北京江河幕墙系统工程有限公司(3、4、5号楼)
供稿:SaintPeterPanDoraeMeng
出品:DDB学院
本资料声明:
1.本文为建筑设计技术分析,仅供欣赏学习。
2.本资料为要约邀请,不视为要约,所有政府、政策信息均来源于官方披露信息,具体以实物、政府主管部门批准文件及买卖双方签订的商品房买卖合同约定为准。如有变化恕不另行通知。
3.因编辑需要,文字和图片无必然联系,仅供读者参考;

微信公众号“搜建筑”(ID:sjz9999)
合作、宣传、投稿
联系微信:soujianzhu006

