根据中国勘察设计协会《关于开展教育部2023年度优秀勘察设计评选的预通知(第2号)》等文件要求,中国勘察设计协会高等院校勘察设计分会于5月15至17日在广州组织开展教育部2023年度优秀勘察设计奖评选工作。
本次评选分为建筑设计、规划设计、城市设计、住宅与住宅小区、绿色建筑、园林景观、传统建筑、市政(水环境)、市政(路桥隧)、工程勘察、建筑结构、建筑工业化、建筑环境与能源应用、建筑电气、建筑智能化、水系统工程等16个评选类别。经资格初审、专家评审等环节,共评选出获奖项目496项,其中一等奖125项,二等奖146项,三等奖225项。
其中我院电子科大长三角研究院(衢州) 生活中心衢州高铁新城智慧产业园 (四期) 项目),荣获2023年度教育部优秀勘察设计奖——建筑设计类别一等奖。
双向的功能叠加为生活中心创造了传统行列式排布所不能达到的可感体量。顺应地势高差逐级跌落的屋面为学生提供了天然的观察视点,站在高处,一幕幕不同的生活场景直接浮现在眼前。
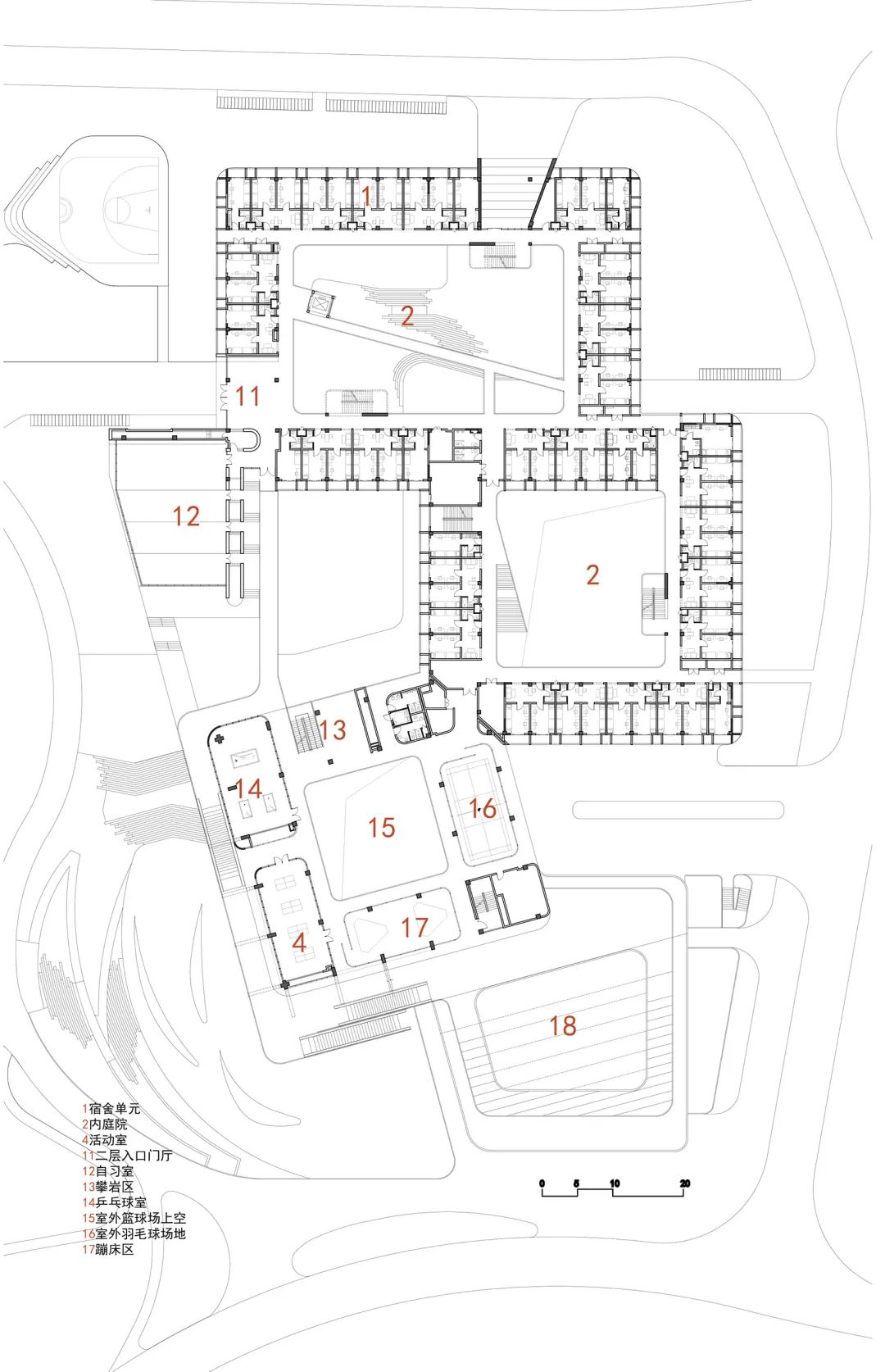
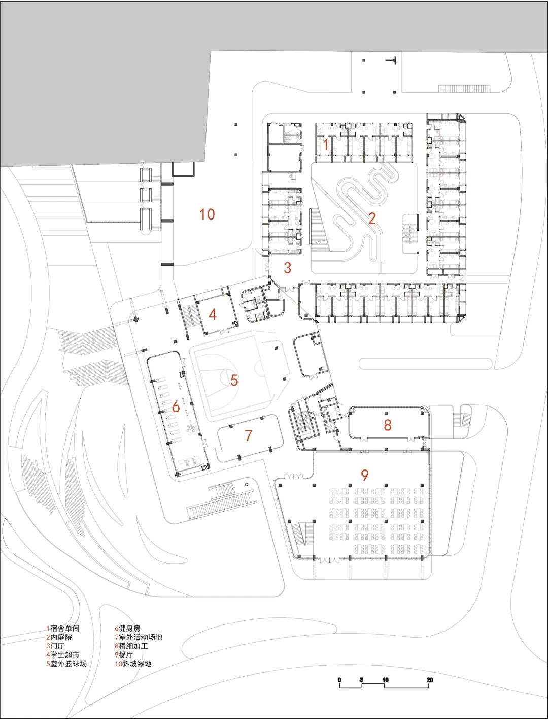
近年来,我国的高校生活区已逐步完成了从学生宿舍与食堂等生活设施行列排布1.0阶段,到公共空间与学生宿舍整合设计2.0阶段的过渡。在衢州生活中心项目中,方案试图突破功能限制,将公共生活与居住功能完美融合,积极尝试3.0高校生活区新模式。
研究院选址于衢州高铁新城,因场地局限户外体育设施不足,周边也尚未有成熟的服务配套。作为一期重要工程,20000平方米的生活中心将在很长一段时间内为自给自足的研究院提供住宿、社交、活动、餐饮、学习和娱乐等多种功能,是名副其实的综合体。
“越山行尽见平野,江上水流无逝音”,校园用地凸显了衢州“微地形”的特征,其中生活中心场地北高南低,高差十余米,北侧和东侧为校园2期高层产业园,西面接邻校园中心景观水面,南面是葱茏的自然山体,山缓水柔,自然和谐。
建筑在布局上将功能体量拆分以常规尺度重新组合形成聚落,北区住宿、自习室及南区活动中心、学生餐厅5个不同的生活场景被整合到一个由同一母题的重复形成的复杂综合体中。
五个盒子的高度、体积乃至院落的大小变化体现了个体的差异,增加了整体的丰富度。除了水平延展,生活中心同样采用了常见的在建筑垂直方向上多种功能连续叠加的复合化设计。这种双向的功能叠加为生活中心创造了传统行列式排布所不能达到的可感体量。顺应地势高差逐级跌落的屋面为学生提供了天然的观察视点,站在高处,一幕幕不同的生活场景直接浮现在眼前。
内向的庭院反应了强烈的“家园”情结,体量的水平延展,又使得院与院之间联系紧密。环环相扣的内院,形式各异:宿舍大院长36m、宽24m,以自然为主题;宿舍中院24m见方,雕塑感的清水楼梯凸显在院中;南区运动小院以半场篮球为核心,四面“板、廊一体”的走道成为看台,健身房、羽毛球室、桌球室、乒乓球室等均以“玻璃盒子”的形式夹在清水楼板之间;自习室则将体量剖切拉开,通过两片剪力墙挤压出静谧的“缝之院”。在这里,看与被看被放大,生活中心从而能够随时随地将师生带入到更为真实的生活场景中。
建筑师将路径一分为二,产生了“内径”与“外径”,二者共同配合编织了一个立体网络。内径提供便捷高效的交通流线,外径则与具体的功能结合,从门厅开始,串联起各体块,并在层层跌落的屋面上与宿舍的内径连接,完成循环闭合。从任何一个体块都可走上这个循环,都能随路径漫游到建筑各处。红色的环形塑胶跑道是外径的核心,由活动中心出发延伸到北区宿舍,并配合粗粝的黄色丙烯酸,从素雅的清水混凝土中凸显出来,伴随着两旁的绿化,形成了最具活力的顶层屋面。
在设计过程中,建筑师一直在试图努力回应人们对于场地、生活、未来的期待。站在生活中心的屋面上,目视着远方低矮的群山和动人的夕阳,青年时期的高校住宿体验不断在脑海中涌现,那些曾因为炎热而不得不“席睡”屋顶的夏夜,漫天的星空如今开始在连续的屋面上流动起来。
项目总负责人:江立敏、连津
建筑及室内设计团队:张佳、桂耀国、李泽敏、王艳
结构团队:胡广良、沈葵、张硕、杨付权
给排水团队:李丽萍、任军、张宝娣、唐玉艳、袁方
电气团队:宋海军、张英、顾玉辉、罗颜、蔡猛龙
暖通团队:秦卓欢、钱必华、吴虎彪、禹小明
景观设计:何强、肖鸿、连乐桐、张杰、黄郑涛、周耀辉、詹丽文
泛光照明:杨秀、徐霞青
绿建团队:徐晓燕、薛芳慧、朱翠雯、鞠辰、吴过、唐澄宇、张现、李鹏飞
幕墙设计:兰礼军、何谦
概算团队:翁晓红,李立漪,顾晶晶,徐敬
End
1.本文为建筑设计技术分析,仅供欣赏学习。
2.本资料为要约邀请,不视为要约,所有政府、政策信息均来源于官方披露信息,具体以实物、政府主管部门批准文件及买卖双方签订的商品房买卖合同约定为准。如有变化恕不另行通知。
3.因编辑需要,文字和图片无必然联系,仅供读者参考;
推荐一个
专业的地产+建筑平台
每天都有新内容
扫描二维码关注

投稿、合作、宣传
联系微信:soujianzhu006
搜建筑·矩阵平台