▲ 更多精品,关注“搜建筑”
海口江东新区山能酒店方案设计
Penda China

▲鸟瞰效果图
项目位于海南省海口市江东大道江东新区起步区。东北临琼州海峡,西南临江东大道。本项目作为江东新区第二高的核心区城市地标建筑,将成为海南自由贸易港的重要形象名片。

▲夜间鸟瞰效果图
Penda China的设计灵感来源于“海浪”和“晚礼服”,海浪是海口海洋城市的最大特色,建筑呼应了城市文脉和自然环境特色。让建筑与环境互相对话交流,融为一体。同时本项目作为江东新区核心区,未来各种盛典活动必将轮番上演,所以“晚礼服”的优雅与华丽似乎也在勾勒着那令人向往的都市繁华景象。

▲人视效果图
建筑的西侧立面呼应城市规划的景观绿带,通过垂直绿色遮阳百叶创造绿色节能立面,实现低碳节能的诉求。同时使建筑与城市景观有机联系起来。

▲酒店入口效果图
酒店的入口落客区雨棚与建筑立面曲线融为一体,整体造型一气呵成,24米挑高的酒店大堂中庭透过底层的结构隐约可见,为酒店客人营造独特的入住体验。

▲商街入口效果图
建筑底层起伏的遮阳/遮雨屋顶为底部商业创造全天候的购物环境。开放式的街区商业既服务于酒店又为城市居民提供了舒适独特的休闲购物场所。

▲商街入口效果图
商街形态如海水冲刷出来的峡谷,吸引人们鱼贯而入,身临其境。

▲酒店立面局部效果图
夜幕降临华灯初上,建筑立面上的钻石结构的灯光闪耀时,本建筑将成为都市中心的标志之一,从海面远望,它也会在高耸的楼群中夺目而出成为江东新区的新地标。

▲构思草图

▲形态演变

▲体块分析

▲功能分区
酒店的功能配套完全按照城市五星级酒店标准设置。挑空大堂、12米高宴会大厅、海景早餐厅、天空酒吧和行政走廊、屋顶无边泳池等功能精心布置,让酒店的入住体验独特而难忘。屋顶的无边泳池及全日餐厅视角开阔,让海南的壮丽海景一览无余。

▲功能剖面

▲天际线分析图
起伏的“海浪”造型,不仅创造了独特的建筑空间,同时也呼应了城市的海洋特色,创造出动感浪漫的城市天际线。

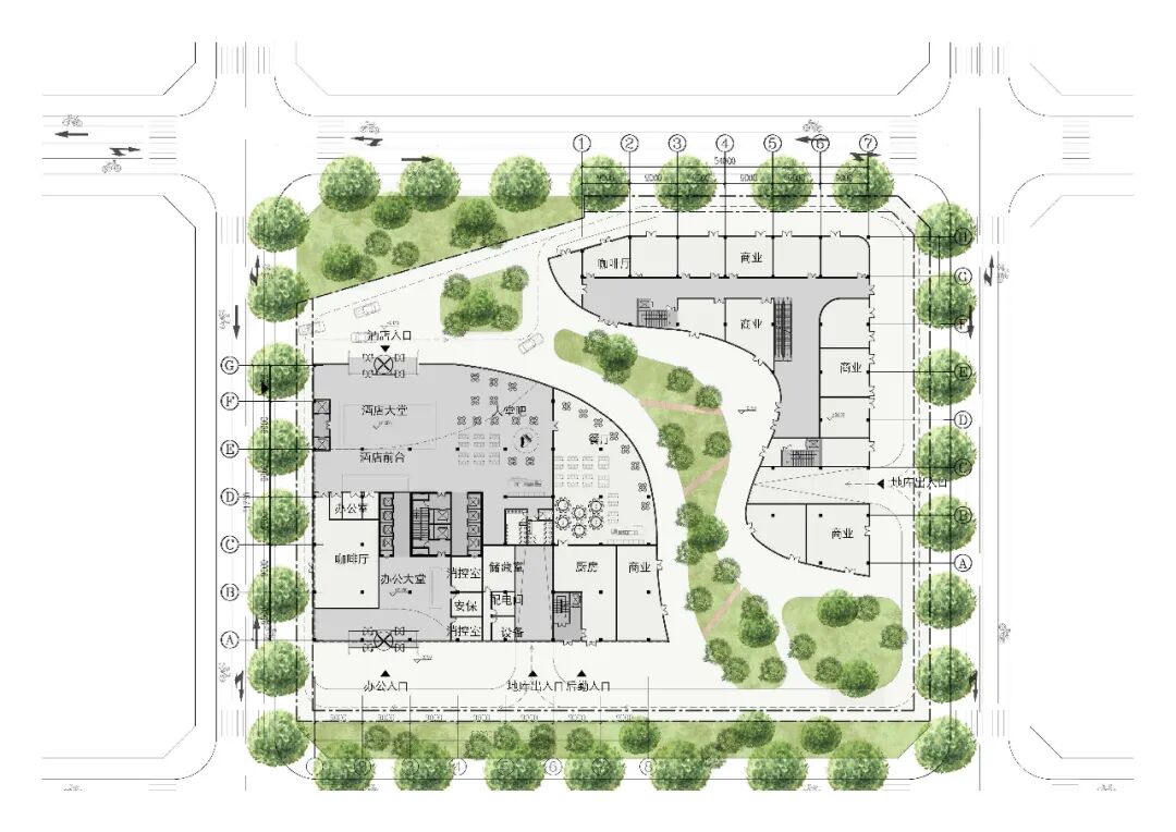
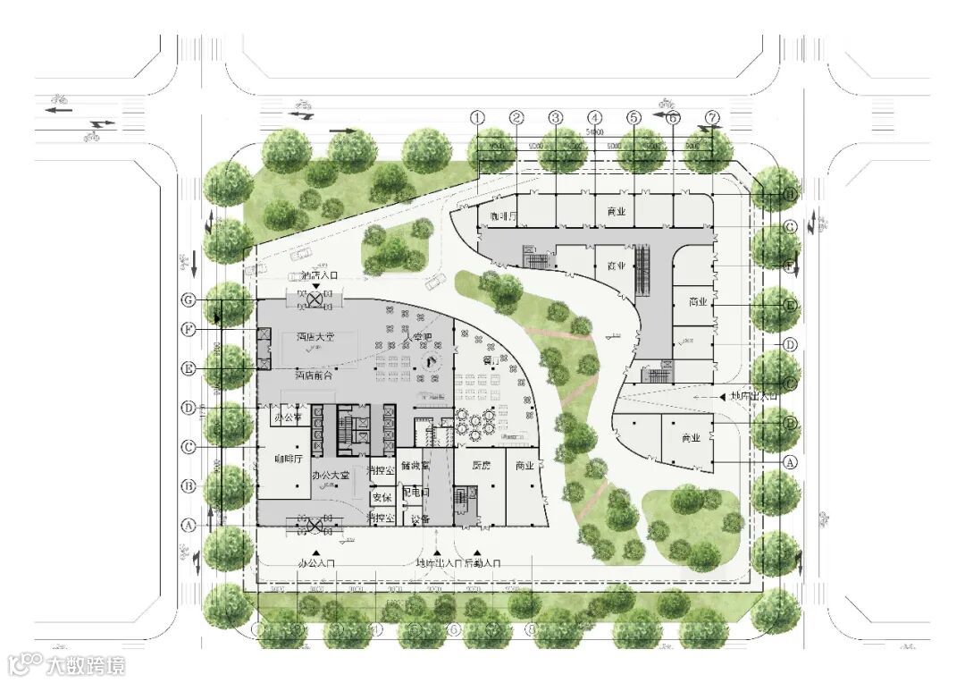
▲首层平面图
项目名称:海口江东新区山能酒店
项目地点:海南省,海口市
项目规模:86480平米
项目类型:酒店办公商业综合体
设计内容:建筑设计
设计阶段:方案设计
主创设计:孙大勇和万书言
设计团队:Penda China / 槃达中国
关于Penda China
由孙大勇和万书言领导的Penda China成立于2013年,是立足于中国北京以创新为宗旨的具有国际影响力的建筑事务所,捕捉艺术、时尚和建筑的时代气息,以绿色生态价值观践行“LESS IS LOVE(少即是爱)”的创作理念,营造人与环境的和谐关系。项目包含从建筑、景观到室内及艺术装置等不同类型,业态涵盖文化、居住、酒店、办公、交通、商业、展览等多种功能,作品鸿坤美术馆被Time Out杂志评为北京最受关注的的十家美术馆之一。
本资料声明:
1.本文为建筑设计技术分析,仅供欣赏学习。
2.本资料为要约邀请,不视为要约,所有政府、政策信息均来源于官方披露信息,具体以实物、政府主管部门批准文件及买卖双方签订的商品房买卖合同约定为准。如有变化恕不另行通知。
3.因编辑需要,文字和图片无必然联系,仅供读者参考;

微信公众号“搜建筑”(ID:sjz9999)
合作、宣传、投稿
联系微信:soujianzhu006

