
建筑形式和建筑技术的
最终目的都是为了
服务于使用者
新落成的杭州电子科技大学第一实验楼坐落在杭电下沙校区内,这是一所建于2000年左右的校园,和众多位于大学城的学校相仿,一次性建成的校园建筑风格高度类似,单一化的轴线式外部空间和封闭式的单体教学楼群使得校园环境缺乏人气与互动,而作为以研究和创造为使命的大学而言,共享、交流是常规学习之外最重要的活动。校园现状明显缺乏此类多义性空间。

事先进行的师生问卷调查也指向了这一判断,学生们直指校园景观停留性差,课余休闲时间无处度过,只能在寝室或去校外,交流和讨论活动多数则局限在食堂。
故而如何通过位于校园核心区的新建建筑来提升环境的多元性,拓展建筑的校园共享属性;如何使这位新介入者不仅是一座满足基本功能的个体建筑,而且是创造一处促发师生交流、激发思考、延续校园公共空间职能的情境和场所;如何从传统上对建筑与空间的塑造逐步转化为对师生行为模式的引导?在杭电校区成型固化近二十年后,建一座什么样的实验楼,能反映出我们新时代的大学教育观,并打破校园旧有的建筑空间模式。这些人本化的思考成为方案设计的切入点。

缝合校园
总体布局上,作为校园东西向次轴终点的实验楼,采用方院形制强化实验楼的学院向心性,又能与校园共同分享活力交流院落。
将景观绿轴贯穿整个建筑底部架空区域,通过大台阶和公共平台的强导向,将中心轴线与西侧校区共同激活,同时拓展了建筑自身和整个区域的公共性,激发了校区各区块之间的联通效应。

行为支持

形式构想
建筑采取双盒体量悬浮叠加模式,构建了学院式实验楼建筑形态的迭代创新,沉稳宁静的体量,着重刻画了校区副中心的仪式感;刻意岩石化的暖白色石材基座及主体刚硬的线条相辅相成。建筑主体使用双重表皮,主体最外层为GRC垂直遮阳板。
根据朝向设置不同的规律化的遮阳角度,东西立面在夏季太阳方位角为正东或正西侧时,能阻挡60%直射光,太阳方位角为西偏北或东偏北时,可阻挡90%直射光。绿色设计和立面造型相辅相成。


复合功能
在功能设计维度,我们提出了复合式立体空间布局的概念。通过对使用预期的细分,区别化、分区域设置实验空间。
在建筑为毛坯交付的限制下,设计最大程度保证空间的灵活可变,注重交流空间的可使用度。建筑下部空间是以绿色庭园为中心的公共休闲交往平台,穿越建筑的景观轴将下部空间划分成南北两个区域。
其中,南区是教学区,北区为有特殊层高及承重需求的实验区。上部空间中,低区为教学实验用房,高区则是学科实验用房,每个专项实验单元均搭配教授及团队工作室,可分可合,适应性强,满足灵活的科研需要。
南北侧加宽的中廊融入多种功能,形成有趣味的学习和交往场所。会议中心设置于东北端,律动的形式融入于主楼。

交流中廊

结语
建筑形式和建筑技术的最终目的都是为了服务于使用者,这是空间和形式逻辑的最大意义所在。实验楼交付一年多后,我们再次进行了使用后评价问卷调查,师生对建筑的落成效果评价符合设计预期,尤其在公共交流空间的提升上基本解决了之前的痛点,建筑的社会性价值和功能性价值也同时得以彰显。

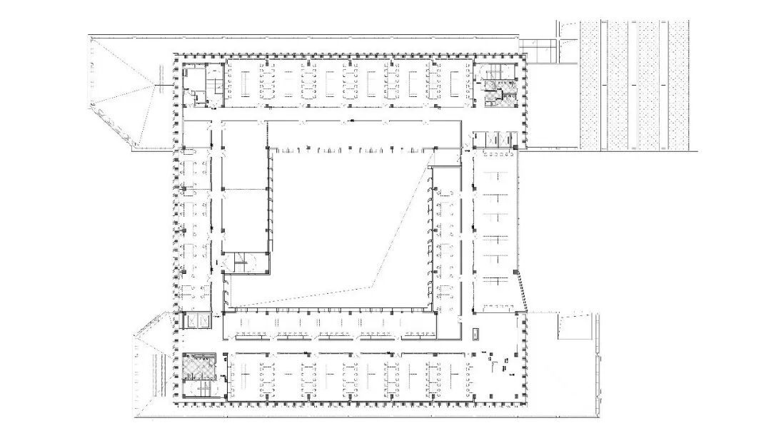
一层平面
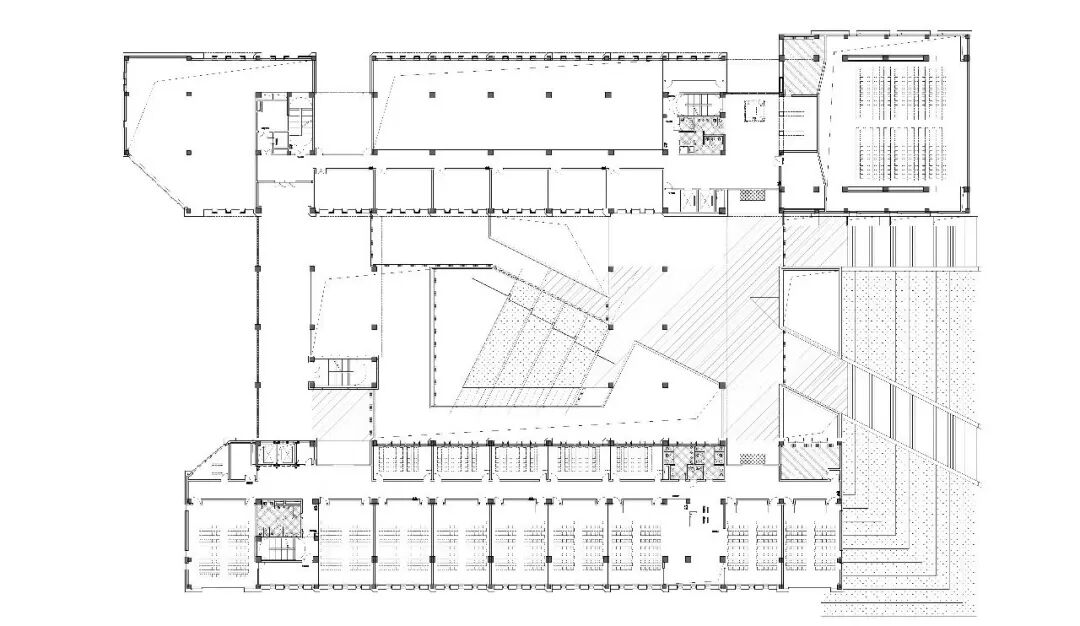
二层平面
三层平面
剖面图
项目名称丨杭州电子科技大学第一实验楼
项目地址丨浙江杭州
用地面积丨15,700㎡
建筑面积丨34,291㎡
设计单位丨浙江大学建筑设计研究院
项目负责人丨王健、吴雅萍
建筑设计丨王何忆、鲍湎思、杨晋、张智勇、杨筱菲
结构设计丨邵剑文、吴冰镠
给排水设计丨张钧、张滨
暖通设计丨余俊祥、宁太刚
电气设计丨施大卫、赵亮
智能化设计丨王杭、郑会
幕墙设计丨杭飞
建筑摄影丨赵强
获取更多新内容、新知识
本资料声明:
1.本文为建筑设计技术分析,仅供欣赏学习。
2.本资料为要约邀请,不视为要约,所有政府、政策信息均来源于官方披露信息,具体以实物、政府主管部门批准文件及买卖双方签订的商品房买卖合同约定为准。如有变化恕不另行通知。
3.因编辑需要,文字和图片无必然联系,仅供读者参考;

微信公众号“搜建筑”(ID:sjz9999)
合作、宣传、投稿
联系微信:soujianzhu006
阅读原文:“UAD浙大设计”更多精品


