
我们尝试在标准化的开发模式下
最大可能地进行定制化探索
从平面到造型
赋予标准化住宅生动性
使其具有生命力

中国的房地产市场正处于日渐成熟的状态,现成的、成熟的、标准化的产品线为最高效的企业所利用,并为企业实现快速的资金周转。这些标准化的产品线上,高低配、朝向、户型、立面等都有一套标准价值引导着具体的设计。
从开发企业的角度看,标准化的建筑具有极强的生命力。而从建筑师的角度看,标准化产品线上出来的建筑尽管满足建筑的实用、坚固、美观的三要素,却因缺乏包容性而更像是居住的机器。


2017年9月,临安举行撤市设区挂牌仪式,正式成为杭州的“第十区”,即以全新的规划逐步迎接城市大更新。此间,融创地产首入临安市场,摘得城市更新范围内的十锦台项目地块,欲掀起高端改善风潮。十锦台项目带着天生的商品属性,在临安蜕变之时与我们不期而遇。项目所承担的价值期待为我们坦然接纳,同时也因初遇的美好给予了我们定制设计的空间。

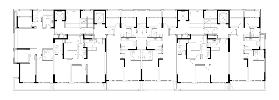
在十锦台项目上,面对一块只有250米面宽、135米进深的土地,如何找出最大化货值的解决方案对于我们来说不是困难的事情。但是,高层空间区域过度挤压必将造成高层形体过于宽大、压迫城市空间的问题。
在规划部门、甲方业主、设计院共同探讨之后,我们给出的最终解决方案是采用点板结合的形式,在最大化货值与城市空间形象之间寻找到了最佳的平衡点。

另外,此项目是在城市有机更新的环境下,其规划不是在一张白纸上进行,而是在城市的积淀中进行。在形态组合时,我们采用如同电影中的“蒙太奇”手法,将建筑群体组织成对称的布局,形成具有强烈秩序感的群落,将之拼贴进现有城市相对散乱的现状中,激发我们对历史、时间的想象。强化项目自身的特点是开发企业的标准诉求,在这点上,我们同开发企业的追求达到了高度一致。
标准化所控制的主要对象是大面积的住宅主楼,在入口大堂、架空层等微观细节之处人性化地留出了较大的设计余地。在十锦台项目中,我们首先给景观预留了充分的空间,对北界和现状建筑都作出了退让。
再次,联合景观设计公司在这些层面进行了高精度的设计。北侧主入口处设计了尺度适宜的小区业主大堂,并在其正前方布置了叠水、石印的景观,增加了景物的景深和层次,带来传统园林审美趣味。
而架空层的空间预留选择在了小区的正中间楼栋,使居民更加方便到达。再次,联合室内设计公司进行了不同活动场景所需要的家具布置。

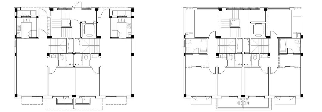
项目由10幢高层住宅(13~18层)和2幢多层住宅(4层)构成,住宅总面积约79014.9㎡,共657套。户型为100㎡-200㎡,北侧结合景观,布置105㎡、123㎡、138㎡高层住宅产品;南侧结合私享花园布置142㎡和181㎡叠排户型。
户型组合形式多元,满足开发定位的需求。同时基于基础的户型,我们从项目自身的环境出发对户型进行了优化。
项目所在的临安区气候舒适、四周群山环绕。针对常规的95方中间套、边套户型,我们将常规的南向飘窗均优化为阳台,最终形成多面宽的阳台格局。而这种长阳台的形式与临安地区温和的气候特征相符合,也与临安的山水景致相呼应。
此外,我们灵活地调整了阳台的尺度,在平面南向形成了平整的边界,在侧面设计了L型转角阳台,创造了更为开阔、舒畅的观景视野。

# 高层住宅多面宽阳台

彼时,融创地产在杭州市场上的产品已形成现代、简约、冷调的形象。在这个项目中,我们并未直接复制一种相似造价的立面,而是从形象需求出发,在三个层面进行重点表现:三段式的竖向比例、简洁的装饰语言、精致的收口细节。
不论西方还是东方,古典建筑造型严谨,提倡富于统一性和稳定感的横三段式和纵三段式的构图手段。这种构图已形成集体无意识,使人形成顿悟、产生美感。尽管现代建筑无法照搬古建筑的比例和样式,我们还是袭用了纵向维度的三段式立面分割设计,意在形成典雅、稳定的审美情趣。
在建筑的首层,我们在严格的成本控制下依然分配了石材的使用额度,在近人尺度打造出有品质感的、厚重的基座。但是在横向维度上,我们打破了三段式的构图手法,使得立面在此维度呈现自由的特征。
同时,层间线条的处理上,我们尽量压缩了水平线条的高度,也使之展现出轻盈的姿态;在建筑顶部的处理上,也是使用了飘板的造型元素,展现出飘逸的形态特点;在壁柱和窗槛墙的处理中,简化了古典建筑繁琐的进退关系,只保留了基础的柱芯和金属收边细节,展现出简洁的风貌。这些灵动的处理手法与稳定的竖向三段式构图结合,巧妙地产生了愉悦的审美体验。
另外,在建筑细节层面,我们秉持了细节是建筑师的匠心体现观念,认为细节是创作者、建设者精神世界的极高内涵。我们在窗台位置设计了精致的金属压边;分户墙与玻璃栏板交接之处使用了更为细腻的金属分隔;阳台栏板的节点设计上,采用了玻璃下部钢板承托,上部扶手固定的方式,得以将竖向连接构件完全隐藏在玻璃之后,从而形成了完全平整的连续玻璃面。

在十锦台公寓项目中,我们尝试了在标准化的开发模式下最大可能地进行定制化探索。三年造就一个大区,也造就了一个更加成熟的设计团队。回顾整个过程,虽然在设计过程中有过曲折,内心秉承的个性化定制观念始终不曾动摇。也正是这样一个观念,带领我们在市场中走出了一条生动的、具有生命力的设计之路。

项目名称丨临安十锦台
项目位置丨浙江 杭州
建筑设计丨浙江大学建筑设计研究院
设计团队丨莫洲瑾、王玉平、方婷、吴杏春、曲劼、余旭光、陆钊扬
建筑面积丨118401㎡
设计时间丨2018
建造时间丨2020.10
项目业主丨融创东南区域集团、浙江金成房地产集团有限公司
项目摄影丨陈曦
本资料声明:
1.本文为建筑设计技术分析,仅供欣赏学习。
2.本资料为要约邀请,不视为要约,所有政府、政策信息均来源于官方披露信息,具体以实物、政府主管部门批准文件及买卖双方签订的商品房买卖合同约定为准。如有变化恕不另行通知。
3.因编辑需要,文字和图片无必然联系,仅供读者参考;

微信公众号“搜建筑”(ID:sjz9999)
合作、宣传、投稿
联系微信:soujianzhu006



