▲ 更多精品,关注“搜建筑”

在车水马龙的大城中央
能否安然隐身在这熙熙攘攘的人间?
立于CBD超核之上,心怀风雅
闹市中的书卷气质
最赋予生活娴静的气韵
借由悦著·九章的设计方案
着力探究融合自洽的都市生活方式
01 身居城央
南京悦著·九章项目地处南京南站CBD,作为亚洲第一大站、华东地区最大交通枢纽,南京南站带动周边板块快速实现了板块能级和价值的双重跃升,成为南京最受瞩目的CBD区域之一。悦著·九章地处核心板块的核心区域,与南站直线距离仅1.5公里,毗邻地铁1号线双龙大道站、地铁3号线宏运大道站,公共交通出行优势显著;而项目周边又有四横四纵快速路加持,畅行通达到南京主城区各个区域。

项目周边有在建10万方商业,且2公里范围内,还有证大喜马拉雅中心、金轮星际中心、明发商业、麦德隆等商业环伺;项目南侧有1处基层社区中心,所在片区已建成南京宏运学校,邻右里幼儿园。
周边配套如此醇熟完整的住宅地块,宜居指数拉满,高踞在板块价值高地之上。

02 “边”与“界”对比
悦著·九章项目容积率仅约2.1,在核心繁华区域是一个偏低的容积率,决定了整体类型为纯粹的小高层+洋房的低密模式,充分保障了项目优质改善的底色。
规划3栋洋房+5栋小高层,户型建面约为97~139㎡。规划总建筑面积约7.2万平米,其中地上建筑面积约5.3万平米,地下建筑面积约1.9万平米。不论从地段价值还是产品定位上,都堪称区域封面之作。

城市核芯居住的最高体验即“闹中取静”,地块狭长舒展的形状决定了南北两排楼栋的基本规划格局,北侧5栋小高层建筑与宏运大道退界达到15米以上;南侧荷塘街是相对低调的界面,将3栋洋房布置在这一侧,即减少对城市的压迫感,也形成南低北高的规划形象,丰富了天际线,加强建筑错落感,使整个住区的城市形象更活泼鲜明。
两排建筑的布局创造了“边”:充分利用了城市展示面的同时,尽量减少周边的不利影响。

延明城大道一侧地块最西侧的小高层做了一定角度的拧转,使之与南侧荷塘平行;这一调整既打破了北侧一排小高层的单调形象,又模糊了南北两排楼栋的边界,强调围合之势,彻底打破了兵营式布局。
而位于地块最东侧,延中驰路设置的社区底盘中心则是形成围合布局的最后一块拼图,小区内部的主导空间自然产生了,以社区底盘为起点,一条具有充分纵深感,东西向的黄金轴线串起了小区中央花园的各个场景,一路抵达最西侧的1号楼,这是一个完整聚气的小区内共享空间,所有住宅都由这个社区公共空间串起,突出改善用户所喜爱的仪式感——将中心景观轴置于社区的核心。

围合式布局完整了“界”:以中轴为骨,景观内外渗透,营造空间感。这样一来,使得每家每户都可在室内欣赏到社区内匠心打造的花园般近景,真正意义上做到“户户有景,家家赏园”。
03 社区活力引擎
社区底盘正是整个社区生活的引擎,社区底盘是支撑和安装社区建筑、室内、景观及各部件的总成,聚焦围墙内外业主高频流线敏感点的体验,沿着6大流线,锁定重点空间模块,进行品质提升,除了满足日常生活需要,更对接智能时代的社区新需求。
6大流线包括人行归家流线、机动车流线、非机动车流线、快递外卖流线、大件货物/应急流线、垃圾收集转运流线。

社区底盘涉及生活细节的设计。思考源于真实场景,着眼于业主的一个个日常生活细节,充满烟火气和温情。


在社区景观打造上,悦著·九章还做到更多——从归家、社交、公区等方面出发,串联起不同家庭的娱乐、运动、宠物等生活所需,更多维度追求品质居住感。

同频安缦自然奢隐的理念,项目还将外部中央公园、秦淮河生态绿廊等资源与内部规划与建筑融为一体。可谓于繁华深处,筑造一处静谧无界的雅奢居所。

04 东方意蕴与国际时尚的融合
凝固的江山岁月,流动的纸墨烟,是永恒的金陵底色。青瓦白墙、砖雕门楼,南京民居,蕴含着江浙的诗意与典雅,是南京的古韵与基底。设计通过提取南京民居——“青砖黛瓦马头墙、回廊挂落花格窗”的典型特征,诣在寻求独属于南京内里的建筑气质。

▲檐——建筑构成:
提取老建筑“檐”的建筑语汇,飞檐翘脚,灵动舒展,重构于建筑的整体形态

▲墙——建筑构成
提取“马头墙”的建筑语言,层叠屋檐,高低错落,打破呆板的山墙界面
建筑以白灰两色为主调,对应着青瓦白墙;线条框内点缀暖色的金属材质,现代形式组合和暖色金属的运用,呼应了南京民居中“粉墙黛瓦”中的暖色元素,以公建化的建筑语汇,简洁有力的方式叙述着古都今日蓬勃的朝气。

简约而精致的线条勾勒出典雅的现代形体比例关系,而线条的楔形语汇,是从传统建筑中的飞檐寻找倒的灵感,让线条更加的纤薄和轻盈,典雅而精致。
整体横向拉高的飘檐来规整和强化形体关系,以现代的方式来重构南京民居的建筑形式。而飞檐下的形体强调规整有序的经典几何构图关系。

在材料选择上,通过全封闭式的落地玻璃结合全金属保温一体板的运用,结合线条的勾勒,让建筑犹如艺术品般美丽,轻声细语般的叙述江南地域细腻的情感。


高层入口
▲全金属铝板一体板的建筑立面,带来经久不衰的建筑品质

洋房墙身节点

高层墙身节点

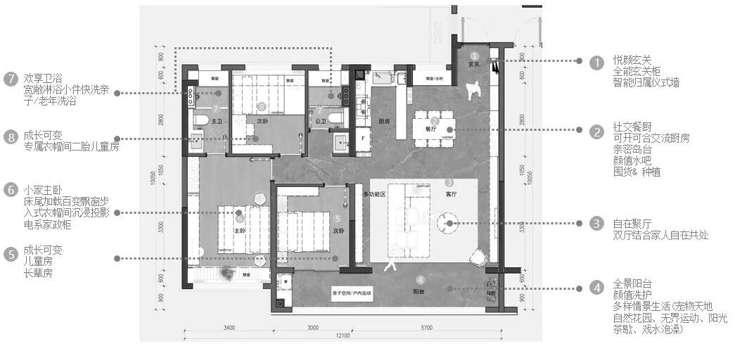
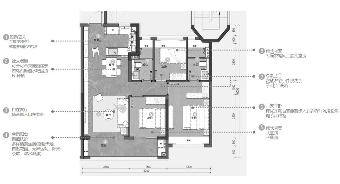
作为南站板块内的低密改善住区,项目的主要产品为三款户型,分别为:建面约97㎡和118㎡的小高层三房户型,以及建面约139㎡的洋房四房户型。
本资料声明:
1.本文为建筑设计技术分析,仅供欣赏学习。
2.本资料为要约邀请,不视为要约,所有政府、政策信息均来源于官方披露信息,具体以实物、政府主管部门批准文件及买卖双方签订的商品房买卖合同约定为准。如有变化恕不另行通知。
3.因编辑需要,文字和图片无必然联系,仅供读者参考;

微信公众号“搜建筑”(ID:sjz9999)
合作、宣传、投稿
联系微信:soujianzhu006

