One Hundred is a residential tower overlooking Forest Park in St. Louis. The tower, Studio Gang’s first project in the city, will rise to over 380 feet and include retail, amenities, parking, and residential apartments with views of the park to the west and the Gateway Arch to the east.
Four-story tiers are stacked over the height of the tower. The facade is angled to create generous outdoor spaces on top of each tier, providing terraces for a quarter of the apartments, as well as shared amenity space for the resident community atop the green roof podium.
Working to enhance the opportunities provided by the site orientation and environmental forces, the building’s leaf-shaped plan and tiered massing maximize its performance, reducing overall energy load and increasing occupant comfort.

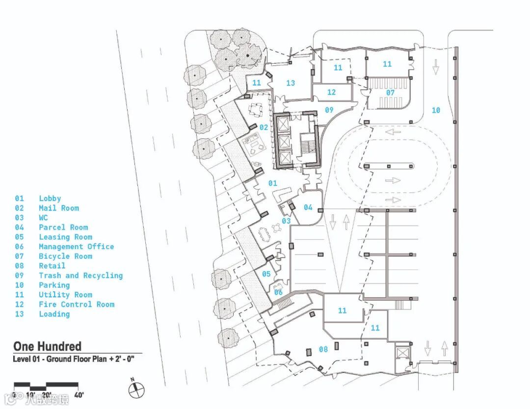
平面图

平面图

平面图

平面图

日照分析图

示意图

项目信息
摄影:Tom Harris, Sam Fentress
本资料声明:
1.本文为建筑设计技术分析,仅供欣赏学习。
2.本资料为要约邀请,不视为要约,所有政府、政策信息均来源于官方披露信息,具体以实物、政府主管部门批准文件及买卖双方签订的商品房买卖合同约定为准。如有变化恕不另行通知。
3.因编辑需要,文字和图片无必然联系,仅供读者参考;
推荐一个
专业的地产+建筑平台
每天都有新内容
扫描二维码关注

微信公众号“搜建筑”(ID:sjz9999)
合作、宣传、投稿
联系微信:soujianzhu006

