田字格建筑
每个孩子都有这样的遐想:乘着气球在天空翱翔,探索遥远的未知。在迪士尼电影《飞屋环游记》中,我们找到了儿时对天空的美好想象,对云端探索的无尽乐趣!
迪士尼电影《飞屋环游记》剧照
我们幻想着云朵的各个表情,一会儿是可以吃的棉花糖,一会儿是变幻的小动物,一会儿是盛开的花朵……充满无穷想象力!
在杭州青山湖科技城,我们打造了一所充满想象力的云谷学堂。
整体动画展示


鸟瞰效果图
我们将杭州临安的山水之云,城西科创大走廊的科技之云,儿童的童话之云,汇聚成了这所云谷学堂!
漂浮云朵- 主入口效果图
校园面向城市的入口形象,宛若漂浮的云朵与若隐若现的山间彩虹。雨后彩虹的美好景象,激发着孩子们的好奇与想象力。
彩虹之环- 中心庭院效果图
彩虹之环空中展厅,漂浮在宛若云朵的教室之间,营造出高可达性的流动空间,促进孩子们多维度的交流与对话!
云谷之门- 食堂及体育馆效果图
体育馆和食堂形成的云谷之门,是教学区和体育区的过渡空间。在风景优美的远山框景下,这里将成为学生最喜爱的空中看台,留下美好的青春记忆。
彩虹之环- 共享平台效果图
校园中部连接各个建筑的彩虹之环,形成无障碍共享平台,使学生在短暂的课间十分钟也有就近交流活动的场所。
漫步云端- 教室走廊效果图
如云朵般自由的教室走廊,给人一种漫步云端的空间感受,鼓励着孩子们走出教室,去交流,去呼吸!
01 为什么把“云”作为设计理念?
设计伊始,我们研究了杭州青山湖科技城的城市表情。
青山湖科技城的城市表情是“生态硅谷,科技新城”,是一座将山水文化与杭州城西科创大走廊文化相融合的新城,生态化、科技感便是这座城市的基本语言。
回应城市:“云”是回应这座城市表情的情感化表达。
临安群山环绕,云雾缭绕,生态优美,而城西科创大走廊的规划又使这座城市增添了一份互联网的科技色彩。
对话儿童:“云”是契合儿童心理的情感化语言
变换的云朵、云间的彩虹、在云中遨游、神秘的云上世界,都是儿童内心深处向往的童话世界。
我们用手中的画笔,捕捉天空中的云和彩虹!
概念设计草图- 山间流云
概念设计草图- 云间彩虹
02 云谷学堂这个设计理念便应运而生了!
设计理念示意图
STEP1:地块呈现为山谷的形态(东西北三侧高,中部与南侧低);
STEP2:云朵状教学用房顺着地块的走势错落分布在东西北三侧,自南向北建筑依次抬高,呈现出“空谷流云”之势;
STEP3:在山谷中引入共享空间“彩虹之环”,将整个校园从横向以及竖向全方位联系起来。
地块高差示意动画
03 我们在校园的各个角落,植入了多个可以激发儿童行为的趣味空间!
趣味空间示意图
整体趣味空间动画
浮云客厅——校园入口设计,迎接城市
浮云客厅动画
校园入口处的铝板弧线雨篷,犹如轻盈的浮云,欢迎着莘莘学子进入校园。
云谷庭院——核心庭院设计,对话天空
云谷庭院动画
进入校园,映入眼帘的便是宽阔的庭院以及天空,带有“天圆地方”的中式底蕴,层层往上的台阶也鼓励着学生与天空对话、畅想未来。
彩虹活力环——核心活动与交流空间设计
彩虹活力环上部动画
彩虹活力环内部动画
彩虹活力环将不同的教学空间、不同的层高联系起来,以其梦幻般的彩色玻璃,营造出一个五彩斑斓、奇思妙想的交流活动空间。
云中书院——教学空间设计,漫步云端
云中书院动画
云中书院动画
如云朵般自由的教室走廊,给人一种漫步云端的空间感受,鼓励着孩子们走出教室,去交流,去呼吸。
云谷之门与山谷运动场——食堂、体育馆设计,空谷回声
云谷之门动画
体育馆与食堂局部相连,共同组成了云谷之门,透过云谷之门,可以遥望天空与远山。在群山的包围间,在开敞的天空下,学生肆意奔跑,挥洒汗水。
04 我们进行了实体模型探讨
实体模型
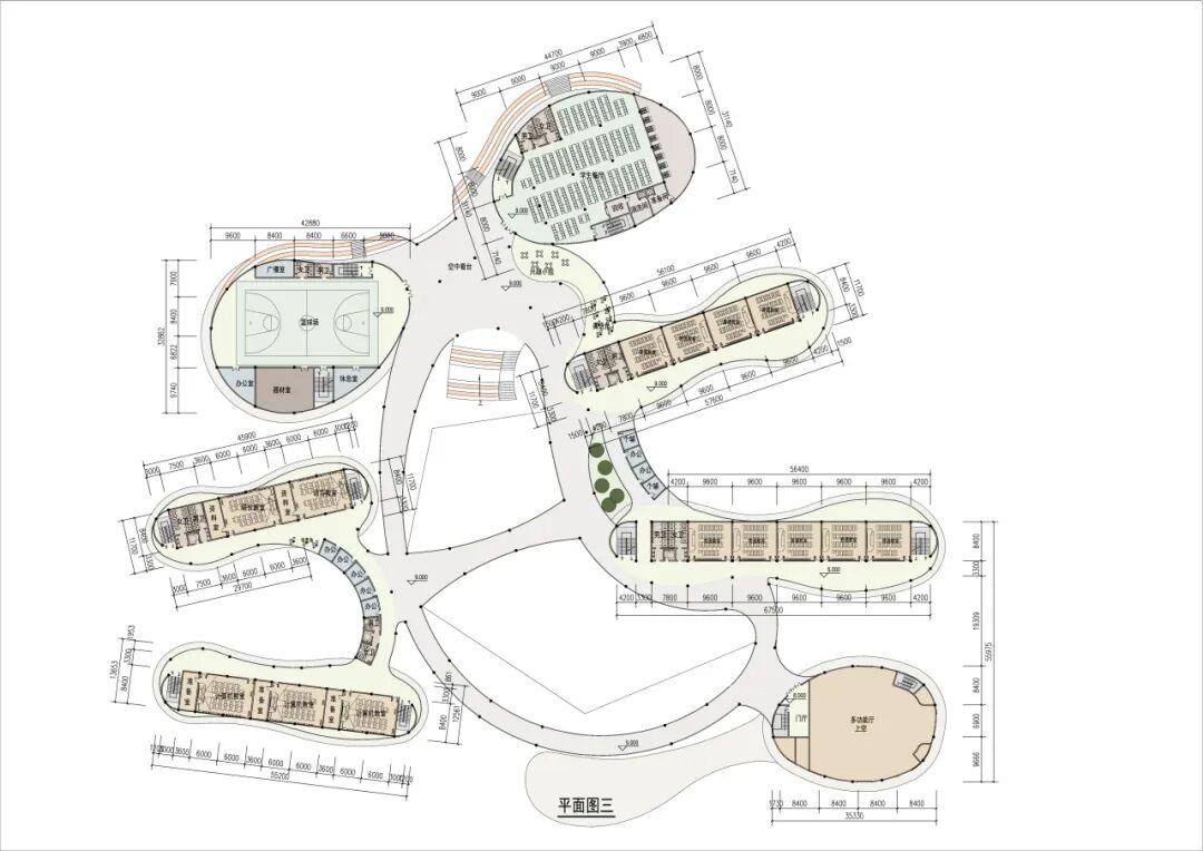
05 技术图纸
项目信息:杭州临安青山湖科技小学
用地面积:约3.8 万平方米
建筑面积:约4.3 万平方米
设计院:杭州余杭建筑设计院
主持设计:王元胜,周超
本资料声明:
1.本文为建筑设计技术分析,仅供欣赏学习。
2.本资料为要约邀请,不视为要约,所有政府、政策信息均来源于官方披露信息,具体以实物、政府主管部门批准文件及买卖双方签订的商品房买卖合同约定为准。如有变化恕不另行通知。
3.因编辑需要,文字和图片无必然联系,仅供读者参考;
推荐一个
专业的地产+建筑平台
每天都有新内容
扫描二维码关注

投稿、合作、宣传

