▲ 更多精品,关注“搜建筑”
UUA

△区位分析 ©UUA

△项目区域模型 ©UUA
养老与幼教跟大型社区配套,是目前大型社区配套的标准模式。博元养老中心就是在这个大的背景下设计,建造,并且运营的。建成后的博元养老中心,不仅为社区居民提供了日间养老服务和养老居住服务,还为城市片区的养老提供了需求,为城市打造了一座高质量的温馨舒适的现代健康养老中心。
△社区配套新典范:博元养老中心 ©UUA
△建筑体块生成过程 ©UUA
△值班室视野最大化 ©UUA
△多维度满足适老化需求 ©UUA
博元养老中心整个建筑采用的比较温暖的外墙涂料,以建筑的层分线,阳台,以及每个养老户单元为构成元素,打造了一个和谐而又有构成感的建筑体量与建筑立面。
△温馨和谐的立面构成 ©UUA
在养老中心外部的两个出口处,两个进入康养中心的门头重点的打造,使得入户空间既有实用的功能,也充满着温馨的仪式感。
△充满温馨仪式感的入户门头 ©UUA
建筑南侧立面的退进式的处理,使得建筑在阳光下光影塑造更为丰富的建筑立面,用简约的材料和丰富的微弱形体退让让阳光参与到建筑的塑造中来。
△阳光下光影丰富的建筑立面 ©UUA
△阳光下光影丰富的建筑立面 ©UUA
△阳光下温馨简介的建筑立面 ©UUA
△阳光下温馨简介的建筑立面 ©UUA
△夜幕下温馨的建筑灯光 ©UUA
△夜幕下温馨的建筑灯光 ©UUA
△室外空间分析 ©UUA
整个建筑呈现L型,建筑北侧围合出了一个与建筑相互咬合的方形庭院。建筑的围合以及庭院内部的连廊小径绿化的打造,使得老人在庭院中的安全感得以保障,同时整个建筑景观的无障碍设施齐备,为老人的出行运动提供了无障碍的保障。
△庭院内部的连廊小径绿化 ©UUA
△L型建筑围合的景观庭院 ©UUA
建筑的外墙呈现出不规则的退台形态,将一系列不同的功能容纳进来,同时为室内和室外创造出更多的视联系,展示出该项目“为有限空间赋予尽可能多的价值”的设计理念。
我们采取层层退台的方式,一是为北侧预留建筑预留了充足的日照条件,以便后续整个社区的激活计划
△层层退台设计 ©UUA
二是为每层建筑都预留出了一个空间适宜的绿化庭院,让老人们体验到一步一景的活力生活
△每一层的绿化庭院 ©UUA
三是减轻了两个山墙面对首层的压迫感,满足容积率的同时,让建筑变得更加的亲和。
△亲和力十足的首层入口 ©UUA
屋顶上人绿化屋顶的打造,有专属的电梯直达,为养老中心的老人打造了一个屋顶的绿化花园,配合绿植与景观,为老人的生活空间扩宽了户外空间的体验与可以培养住户之间的感情,以促进人与人之间的接触和交流。
△屋顶花园——多重户外体验 ©UUA
安康城市气候适宜,四季气温舒适,所以在每户养老单元都有自己的户外阳台,从窗户望出去美丽的景色和城市尽收眼底。阳台的进退阴影关系和立面竖向的木色方通,成为建筑外立面简约的构成关系的要素,同时为阳台产生一定的庇护感。
△南向和西向养老院单元房间 ©UUA
△木色户外阳台 ©UUA
△入口效果图与实景图对比 ©UUA
△立面效果图与实景图对比 ©UUA
△道路人视角度效果图与实景图对比 ©UUA
建筑采用小柱网体系,使得建筑的结构体系造价得以有效的控制。
△结构体系与构造做法分析图 ©UUA
同时建筑外墙采用真石漆涂料,同时通过单元化的养老室内设计,极大降低了不必要的成本,同时标准化的构件,集采成本优势突出,有效降低了非标构件的成本。
△外墙采用真石漆涂料 ©UUA
△首层平面图 ©UUA&周燕珉工作室
△二层平面图 ©UUA&周燕珉工作室
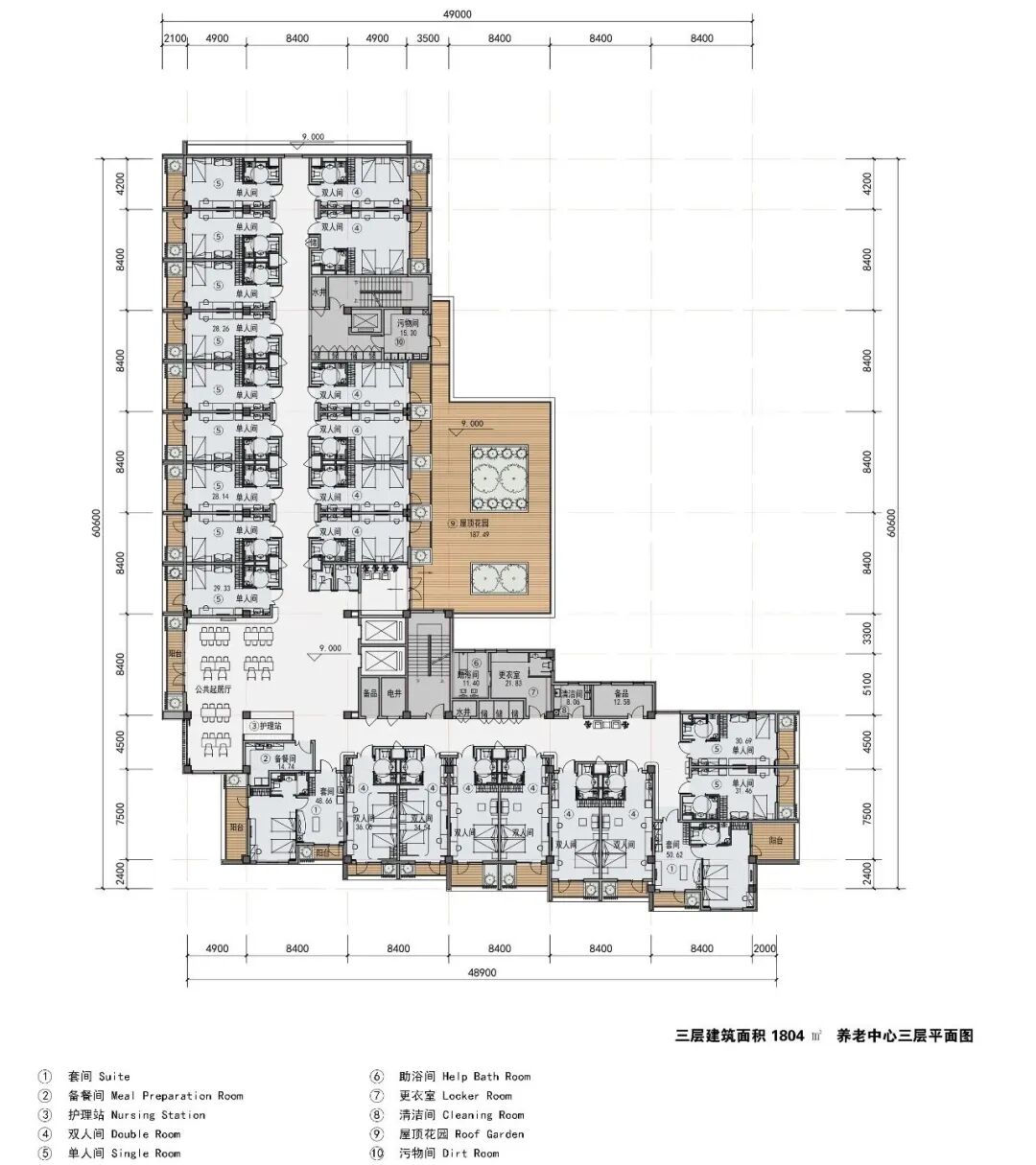
△三层平面图 ©UUA&周燕珉工作室
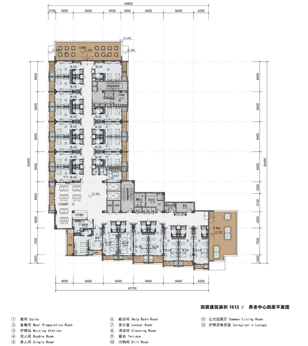
△四层平面图 ©UUA&周燕珉工作室
△五层平面图 ©UUA&周燕珉工作室
△六层平面图 ©UUA&周燕珉工作室
△屋顶平面图 ©UUA&周燕珉工作室

项目信息:
项目名称:博元养老中心设计
项目地址:安康,陕西,中国
设计时间:02/2019-11/2020
项目规模:1,0000 sqm
建筑方案设计: UUA建筑师事务所
主持合伙人:李泳征,李其郅
设计团队:邓亮,姜腾,贺文博,马兴华,方泓博,吕延锋,张艺豪,赵冰,王发璐,迟冰玉
养老顾问:清华大学周燕珉工作室
养老顾问团队:周燕珉 陈星 邱婷
室内设计:北京江河创建建筑装饰设计研究院有限公司
室内设计负责人:丁春亚
景观设计:水石设计,景观事业四部
施工图设计:深圳华颐国际养老设计有限公司
施工图设计团队:李建,杨哥,陈阳,高翼,熊志峰,石有钢,徐明健
建筑摄影:直译建筑 何炼
1.本文为建筑设计技术分析,仅供欣赏学习。
2.本资料为要约邀请,不视为要约,所有政府、政策信息均来源于官方披露信息,具体以实物、政府主管部门批准文件及买卖双方签订的商品房买卖合同约定为准。如有变化恕不另行通知。
3.因编辑需要,文字和图片无必然联系,仅供读者参考;
推荐一个
专业的地产+建筑平台
每天都有新内容
扫描二维码关注

微信公众号“搜建筑”(ID:sjz9999)
合作、宣传、投稿
联系微信:soujianzhu006
搜建筑·矩阵平台
阅读原文:“UUA”更多精品

