▲ 更多精品,关注“材料公社”
随着新型建筑外墙的发展,铝板幕墙干挂立面热度逐渐赶超石材,成为了建筑的又一新宠。
纵观世界地标性建筑,在外立面上都不约而同地选择了铝板幕墙,凭借其高颜值成为了一道道独立的风景线。
之前给大家介绍过其他的幕墙材料:
金属材料:钛锌板——造价、使用范围、工艺和效果!
蜂窝铝板是结合航空工业复合蜂窝板技术而开发的金属复合板产品系列。该产品采用“蜂窝式夹层”结构,即以表面涂覆耐候性极佳的装饰涂层之高强度合金铝板作为面、底板与铝蜂窝芯经高温高压复合制造而成的复合板材。

示意图

实景图
-01-
材料特性
Performance
① 大板面、高平整
无需任何加固措施,蜂窝铝板板面尺寸可达1500*5000mm,并能保持极佳的平整度。
② 重量轻
蜂窝铝板重量仅5~5.5kg/平方米,大大减轻建筑物的承重载荷。
③ 强度高
可承受高强度的压力和剪切力,不易变形,能满足超高层建筑抗风压的要求。
④ 产品定制化
蜂窝铝板在尺寸、形状、漆面和颜色等方面可根据客户的需求量身定做。
⑤ 安装简便
可任意顺序安装、每块墙板可单独拆卸、更换,提高安装维护的灵活性,降低成本。
⑥ 盒式结构
蜂窝铝板为四周包边的盒式结构,具有良好的密闭性,提高了蜂窝铝板的安全性和使用寿命。
⑦ 免焊接、无明钉
蜂窝铝板的基层和面层安装时,采用角码及螺丝连接,免除骨架焊接,且面层安装后现场无明钉,干净整洁。
实景图
-02-
施工工艺
Technic
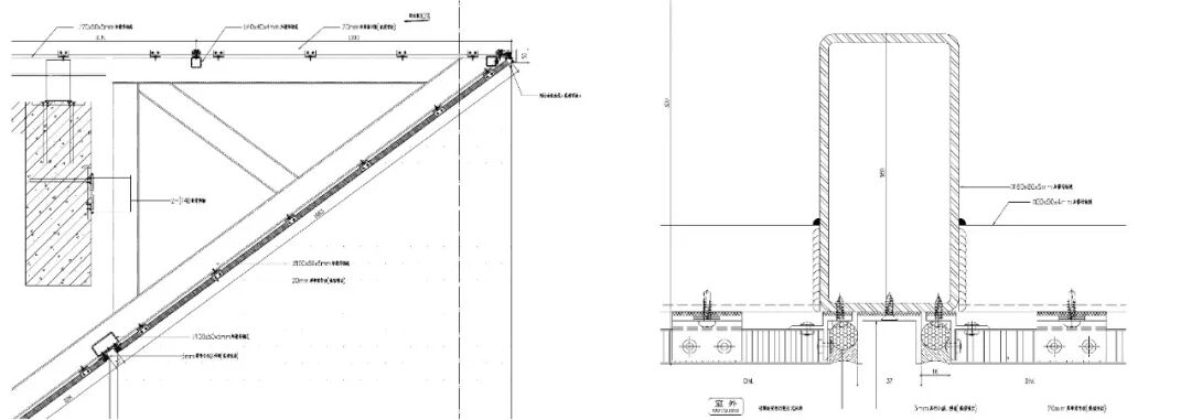
1、墙面蜂窝板施工
测量放线→基层清理→弹龙骨安装线→(基层及龙骨)打(钻)孔→安装膨胀螺栓→固定基层龙骨→钻螺钉孔→安装止滑扣→安装蜂窝板→打胶→加盖封条→验收

示意图
除了干挂外,常见的蜂窝板节点做法就是“打钉式”做法,节点如下所示:
“打胶式”示意图
2、吊顶蜂窝板安装
测量拉线→安装吊杆→安装L30*2镀锌基角钢龙骨→安装蜂窝板专用连接配件→安装蜂窝板→饰面清理→分项检验并验收

示意图
-03-
材料造价
Price
市面上蜂窝铝板价格一般在290-700元之间。(价格仅供参考)
-04-
应用案例
Application case
蜂窝铝板具有重量轻、强度高、刚度好、耐蚀性强、性能稳定等特点,其面板可多样化,如实木、石膏板、防火板、中纤板、天然大理石材等,目前主要用于以下几个方面:建筑幕墙装饰、天花吊顶、家具蜂窝板、隔断、电梯工程、轨道交通。
1、幕墙应用
杭州沁园项目外立面采用了蜂窝铝板与深色欧洲灰玻璃,利用铝型材的细腻勾勒出蜂窝铝板与大面low-e玻璃的通透几何形态。

实景图
深灰的颜色去风格融于环境,低调的铝面效果与高反镜面玻璃则能更好的反馈周边的光暗变化,以不变的形态营造出无穷的遐想和可能,达到境生于象外的艺术效果。

实景图
厦门建发缦云为彰显项目个性,营造丰富的视觉冲击,屋顶采用了异形设计,双曲面的蜂窝铝板,利用密缝拼合技术,打造如双翼般流畅而富有活力的挑檐。
厦门建发缦云效果图
杭源里“超流体”艺术生活馆,作为其概念缩影,圆角曲线的外边缘采用超薄的蜂窝铝板包裹石材肌理的亚克力板,暗藏有LED灯,夜晚透光,大面积超白玻璃幕墙与水环境叠加,强化超流体建筑的反重力感。
其后,经过多轮构造方式比选后,采用后段线条铝板弯折衔接前段弯弧线条的整体开模方式,将两段弯弧段线条焊接打磨,最终呈现平滑连续的线条效果。在施工精度控制上,前段弯弧采用工业精加工方式委托汽车生产厂家定制。
合肥徽创·君泊示范区采用硬挺的铝板线条勾勒出建筑主体框架,7.5m通高镜面玻璃模糊了实体与空间的界限。

实景图 ©曾江河
首层混凝土质感的敦实体量托起悬空之姿的晶莹玻璃体,强烈的虚实对比引起赋予建筑趣味,展现了富有动感又不失现代特性的形体张力。

实景图 ©曾江河
由于东侧二层阳台外的铝板面积较大,因此设计采用蜂窝铝板,配合同色定制“宽缝”,增加了立面的挺括度和精细度。

实景图 ©曾江河

蜂窝铝板纵剖节点蜂窝铝板横剖节点
上海国际财富中心建筑立面以通透的玻璃幕墙与富有层次细节的蜂窝铝板为主,在简单洗练的现代风格中传递出一气呵成的整体感。
实景图 ©Aedas
办公塔楼的主立面在玻璃幕墙外,设有规整有韵律感的建筑立面构件,在达到遮阳效果的同时,创造出富有变化的阴影效果。

实景图 ©Aedas

实景图 ©Aedas
江苏省产业技术研究院内的科研办公建筑通过统一的蜂窝铝板+玻璃幕墙的材料及统一的构造方式形成单体建筑的形式统一。

实景图 ©章鱼见筑
位于中心处的展览会议建筑则通过柱廊与横向铝格栅的处理形成整个项目的视觉中心,从建筑群的统一背景中凸显出来。

实景图 ©章鱼见筑
2、吊顶应用
位于杭州南宋御街的ENSHADOWER门店,室内一层空间去掉了原有的轻质隔断墙体,保留了原建筑的木质结构,并重新打磨上漆。
实景图 ©汪敏杰
设计师在梁位之间用36块蜂窝铝板作为吊顶,灯光、消防和暖通设备都藏于通透的吊顶之上,光线经过漫反射均匀的平铺在展厅中,在现代和传统寻求一种平衡。

实景图 ©汪敏杰
3、隔断应用
该项目是日本九州大学设计学院折纸工程实验室进行的一次室内设计实践,旨在利用新开发的“折纸型”铝制蜂窝板制作日式滑动门,并在室内搭建一个封闭的小型数字制造车间。

实景图 ©Yashiro Photo Office
该“折纸型”蜂窝板采用了铝作为材料,铝片表面具有模数化的接缝与折痕,当铝片按照预设的痕迹折叠起来时,材料表面三维的蜂窝形状就形成了。通过调整折纸的几何形状,还可以将铝板塑造出复杂的形状,如斜面、锥形或弯曲等形态。

实景图 ©Yashiro Photo Office
4、装置应用
上海延平路上的in the Park门店内,轻盈且坚硬的环形置物架轻盈由蜂窝铝板制成,表面附上木皮和石漆,增添自然与工业的呼应。

实景图 ©Wen Studio

实景图 ©Wen Studio
所有的材料及陈列家具,都在讲述自然和工业的关系,也强调着在公园中”玩儿“的概念。

材料分析图 ©AIM 恺慕建筑设计
结语:
总的来说,蜂窝铝板满足审美要求的同时,它还具有环保、安全、无污染、快装等优点,可以满足公众的多样化需求,而未来的市场这类需求将持续被放大,所以蜂窝铝板拥有非常宽广的前景。
项目了解材料
材料厂家合作
扫描二维码 加好友联系
▼

电话:181 3265 7351
延伸阅读:(点击蓝字查看)
2.本资料为要约邀请,不视为要约,所有政府、政策信息均来源于官方披露信息,具体以实物、政府主管部门批准文件及买卖双方签订的商品房买卖合同约定为准。如有变化恕不另行通知。
推荐一个
专业的地产+建筑平台
每天都有新内容
扫描二维码关注

微信公众号“搜建筑”(ID:sjz9999)
合作、宣传、投稿
联系微信:soujianzhu006




