▲ 更多精品,关注“搜建筑”
赛拉维设计
在家之外我们是自由无畏的猎豹,回到家中,
艺术相伴是让心渐渐安静下来的生活方式。
设计师以生活艺术家为视角,以灵动豹影为创意源点,让原本只是关注居住功能的空间焕发出新的生机活力,造一处艺术个性的舒适居所。对于自然的营造,并不具体到某个形体物件,而是通过一种流动的气韵予以勾连生成。客餐厅连贯又互相独立,互不干扰,相互串联而富层次感,视觉通透而私密。遍布角落的艺术品与生活器物,使居所更像展示个人审美与趣味的自家艺廊。日落时分,温柔的光线与室内的器物交流碰撞,与艺术举杯。
餐厅是最具仪式感的存在。在陈设的营造上,设计师把一切浮于表象的堆砌剔除得干净利落,简化成最基本的形式,简单,舒适。理石的自然纹理与一抹香槟色在极简的基调中变成视觉的核心,点染一个具有成熟气质与品味的质感空间。
开放式厨房里聚拢的烟火气,让我们看到的是一个真实、鲜活、充满了人居温度的居家空间。
主人房中性的设色,软装将空间的艺术气氛延展到灯具、装饰及布艺家居中,以及缎面、绒面、皮质等材质的具象演绎,构成独具大宅风范的空间基底,深藏着一个静谧香梦的内部。融现代化的生活方式与艺术的生活气息于一室。
次卧墨灰与驼色相搭的克制设色,构建一处雅谧、低调的场域气质。艺术抽象的装饰画、玉石台灯,在一脉静致的设计语汇中,成为空间视觉的点睛,以自然的生动形式,搭载极具力量感的内在意蕴。
粉色和牛油果色巧妙结合,空间舒缓而不甜腻,淡粉的色彩亮度和饱和度尽显优雅,浅白硬装做的壁纸+米黄色的硬包铺满做的背景墙十分巧妙,即保持空间的俏皮又提高了舒适度。
客厅干净利落的空间以方正结构呈现,素雅的基调上融入玉石,增添浪漫的东方意境。
设计师用超乎言语的形式记录着居者的生活与情绪,三五好友于此品茶闲话,构筑舒适奢雅的都会写意空间。客餐厅一体的通透布局,合理化了居者行动路线,整面落地窗采光,让空间在充满光影生命力的同时,将窗外无尽舒朗的景致引入人心。
柔和雅致的东方叙事与现代性的线条相互交融和消解,进入理性、线性和归一的境界,夹杂磅磺气势,开阔明澈,低调中有落落大方的气度,清朗中不乏优雅品质的触感。
设计师以格调的灰棕色作为餐厅的主色调,餐厅布置多以大理石为主,细腻简雅中流淌着对于生活品质的无限追求。简洁而流畅的线条穿梭在不同材质的块面之间,于内敛雅奢中勾勒出生活质感,启发居者对于东方美学及生活方式的思考。
舒缓的配色随着空间流转,从容地过渡到卧室空间,于此,东方的艺术情调被充分地发挥出来。以木饰面为肌底的空间,予人安谧的视觉享受,奢华的玉石壁灯装点其上,东方气韵蔓延滋长,日常生活情境与审美精神在同一范畴交融。
舒缓的配色随着空间流转,从容地过渡到卧室空间,于此,东方的艺术情调被充分地发挥出来。以木饰面为肌底的空间,予人安谧的视觉享受,奢华的玉石壁灯装点其上,东方气韵蔓延滋长,日常生活情境与审美精神在同一范畴交融。
以击剑为主题的男孩房能激发男孩的天分,用床头的壁纸来显现这个空间的主题,带领男孩寻找属于自己的兴趣与激情,意在让男孩享受这惬意与平静的同时不忘初心,去寻找和追求自己的理想和兴趣,让心中充满热爱。
设计过程分享
Design Process Sharing
1. Plane layout
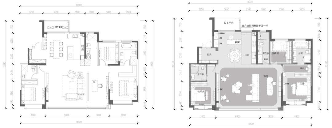
平面布局
多次对比调整后,留下的平面布局规划
155户型平面布局
175户型平面布局
2. Floor plan analysis
户型分析
3. Material Design
物料设计,五金筛选
软装物料,灯光选型
Stone selection
石材选样
4. On-Site Assessment
现场评估,复盘
5. Data Analysis
数据分析
项目总结
1. About the interior
关于室内
考虑展示效果,餐厅上方由原来的平顶调整为方型灯槽,增加了灯光氛围以及入户的视觉感受。
项目前期,还是希望能在这个户型上做一些创新,整体的调性以黑白灰为主,墨绿色点缀,最后在考虑落地的稳定性上,软装调性整体进行了调整,成为了一个小遗憾。
2. About soft furnishings
关于软装
① 175书房设计前期家具欠缺考虑,书柜缺少灯光,再夜晚时分书柜照度不够,对空间有少许影响。
②天花吊灯应多考虑和硬装灯具的关系,悬挂时软装灯具和硬装灯具关系交错有些许影响,天花点位如能统一效果会更好。
项目信息 Project Information
项目名称 | 城投水西 · 东方天宸
委托单位 | 天津城产发展有限公司
业主团队 | 刘洋 刘淼 刘志龙 张丽
项目地址 | 天津
硬装单位 | 赛拉维设计CLV.DESIGN
软装单位 | 美好生活
总设计师 | 王少青
设计主创 | 伍世洪 董皓翔 杨贵钧 朱心淇
设计团队 | 陈锦文 伍焯锋 王乐禹 朱敏 丁珂
竣工时间 | 2023年5月
项目摄影 | 影沐摄影工作室
本资料声明:
1.本文为建筑设计技术分析,仅供欣赏学习。
2.本资料为要约邀请,不视为要约,所有政府、政策信息均来源于官方披露信息,具体以实物、政府主管部门批准文件及买卖双方签订的商品房买卖合同约定为准。如有变化恕不另行通知。
3.因编辑需要,文字和图片无必然联系,仅供读者参考;

微信公众号“搜建筑”(ID:sjz9999)
合作、宣传、投稿
联系微信:soujianzhu006
搜建筑·矩阵平台
阅读原文:“赛拉维设计”更多精品

