▲ 更多精品,关注“搜建筑”

The newly opened Event Centre Satama is located in Kantasatama, the oldest port of Kotka, just a couple of steps from the impressive Maritime Centre Vellamo, which has been standing in the port area already for 15 years. The events center shares its lot with the new campus building of the South-Eastern Finland University of Applied Sciences, currently under construction, and a future hotel.

This trio of new buildings will aid in strengthening both the visual and the functional connection between the port and the city center. Event Centre Satama offers an inviting location for a multitude of cultural, sports, and business events. ALA Architects’ design work focuses on combining fascinating architecture with functionality and ambitious environmental goals. The building’s architectural identity is informed by the context and the project goals.

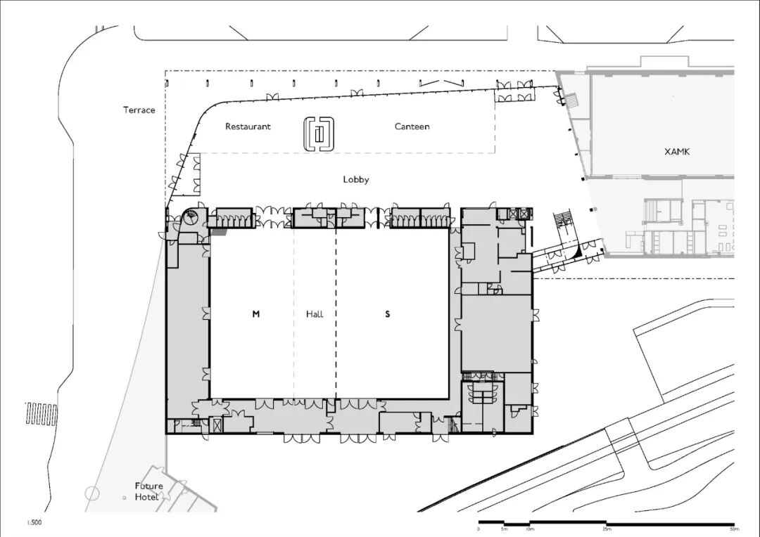
The events center is located on the border of the open port area and the existing urban grid of the city center. The new and the old urban structures interlink on the cusp of the newly developed site. The old port warehouses, shipping containers, and wooden ships act as visual cues for the design and result in an expressive, yet soft and subdued building. The events center’s foyer is an indoor public space that will eventually connect the three new buildings on the site. The space is intended to be shared by these buildings’ users. The events center’s restaurant, located in the foyer, will serve a double function as a student cafeteria and a restaurant open into the evening hours.

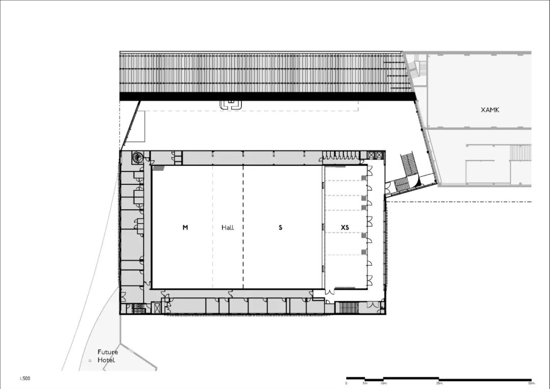
The building’s meeting facilities and hall space will also benefit the entire complex. The structure consists of only two main parts: a large rectangular hall volume and a hanging roof peeling away from the hall, thus creating a foyer underneath. Both the hall and the roof are solid wood, weatherproofed with zinc cladding. The hanging roof is supported by curved glulam beams fully in tension.

The curve of the roof is structurally optimized as to allow for as thin beams as possible while keeping the foyer free of columns. The acoustically dampened black hall can be almost endlessly modified for different uses with movable partition walls, retractable seating, curtains, and lighting. The wooden modulations on the walls visualize the possible variations in seating layouts. Support facilities line the hall on three sides. The window openings of these facilities are shaded by zinc fins.

The operational concept of Event Centre Satama is based on space rental. The flexibility and functionality of the facilities have therefore been some of the key aspects of the design. The large, 2-story hall space can be divided into six different configurations for audiences of 450 to 3,200 people. The upper level of the hall can be closed off and further divided into five smaller meeting rooms. The facilities are designed to allow for an easy set-up of the event organizers’ own AV equipment. Event Center Satama has been designed and built according to the BREEAM Very Good sustainability criteria. The material selections emphasize small carbon footprint, durability, maintainability, and recyclability.

项目图纸
剖面图
建筑师:ALA Architects
地点:芬兰
面积:7700 m²
年份:2023
本资料声明:
1.本文为建筑设计技术分析,仅供欣赏学习。
2.本资料为要约邀请,不视为要约,所有政府、政策信息均来源于官方披露信息,具体以实物、政府主管部门批准文件及买卖双方签订的商品房买卖合同约定为准。如有变化恕不另行通知。
3.因编辑需要,文字和图片无必然联系,仅供读者参考;

微信公众号“搜建筑”(ID:sjz9999)
合作、宣传、投稿
联系微信:soujianzhu006

