▲ 更多精品,关注“搜建筑”












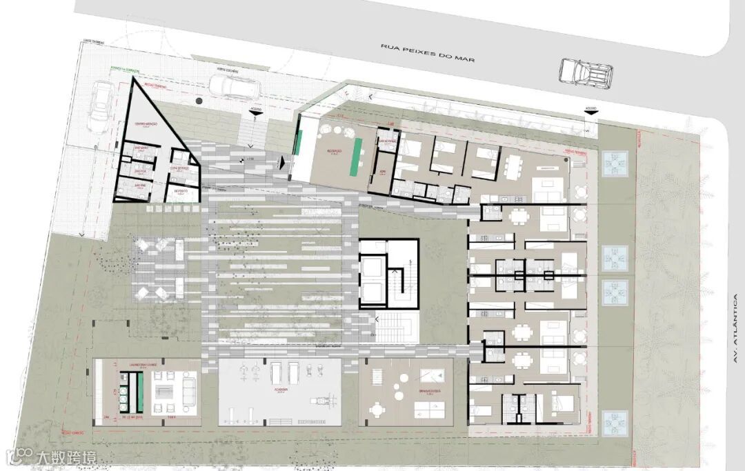
平面图

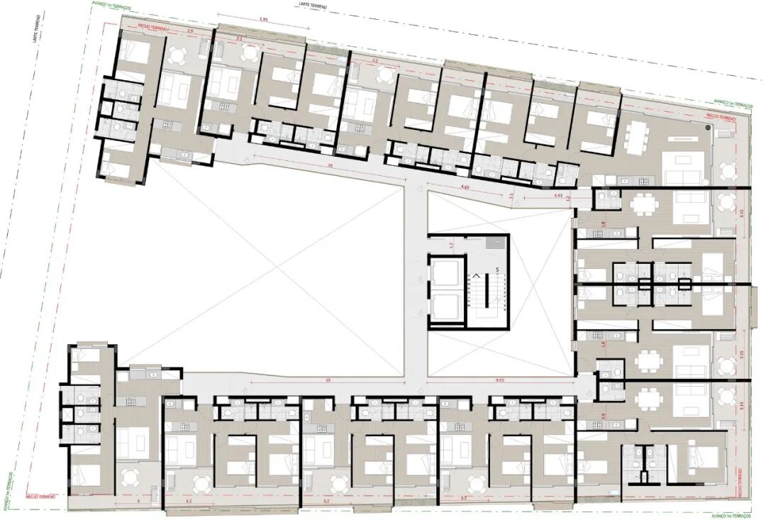
平面图

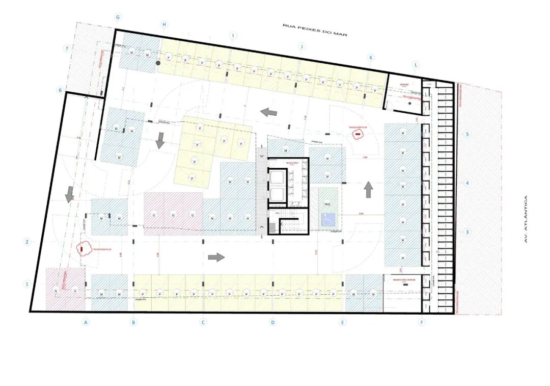
平面图

平面图

平面图

剖面图

剖面图

示意图

示意图

示意图

示意图

示意图

示意图

示意图

示意图

示意图

项目信息
建筑师:Perkins&Will
地点:巴西
面积:5900 m²
年份:2023
本资料声明:
1.本文为建筑设计技术分析,仅供欣赏学习。
2.本资料为要约邀请,不视为要约,所有政府、政策信息均来源于官方披露信息,具体以实物、政府主管部门批准文件及买卖双方签订的商品房买卖合同约定为准。如有变化恕不另行通知。
3.因编辑需要,文字和图片无必然联系,仅供读者参考;
推荐一个
专业的地产+建筑平台
每天都有新内容
扫描二维码关注
微信公众号“搜建筑”(ID:sjz9999)
合作、宣传、投稿
联系微信:soujianzhu006



