▲ 更多精品,关注“搜建筑”

▲侧立面
项目位于上海闵行莘庄工业区,业主均胜集团作为一家有德系背景的企业,为彰显企业文化特色,选择在总部经济组团的主轴上,建造其位于上海的办公总部。
这也就要求我们在建筑高度有限(高度小于60米)的情况下,塑造一个具有高度识别性且简洁端庄的建筑形象。

▲沿河立面

▲正立面
我们将具有开放属性的功能放置在裙楼区,将独立性强的办公区放置于塔楼部分。
首层,以架空灰空间及入口空间为主;二三层,则布置大空间---会议区和员工餐饮区;四五层,布置相对私密的客房区;六至十四层塔楼区,则是办公空间,员工可漫步于露台之上,体验高效、舒适的研发环境。
We set the functions with open attributes in the podium building area and the office area with high independence needs in the tower part. The first floor is mainly composed of elevated gray space and entrance space. Large spaces are arranged for conference areas and staff dining areas, on the second and third floors; On the fourth and fifth floors, relatively private guest room areas are arranged; While, on the sixth to fourteenth-floor tower areas, It is an office space where employees can stroll on the terrace and experience efficient and comfortable research and development environment.

▲屋顶花园

▲细节图
空间处理上,我们希望针对不同的功能设置对应的空间体验。
我们将首层进行大面积架空处理,落客区则围绕中央庭院景观布置;裙房区,通过体块的穿插,形成错叠式的屋顶露台;塔楼区各层均设置水平向通廊平台,为员工提供休息交流的互动场所。

▲水平延伸的线条
景观处理上,通过引入立体绿化、种植屋面和庭院绿化等方式,将基地内研发园区与自然结合起来,形成绿色、健康的研发空间,打造复合型生态办公楼。
When it comes to landscape, through three-dimensional greening, planting roofs, and courtyard greening, we immerse R & D park with nature to form a green and healthy R&D space so as to create an ecologically compound office building.

▲首层架空空间

▲围绕庭院的连廊
本案更加强调横向线条,以突出平静典雅的建筑气质。
架空层以柱廊和玻璃为主,强调通透感;裙房公共区采用白色金属网板材料,形成朦胧轻盈的视觉感受,增加区域的休闲舒适感;双塔楼区域强调办公的高效感,以浅色铝板材料来塑造硬朗明快的水平线条。由此,整体形成了简洁纯净、端庄雅致的建筑形象
This case highlights horizontal lines to demonstrate its calm and elegance. The elevated ground floor is mainly colonnade and glass, which emphasizes the sense of transparency; the public podium area uses white metal mesh material to deliver a hazy and light visual experience, which increases the leisure and comfort of the area; the double tower area emphasizes the efficiency of the office, with light colors aluminum plate material to create stiff and bright horizontal lines. As a result, the whole building presents a concise, pure, sophisticated, and elegant architectural image.

▲沿街立面

▲中心庭院仰视
在项目建成后,我们希望它不仅仅是满足用户的办公研发等的物质需求,而是为工作的人们提供一种开放、包容、互动、创新的精神场所。

▲首层近景

▲首层近景

▲中庭

▲中心庭院

▲中心庭院

▲金属编织网细节图

▲材料色彩对比

▲架空层近景

地库平面图

首层平面图

二层平面图

三层平面图

四层平面图

五层平面图

标准层平面图

东立面图

西立面图

南立面图

北立面图

A-A剖面图

B-B剖面图

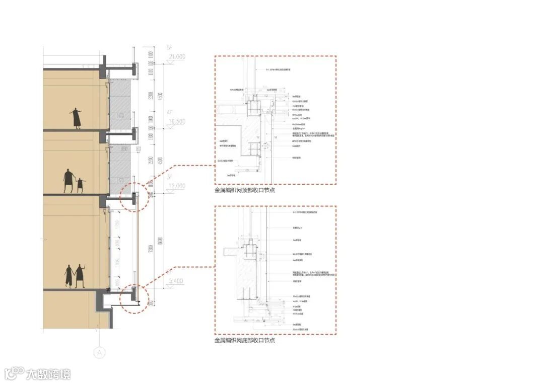
金属编织网
项目信息:
项目名称:均胜集团上海总部
建筑设计: DC国际
面积: 48522 m²
主创建筑师: 崔哲
设计团队: 崔哲、李明基、黄一苇、耿海
委托方: 均胜集团
地点: 中国上海
摄影师: 寻美影视
▼ 更多精品·点击关注
本资料声明:
1.本文为建筑设计技术分析,仅供欣赏学习。
2.本资料为要约邀请,不视为要约,所有政府、政策信息均来源于官方披露信息,具体以实物、政府主管部门批准文件及买卖双方签订的商品房买卖合同约定为准。如有变化恕不另行通知。
3.因编辑需要,文字和图片无必然联系,仅供读者参考;
推荐一个
专业的地产+建筑平台
每天都有新内容
扫描二维码关注
微信公众号“搜建筑”(ID:sjz9999)
合作、宣传、投稿
联系微信:soujianzhu006



