上海三林懿德社区文体中心
“镶嵌”在社区当中的一站式“体育+”公园
上海三林基地是上海市2008年首批启动的大型居住社区保障性住房基地,位于浦东新区三林功能区外环线以外区域,是完善保障性住房建设体系的重要工程。
作为三林基地首期启动的17个公建配套项目之一,上海三林懿德社区文体中心是三益全过程主持设计的公共文体项目,项目旨在满足社区居民在物质生活水平提高后日益增长的社会精神文化需求,为基地周边居民创造一个丰富多彩的“体育+”社区公园。
Part.01
“镶嵌”在社区当中的文体中心
项目位于三林基地内懿行路东侧,地块东、南、北三面被保障房包围,仅西侧有一个不到150米的临街界面,且项目用地形状不规则,呈“指状”嵌入周边住宅用地,边界十分曲折。
△项目用地
△项目鸟瞰
在局限的用地内,如何才能充分利用场地空间,使建筑满足使用要求的同时拥有好看的造型?如何规划内部功能与动线,置入尽可能丰富的文化体育活动设施,同时最大程度降低对周边居民的干扰?三益的建筑师设计了一套刚柔并济、动静皆宜的方案。
△总平面图
△项目俯瞰
一动一静
设计根据地形和实际开发要求,在空间形态上引入一条斜向的轴线把文化和体育功能分开,将体育中心与文化中心以两栋独立的单体建筑呈现,代表“动”的体育中心设置在西侧临街的热闹一侧,代表“静”的文化中心则布局在基地深处,毗邻居民区,形成了西“闹”东“静”的格局,将整个用地对周边住宅的影响减少到最小,同时利于未来两个功能区独立运行。
△方案生成图解
△体育中心设置在西侧临街的热闹一侧
△文化中心毗邻居民区布置在基地内部
一刚一柔
基地不规则,建筑却太“规矩”,反而不协调,因此建筑师根据基地形状和建筑功能需求,在建筑形态中运用矩形与圆形的搭配,将西侧体育中心设计为相对硬朗的、完整的立方体造型,东侧文化中心则采用柔和的、类椭圆的造型,呈现出一刚一柔的设计风格。
△"硬朗"的体育中心
△“柔和”的文化中心
Part.02
“体育+”社区公园
本次项目设计强调建筑与人与自然三者和谐统一,通过张弛有度的规划结构,舒展延伸的自然环境,以及复合多元的功能设施,构建更具包容性和公共性的文化体育聚落,为居民提供一个活力、健康、时尚的文化体育休闲场所,提升动迁安置社区的品质感。
△设计分析图
△项目鸟瞰
张弛有度的空间体验
西侧的体育中心和东侧的文化中心,契合项目的场地环境形成了一刚一柔的建筑空间形态,两个功能区自成系统的同时,建筑师设计了一个外部空中廊道,串联起两个功能区块。并结合空中连廊,设计了一条立体塑胶跑道,地面和连廊相结合,形成立体化的健康悦跑系统,满足周边人群慢跑和健身需求。
△两个功能区通过空中连廊串联起来
△立体化的健康悦跑系统
舒展延伸的自然环境
设计引入立体绿化,将垂直交通的联系空间,屋顶空间、场地空间等均利用起来,打造出一个多层次,立体化的绿化空间。同时结合用地红线及室外活动场地设置多层次的绿化,减小体育活动噪声对居民的干扰。整体上营造出如公园一般的静谧、宜人的环境空间,还给周边居民一个处处是绿,处处是自然的交往空间。
△屋顶绿化和垂直交通绿化
△舒展延伸的绿化空间
复合多元的功能设施
作为区域首期启动的配套项目之一,上海三林懿德社区文体中心集文化展览、体育活动、教育培训、休闲娱乐和配套服务等多功能于一体。
△项目集多种功能和配套服务于一体
此外建筑师还利用室外空间,植入了众多创意活动场地。设计结合体育中心屋顶,未来规划了滑板公园及攀岩墙,提供一个给儿童、青年人的极限运动场地,同时在体育中心东侧场地,未来规划了五人足球场和门球场的活动场所,让热爱运动的人士在球场上尽情挥汗,也为社区活力注入新生命。
△未来规划中的滑板公园
△滑板公园意向图 图片来源网络
△体育中心东侧场地未来规划了五人足球场和门球场
Part.03
设计创意的精细化落地
上海三林懿德社区文体中心采用现代设计手法,通过舒展的造型、富有变化的立面,搭配真石漆、高透玻璃、铝合金杆件等材料,营造出有特色、有变化、有张力的建筑形象。其中文化中心的异形造型、立体绿化等,也对后续的深化设计及建造实施增加了不少难度。
△文化中心细部
三维曲面外表皮
文化中心外立面采用金属装饰构件,通过排列组合围合成不规则的三维曲面,因此每根黄色、红色装饰构件都有独一无二的高度尺寸。
△金属装饰构件围合成三维曲面
△外表皮三维示意图
建筑师采用REVIT建立三维曲面的模型,输入整圈曲面构件的间距定位、顶部和底部定位等参数信息,并确定细部构造处理方式,最后整理输出需要的内容:每根装饰构件的详细数据、平面和透视立面的CAD图纸、SU模型等,再进行后续二维平立面施工图的设计深化,从而保证了最终的设计效果。
△文化中心日景
斜面曲线屋顶绿化
项目结合建筑屋面、垂直交通空间等设计了多层次的立体绿化,其中由于文化中心的曲线屋顶是倾斜的,因此如何解决排水成为了棘手的问题,经过反复推敲计算,建筑师在倾斜面上围绕着曲线屋面设计了一圈同样倾斜的内天沟和一定数量的雨水口,保证了日常维护的浇灌水和雨水的排水需求。
△文化中心剖面图
△屋顶排水天沟节点示意图
△文化中心屋顶绿化
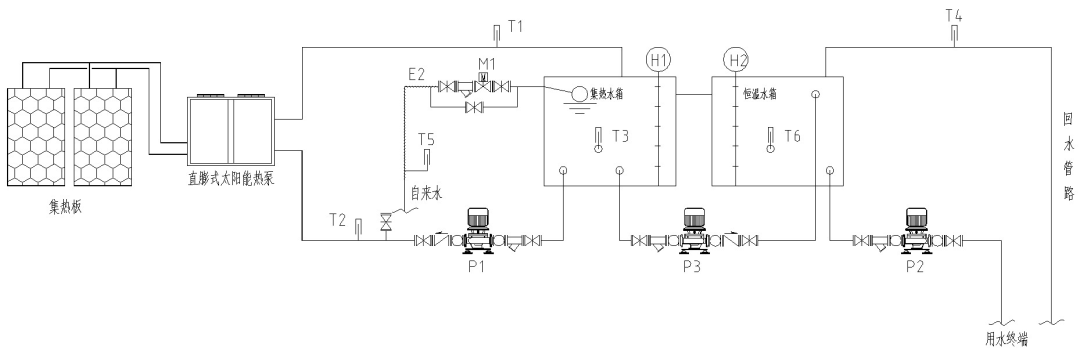
直膨式太阳能热泵
体育中心配置了热水洗浴设施,设计选用了直膨式太阳能热泵系统,该热泵系统蒸发器里的制冷剂直接吸收太阳能热,蒸发器和太阳能集热器是同一个换热器,能充分利用太阳能,同时可以弥补传统太阳能热水器在冬季或晚上供热不足的缺陷,实现更高的节能效率和更低的日常运行费用。
△直膨式太阳能热泵系统示意图
△体育中心屋顶配置了直膨式太阳能热泵系统
Part.04
结语
在后疫情时代,社区功能的重要性愈发凸显,上海三林懿德社区文体中心的建设不仅提供丰富多彩的体育文化活动,还为社区居民提供了无限可能的可变户外空间,提升了社区综合体验感。我们相信这种一站式解决社区复合功能需求,构建具有包容性和公共性的文化聚落的模式,将会引领城市发展和社区建设,成为未来社区发展的推动力。
△项目实景
项目图纸
△体育中心南立面图
△体育中心北立面图
△文化中心东立面图
△文化中心西立面图
△文化中心南北立面图
△体育中心一层平面图
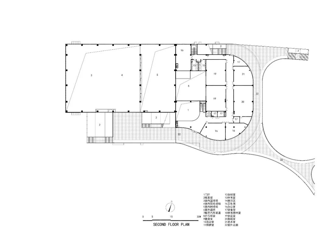
△体育中心二层平面图
△文化中心一、二层平面图
项目信息
项目名称:上海三林懿德社区文化体育中心(暂命名)
项目类型:文体中心
项目地址:上海浦东新区三林镇懿行路981号
基地面积:29739.8㎡
建筑面积:16122.16㎡
容积率:0.4
设计时间:2010.05-2019.08
建造时间:2019.12-2023.10
建设单位:上海市住宅建设发展中心
方案及施工图设计:上海三益建筑设计有限公司
方案负责人:房志腾
施工图设计负责人:张敏
合作单位
景观设计:上海农工商绿化有限公司
施工单位:上海建工五建集团有限公司
建筑摄影:TRACEIMAGE 如是影像
本资料声明:
1.本文为建筑设计技术分析,仅供欣赏学习。
2.本资料为要约邀请,不视为要约,所有政府、政策信息均来源于官方披露信息,具体以实物、政府主管部门批准文件及买卖双方签订的商品房买卖合同约定为准。如有变化恕不另行通知。
3.因编辑需要,文字和图片无必然联系,仅供读者参考;
推荐一个
专业的地产+建筑平台
每天都有新内容
扫描二维码关注
微信公众号“搜建筑”(ID:sjz9999)
合作、宣传、投稿
联系微信:soujianzhu006
搜建筑·矩阵平台
阅读原文:“三益中国”更多精品



