▲ 更多精品,关注“搜建筑”
这两年四房产品占据市场幅度越来越大,但这期我们要说的是同样受欢迎的大三房户型,大三房作为高端项目的标配,其户型设计一直是房企们精心研发的对象。
不少房企发布了三房户型,虽然大部分户型中规中矩,但也有些产品不乏亮点。那么,他们在三房户型有哪些新思路和新尝试?
在满足了丰富的功能性的同时,大三房拥有足够的空间考虑舒适度与多元化,搜建筑结合案例来帮大家做个总结梳理。
大三房户型为120㎡以上产品,按面积段细分为以下几类,其突出的市场主流亮点为:
150㎡以上三房户型:方、边厅、中西厨、全能社交厅、双套房设计、一层一户设计等。
120-130㎡三房户型
120-130㎡面积段的大三房户型市面上数量是最多的,面宽很大,基本能做到四开间,还能保证三房户型基本的舒适度,同时实现双联阳台、带储物玄关、或通过多阳台、飘窗等方式实现宽敞的空间与视线。
① 动静分区
比如重庆首创·禧瑞山河建筑面积约129㎡3房2厅2卫户型,非常明显的动静分区,在动区的活动保持的基础,又能让静区能够保持一定的私密性,减少彼此之间的干扰。

整个动区做了一体化设计,进入室内一目了然,南北双阳台十分通透,约6.1米大宽厅开拓出一间开放式书房。

摄影:三棱镜
杭州中海·河映云集建筑面积约128㎡3房2厅2卫户型,也是明显的动静分区,餐、厨、百变空间、阳台、客厅联动的家庭社交空间,近1/2的户内公共面积,强化生活场景的社交活动力。


② 尽可能增加客厅面宽,开拓出多功能区
约5.7米横厅
天津中海·左岸源境建筑面积约125㎡3房2厅2卫洋房户型,客厅面宽约5.7米,LDKB一体化的超大公共活动空间,空间尺度很舒适。
充分满足不同家庭对空间的需求,可随心拓展不同功能区,设计令空间利用率大大提升,减少了纯过道空间。

天津中海·左岸源境建筑面积约125㎡户型
约6米横厅
重庆香港置地启元建筑面积约128㎡3房2厅2卫设计,约6米横厅空间可拓展多功能区,根据家庭需求任意规划,开放式阅读区、儿童游乐区、SOHO角、影音游戏空间、阳光花房…...

重庆香港置地启元建筑面积约128㎡户型

样板间实景图
约6.4米横厅
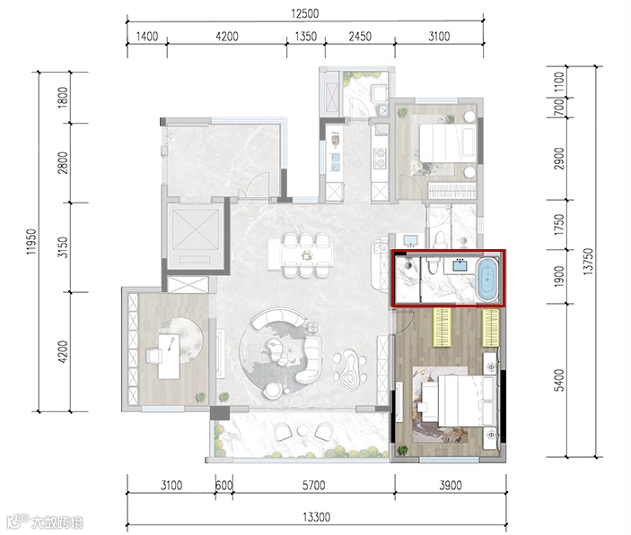
昆明中国中铁·诺德山海春风建筑面积约125㎡3房2厅2卫户型,约6.4米横厅不仅可以做各种多功能区,还能单独作为一个房间来使用。

昆明中国中铁·诺德山海春风建筑面积约125㎡户型
③ 双联阳台、南北双阳台
郑州华侨城建筑面积约120㎡3房2厅2卫户型,开敞的双联阳台设计,主流开发商都选择了南向做双阳台,不管是对阳台的观感,还是南向次卧的采光都有一定的提升。

郑州华侨城建筑面积约120㎡户型

样板间实景图
而南北双阳台形式基本就一种:客厅+餐厅/厨房位置设阳台,比如下面这个户型:郑州金地名悦建筑面积约126㎡户型空间通透,让客餐厅共享南北向阳光,在有限的面积里,尽可能让视线拓展开,居家更舒适。

下面昆明龙湖·山海原著建筑面积约122㎡户型做了三联阳台设计,其采光和通风效果更佳。

昆明龙湖·山海原著建筑面积约122㎡户型

样板间实景图
④ 合理设计飘窗
比如武汉金科·桃湖美镇建筑面积约120㎡三房两厅两卫户型:

武汉金科·桃湖美镇建筑面积约120㎡户型
南向三开间通透采光,双联阳台、南北双阳台,采光通风很好,不仅卧室均带飘窗或阳台,卫生间和厨房也带飘窗,格局方正,空间宽敞。

样板间实景图
天津中海·左岸源境建筑面积约125㎡3房2厅2卫洋房户型,设计师非常合理地设计飘窗。

配上软垫,相当于给南向卧室和客厅(部分户型)额外配置了一部沙发。既能拓展室内空间感,又有很强的实用性。
⑤ 归家动线做出特色
郑州保利上城建筑面积约127㎡户型,双重归家动线,打造的实用主义的洄游户型。

130-150㎡三房户型
这个面积段的户型增加约20㎡,除去以上我们分析120-130㎡户型的特点之外(以上特点在此面积段不过多解析),LDKB大横厅成为了此类户型的标配,同时会做豪华的主卧套,次卧的储物空间更加充足,很多户型还会有独立的储物间。
① LDKB横厅设计,丰富室内活动
郑州雅宝龙湖·天钜建筑面积约142㎡3室2厅2卫户型,LDKB一体化设计,MAX多元客厅,以好产品满足客户更丰富的生活场景想象。

郑州雅宝龙湖·天钜建筑面积约142㎡户型

样板间实景
成都黄龙溪谷建筑面积约144㎡3室2厅2卫户型,一体化的设计增加了北向家政间,所有的公共空间全部互通,美景就在眼底。


② 豪华主卧套设计
重庆长嘉汇·朗峯建筑面积约132㎡3室2厅2卫户型,南向主卧和次主卧均配有开阔的直角景观飘窗,其主卧还配备步入式衣帽间、卫浴套间,业主居住格调和品质感大大增加。

重庆长嘉汇·朗峯约132㎡户型
成都花样年望花溪建筑面积约141㎡3室2厅2卫户型甚至还增加了浴缸。

成都花样年望花溪约141㎡户型
150㎡以上三房户型
户型再一次升级,增加至150㎡以上,可做边厅设计,在LDKG一体化的基础上可以实现中西双厨的配置;客厅的社交功能更加丰富;更加全能的收纳系统涵盖到从玄关、客厅、卧室等空间;还能能实现双套房设计。
① 边厅、中西厨、全能社交厅
成都花样年望花溪建筑面积约172㎡三室两厅三卫,将玄关客厅和餐厅连接起来,更关键的是,还把客厅的露台连接起来,从而形成了一个LDKB空间。

成都花样年望花溪约172㎡户型

样板间实景图

样板间实景图
天津旭辉铂悦公望建筑面积约170㎡这个户型做了中西双厨,空间感一下倍增,功能使用也更为丰富,这是一点非常明显的较之于传统豪宅户型设计的进步。

天津旭辉铂悦公望约170㎡户型
② 双套房设计
昆明中国中铁·诺德山海春风建筑面积约165㎡户型,区别于传统户型只有一间套房的设计,除主卧外,还可以拥有儿童套房或是老人套房,均朝南大尺度面宽设计,让家人有更大、更独立的私密空间。

昆明中国中铁·诺德山海春风约165㎡户型
③ 一层一户

本资料声明:
1.本文为建筑设计技术分析,仅供欣赏学习。
2.本资料为要约邀请,不视为要约,所有政府、政策信息均来源于官方披露信息,具体以实物、政府主管部门批准文件及买卖双方签订的商品房买卖合同约定为准。如有变化恕不另行通知。
3.因编辑需要,文字和图片无必然联系,仅供读者参考;
微信公众号“搜建筑”(ID:sjz9999)
合作、宣传、投稿
联系微信:soujianzhu006


