Lovell International School, an international kindergarten in Pattaya, Thailand, is where children can play and learn among the trees. The existing trees on the site are aged mature trees, with the owner and designer’s main intention to keep most of them for the new school.
The layout design schematic started with the option of planning with space and shape that brings up the potential of the trees on the site and creates a most interesting atmosphere. The tree house concept matches the design where the little house pops up amidst the forest. The free flow curve building shape avoids the existing trees and provides the court, separating zoning to match learning age. The building's ground floor is separated mainly into three wings: the under-3 years children wing, the kindergarten wing, and the admission wing.
Having its own court for each wing, together with outdoor learning space behind the classroom, the building is surrounded by greens. The indoor play space in front of each class is linked, which can be used for many occasions, such as during the PM2.5 situation or extreme weather like heavy rain and excessive sunlight due to the tropical climate. On the upper floor, the tree house pops up for each individual function: the cooking class, art class, and soft gym, together with the multipurpose hall. The space under the gable roof provides spacious space in which many play frames are added to create various play spaces such as hideout spaces, play structure spaces, or adventure spaces.
The school's interior provides a cozy wooden atmosphere to harmonize the mood of a little-house-in-the-big-wood feeling to all of the hall and indoor play space, while in the classroom, the white color is used for pleasant brightness for learning. The landscape area is separated into many zones in which the characteristics of each court are based on the existing trees. Those include the play area for children under three years old and over three years old, while the back of the classroom also links with the green space for learning about agriculture and waste recycling. The water play area provides a swimming and splash pool where little kids can play and enjoy many activities. The court with the densest trees is designed to be a forest-like play area for adventurous activities.

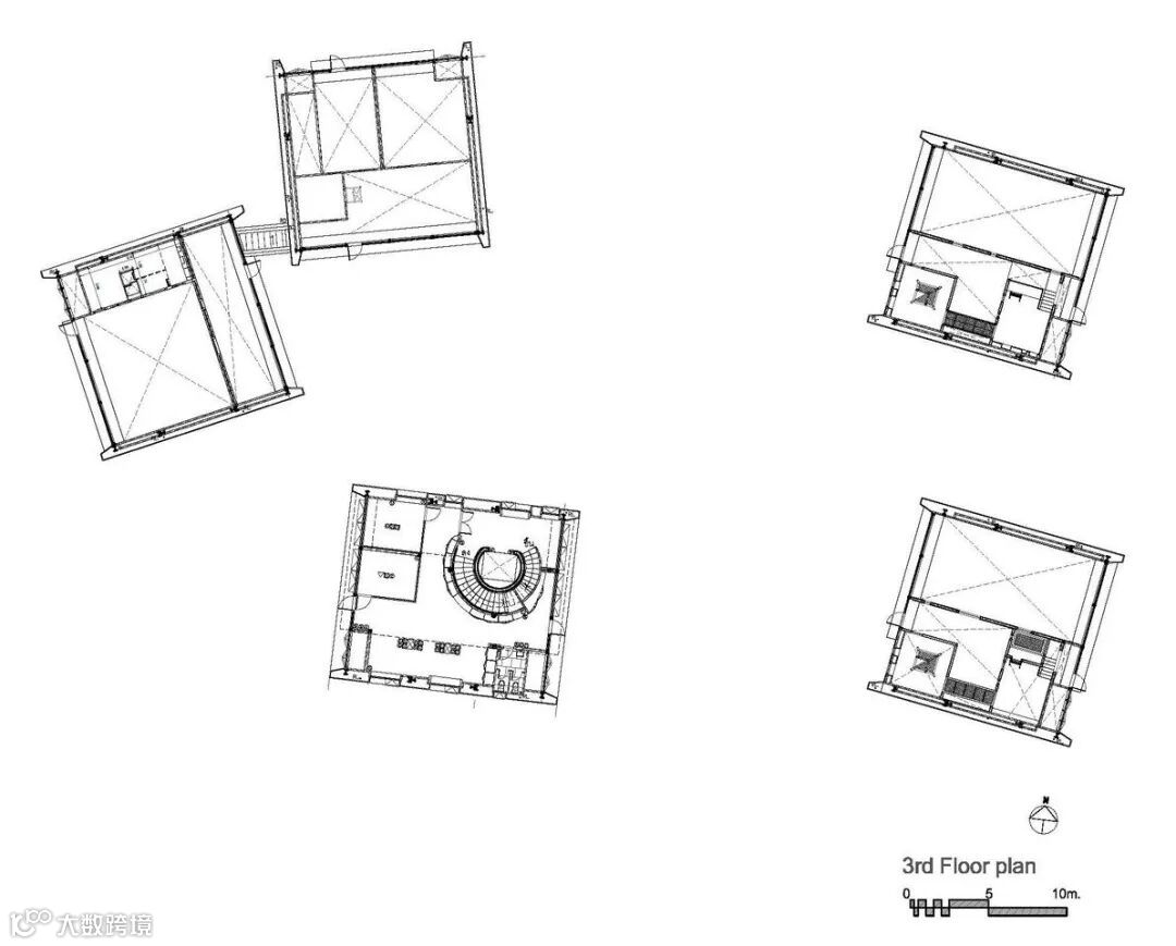
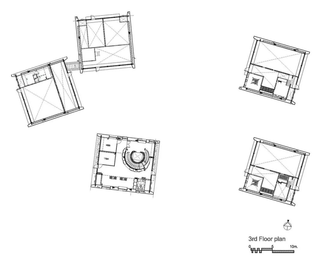
平面图

平面图

平面图

立面图

立面图

剖面图

项目信息
建筑师:Plan Architect
地点:泰国
面积:2800 m²
年份:2023
本资料声明:
1.本文为建筑设计技术分析,仅供欣赏学习。
2.本资料为要约邀请,不视为要约,所有政府、政策信息均来源于官方披露信息,具体以实物、政府主管部门批准文件及买卖双方签订的商品房买卖合同约定为准。如有变化恕不另行通知。
3.因编辑需要,文字和图片无必然联系,仅供读者参考;
推荐一个
专业的地产+建筑平台
每天都有新内容
扫描二维码关注

微信公众号“搜建筑”(ID:sjz9999)
合作、宣传、投稿
联系微信:soujianzhu006

