上海南桥书院综合楼及滨河景观
Designed and revitalized by NODE Architecture & Urbanism (NODE), Nanqiao Academy stands as a pivotal urban renewal project in Fengxian District, Shanghai. It encompasses a comprehensive building covering 8,700 square meters, alongside an on-campus sports ground for the school, and a riverside landscape. The comprehensive building was completed and commissioned in 2021, and the on-campus sports ground and riverside landscape were completed in 2022, ready for operation. Nanqiao Academy sits within the Nanqiao Town of Fengxian, a locale that has its roots traced back to the waning years of the Tang Dynasty. The canal that meanders through this settlement was excavated during the Southern Song Dynasty, and the annals of its rich historical architecture encapsulate nearly a millennium of evolution. Winding streets from the Song Dynasty, ancient bridges from the Ming Dynasty, soy sauce breweries from the Qing Dynasty, garden residences of the early 20th century, and the erstwhile site of the Catholic priest's residence that once turned into a command center during the War of Resistance against Japanese Aggression...diverse architectural gems from varying eras juxtapose to preserve a fraction of Nanqiao Town's distinctive historical memory. Yet, as the boundaries of the old town expanded and modernization renovations unfolded throughout modern and contemporary times, traces of the past gradually faded into the ever-growing labyrinth of new streets and residential blocks. This urban renewal initiative not only strives to extract historical imprints and charm from the environment into reconfiguration, but it also seeks to reconsider the relationship of streets, canals, buildings, and communal amenities, thereby infusing novel functions and vitality into the community's very fabric.

Following its transformation, the Nanqiao Academy Comprehensive Building forms an amalgamation of school and communal functions. By employing a methodology resonant with the interlocking "toy blocks," the structure weaves together various prototype spaces including the library, lecture hall, theater, cafeteria, laboratories, art studios, and music chambers, which were once scattered across disparate locations on the original site. These spaces are collaged and stacked into a cohesive "spatial puzzle cube", giving rise to an array of captivating and innovative places. This arrangement fosters a distinctive spatial experience that remarkably stimulates the students' thirst for imagination and exploration. In this assemblage, shadows from different epochs intertwine and coexist, seamlessly melding beyond the walls into its context, thereby showcasing a synergy of diversity and contemporaneity whilst assimilating into the profound historical tapestry of Nanqiao Town.

Established in the year 1978, Nanqiao Academy has undergone two relocations traversing through time. More than a century ago, this very site also played host to a missionary school. Upon the original foundation of the Academy, the library, lecture hall, theater, cafeteria, laboratories, art studios, music chambers, and student residences were situated in respective locations across the campus. As the completion of the riverside landscape belt along the canal, the pre-existing functions necessitated a unified congregation within a delimited parcel. This requires the design to ensure the optimal organization of school functionalities and the efficiency of surrounding traffic circulation, beyond which a surplus of communal spaces should be released in tandem with the waterfront scenic spaces for the enjoyment of the general public.

The spatial integration within Nanqiao Academy Comprehensive Building “experiments” with high density and intricate complexity. To circumvent the unfavorable large aggregation of campus architectural spaces within the plot, which might lead to disconnection and isolation from the surrounding environment, the NODE team gathers the spaces through the collage of spatial prototypes in the initial stage, stacking components to craft the entirety of the Comprehensive Building. Drawing inspiration from the architectural outlines of the original laboratory building and library, a rectangular footprint was demarcated, forming a structure spanning five above-ground levels and one underground level, upon which subsequent layers were added successively, encompassing areas for artistic education, a communal lecture hall, a small theater, and a cafeteria. Following the unity of form, the architecture then embarks on a process of segmentation. The expansive panorama of the canal landscape facilitates the bulkiness and density of the intense cluster to dissipate through a multifaceted and non-repetitive spatial maneuver. In doing so, a meticulous reconsideration of the visual rapport between the functional domains and the adjacent canal has been engaged.

致敬经典—经典原型空间组合

“个体”模型

组合后的综合楼模型
公共空间与教学空间流线

公共空间与教学空间流线

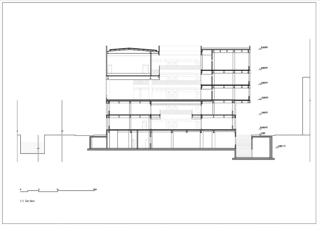
The fundamental ethos of the entire architecture departs from the harmonious coexistence of individual components and the collective entity, where independence is coupled with interdependence, which also serves as the starting point of the structural system design. The grand steel-structured lecture hall delicately rests upon the apex of the library, its expansive glass facade facing the sports ground vista. The smooth fusion between the library's rooftop and the lecture hall represents the pinnacle of technical challenges within the project - to open up the entire internal space, the design employed bridge-building techniques to construct the lecture hall. Leveraging the apex of the library, the lecture hall gracefully ascends in the rear akin to a dancer poised on tiptoe, overlooking the students exercising on the playground.
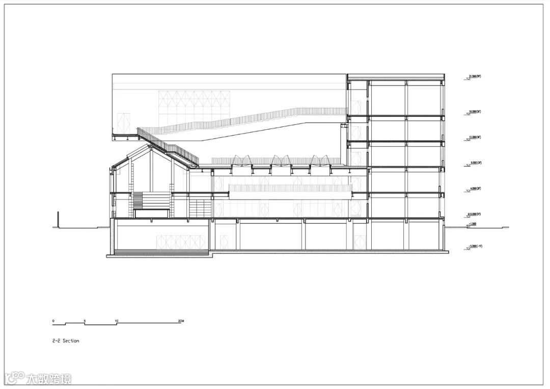
Instead of its typical position on the ground floor, the outdoor communal space has been transposed to the third-floor rooftop of the Arts Building, where a capacious and naturally inviting roof terrace offers panoramic views for students to enjoy a more enriched and multi-layered experience during the breaks. The negative space beneath the lecture hall takes the form of a semi-open-air gym with a pleasant view facing the canal. Meanwhile, the roof of the library naturally slopes inward, resembling a series of terraced steps that add to the diversity of outdoor venues for communal interaction. An elevated floor system is deployed to avoid any interruption to the spatial integrity of the rooftop venues, accommodating drainage systems and equipment beneath the roofing.

To the northern periphery lies the scenic waterfront of the canal, while the school's playground is on the west, leading to splendid views on both sides. In alignment with the landscape resources, the Comprehensive Building takes on a context-sensitive approach, maximizing its openness along these dual orientations with casement windows that unify the indoor and outdoor realms.
The concept of prototype collage extends to the selection of both the curtain wall and interior materials. Following careful analysis of surrounding historical buildings, the architect captures their style and features by employing two material elements, red brick and flexible ceramic tiles with a concrete texture, to echo the context. Concrete as the primary material subtly integrates into the existing environment with a modest demeanor, whilst the library at the heart location features a red brick facade and sloped roof, resonating with the historical essence of the school while harmoniously assimilating into the texture of the adjacent district. On the west facade, the vertical undulations of the external wall in combination with the windows create a rhythmic cadence, and red bricks with a touch of tradition transition effortlessly from the external envelope into the inside of the library, achieving a coherence that bridges both interior and exterior spaces.

周边保留历史建筑风貌分析
NODE is also in charge of the interior design of the Comprehensive Building. Tailored to the distinctive character of each space, a palette of materials bearing diverse "emotions", such as patterned tiles, wooden veneers, and exposed concrete wall finishes, are compiled into a collage that gives each space its own unique "expression", allowing occupants to freely shift their moods during different hours and thus profoundly enriching their personal engagement with the space. Within the atrium void of the library, the designer incorporates a luminous installation comprising triangular configurations fashioned out of light strips. Detached along their sides, the light strips orchestrate a sequence of rotations and gradients, engendering a dynamic three-dimensional structure within the spatial expanse, which both accentuates the height and depth of the space and establishes a visual focal point as well.
The atrium serves as a pivotal nexus for the transition of various functions within the Comprehensive Building. The material selection for the interior space follows the language of the exterior facade. For the flooring, patterned tiles reminiscent of the Republican Era are chosen. Bathed in the gentle daylight filtering through the atrium's skylight, the optimized patterns, dimensions, and hues of these tiles conjure an ambiance that ushers one through the journey of time.
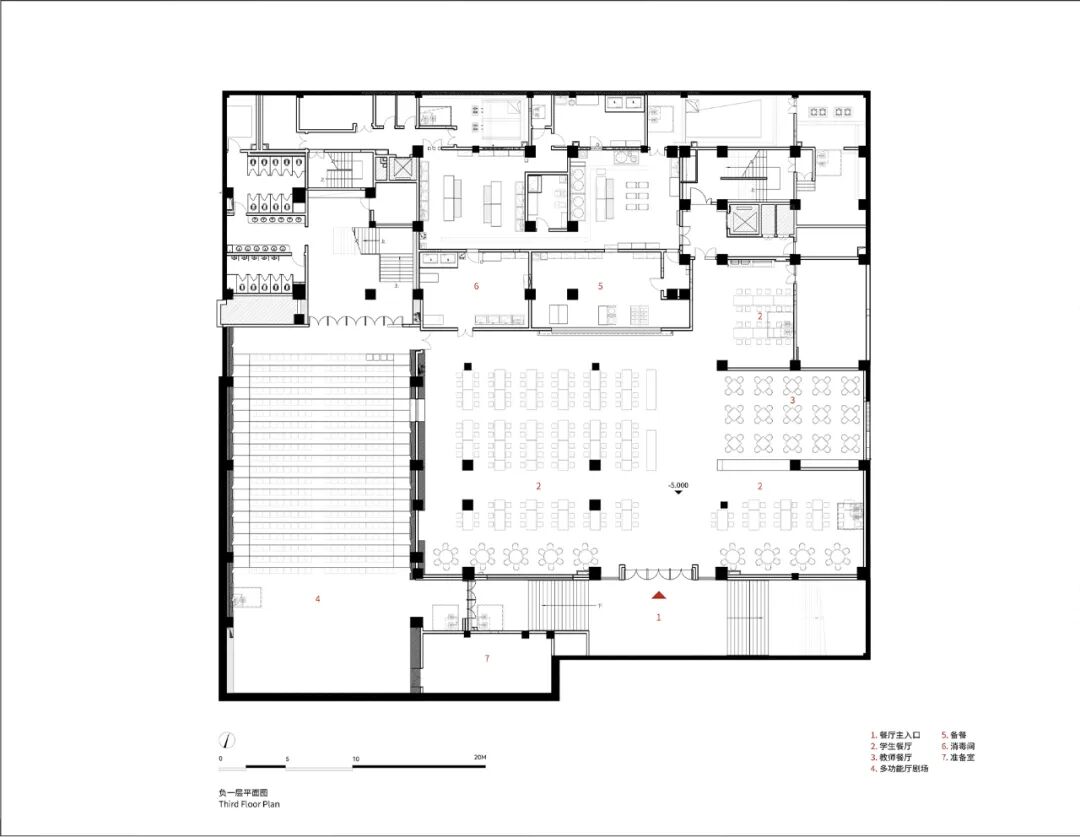
Situated within the basement level of the Comprehensive Building, the theater features two entrances with direct access to the outside that dispels any negative perceptions typically associated with underground spaces, while the configuration substantially facilitates evacuation efficiency. A spacious underground passage connects the cafeteria with the eastern entrance of the theater, providing the cafeteria with ample natural daylight. The interior of the cafeteria is indulged with ample brightness and openness, adorned with a refreshing minimalist aesthetic with a touch of yellow to add some character to the space.
The renovated Nanqiao Academy, now serving as the Comprehensive Building for Nanqiao Middle School, presents a monument that embodies a dichotomy of history and future, substantiality and vitality, nativeness and openness. Through a design approach that deconstructs the whole into segments, the building carries a seemingly light grandeur. It showcases an organic synthesis with the historical and cultural fabric of the local community when avant-garde contemporaneity is also on display. This pioneering spirit of openness and diversity is further exemplified by the notion of shared spaces, wherein the campus architecture converges with the ideology of community engagement and public service while security and independent operation are guaranteed. In the future, the school's underground parking facility, sports hall, and sports ground will all be made accessible to the community, accentuating the integration of the Nanqiao Academy's renovation and upgrade with the broader urban renewal initiative of "Nanqiaoyuan (Origin of Nanqiao)" project.

总平面

负一层平面图

一层平面图

二层平面图

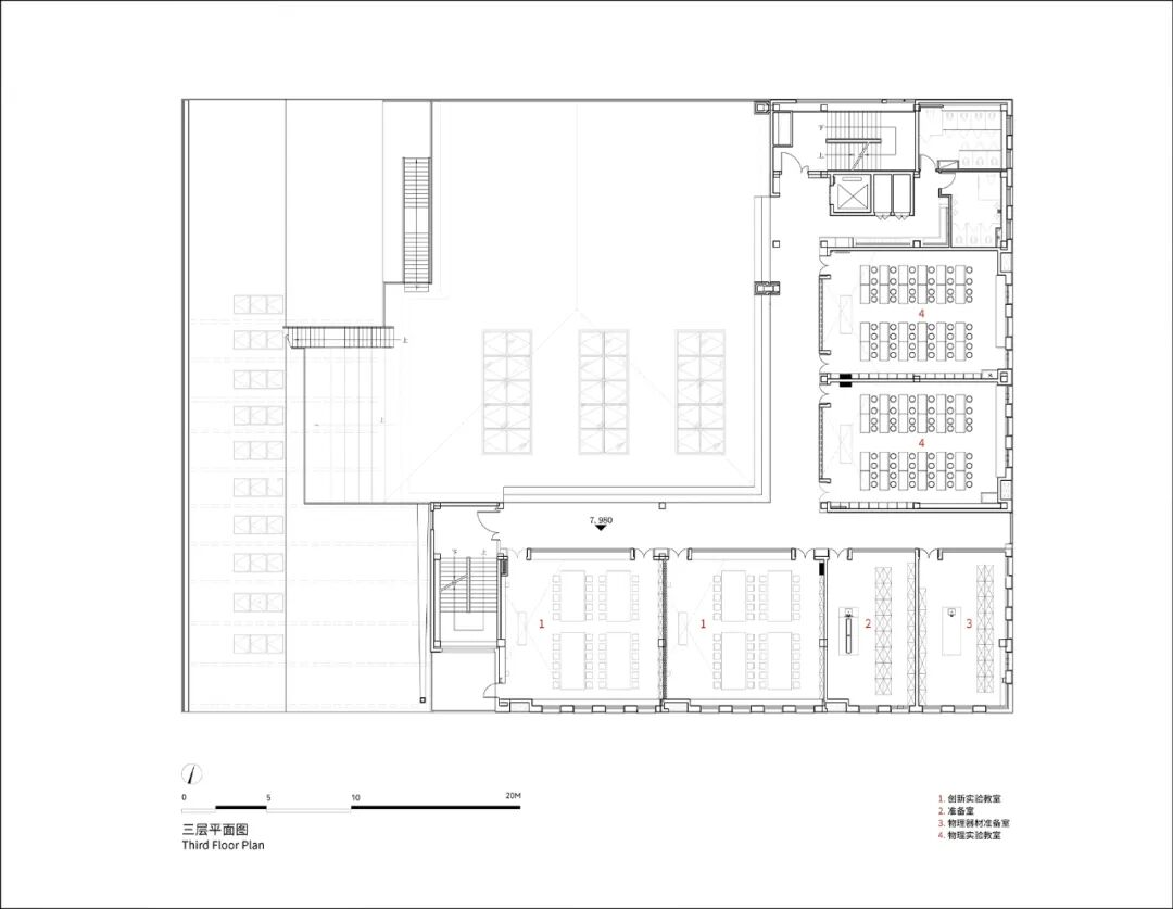
三层平面图

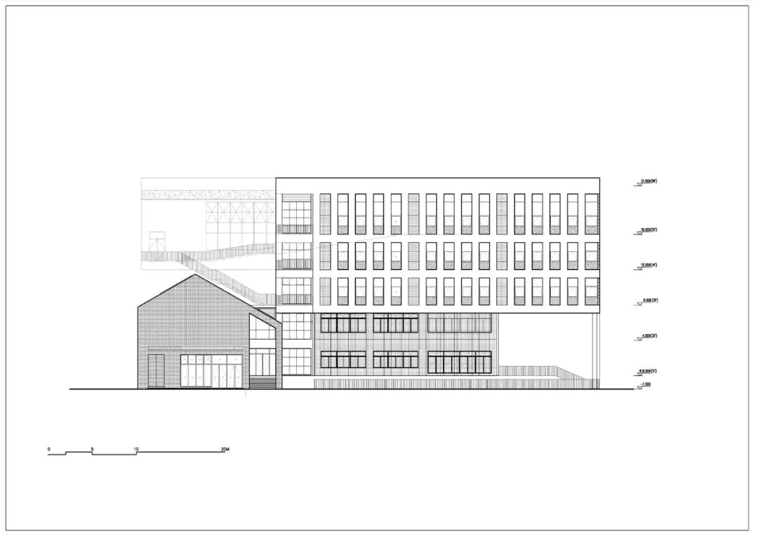
北立面图

南立面图

1-1剖面

2-2剖面

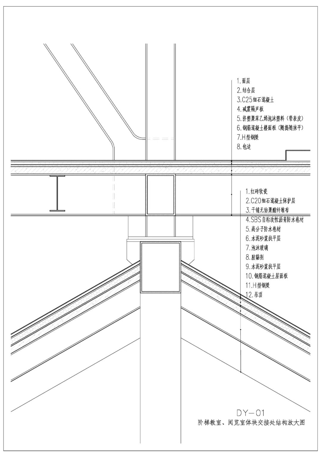
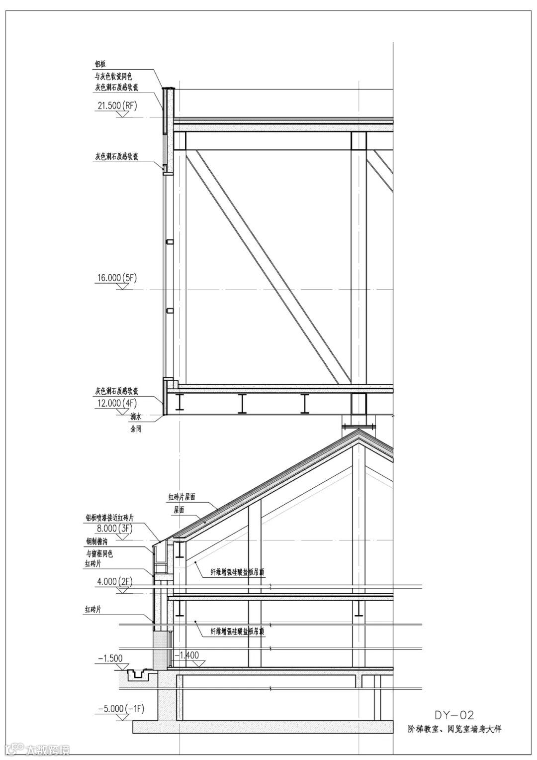
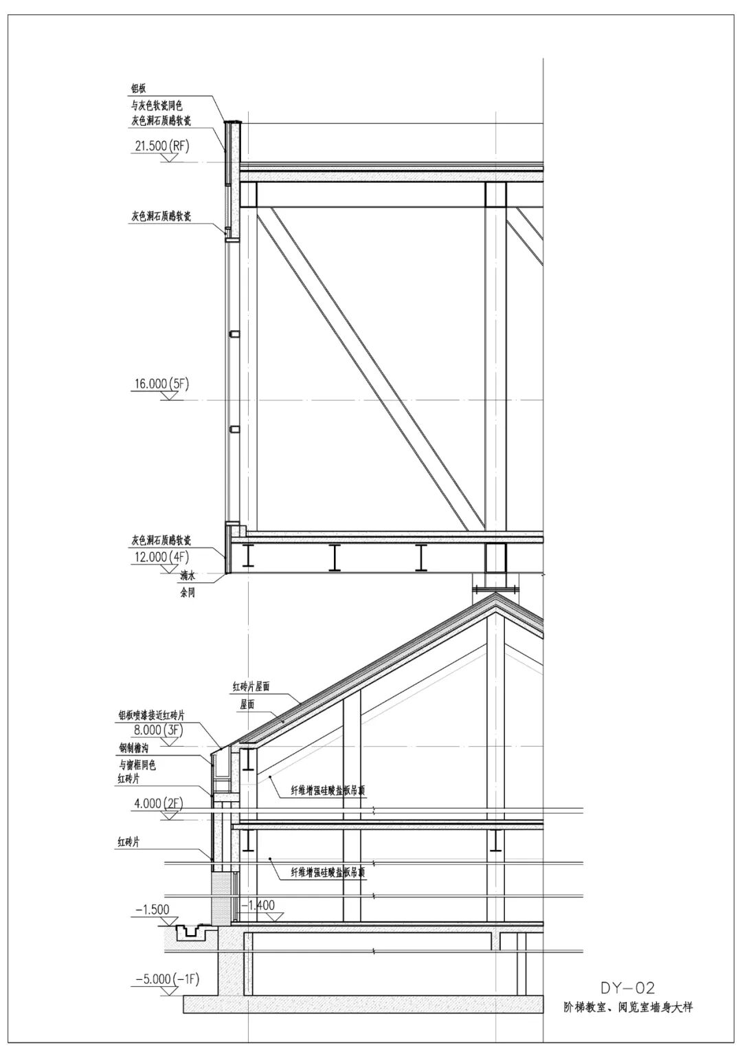
阶梯教室、图书馆交接处结构大样

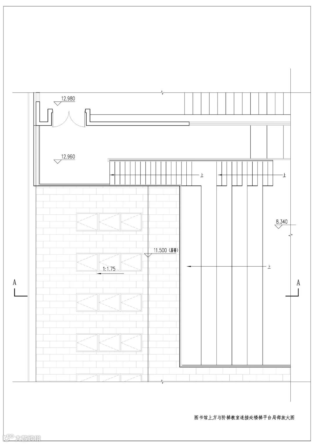
阶梯教室、图书馆平台大样

阶梯教室、图书馆平台平面大样

项目信息
摄影:田方方、胡康榆
▼ 更多精品·点击关注
本资料声明:
1.本文为建筑设计技术分析,仅供欣赏学习。
2.本资料为要约邀请,不视为要约,所有政府、政策信息均来源于官方披露信息,具体以实物、政府主管部门批准文件及买卖双方签订的商品房买卖合同约定为准。如有变化恕不另行通知。
3.因编辑需要,文字和图片无必然联系,仅供读者参考;
推荐一个
专业的地产+建筑平台
每天都有新内容
扫描二维码关注

微信公众号“搜建筑”(ID:sjz9999)
合作、宣传、投稿
联系微信:soujianzhu006
搜建筑·矩阵平台
阅读原文:“南沙原创建筑设计工作室”更多精品

