▲ 更多精品,关注“搜建筑”
建筑面积约140㎡面积段户型是一个分水岭户型,在一些刚需、刚改楼盘中,140㎡左右是最大的户型,另一些纯粹改善的楼盘,140㎡左右户型则是起点。
郑州建业电影小镇之橙园实景图
郑州建业电影小镇之橙园,放眼郑州,把居住空间打磨成有质感的归所的建业·橙园,同样深得广大都市女性们的青睐。当下炙手可热的明星产品,建面约140㎡轻奢臻品,空间简洁、时尚,低调的轻奢,充满智慧的生活空间,让生活更加多姿多彩。

建面约140㎡户型图
建面约140㎡户型,4房2厅2卫设计,轻奢臻品进门后即见宽阔横厅,室内动线简洁明朗。当出电梯推门入室,宽敞而明亮的客厅映入眼帘,瞬间驱赶工作的劳累感。
橙园140㎡轻奢臻品主卧不仅宽敞大气,还有独立的卫浴空间,更重要的是设计有独立的衣帽间,成为每个女生的梦想。
厨房整体采用人体工学设计,U型结构,匠心构筑黄金三角区,女主人只需小幅转身即可完成整个烹饪流程。
郑州建业电影小镇之橙园实景图
郑州万科翠湾中城通过巧妙的阳台错层设计,使得住户能拥有一个部分挑高约5米的空中私家花园,一旦空间变得立体,生活就有了更多可能,实现N种生活场景。
郑州万科翠湾中城错层阳台局部 效果示意图
好的创新与设计,一定是关注室内+室外的关系、人与自然的关系,越好的设计,越注重追求这个真理和本源。
因此更大化地考虑花园阳台与功能空间的对位设计,更强调人与自然的交互,更强调室内外之间的互动。
比如,边户超大边厅被L型大花园阳台包围:
约146㎡偶数层户型 示意图
让生活与花园融为一体,室内室外没有界限,更大限度实现生活完全被绿色包围。
郑州万科翠湾中城室内效果示意图
郑州万科翠湾中城立面效果图
金茂未来府作为绿金科技住宅,总占地面积约155亩,总建筑面积约41万㎡。
作为科技住宅,项目将引入金茂绿金科技系统,从温度、湿度、空气、阳光、声音、水六大基本生命要素出发,打造舒温、舒湿、舒氧的绿色健康人居;


金茂未来府效果图
建筑面积约146-168㎡科技府系,建筑面积约89-128㎡金质雅居,以宽幕尺度、多面宽朝南、大尺度阳台为设计亮点,承载美好生活。
空间的尺度,很大程度上决定生活的舒适度,但对于金茂来说,空间的尺度不止是面积的奢阔,对于每一个户型空间规划,金茂都有自己的思考,其中建筑面积约146m²四居设计,足以实现理想舒居的向往。
建筑面积约146㎡户型,2T2的设计,四室两厅两卫/3+1房两厅两卫,南向开间可达约13.2米。独立的玄关设计,后期可以通过金茂U+加载玄关柜,以强大的收纳系统让家的空间有所拓展,让收纳也成为一种生活哲学,科学的布局、人性化的收纳体系,将便捷使用、合理收纳融为一体,居家生活更加顺心遂意。

建筑面积约146㎡户型图
独立厨房北向采光,有利于室内通风,规避油烟的烦恼。动线更为顺畅的U型厨台,很好的节省了空间,形成洗、切、炒完美的工作区域,把烹饪的繁琐化成一支富有节奏感的小曲。
约6.9米宽厅自带多功能空间,超大采光面,自由完成派对、家宴、游戏、影音等多维场景翻转,亦可以收获家庭情感的共鸣与升华。

样板间效果图

样板间效果图
园林以中原少有的约8500㎡台地景观点亮自然之境。


金茂未来府效果图
永威望湖郡,是永威置业在航空港区的住宅作品,约1.49的低容积率,包含叠墅、洋房、高层等多种业态。
永威望湖郡总占地约108亩,在售的产品有三类:
建面约87-142平的小高层;
建面约131-163平的洋房;
建面约181-227平的叠拼。
永威望湖郡 鸟瞰图
建筑面积约142平米,四室两厅两卫,很适合三代同堂乃至三胎之家。
永威望湖郡 建筑面积约142平米户型图
南向两个卧室,一个是主卧一个是老人卧,北向的两个卧室,可以分别住孩子,也一定程度上保证了孩子的独立成长空间。
套房式主卧设计,独立卫生间洗去一天的忙碌和疲惫。
南向窗户采用全落地窗设计,这样的好处是采光更通透、视野更开阔;
采用约6米宽厅设计,且多面朝阳,这样的好处是面积使用更充分有效,提升居住舒适度。餐厅与客厅生活紧密相连,南北通透尽享大家气度。

餐客厅实拍图

永威望湖郡效果图
郑州融创御湖宸院,是融创郑州落子西区的首个项目。坚持融创高端精品打造战略,臻造城市现代高端生活标杆。

郑州融创御湖宸院
项目分为多期开发,一二期于2018年销售完毕,一期于2021年1月交付,一线帝湖湖景资源,以极简现代大玻璃幕墙的公建化立面、内向式核心景观空间,刷新西区颜值,树立西区高端生活品质标杆!
2021年,融创御湖宸院3期新品面世,三期地块位于西三环长江路西北角,占地约110亩,总建面约41万方,容积率3.97,三期新品为美好再革新,共规划16栋全34层板式住宅,以现代风格建筑为蓝本,倾筑建面约89-143㎡迭代新品,带装修交付,为革新一个时代的人居理想而来。

郑州融创御湖宸院鸟瞰图
建筑面积约143㎡户型,4房2厅2卫,全明四房设计,享约5.6米大横厅,南向四开间通透敞亮,约7.6米×1.8米贯通双联式阳台。

融创御湖宸院3期建面约143㎡户型图

融创御湖宸院效果图
融创城六期观河著紧邻十八里河,整体规划8栋高层、5栋临河洋房,建筑群西低东高,实现观河视野效果的更大化;超大窗墙比,使得建筑外立面简洁美观,让视野、空间感得到极致延伸;“两轴一中心多组团”的景观规划,使得园区未来绿意盎然。
融创城鸟瞰效果图
11#峯境芯栋建筑面积约98-139㎡瞰景高层,朗阔三居全能户型设计,每1cm的考究,都映射着每一个人居的诉求。
建筑面积约139㎡户型,4房2厅2卫,一方朗阔阳台,是浑然天成的观景台,带来视野的享受;约34㎡餐客横厅,容纳全家意趣生活;套房式主卧,独立卫浴,观景飘窗,美好生活大有不同。

建筑面积约139㎡户型图


139㎡样板间实景图

融创城效果图
18载康桥集团,10年4部康桥TOP系作品,康桥香麓湾继康桥美庐湾后第三代湾系巨制,北龙湖金融岛上湾、龙子湖高校区上域、千年贾鲁河上流,5栋玻璃叠墅、2栋宽境洋房、16栋环幕小高层。
郑州康桥香麓湾首先是创新的垂直玻璃墅,绝对惊艳的外立面。
郑州康桥香麓湾意向图
康桥香麓湾是SCDA第67号作品,极简主义高级美感的建筑艺术外立面设计,从外面看,整个楼宇就像一个个艺术品。
外立面采用玻璃幕墙+氟碳喷涂铝板,金属的点缀增加了建筑的线条美感,配以香槟金及灰色的搭配,雅致的美感跃然而上。这种材质,使得建筑外立面风格独树一帜。
建筑面积约142㎡户型,4房2厅2卫设计,一梯一户独享私家电梯厅,双开门尊贵礼遇,约7.3米双联全景阳台、无墙垛设计,南向双卧空间,餐客厅一体连接双联阳台,全景采光IMAX视野融合自然。
建筑面积约142㎡户型图
郑州康桥香麓湾意向图
郑州万科城这个项目所有构筑都以人为中心,尤其是户型,建筑面积约143㎡的洋房户型,一套环形动线让室内没有一点无用的地方,室内利用率非常高。

郑州万科城约143㎡户型
细看户型还有很多设计细节,比如客厅次卧共用阳台这点,既满足晾晒,又不妨碍客厅景观,可以说所有细节都围绕业主生活的方方面面。

郑州万科城鸟瞰图
中海云鼎湖居项目是郑州中海湖居产品理念打造的升级之作,位于北龙湖,坐拥约8400亩水域面积,同时占据城市核心地段与稀缺资源。
中海云鼎湖居占地约108亩,容积率仅有2.49,总共规划22栋14-16层小高层。

中海云鼎湖居鸟瞰图
中海云鼎湖居全部2梯2户,首层层高3.5米,其它楼层层高3.05米。均是大面宽短进深设计。
建筑面积约149㎡户型,做到了四面宽朝南设计,入户超大玄关,南北双大阳台和南向卧室飘窗设计,通透性与采光更佳。

建筑面积约149㎡户型图
中海云鼎湖居外立面以真石漆涂料为主,一二层石材加金属板。

中海云鼎湖居效果图
雅宝龙湖·天钜E2户型 3室2厅2卫,建筑面积142㎡四开间朝南,南北通透、采光通风视野面面俱到,大面积阳光客厅,格局方正严谨,科学规划布局,可做成中西式厨房,实现更大化利用,约7.2米横厅,南向全采光,IMAX视野,豪华主卧套房,步入式衣帽间,独立卫浴间+浴缸尊崇感十足。

建筑面积142㎡户型图



样板间实景图

雅宝龙湖·天钜效果图
央企保利中原首座天字系作品——保利·天汇,择址郑州主城“正核”,CBD正南,并肩中原福塔,1环2河3公园,汇聚一城繁华,缎筑城市封面作品。项目总占地约112亩,总建面约29万方,容积率2.99,规划17栋24-27层住宅, 总户数1788户,是三环内纯粹低密社区。

保利·天汇鸟瞰图
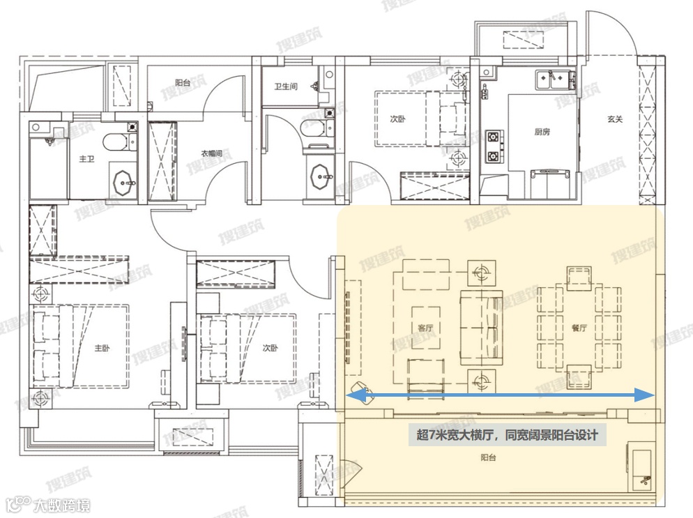
建筑面积约140平米户型,户型亮点:超7米宽大横厅设计,270度转角阳台,多面宽朝南,南北双阳台设计。

建筑面积约140平米户型图

保利·天汇效果图
本资料声明:
1.本文为建筑设计技术分析,仅供欣赏学习。
2.本资料为要约邀请,不视为要约,所有政府、政策信息均来源于官方披露信息,具体以实物、政府主管部门批准文件及买卖双方签订的商品房买卖合同约定为准。如有变化恕不另行通知。
3.因编辑需要,文字和图片无必然联系,仅供读者参考;
推荐一个
专业的地产+建筑平台
每天都有新内容
扫描二维码关注

微信公众号“搜建筑”(ID:sjz9999)
合作、宣传、投稿
联系微信:soujianzhu006
搜建筑·矩阵平台
↓↓↓ 更多精品,搜建筑网站
↓↓↓ 下载户型dwg文件
















