▲ 更多精品,关注“搜建筑”
北方2万平米级超低能耗建筑
中新生态城北方大数据交易中心
天津天华


↑图:项目沿街透视

↑图:方案以退台形式回应城市景观资源

↑图:主入口灰空间及前厅

↑图:项目鸟瞰

↑图:项目正在施工中


↑图:形体生成

↑图:鸟瞰图

↑图:竖向肌理
↑图:竖向肌理透视效果图



↑图:多种体块对比形体系数与自然采光系数


↑图:两个中庭形成 通风连通器

↑图:南厅为主要出入口与中庭连接

达到超低能耗建筑对外墙的传热系数有一定要求,传热系数越低,性能越好,材料价格也随之升高。最初形体以全玻璃表皮反算维护结构,外墙与玻璃窗的传热性能要求过高,远在造价限额之上。实体墙体增加可以有效的降低外墙材料传热系数,进一步压低材料成本,所以我们提出三角形幕墙单元的构想:以“实面-玻璃”相互交替的模式,增加实墙比例,随之降低外墙成本。

↑图:三角幕墙可以降低维护结构要求,降低材料成本

↑图:三角幕墙的分布

↑图:30度角幕墙让建筑在景观面呈现通透玻璃盒子的视觉效果

↑图:幕墙实面阴角处设置通风器

↑图:幕墙节点设计


↑图:主动式技术措施


↑图:室内游览动线

↑图:大数据交易中心

↑图:共享中庭

↑图:智慧城市指挥中心

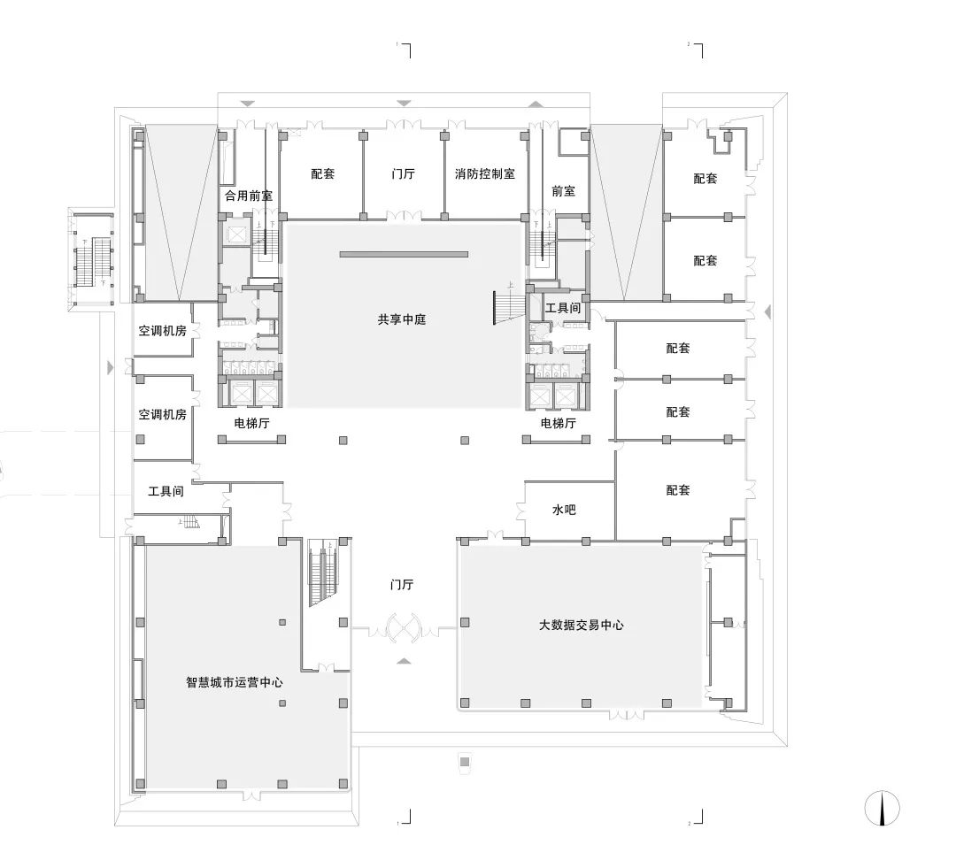
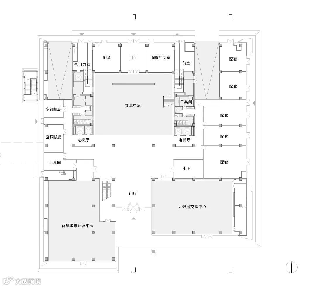
↑图:一层平面图

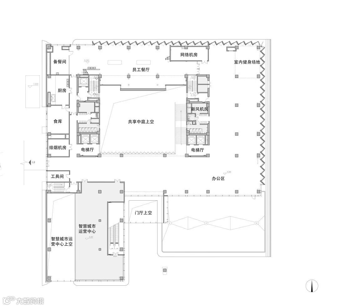
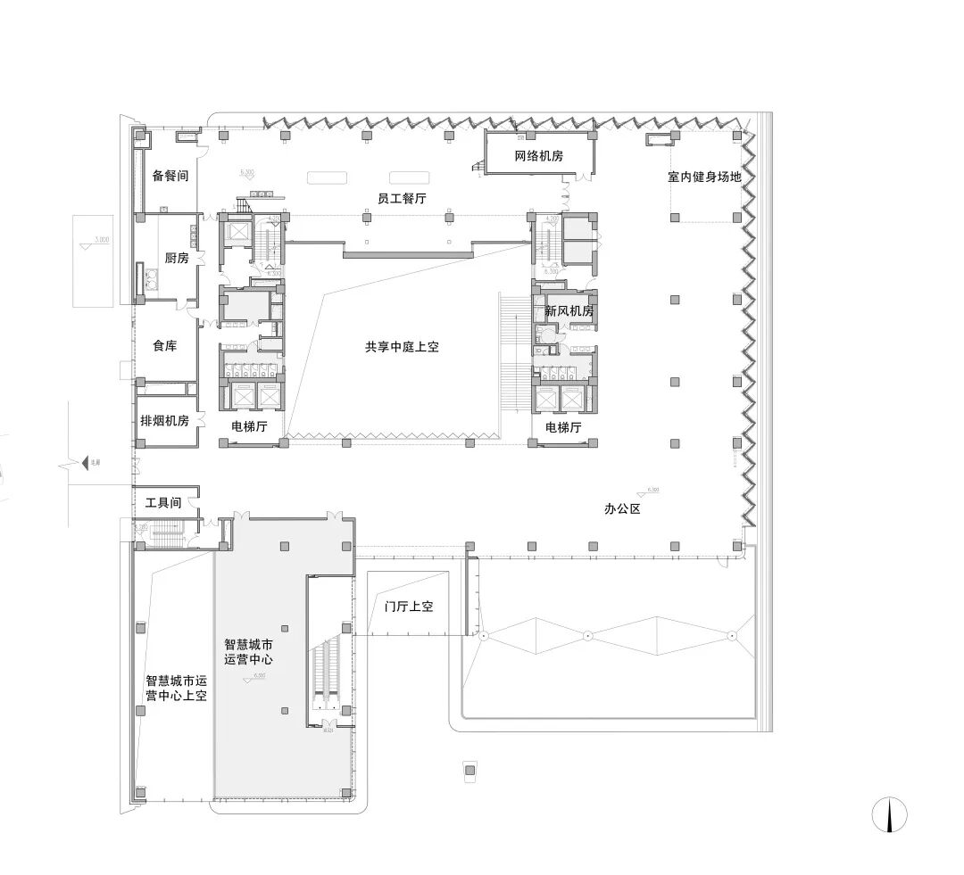
↑图:二层平面图

↑图:标准层平面图
↑图:项目视频
项目获奖
2022年全球未来设计 金奖
2022年美国 MUSE DESIGN AWARDS 金奖
2023年 THE PLAN Finalist
| 设计总负责 |

徐强
| 建筑负责人 |

刘利翔 王芸
项目档案
用地面积:6256㎡
容积率:3.2
地上建筑面积:20000㎡
建筑高度:40m
方案设计:天津天华
设计总负责:徐强
建筑负责人:刘利翔、王芸
方案设计师:王思轶、孙舒怡、王麒涵、赵健虹
扩初设计:天津天华
扩初设计师:赵亮 苏牧秋 黄能文 张棫 郝云鹏 郝帅 穆笛 郝文凭 王丹虹 曲翔 司杰
施工图设计:中国建筑上海设计研究院有限公司
施工图项目负责人:曹凌宇
建筑负责人:陈晓芳;结构负责人:王贵臣;给排水负责人:赵炯;暖通负责人:李杏杏;电气负责人:杨冬
效果图及视频:山子北洋
本资料声明:
1.本文为建筑设计技术分析,仅供欣赏学习。
2.本资料为要约邀请,不视为要约,所有政府、政策信息均来源于官方披露信息,具体以实物、政府主管部门批准文件及买卖双方签订的商品房买卖合同约定为准。如有变化恕不另行通知。
3.因编辑需要,文字和图片无必然联系,仅供读者参考;
微信公众号“搜建筑”(ID:sjz9999)
合作、宣传、投稿
联系微信:soujianzhu006
搜建筑·矩阵平台
阅读原文:“天津天华”更多精品


