▲ 更多精品,关注“搜建筑”

Foster + Partners has completed a new headquarters for Techcombank in Hanoi. Following a period of rapid growth, the company is consolidating its operations in a new tower that reflects its vision to ‘change banking, change lives.’ The 22-storey building is located in downtown Hanoi, just outside the historic quarter of the old city, alongside several public buildings such as the Supreme Court and National Library. The project aspires to LEED Platinum certification.

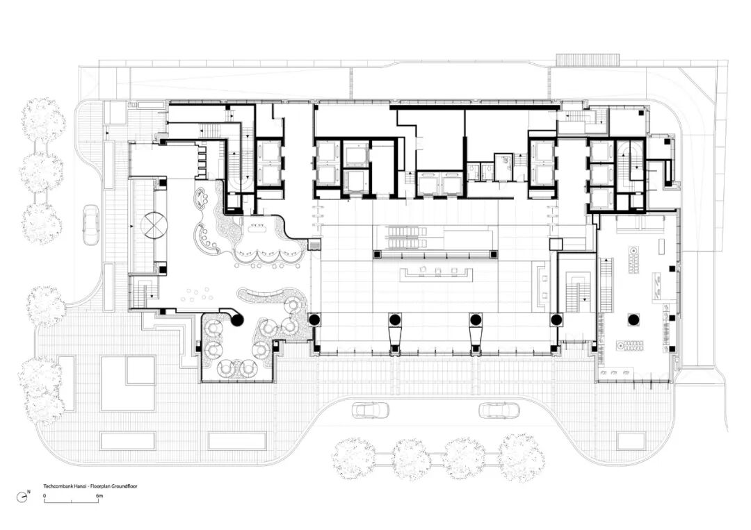
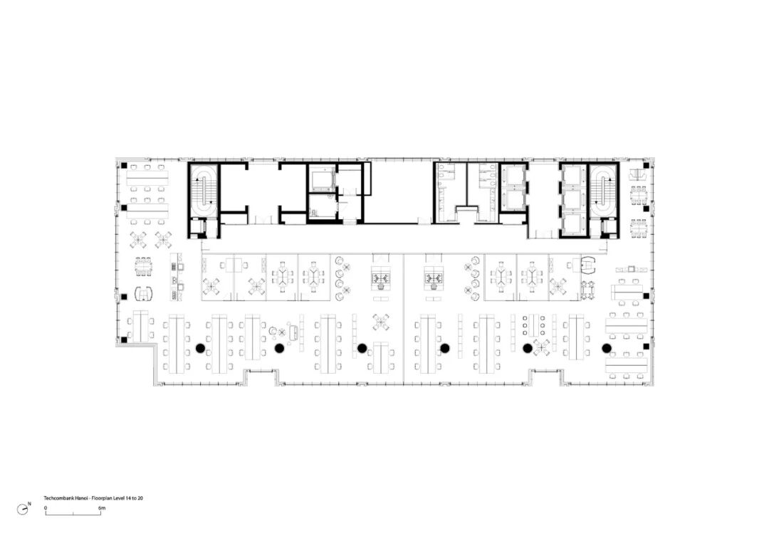
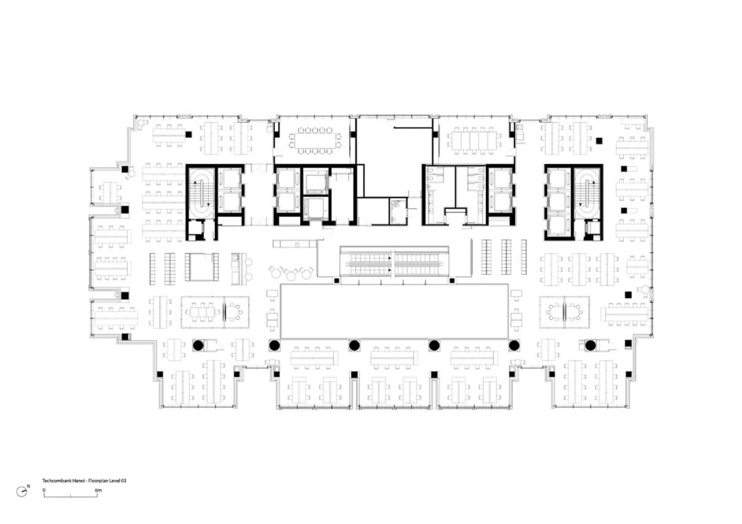
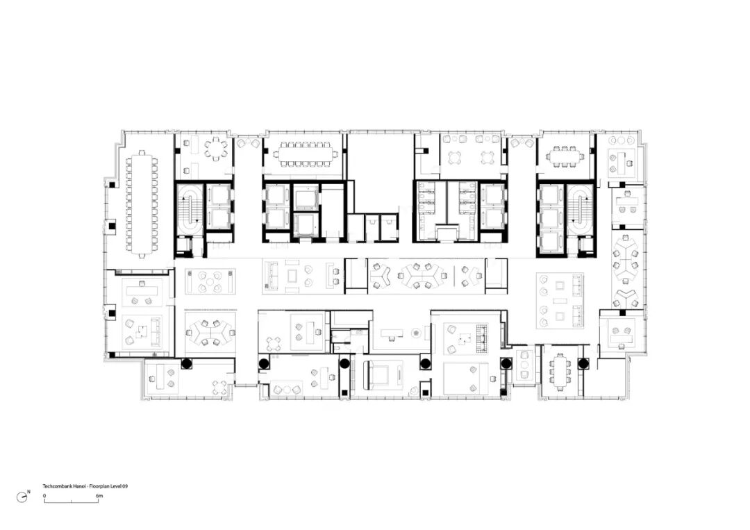
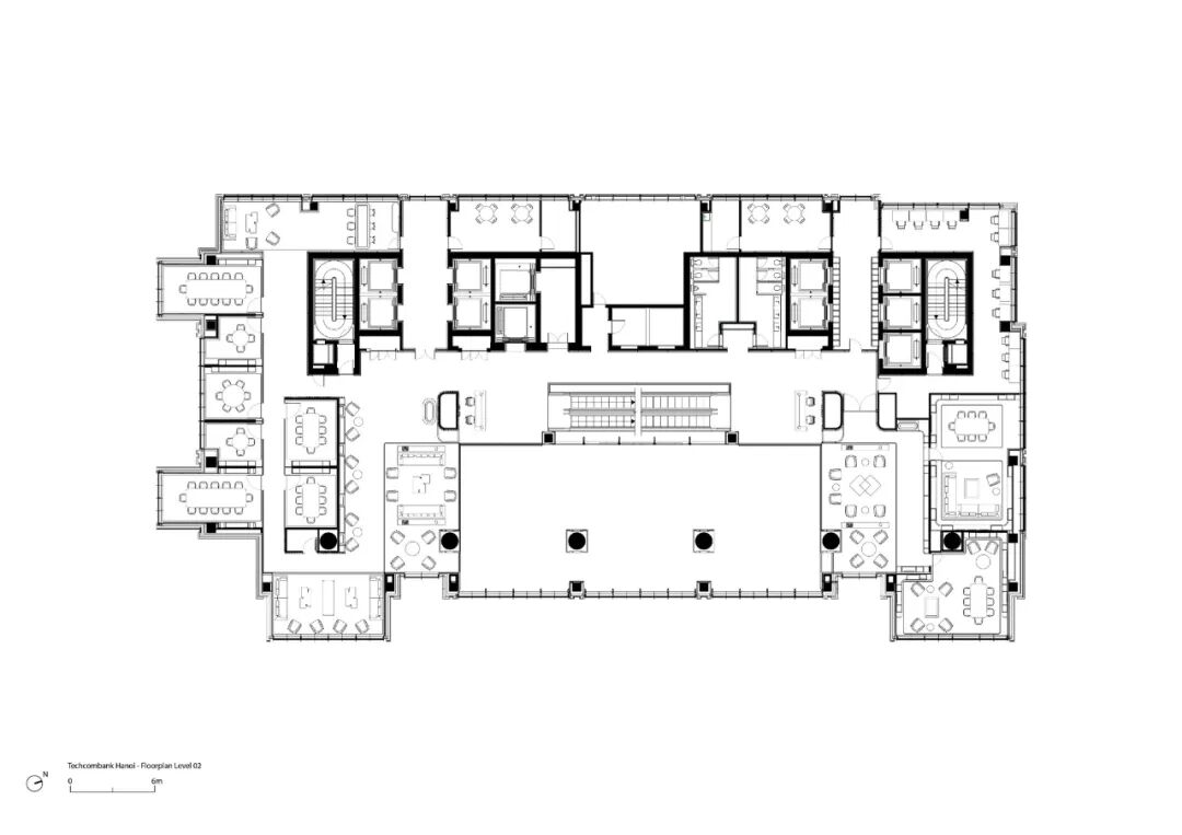
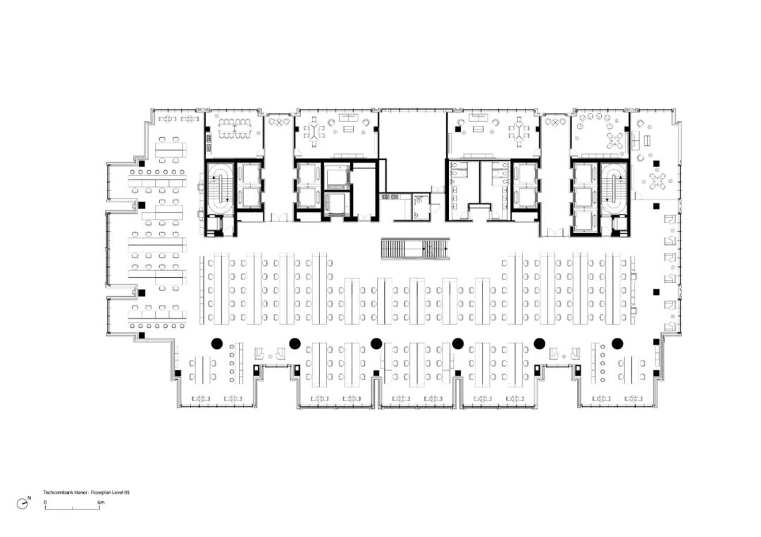
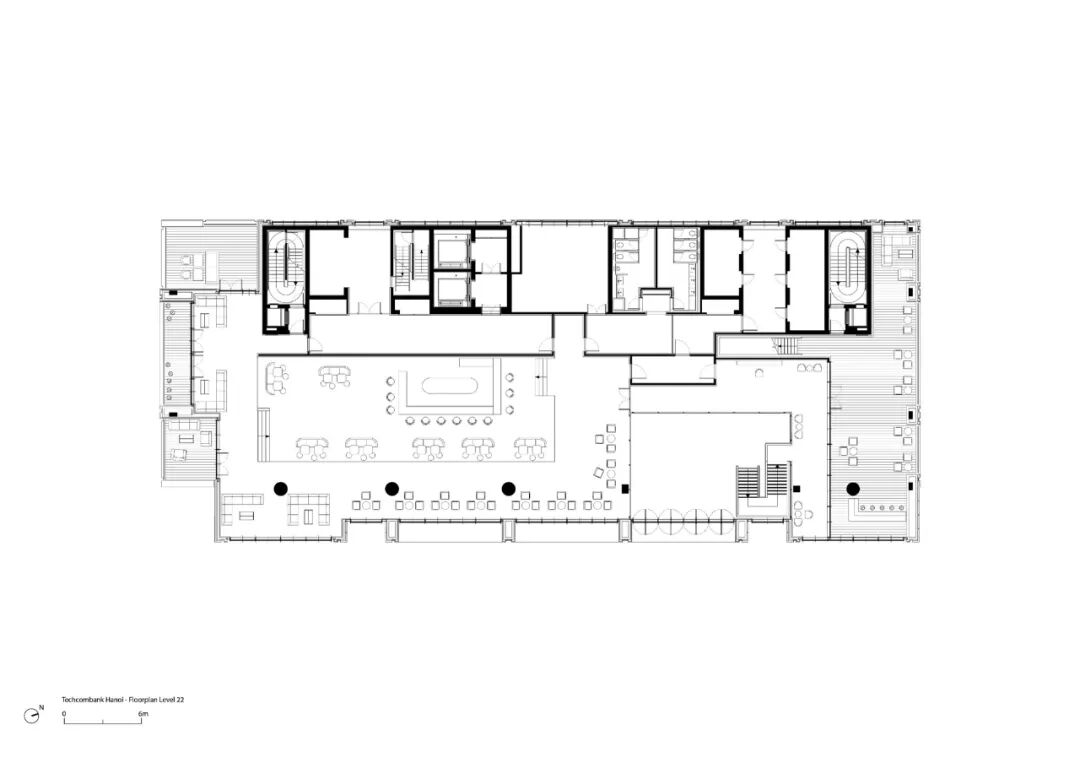
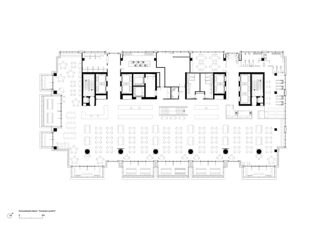
The public-facing departments and banking activities are grouped together and located at the base of the building for ease of access, while the senior management and other internal departments are positioned on the floors above. Level 7 features amenity spaces – for employees and the public – where people can eat and socialize together. A bar and an outdoor terrace across the top two floors offer spectacular views of the Hanoi skyline and Hoan Kiem Lake.

Movement through the ground floor is intuitive, with double-height lobby spaces, and different entrances for the banking customers and the offices. The banking floor has a relaxed atmosphere, akin to a hotel lounge, and VIP customers can access exclusive client-facing departments on the upper floors through a dedicated entrance or via the escalators leading up from the banking floor. Interiors are designed to be warm and sophisticated, with a palette of timber, bronze, and stone.

The project learns from the urban grain of the city. The base of the building is designed at a human scale, reflecting its public nature. It is clad with rich, earthy materials and screens, which respond to nearby buildings in the old quarter of Hanoi. On the upper levels, the predominantly glazed façade frames panoramic views of the city.

The main entrance is a large opening in the facade and the lobby is set back from the external screens to create a buffer zone between external and internal areas. Filtered natural light floods the lobby through the screens, making it feel open and bright without excessive solar gain.

项目图纸
剖面图
建筑师:福斯特建筑事务所(Foster + Partners)
地点:越南
年份:2023
本资料声明:
1.本文为建筑设计技术分析,仅供欣赏学习。
2.本资料为要约邀请,不视为要约,所有政府、政策信息均来源于官方披露信息,具体以实物、政府主管部门批准文件及买卖双方签订的商品房买卖合同约定为准。如有变化恕不另行通知。
3.因编辑需要,文字和图片无必然联系,仅供读者参考;
推荐一个
专业的地产+建筑平台
每天都有新内容
扫描二维码关注

微信公众号“搜建筑”(ID:sjz9999)
合作、宣传、投稿
联系微信:soujianzhu006


