


Industria 是英国首个多层轻工业项目,由 Haworth Tompkins 为伦敦巴金和达格纳姆区的重建公司 Be First 设计。该项目建筑面积超过 11,400 平方米,共四层,可容纳 45 家中小型企业,面积从 20 平方米到 450 平方米不等。该计划旨在容纳各种轻工业用途,一旦全部入驻,Industria 最多可提供 300 个就业岗位。
Industria is the UK’s first multi-storey light-industrial scheme, designed by Haworth Tompkins for Be First, the London Borough of Barking and Dagenham's regeneration company. It provides over 11,400 sqm of floor space, accommodating 45 small and medium enterprises spread over four levels, in spaces ranging from 20 to 450 sqm. The scheme was designed to accommodate a wide range of light industrial uses, and once fully occupied, Industria could provide employment for up to 300 people.



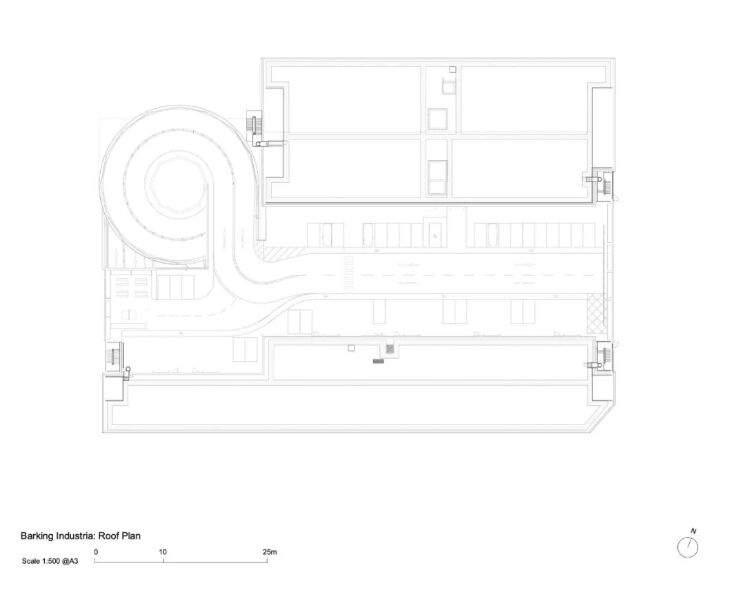
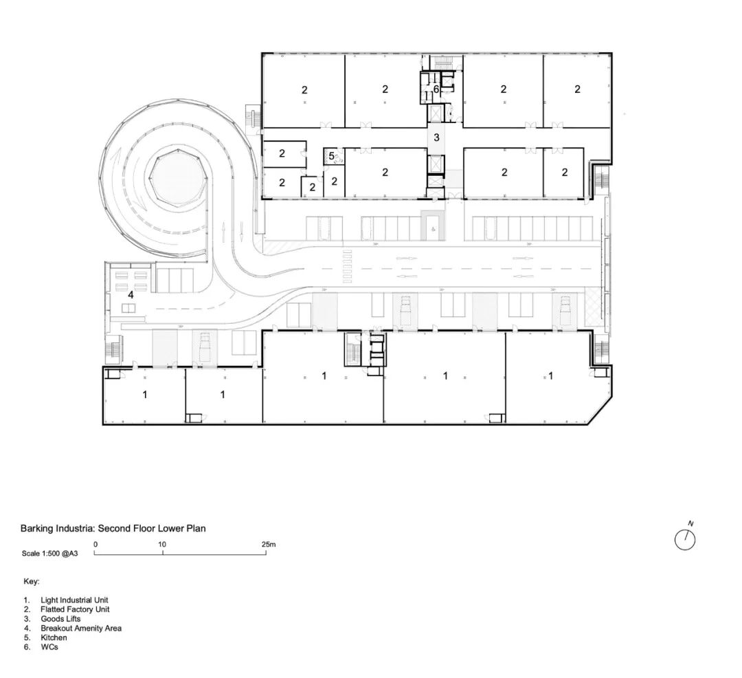
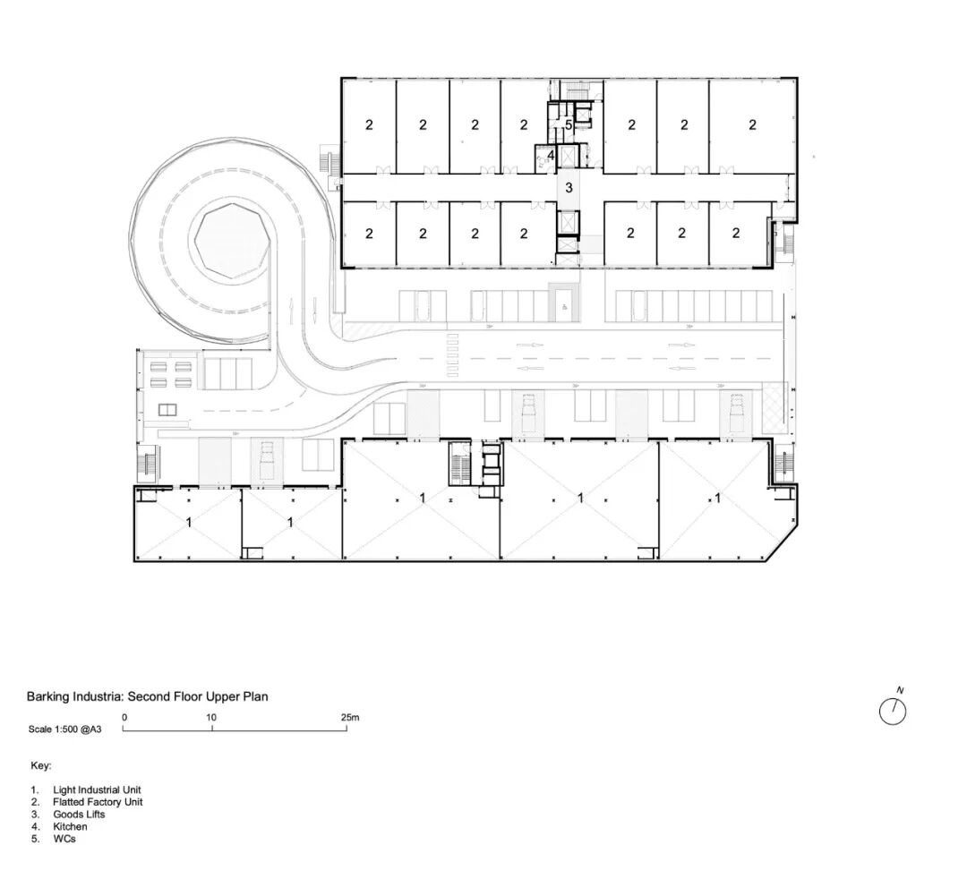
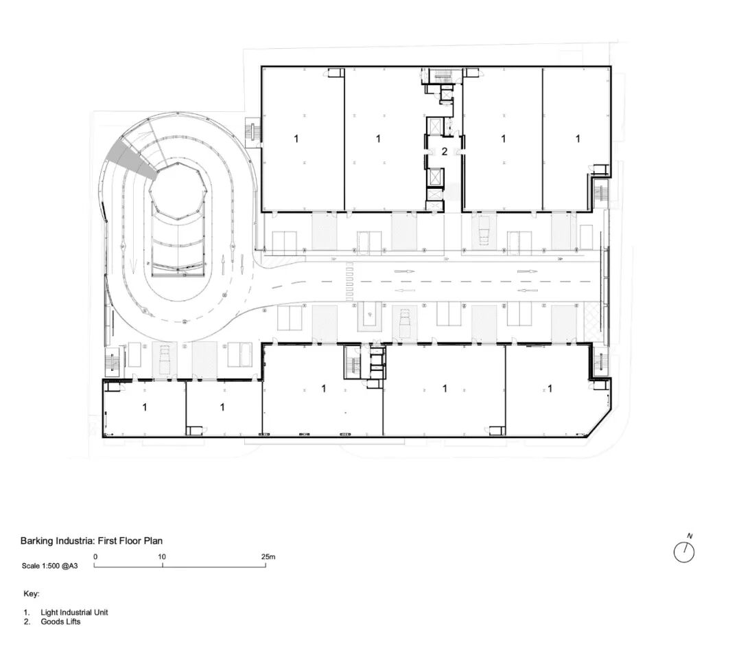
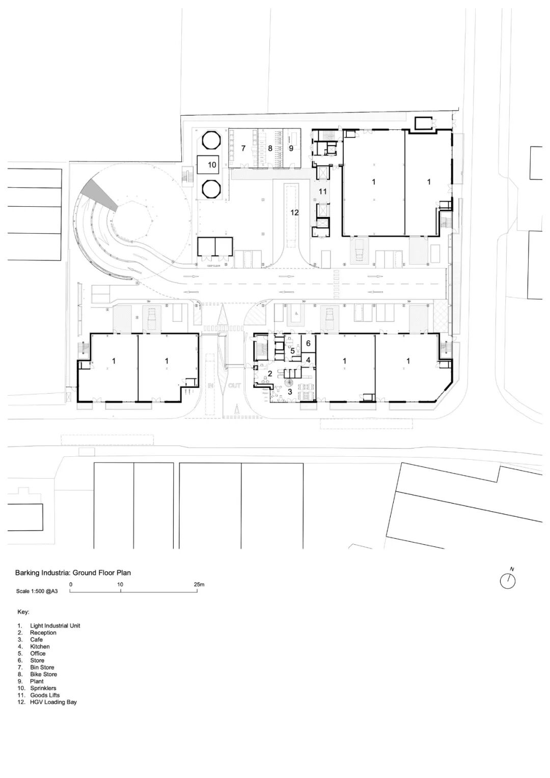
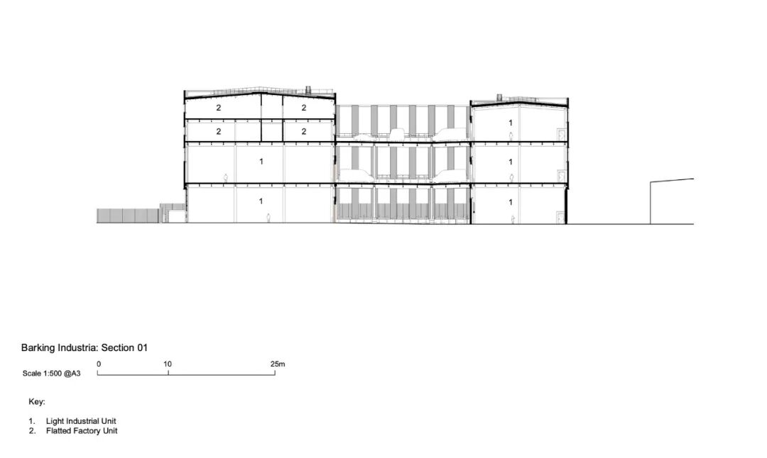
该建筑有两个线性翼楼,分别位于三层 26 米宽的服务平台两侧,可通过直径 30 米的螺旋坡道进入,提供直接的车辆通道。每个7 米高的单元都有自然采光和通风,并可容纳夹层,以实现定制布局。其中一翼还有一个额外的楼层,为规模较小的租户、初创企业和孵化器单位提供空间。Industria 是与工业专家 Ashton Smith Associates 合作设计的。
The building features two linear wings arranged on either side of three levels of 26m-wide service decks, accessed by a 30m diameter helical ramp, providing direct vehicle access. Each 7m high unit features natural light and ventilation and can accommodate mezzanine levels to create bespoke layouts. One wing has an extra floor, providing spaces for smaller-scale tenants, start-ups and incubator units. Industria was designed in collaboration with industrial specialist Ashton Smith Associates.



这种多层次的设计方法大大提高了场地的强度,远远超出了标准低层开发项目的预期。Industria 2,000 平方米的光伏太阳能电池板每年可发电 297,198 千瓦时,足以为约 100 户家庭供电。凭借 100 多年的使用寿命和高隔热性能,Industria 预计将获得英国建筑性能评估体系的优秀认证。
The multi-level approach intensifies the site far beyond what could be expected from a standard low-rise development. Industria’s 2,000 sqm of photovoltaic solar panels will generate up to 297,198 kWh annually, enough to power approximately 100 homes. With a 100+ year lifespan and high thermal insulation, Industria is expected to reach BREEAM Excellent certification.


该计划以员工福利和社区为核心。配套设施包括底层咖啡厅、商务中心、休息空间、自行车停车场以及更衣和淋浴设施。此外,Industria 还拥有完善的公共交通设施,包括铁路和公共汽车,并提供电动汽车充电点。霍沃斯-汤普金斯与品牌设计公司 DNCO 合作,设计了图形大胆的立面,反映了建筑的工业功能,以及方案的路标和图形标识。内部甲板立面的波纹金属板采用了俏皮的银色和黄色棋盘格图案,灵感来自大楼的螺旋车辆坡道标志。
The scheme has employee well-being and community at its core. Amenities include a ground-floor café with a business hub, breakout spaces, cycle parking, and changing and shower facilities. Industria is also well served by public transport, including rail and buses, and provides EV charging points. Haworth Tompkins worked with the branding agency DNCO to design graphically bold elevations that reflect the building’s industrial function, as well as the scheme’s wayfinding and graphic identity. The corrugated metal paneling of the interior deck façades features a playful silver and yellow checkerboard pattern, inspired by the building’s helical vehicle ramp logo.


建筑外围的底层采用了深卵石纹理的颜料预制混凝土板,上层则采用了黑色金属包层。整个外墙均采用高品质的 MMC 面板系统。在室外,露台两端和临街两侧采用了绿墙和植被,增加了生物多样性、遮阳效果、私密性和视觉趣味性。承包商麦克拉伦建筑集团(McLaren Construction Group)在工业和物流领域拥有丰富的专业知识,确保了整个项目的高效施工和高品质装修。
The building’s outer perimeter features pigmented precast concrete panels with a deep pebble texture on the ground floor and black metal cladding on the upper storeys. The entire façade was constructed using high-quality MMC panel systems. Outside, green walls and planting have been introduced at deck ends and alongside street frontages adding biodiversity, shading, privacy and visual interest. Contractor McLaren Construction Group’s extensive expertise in the industrial and logistics sector ensured efficient construction and high-quality finishes throughout.

工业区的设计是对首都工业空间流失的回应。从 2001 年到 2020 年,大伦敦地区失去了近 1,500 公顷(相当于 2,000 多个足球场)的工业用地,转而用于其他用途,主要是住宅。
因此,许多城区无法容纳混合经济,企业往往难以获得继续为当地服务的空间。Industria 位于河路就业区的中心,这里有许多支持伦敦经济的企业。霍沃斯-汤普金斯还为就业区设计了总体规划,其特点是进一步强化工业以及工业和住宅用途的组合,发扬该区的先锋工业精神,其中包括福特达格纳姆公司等。
Industria’s design responds to the loss of industrial spaces in the Capital. Between 2001 and 2020, Greater London lost nearly 1,500 hectares (the equivalent of over 2,000 football pitches) of industrial land to other, predominantly residential, uses. As a result, many urban areas cannot accommodate a mixed economy, and businesses often find it difficult to secure space to continue serving their local area. Industria sits in the heart of the River Road Employment Area, home to many businesses that support London’s s economy. Haworth Tompkins also designed a masterplan for the Employment Area, featuring further industrial intensification as well as colocation of industrial and residential uses, building on the Borough’s pioneering industrial spirit, which includes Ford Dagenham among many others.



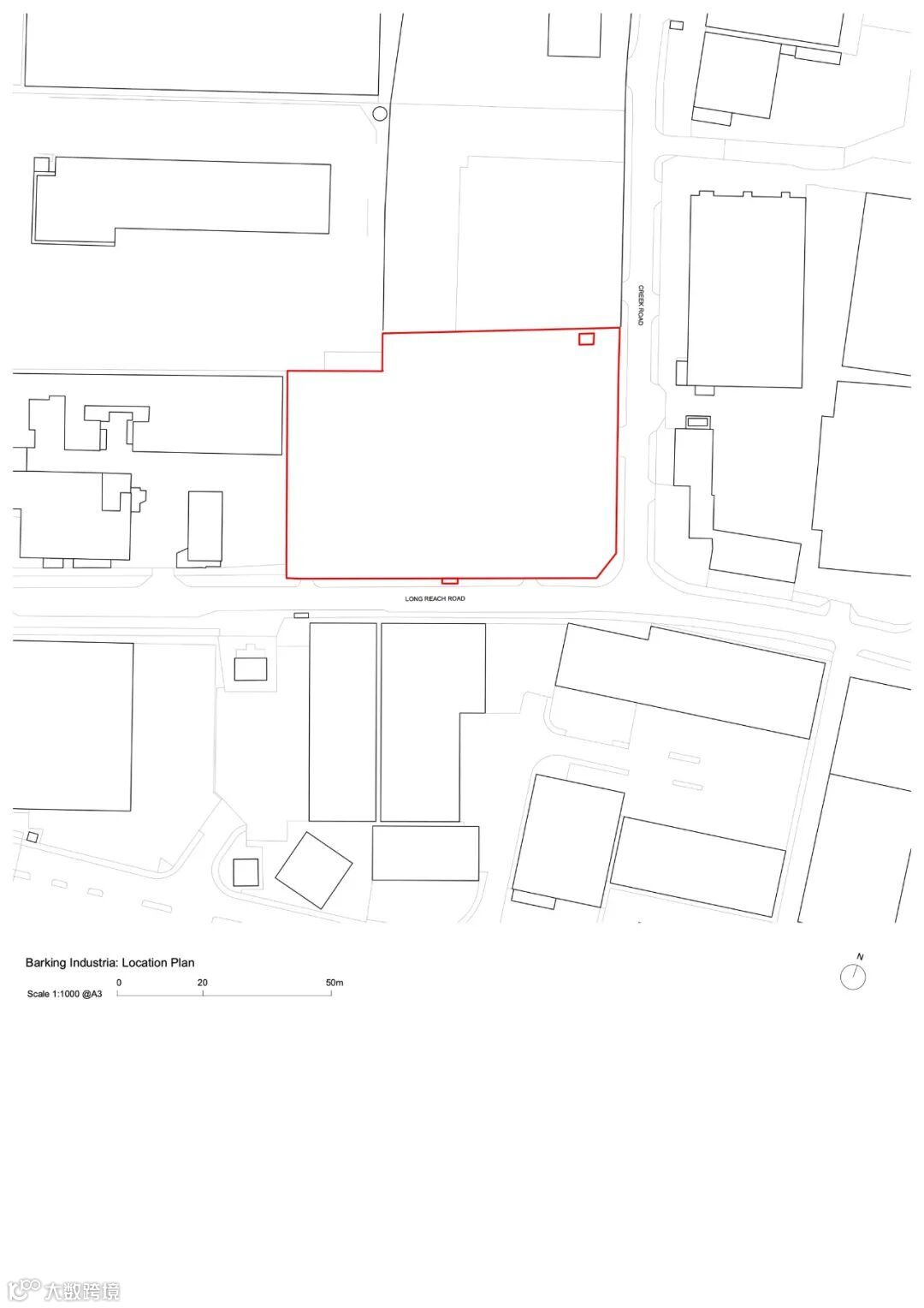
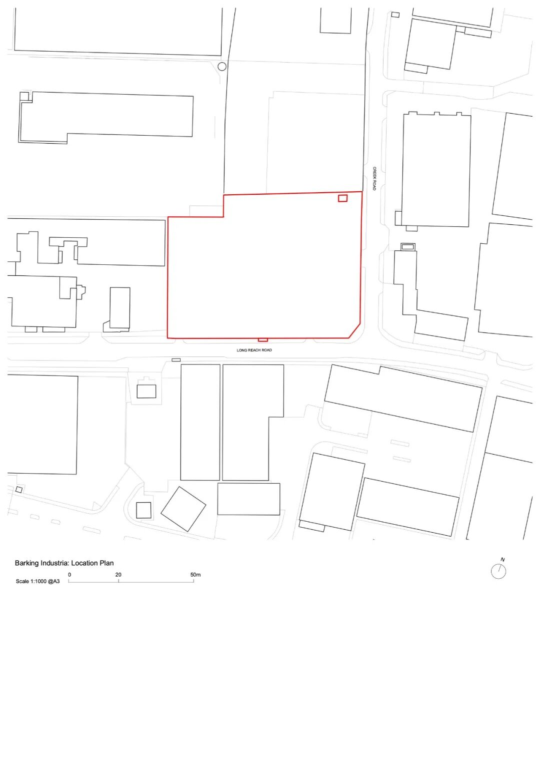
平面图

平面图

平面图

平面图

平面图

平面图

立面图

立面图

立面图

立面图

剖面图

项目信息
摄影:Fred Howarth
本资料声明:
1.本文为建筑设计技术分析,仅供欣赏学习。
2.本资料为要约邀请,不视为要约,所有政府、政策信息均来源于官方披露信息,具体以实物、政府主管部门批准文件及买卖双方签订的商品房买卖合同约定为准。如有变化恕不另行通知。
3.因编辑需要,文字和图片无必然联系,仅供读者参考;
推荐一个
专业的地产+建筑平台
每天都有新内容
扫描二维码关注

微信公众号“搜建筑”(ID:sjz9999)
合作、宣传、投稿
联系微信:soujianzhu006
搜建筑·矩阵平台