文化再生·功能融合·城市焕新
扬州大剧院的功能适应性改造与再生
如同一颗文化明珠闪耀耸立于城市之中
岁月的流水在其周围静静流淌
车水马龙,勾勒出都市的繁华画卷
人来人往,编织着生活的交响乐章
扬州剧院,是这片土地上的文化瑰宝
历经岁月的洗礼,传承着丰富的文化底蕴
如今它踏上了全新的再生之路
犹如和风轻拂,为这片文化之地注入崭新的生机
项目背景 | Background
城市的快速发展已进入到存量的时代,催生了既有的建筑空间的不断调整与更新来适应新的时代需求。剧院原本单一的功能面对着如今日益多元的文化需求,无法完全满足市民对于艺术和娱乐的多样化追求;同时剧院的单一功能在运营上的压力也越来越大。在此背景下,设计于上个世纪90年代后期的扬州大剧院的改造与再生势在必行。
改扩建设计通过寻求新与旧、地域性与现代性、文化艺术与商业运营的平衡,以创造充满活力的文化艺术综合体为愿景;在保留观众厅和舞台的基础上,拆除了剧院门厅进行了扩建,引入跟文化艺术关联的业态。单一功能的剧院演变为文艺综合体,为市民和游客创造出更加多样化的文化艺术、教育培训和休闲体验,扬州大剧院的改造具有这一类文化建筑再生的示范作用。
剧院现状 | Status
扬州大剧院总用地面积 11557.6 平方米,原有总建筑面积13347.75平方米。是为2000年第六届中国艺术节而建的大型剧场,在经历了岁月的洗礼和历史的积淀后,成为了一座代表性的文化地标。建筑自成立以来,曾见证了一代又一代的艺术盛宴,留下了无数珍贵的文化记忆。
然而随着时间的推移,扬州大剧院也不可避免地面临着一些现实问题。单一的建筑功能使得全年的利用率很低,剧场的日常运营和维护的压力变得很大;没有演出时建筑和广场都是封闭的状态,作为公共建筑无法体现社会性和公共性;陈旧的舞台设备,难以满足多样化的演出要求;观众席的设计存在舒适度和视线问题;同时剧院的外观形象也与城市的现代发展形成了鲜明的对比。
设计目标 | Context
扬州大剧院的升级改造旨在创造多变、灵活、通用的观赏和互动的艺术空间。在周围用地上,建筑风格各异,如何在这个多元环境中塑造个性鲜明的建筑形象、完美的建筑功能成为本案设计所要面对的挑战。
在对扬州大剧院的历史背景和现状进行深入评估之后,设计团队经过充分思考,在确保安全性和经济性的前提下,着手实现剧院的升级改造。以打造文化艺术综合体为设计愿景,希望在保留历史底蕴的基础上,为市民和游客创造更加丰富多样的文化体验。这一设计愿景将引导整个改造过程,使扬州大剧院蜕变为一个集观赏、互动和体验于一体的文化聚焦点,为城市注入新的活力。
改造策略 | Strategy
秉承打造一个文化艺术综合体的的设计愿景,改造计划将充分利用已有的剧院观众席、舞台及酒店房间等核心功能元素,保留剧院的基本结构。我们对建筑的功能布局、内部空间以及外部形态等多方面进行升级,在接下来的内容中,从四个层面对此次改造展开阐述。
| 1. 从日常封闭到对外开放
设计团队将原有剧场的门厅进行了独特而大胆的改造,拆除原本使用功能单一的门厅,重新打造成一个开放式的公共门厅,与城市空间紧密相连。门厅的外形精心设计,与周围城市环境相呼应,将建筑融入城市的脉络中,创造出一个与周边环境融合的文化空间。
在顶层引入LED观景光环,这一设计不仅在视觉上引人注目,更将剧院本身变成了一个独特的文化地标。光环的流动变化与城市的日夜节奏交相呼应,为城市增添了一抹亮丽的风景线。同时,结合屋顶花园的设计,将室外环境融入剧院的文化氛围之中,为观众和访客创造了一个愉悦的休闲空间,使得剧院从一个传统的剧院建筑转变为一个现代化的文化综合体。这种转变将使剧院更好地融入城市环境,成为市民生活的一部分。
| 2. 从单一功能到复合功能
为了充分利用城市地块并实现未来规划的发展愿景,我们深入探索将原本单一功能的剧院进行扩展,构建一个功能复合的文化艺术综合体。
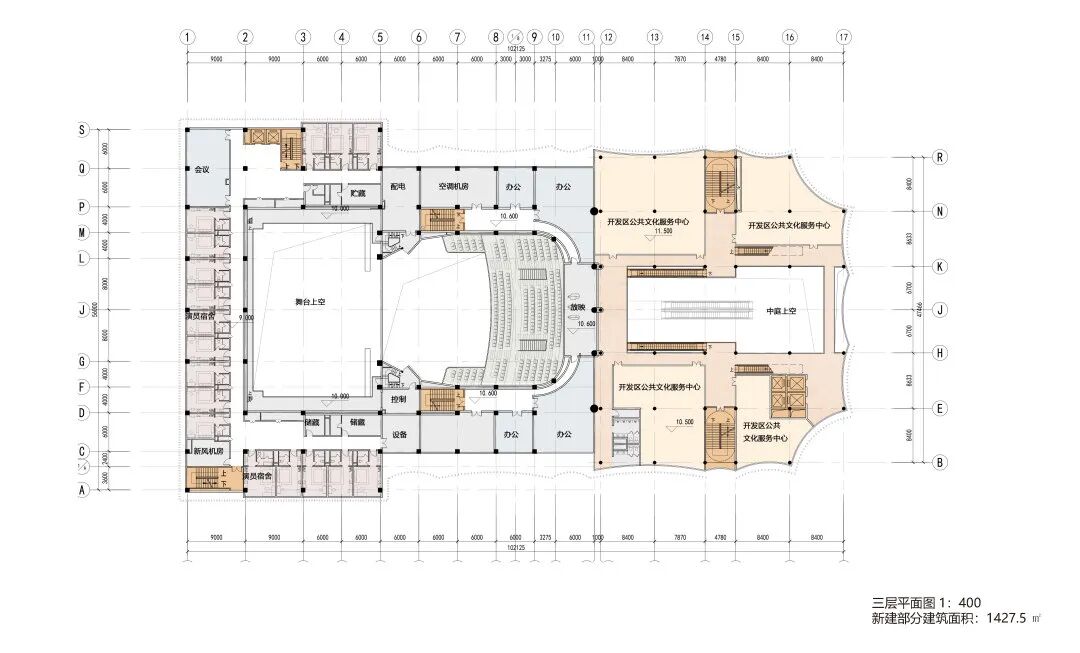
首先,我们保留了原有的演出功能,同时增设大型会议洽谈等多种相关辅助功能,从而更好地满足剧场空间的多种使用场景。
其次,我们将入口处的共享大厅与艺术展览相融合,使剧场和展览功能之间的内涵丰富而相互渗透,为观众呈现出更为丰富的文化体验。
此外,在沿街设置了文创艺术旗舰店和设计师品牌集合店等商业功能,以实现商业价值的最大化,为城市增添新的商业活力。
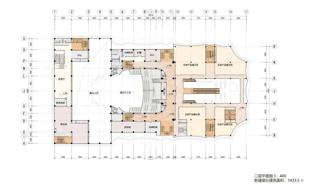
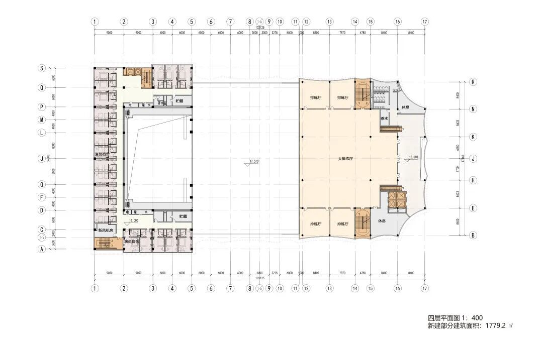
在建筑的四层设置了的艺术培训和多功能厅,为人们提供了更多元化的文化交流平台,促进文化的传承和创新。
而西侧原本的洗浴中心,改造升级为艺术主题酒店,其中包含了艺术展览和引人入胜的网红健身房,进一步丰富了人们的休闲娱乐选择。
通过这样多样的功能布局,我们不仅为观众和市民提供了更广泛的文化体验,也将剧院从一个单一的演出场所发展为一个融合了文化艺术、教育培训和休闲娱乐元素的城市文化中心。这个多功能综合体将成为城市的新地标,为扬州的文化发展和城市活力注入新的活力和魅力。
| 3. 文化建筑的公共性
设计团队对建筑的外部形象进行全新设计,以彰显建筑的公共性与开放性。数字表皮的设计巧妙融合了融媒体建筑的时尚感和科技感,不仅满足现代审美需求,更将建筑与城市文化相互交融。
在立面方案中,方案一以“烟雨扬州”为主题,汲取了流水、丝绸和风景的灵感,色彩呼应扬州广电的视觉识别系统。透过百叶和灯光幕墙的精妙构造,产生视觉上疏密不一的灯光效果,在不同角度呈现流动变化的图形。这样的设计不仅使其成为扬州文化的代表,更将其打造成为城市文化的亮点,以开放的姿态与市民互动。
而立面方案二则以“琼花”为主题,采用像素化处理,通过参数化穿孔表皮,创造出室内外不同的视觉效果。这种设计方式不仅体现了对地域文化的传承,更融入了创新的元素,将扬州的独特韵味与现代设计理念相结合。
在总图设计中,景观设计灵感源自扬州广电集团的LOGO抽象化处理以及中国书法和水墨画的元素。南侧广场与建筑一体化设计,为现有场地注入新的活力和价值,使之成为城市中不可或缺的文化聚集地。
而在场地规划过程中,我们还特别考虑了不同功能使用群体的独立入口,以凸显建筑的公共性和社会属性。
| 4. 文化建筑的焕然新生
建筑的焕然新生主要在室内的升级改造中得以展现,特别关注了剧场和洗浴中心的转型。原有剧院西侧的洗浴中心已不再适应当下的社会需求,而剧场方面则存在着舞台器械陈旧、多功能使用需求无法满足的问题,制约了舞台艺术的全面展现。此外,台唇部分进深过小,无法适应多样的使用需求。剧院现有坐席排距过小,前后排座椅的舒适度不够,同时楼座视线升起高度不足,无法满足观众的视线需求。
为解决这些问题,设计团队提出以下改进策略:
首先,对剧院室内及舞台需进行全面装修,以满足现代剧院的舒适使用。设计团队在满足视线需求的基础上重新布置座位以提高舒适度。此次改造使剧院从1038座升级为800座剧场。
同时,空间使用的多样性成为改造的关键。内部空间经过巧妙规划,融合了灵活可变的舞台设计与多功能区域,在符合规范的前提下满足各类演出形式与文化活动的需求。同时,设置灵活的座位布局,为不同类型的演出与观众需求提供多样选择。
针对洗浴中心,酒店改造策略以艺术性为核心。通过融入装饰艺术品、雕塑、绘画和艺术装置,将酒店的每个角落都变成了艺术的展示区,为住客带来独特的文化体验。室内设计也强调艺术性,借助灯光效果、家具布置和墙壁装饰等,创造独特的艺术氛围。流线的设计在空间规划上起到了关键作用,使住客在酒店中留连忘返,仿佛置身于艺术的海洋。
此外,酒店还可举办艺术展览、文化活动等,吸引艺术家、文化爱好者及国际游客,使酒店成为文化与艺术交流的重要平台。员工也会受到艺术教育培训,以更好地传递酒店的艺术文化内涵。
结语 | Conclusion
扬州大剧院的改造与再生,正彰显了其与时俱进的文化责任和城市使命。创造活力充沛的文化综合体,打造城市文化艺术新地标,已经成此次改造的核心动力。从单一功能到复合功能,实现了从剧场建筑到文化综合体的转变;从日常封闭到日常开放,体现了文化建筑的公共性,承载了对城市和市民的关怀与承诺。通过这次改造,剧院将焕发出更加丰富、多元的文化光芒,为城市的文化发展贡献着独特而不可替代的价值。
- 技术图纸 -
- END -
本资料声明:
1.本文为建筑设计技术分析,仅供欣赏学习。
2.本资料为要约邀请,不视为要约,所有政府、政策信息均来源于官方披露信息,具体以实物、政府主管部门批准文件及买卖双方签订的商品房买卖合同约定为准。如有变化恕不另行通知。
3.因编辑需要,文字和图片无必然联系,仅供读者参考;
推荐一个
专业的地产+建筑平台
每天都有新内容
扫描二维码关注

微信公众号“搜建筑”(ID:sjz9999)
合作、宣传、投稿
联系微信:soujianzhu006
搜建筑·矩阵平台
阅读原文:“UDG联创设计”更多精品

