▲ 更多精品,关注“搜建筑”



幼儿教育和保育中心(幼儿园)旨在实现 "与大自然自然相处 "的原则。这座单层木制建筑坐落在沙丘顶上一条蜿蜒小路的尽头,为孩子们提供了一个充满特色的房间和凹槽的多样化基地。构建一个大型的儿童保育环境",从托儿所房间、建筑和托儿所院子延伸到周边地区,使之成为一个整体,并 "建立一种相互守望的关系",让整个村庄成为孩子们学习和游戏的一部分,同时让孩子们为村庄注入活力。这就是我们的目标。
The Center for Early Childhood Education and Care (nursery school) aims to achieve the principles of engaging “naturally with nature”. Located at the end of a winding pathway atop of a sand dune, this single-story wooden building provides a diverse base for children filled with characterful rooms and recesses. The "construction of a large childcare environment" that extends beyond the nursery rooms, the building, and the nursery yard to the surrounding area as a single continuum, and the "establishment of a mutually watchful relationship” in which the whole village is a part of there for the children's learning and play, and while the children revitalize the village. That is what was aimed for.




这所幼儿园为谁而建?托儿所研究人员和工作人员、家长和当地居民举行了一系列研讨会,讨论在郊区重建一所托儿所的好处。
随着人口老龄化和出生率下降,重点放在了幼儿园如何为儿童和周边地区带来益处上。与会者最后提出了 "创建一个像村庄一样的幼儿园,培育一个像幼儿园一样的村庄 "的愿景。这个 "边界模糊、不断扩大的幼儿园 "可以让孩子们在室内房间、室外操场和村庄本身之间自由穿梭。此外,幼儿园还可以向村民开放,作为社区互动和参观的场所。
Who or what is this nursery school for? Childcare researchers and workers, parents, and local residents held a series of workshops to discuss the benefits of reconstructing a nursery school on the suburban site. With an aging population and declining birthrate, emphasis was placed on how a nursery school could benefit the children and the surrounding area. The participants concluded on a vision "to create a nursery school like a village and foster a village like a nursery school. The "vaguely bounded, expanding nursery school” would allow children to move leisurely between interior rooms, exterior playgrounds, and the village itself. Additionally, the nursery school could be open to villagers as a place for community interaction and visitations.




在现场条件下,大型木材无法运输,因此只能在现场搭建木桁架,将小型木材组合在一起,形成大型的苗圃空间。顶点朝上和朝下的桁架组合成一系列桁架屋顶。将桁架的交叉点从隔墙的顶部移开,使每个房间的环境更具表现力,而隔墙上方的开放空间则给人一种连接感。
Under the site conditions, large timbers were prohibited from being transported, and so wooden trusses were built on the field by combining small timbers to create large nursery spaces. Trusses with apexes facing up and down are combined to create a series of truss roofs. Moving the intersection of the trusses from the top of the partition walls allows for a more expressive environment in each of the rooms, while an open space above the partition gives them a sense of connection.

蜿蜒狭窄的街道是村庄的特色,被引入幼儿园,成为一直延伸到建筑后部的外部走廊,这样孩子们的笑脸就仿佛置身于村庄之中。建筑前方是儿童保育支持办公室和露台广场,将用于举办当地农贸市场和食品卡车活动,将社区活动与幼儿园活动结合起来。
The winding, narrow streets that characterize the village are drawn into the nursery school and made into exterior corridors that continue to the back of the building so that the children's smiling faces will appear as if they are in the village. A childcare support office and deck plaza are situated in front of the building, which will be used for local farmers' markets and food truck events, mixing community activities with nursery school activities.




此外,还在县级杉木地板下安装了空调和全热交换器,形成了一个地板下气室,这样孩子们就不会直接暴露在气流中,而是通过辐射热作用于身体,为学习和游戏创造了舒适的条件。自幼儿园开园以来,随着时间的推移,在场地横断面布局流动性的鼓励下,孩子们在不同年龄组之间的社交活动越来越多。此外,随着孩子们在户外活动时间的增加,前来观看他们的老年人也越来越多。
In addition, air conditioners and total heat exchangers are installed under the prefectural cedar flooring, creating an underfloor air chamber, so that children are not exposed to direct airflow, but radiant heat works on their bodies, creating comfortable conditions for learning and play. As time has passed since the nursery school’s opening, encouraged by the fluidity of the cross-sectional layout of the grounds, children have socialized more between their age groups. Additionally, as the children spend more time outside, the number of senior citizens out for a walk watching them has increased



在幼儿园的屋檐下,家长们在接送孩子的间隙相互交流。这所 "边界模糊的幼儿园 "为孩子们的学习和游戏创造了灵活性和扩展性,顺应了每个人的愿望,并开始创造一种新的乡村日常生活。看来,"创建像村庄一样的幼儿园,培育像幼儿园一样的村庄 "的种子已经开始发芽。
Under the eaves of the nursery school building, parents engage with one another between drop-offs and pick-ups. This "vaguely bounded nursery school " is creating flexibility and expansion in children's learning and play, responding to everyone's wishes and beginning to create a new everyday life in the village. It seems that the very seeds of " creating a nursery school like a village and fostering a village like a nursery school" are beginning to sprout.






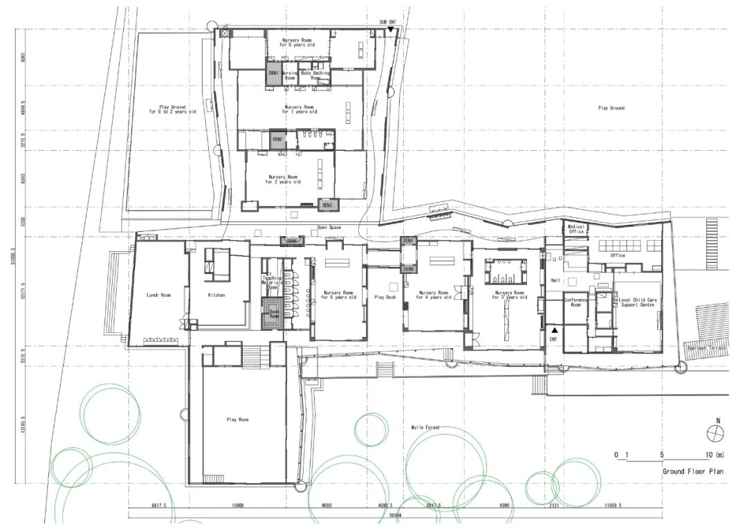
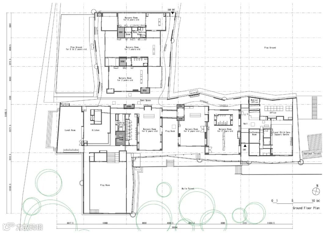
平面图

立面图

剖面图

项目信息
建筑师:Takeru Shoji Architects
地点:日本
面积:1101 m²
年份:2021
本资料声明:
1.本文为建筑设计技术分析,仅供欣赏学习。
2.本资料为要约邀请,不视为要约,所有政府、政策信息均来源于官方披露信息,具体以实物、政府主管部门批准文件及买卖双方签订的商品房买卖合同约定为准。如有变化恕不另行通知。
3.因编辑需要,文字和图片无必然联系,仅供读者参考;
推荐一个
专业的地产+建筑平台
每天都有新内容
扫描二维码关注

微信公众号“搜建筑”(ID:sjz9999)
合作、宣传、投稿
联系微信:soujianzhu006
搜建筑·矩阵平台