▲ 更多精品,关注“搜建筑”
近些年,建筑外立面的材料使用,没有太大变化:
一是成本比较高的干挂体系(选材以玻璃、石材、铝板、仿石类为主)
二是涂料体系(比如真石漆、多彩漆、质感涂料、饰面砂浆等)
从绿色建筑到绿色建材,再到大力发展绿色建造方式,目前我国已全面实现新建建筑节能,特别是绿色建筑发展迅速、成效显著。
住房城乡建设部数据显示,截至2022年上半年,我国新建绿色建筑面积占新建建筑的比例已经超过90%,全国有约4000个产品获得绿色建材评价认证证书,逐渐实现规模化应用。

营造人性化、绿色生态的工作生活环境成为市场的新命题。
应用绿色环保建筑材料的必要性
① 在建筑领域应用绿色环保建筑材料的必要性
为推进碳达峰、碳中和目标实现,国家大力发展绿色建筑,实施工程建设全过程绿色建造,加快推进超低能耗、近零能耗、低碳建筑规模化发展。
那么绿色建材就是绿色建筑非常重要的基础,发展绿色建材能够助力节能降耗、清洁生产,提升建筑工程品质,因此要全面推广绿色低碳建材,推动建筑材料循环利用。
2021年提出的“碳达峰十项行动”中,明确严禁新增水泥熟料、平板玻璃的产能,加快推进绿色建材产品的认证和应用推广,加强新型胶凝材料、低碳混凝土、木竹建材等低碳建材产品研发应用。
② 新型绿色环保建筑材料的特征优势
与传统的建筑材料相比,新型环保的建筑材料具有较多优势:
• 低能耗,新型建筑环保材料主要利用废渣以及垃圾等废弃物,这样就能够实现能源的利用效率,尽量减少材料在生产的过程中对于资源的使用。
• 无污染,加工和生产的过程中,基本上都采用清洁工艺,采用绿色环保的材料,因此能够做到对环境的保护作用。
• 多功能,新型的绿色建筑材料,不但具有相应的节能环保的功能,同时安全耐用,这对于健康起到一定的保护作用,改造人类所居住的生活环境,提高居住者的舒适度。
建筑外立面常用绿色建材及其应用
接下来搜建筑本期解析:住宅建筑外立面常用的绿色建材。
(注:以下并非所有建材都获得了绿色建材认证证书,仅是相对来讲均为常用的、绿色环保的建材,供大家参考学习。)
国内开发商对住宅的外立面越发重视,我们看到越来越多美轮美奂的外立面,与此同时,它们还承载了更多与时俱进的功能,绿色环保、抗风抗震、历久弥新、保温降噪等。
搜建筑来盘点一下这些绿色建材:

(价格与实际或有出入,仅供参考)
① LOW-E玻璃
普通单片玻璃和镜面玻璃存在节能性差、光污染等问题。目前,许多健康绿色住宅和科技住宅项目采用双层中空LOW-E或三玻两腔中空玻璃,甚至四玻双腔LOW-E玻璃,代替单层玻璃。

LOW-E玻璃示意图
搜建筑往期重点解析:高端住宅——为什么青睐LOW-E玻璃?
特点
LOW-E玻璃有节能环保、保温隔热、光学性能优越、热性能优越、不仅防尘且美观等优点。

与普通单片透明玻璃相比:
• LOW-E玻璃可有效降低约35-40分贝的噪音干扰。
案例
比如舟山绿城柳岸晓风外立面扁平化设计,采用LOW-E中空玻璃以及浅色金属漆型材。
外立面实景图 ©山间影像

立面材料细节 资料来源:九米设计
内外融合,打破室内外的界限。LOW-E玻璃良好的断热性能,可起到冬天室内暖流不流失,夏天外部热量不流进室内的屏障作用,保持室内温度稳定。
外立面实景图 ©是然建筑摄影
中交·象江来建筑外立面选用大面积水晶灰LOW-E玻璃+铝板搭配应用,形成了新的审美,塑造出全新维度的美学体系。
立面效果图 ©LEAP

立面材料细节 ©LEAP
立面效果图 ©LEAP
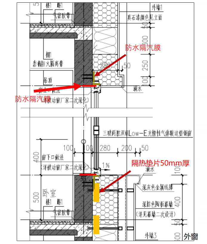
还有的使用三玻双腔中空玻璃,比如融创北京学府壹号院项目,整体外立面采用了大面积玻璃+石材+灰瓦,采用了超低能耗的节能措施。
效果图
玻璃用的是三玻双腔双low-e中空暖边玻璃,内填氩气,整窗传热系数为≤1.0 W/(m2.K),玻璃均为钢化安全玻璃,保证了很好的保温性能和气密性,同时在外墙打造上采用的是250㎜厚的石墨聚苯板,比普通的外墙保温多出了150㎜的厚度。打造了一个绿色、静谧,真正懂得生活的建筑。
立面材料细节

立面材料细节
中鹰·黑森林11号,采用法国圣戈班,四层双腔Low-E玻璃技术,采用四层超白钢化玻璃,为这栋楼王之作增添惊异的色彩。

中鹰·黑森林11号 实景图
中鹰·黑森林 四层双腔Low-E玻璃原理图

中鹰·黑森林 四层双腔Low-E玻璃原理图
② 铝板幕墙
铝板的种类非常多,建筑上使用的铝板包括单层铝板、复合铝板等。铝板幕墙外观形状可以多样化,并能与玻璃幕墙材料、石材幕墙材料结合。其自重轻,仅为大理石的五分之一,是玻璃幕墙的三分之一,大幅度减少了建筑结构和基础的负荷,而且维护成本低,性能的价格比高。
搜建筑往期重点解析:铝板幕墙 —— 为什么“豪宅”这样设计
复合铝板和铝合金单板对比
特点
铝板有绿色环保、防水耐蚀、安全性能优越、重量轻,抗风抗震、历久弥新等优势。
在环保品节能上,铝板本身可以99.9%回收,投入生产再使用,很大程度上节省了材质资源,可以真正意义上称为环保绿色建材。
铝板的特点还在它的后期维护也比较方便,不易玷污,便于清洁保养。
案例
比如重庆龙湖金茂北岛外立面选材上以隐框玻璃+金属铝板为主,大量铝板线条,使得整个建筑外观更为立体挺拔,尽显幕墙质感。
立面细节 ©三棱镜

节点图 ©HZS
节点图 ©HZS
比如沈阳龙湖·天奕外立面强调挺拔感,采用石材+金属铝板与干净通透的玻璃碰撞,产生现代优雅的气质。
外立面实景图 ©PrismImage 日野

立面材料细节 ©PrismImage 日野
通过铝板的竖向设计以及水平线条丰富了立面的立体感。高层住宅二层以上部分使用香槟金铝板结合仿铜金属窗框,门窗玻璃采用双层中空节能玻璃。造型轻盈的香槟金铝板,防水、防污、耐腐蚀性良好,持久长新。
外立面实景图 ©PrismImage 日野
下边搜建筑给大家介绍几个可替代石材的绿色建材:
节能环保的仿石材绿色建材,可以来替代天然石材等不可再生资源,仿石材具有资源综合利用的优势,在环保节能方面具有不可低估的作用,也是名副其实的建材绿色环保产品。
③ 仿石铝单板
仿石铝单板是众多幕墙装饰材料中的一种,它的外观,纹路都与石材非常相似,在装饰的效果上与石材无二,在性能上,仿石铝单板的物理性能,比石材更加优异,凭借本身的外观、物理性能等成为了石材的理想替代品。
仿石铝单板示意图
特点
仿石铝单板具有环保节能、防水耐污、阻燃性高、重量轻便、施工快捷、物美价廉、可塑性强、颜色可定制、使用寿命长等特点。
案例
比如杭州大家绿城金麟府建筑主体采用辊涂印刷的仿石铝单板干挂。宁波天阳·永丰天第基座以上同样也是仿石辊涂铝单板,可以假乱真的仿石铝单板,石材质感增添了建筑的细节表达和价值感,同时也保证了建筑的整体性。
杭州大家绿城金麟府 ©是然建筑摄影
宁波天阳·永丰天第 ©曾江河
④ 保温装饰一体板
保温装饰一体板替代天然石材,保护资源。很多项目外立面就采用了铝板仿石保温一体板。
保温装饰一体板示意图
特点
保温装饰一体板有保温隔热、降耗节能、安装便捷,节省成本、质轻省地、耐震防裂、阻燃、防水、防潮、隔音降噪、绿色环保、经久耐用、色彩丰富等优势。
延伸阅读:
案例
比如宁波金地华章府建筑外立面在材料的选择上,选用了新兴材料保温一体板等绿色建材产品,在充分体现现代建筑风格的同时,很大限度地保证了立面的平整度,保留属于建筑的那份质感。
宁波金地华章府 立面细部构造分析
南京世茂城品,项目外立面主材采用了浅香槟金色一体板和深灰色一体板的组合,两种板材一暖一冷,互为调和。

⑤ 陶板
陶板是新型绿色建材,越来越多的项目开始使用陶板替代石材。
陶板特性
特点
陶板有绿色环保、历久弥新、空心结构,自重轻、易洁功能显著、各项性能高、抗冲击能力强、高颜值等优势。
延伸阅读:
案例
比如郑州永威上和郡外立面采用了陶板,选用陶板作为外立面除了其艺术之美外,还践行着城市绿色环保的理念。
郑州永威上和郡一期陶板立面实拍图
再比如上海中信九庐项目,ARQ建筑事务所以GRC+陶板材料,在外立面做出柔和的曲线造型,不仅整合了立面,而且波纹的形象也使得建筑呈现统一和谐的景观。
立面实景图 ©Blackstation
立面细节图 ©Blackstation
结语:
为推进碳达峰、碳中和目标实现,应大力发展节能低碳建筑,全面推广绿色低碳建材,推动建筑材料循环利用等,不仅仅是在住宅建筑。
后续会推出公建项目、售楼处项目外立面绿色建材的应用,敬请期待!
本资料声明:
1.本文为建筑设计技术分析,仅供欣赏学习。
2.本资料为要约邀请,不视为要约,所有政府、政策信息均来源于官方披露信息,具体以实物、政府主管部门批准文件及买卖双方签订的商品房买卖合同约定为准。如有变化恕不另行通知。
3.因编辑需要,文字和图片无必然联系,仅供读者参考;
推荐一个
专业的地产+建筑平台
每天都有新内容
扫描二维码关注
微信公众号“搜建筑”(ID:sjz9999)
合作、宣传、投稿
联系微信:soujianzhu006



















