▲ 更多精品,关注“搜建筑”
从竖厅到横厅,再到方厅、巨厅的流行,开发商为什么今年开始做边厅了?
不知大家有没有注意到,市面上的横厅是前两年开始流行的,市面上的户型功能性越来越强,越来越趋于紧凑。房企们也开始迎合这一需求,做出更多的房间,更多的卫生间。
发展到今天,就连90平都已经能做到三房两厅两卫了。而功能性发挥到极致的同时,也导致市面上产品同质化较为严重。
因此,房企们开始考虑放大一个功能,也就是客餐厅的功能,先是把客餐厅合并成一个贯通完整的空间,再给到客餐厅充足的采光面,除了竖厅、横厅还发展到了如今火爆的“边厅”。

“边厅”打破传统客厅布局
“边厅”优势:
◎ 边厅户型,绝对的动静分区;
◎ 大部分边厅设计减少了纯过道空间,提高了户型的使用率;
◎ 270°采光,边厅拥有更大的采光面和更好的通风效果;
◎ 边厅时尚感更强,在后期装修设计时有更好的发挥空间,装修样式多,整体更大气,更有空间感。
难道“边厅”就没有BUG了么?喜爱传统户型的人大多会认为:
◎ 客厅的沙发不能靠着墙,不符合中国人的习惯,让人没有安全感;
◎ 电视无处摆放;
◎ 把餐厅和客厅的沙发都摆在一起,看起来比较拥挤凌乱,尤其是面积偏小户型;
◎ 室内采光太好了,看电视晃眼;
户型的功能性已经发挥至极致,为了打破户型的同质化,为了赢得更多的市场,各大房企才做出了各种创新举措,诸多事实证明,这样的创新也是成功的,推出边厅户型的项目,大都受到了市场的热捧:
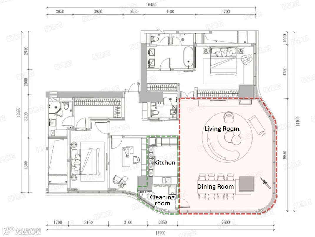
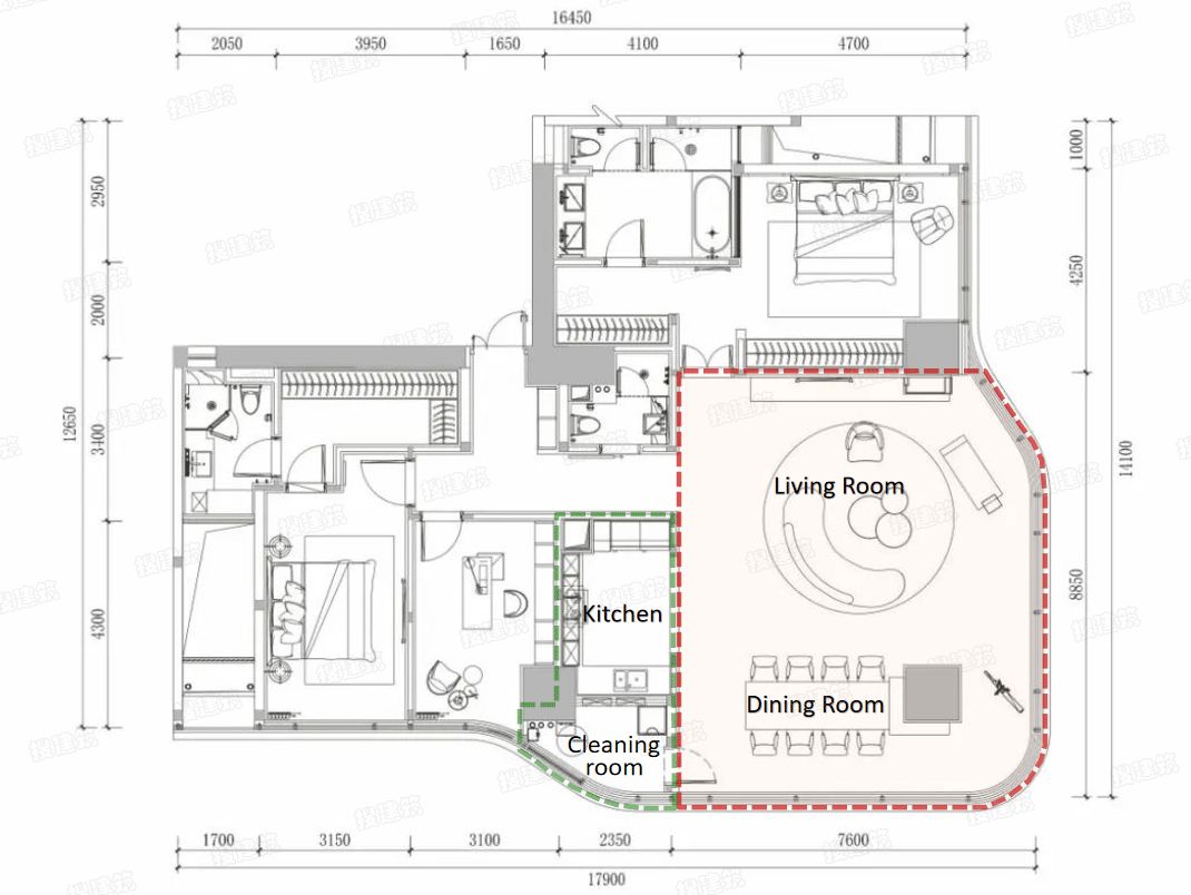
边厅户型动静分区的特点尤为明显,把活动和社交的“厅”区域放置在户型的一侧,一动一静,打破了客厅传统布局,互不干扰,这也正好适合现阶段住宅产品的创新需求。

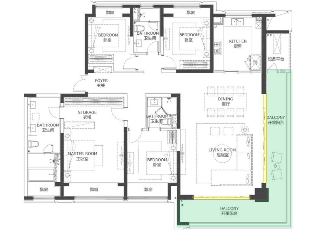
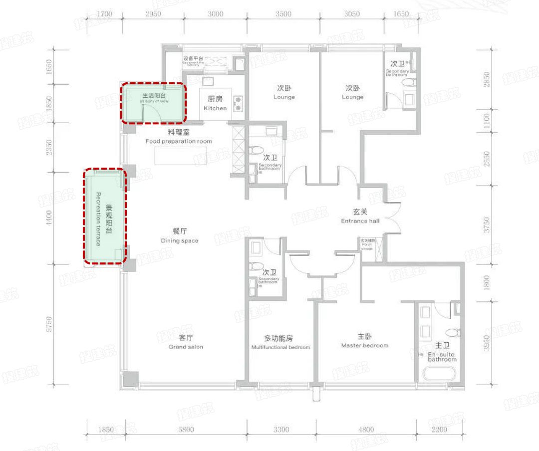
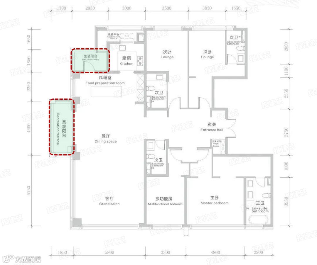
济南奥体金茂府232㎡户型示意图
← 左右滑动查看建筑效果示意图 →
两个户型的边厅均置于户型北侧,不仅边厅处有北侧阳台,南向还有约7.2米超大双宽景观阳台,做到了三面观景。
以前豪宅本质讲究对个人生活的精致,而忽略对家人生活的互动。
如今豪宅户型的人群有鲜明的特点:懂得享受、社交范围广、家庭的在他们心目中的比重越来越大。

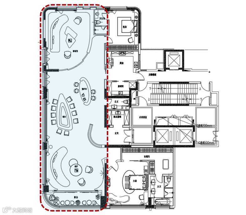
北京中海甲叁號院200㎡户型示意图
比如北京中海甲叁號院,厅的面积高达100平,所有的公共空间全部都是互通的,所以把厅做大家庭成员之间无论处在哪个区域,都能时刻保持着很好的交流。
这点上,中海其实希望带给用户,这里不是忙碌事业中的高级酒店,而是最大程度粘合亲情的港湾:

23种生活场景
百余平米的边厅能有23种生活场景:一家人有了很好的互动空间,比如超大中西厨房,向往的烹饪生活;餐厨一体,能轻松容纳家族以及各类聚会需求;100多平米的复合功能客厅,各类party,所想所得。
总之,LDK一体化的公共空间越大,生活自由多变的可能性就越多。

北京中海甲叁號院200㎡户型“边厅”效果图
再来看看世茂北京天誉,215㎡的户型:

世茂北京天誉215㎡户型示意图
虽然物理尺度足够大,但是世茂北京天誉的设计团队,却并没有“止于大”。
举个例子:
玄关、餐厅和客厅三个功能区的设计,采用了独特和创新的方式:将玄关客厅和餐厅连接起来,更关键的是,还把客厅的露台连接起来,从而形成了一个接近100平方米的LDKB空间,这个户型的空间感一下倍增,功能使用也更为丰富。
这个近100平方米LDKB空间的设计,是有主导思路了的,这个思路就是家庭关系的互动和社交,给与了家庭社交足够的场景和空间,使得房子是为人服务的。

世茂北京天誉室内示意图
融创西南打造的“中国家庭健康欢乐家”,将边厅进行科学的功能分区,将读书、用餐、运动、音乐等嗜好空间与客厅彼此相连,又互不打扰。每个温馨的闲暇,家人们可在此各自娱乐,又相互关照。

功能空间效果图 图源:融创西南

天伦之乐空间效果图 图源:融创西南
全部都有270°的环幕视角,全玻璃落地窗设计,创造无阻力的视野景观画面,奢华阔气的客厅,能实现起居休闲两功能,带来了宽阔的公共空间,在餐客厅一体化的同时还能有一角休闲。

新希望D10天府200㎡户型示意图
220㎡两房两厅三卫,拥有282°的超广视角,282°全落地幕墙阔景阳台,约68㎡的客厅带来创意无限的自由搭配。

新希望D10天府样板间实景图
开放式客厅,拥有超大开间,无边界视觉效果,超大落地窗设计,使整个家几乎都沐浴在阳光下,坐在窗前,俯瞰成都的车水马龙。疏朗开阔的空间,通透感十足,视野豁然开朗。

视野效果图
再来看一个带L型大阳台的边厅户型,景观视野更佳:

融创·运河铂湾澜庭200平米户型示意图

苏州融创·运河铂湾澜庭200平米户型的边厅连接东南两个朝向长约8.4米、宽约5.7米的L型阳台,270°IMAX宽幕视界,整个空间通透明亮。

融创·运河铂湾澜庭阳台示意图

融创·运河铂湾澜庭效果图
不同面积段的“边厅”

147平米客餐厨不仅采用了LDK一体化设计,还突破性地设计了约12.6米的L型270°环幕采光面,单侧采光面达至6.9米,豁达的10㎡云台空间,淋漓尽致地展现“无界空间”的惊喜。


中海首钢·天玺效果图
南京万科翡翠滨江边厅户型图:
← 左右滑动查看建筑效果示意图 →

约149㎡户型示意图
南向约14.15米的大面宽,拉出一条超宽向阳线,客厅大方厅设计,面积阔绰得达到约46㎡,成就了一款功能齐全的“party厅”,不管举办家宴还是呼朋唤友都不在话下。
重庆绿城华润·桂语九里159平米户型,不仅看上去很美,更要为客户提供真正高级的生活居住享受。
重庆桂语九里套内约131㎡广角边厅示意图
桂语九里通过“时间”来思考产品价值,发现越来越多人更重视自身的生活品质,这也是为何真正的品质住宅不在于能放多少张床,而在于它能容下多少场景。
在户型设计上,桂语九里270°端厅推门见景,制造环幕震撼观景,一面是生活区和社交区的延伸,一面是主人私享的空中花园,这样的应用不仅有科学考虑,更是基于重庆人对于阳光的渴求。
意向图

方方正正的户型动静分区做得非常彻底,光是厨房有10㎡,实现使用面积的极限扩容;放大了餐客厅的面积,高达50㎡,整体外墙减少剪力墙,约6米景观飘窗,兼顾了景观资源和居住需求,整体舒适度提升了一个level。

样板房实景图
北京合生金茂东叁金茂府建筑面积约175㎡的户型为四室两厅三卫,格局方正:

东叁金茂府约175㎡户型平面示意图
该项目在空间打造上,结合地理优势,采用“多边户”的原则,打造环幕的观景面,动静分区,大边厅设计,匹配L型转角阳台,实现了270°的超大环幕采光面,拥有相当于IMAX的观景效果。
LDK一体化设计,将客厅、餐厅、厨房、书房位于同一动线上,在不同空间的家人也能够有恰到好处的交流。
东叁金茂府室内效果图
贵阳中铁阅山湖 云著222㎡户型空间设计上,多维度深研户型格局,打造了更为阔绰、奢适的空间尺度,无敌阔厅,三面观景,空间布局合理,灵活空间实现三代同堂而居。

中铁阅山湖 云著 约222㎡户型平面示意图
约8.6米大边厅设计,拥有更大的采光面和更好的通风效果,北侧多功能厅,减少了纯过道空间,使整体空间得到更好的利用,提高了整个户型的使用率。

中铁阅山湖 云著 客餐厅实景图
成都融创国宾雅集238平米户型:

这个户型光是边厅就高达10米,阳台的进深高达3.3米,非常稀缺。

整体南向三面宽达到12.9米,大尺度的面宽堪比别墅,让室内能拥有充足的阳光与清风,以及阔达的心境。

样板间实景图
成都万科天府锦绣所有的户型都拥有景观面长、采光面大的观景客厅:

成都万科天府锦绣建面约256㎡户型
建面约256㎡户型的餐客厅,更是做到了约270度采光观景,客餐厅面积达到约73平米,三面采光,且主采光面接近12.5米。这种窗墙比本质上是提升舒适度与居住氛围,把整体生活投射到更大的景观场景里。

← 左右滑动查看建筑效果示意图 →

动静分区的双十字动线,12m*7m的家庭社交区域,外加20余米的L型阳台,气场强大。



南京万科翡翠滨江380平米户型:

从公布的户型图来看,亮点颇多,恪守瞰江原则,万科翡翠滨江打造了32°楼体瞰江角度、270°观景面等设计,将一线江景的核心资源价值融入到户型设计中。
南京万科翡翠滨江室内效果图
融创滨江壹号院“滨江ONE",384㎡高端豪宅户型:

这也是南京首座壹号院基因作品。动静分离,两梯一户,整个边厅位于户型右侧,270°视野俯瞰江景、园景、城景,5室2厅5卫设计。


起居厅包括了270°采光的双客厅、L型大阳台、茶室、特意设计的入户玄关、一个很大的餐厅,面积接近130㎡。
让人挪不开眼的,是这个270°转角大阳台,简直堪称“跑道式阳台”。

重庆龙湖舜山府阳台 实景图

取消了过往客厅和阳台间的那道滑门,让客厅和阳台连成了一片,一个尺寸达到13.5X10米、使用面积达到135平米、两面落地玻璃270度采光、正看两江交汇的会客厅,是一种什么样的气场?

本资料声明:
1.本文为建筑设计技术分析,仅供欣赏学习。
2.本资料为要约邀请,不视为要约,所有政府、政策信息均来源于官方披露信息,具体以实物、政府主管部门批准文件及买卖双方签订的商品房买卖合同约定为准。如有变化恕不另行通知。
3.因编辑需要,文字和图片无必然联系,仅供读者参考;
推荐一个
专业的地产+建筑平台
每天都有新内容
扫描二维码关注
微信公众号“搜建筑”(ID:sjz9999)
合作、宣传、投稿
联系微信:soujianzhu006



