▲ 更多精品,关注“搜建筑”
伟大的企业不是诞生在office,
而是脱颖于生态圈
项目插画© 韩锐
河道鸟瞰 © 苏圣亮
张江位于上海浦东新区,作为上海建设全球科创中心的重要基地,目前已形成了以集成电路、生物医药和软件三项为核心产业。
张江科学城现有产业园区的规划与建设,习惯设计为封闭街区,同时采用进深很大的绿化退界,像护城河一样把园区包围起来,将街区变成一个个城市孤岛。我们希望创造一种开放的新范式,他既可以衔接产业生态,又可以激活城市生活,重塑市民的公共生活价值。




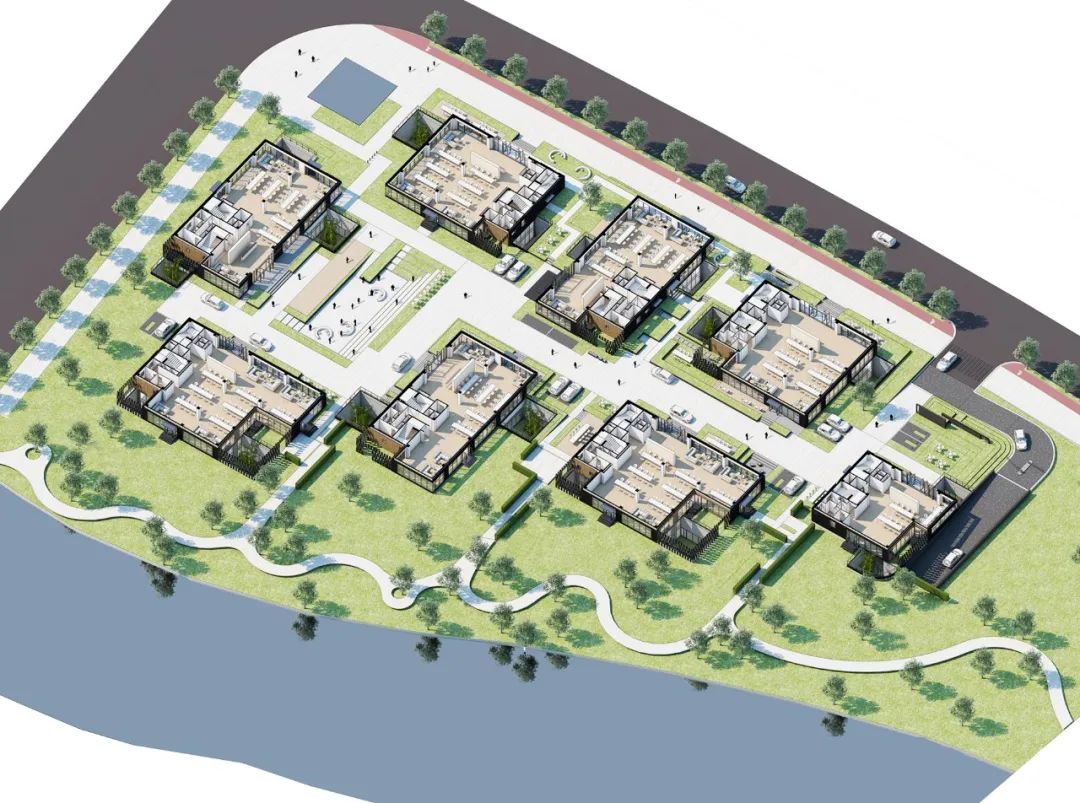
AI未来街区位于张江科学城的中心区域,紧邻川杨河支系智慧河,是整个核心区最后一块低密度园区,场地南侧临路,北侧临河,拥有得天独厚的景观资源。
概念草图
一反产业园区封闭自建的常态,AI未来街区意图实现街区——城市——自然景观三者的高度融合,于是面向城市街道,基于对城市类型学以及中国古典园林对于路径的研究,提出了“穿街引园”这一概念。

“穿街”以若干小径在南北方向联通了城市街道和滨水步道,为城市留出了自由而通达的城水通廊,智慧河河岸从产业园私有庭院转化为城市共享景观。
“引园”则在东西向为地块引入一条曲径通幽的园林式空间序列。在两个方向路径的引导下,公共空间疏密有致,层次丰富。


城市鸟瞰 © 苏圣亮
这些纵横交错的路径像血管一样连接着地块和周边的城市空间,形成了从城市道路到智慧河沿岸景观的渗透关系。这样独特的规划布局使得AI未来街区项目成为浦东街坊型建筑集群的标杆,为张江科学城园林化低密度的街区提出了一种开创性的设想。

此外,所有入口的街角空间被有意放大,辅以水池,形成开放街角广场,减轻了产业园区建筑体量对行人带来的疏离感。街道+广场的设计母题被创新性地应用于产业街区中,这种积极的街道空间为城市居民带来了亲切的使用体验。
河道鸟瞰 © CreatAR

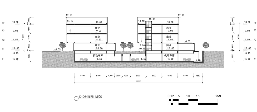
项目整体规划中,建筑首层和二三层体量在水平方向产生错动,形成露台与骑楼空间,创造出城市,内街,滨水三道路空间界面。



2.1面向道路的城市界面
有别于张江诸多被绿化带包围的产业园区,AI未来街区将南部临海科路的9栋建筑单体贴线布置,并在首层设置面向街道的商业展示界面,建筑与街道关系更加亲密。局部的设置高差,形成从入口,绿化,人行道的过渡关系。而建筑悬挑,则在入口平台层形成了连续的可以驻留的灰空间。星空吊顶的灯光设计,也是对城市照明的补充,优化步行体验。



城市界面 © 苏圣亮
城市界面 © CreatAR
2.2面向广场的内街界面
建筑的悬挑与露台结合,形成了进退丰富的空间关系,错动的空间让对望、仰视、小憩、穿梭、游览等活动得以发生,提升了园区内部的空间活力。入驻园区工作的科学家,可以如同邻里般亲密寒暄,让园区的社群生活有了关怀感。



内街界面 © CreatAR
内街界面 © 苏圣亮
2.3面向河道的滨水界面
朝北的二层露台为使用者提供了一览河面的宽阔视野,并在建筑与水面之间设置10-20m宽的绿地带作为室外活动空间,自然地过渡了城市-街区-滨水的空间序列,既能作为公众的观景场所,也能够为企业提供较为私密的餐叙酒会等活动;首层镂空的围墙,更是创造出园林般有趣的视线穿越关系。



滨水界面 © 苏圣亮
©大正建筑

AI未来街区通过提供周边地区相对匮乏的公共空间,在城市生活发挥了重要的公共价值,并通过公共空间的多样化设计,满足了不同类型社群的使用需求。在东西向的内街路径上,两个动静有别的广场被分别布置于项目的两个街区内。

“路演广场”由于园区智能产业业态对于发布会等活动形式的需求,以动态为主,有选择地举行室外路演,集会、儿童游乐等活动;

路演广场 © 苏圣亮
“静思花园”则以静态的阅读,会谈活动为主,以静态水景和有遮挡性的绿化布局满足使用者隐蔽、安静、小范围会谈的需求,这样的公共空间的供给,对于城市区域,尤其是像张江科技城这样的科技创新产业集聚区,显得尤为可贵。
静思花园 ©CreatAR 
在实际使用中,“路演广场”已经成为周边居民休闲和儿童游戏的重要目的地,实现了这一场所的设计初衷,有效的反哺了周边社区。
©大正建筑

建筑单体体量的错动,使其在内部则切分出多个不同标高的内庭院:地下层两隅的天井,可以实现对流的通风以及车库自然采光,地面层面向公园增加一个过渡庭院,二层为宽阔的临河露台,屋顶设备区域集中布置,置换出更完整的花园。地下,地面,露台屋顶,共同构成一个立体庭院。






庭院镂空围墙 © 苏圣亮
滨水庭院 © 苏圣亮

单体建筑的材料被归纳成为轻重两种关系。首层立面实墙与景观硬化,均采用同一黑色石材,这样墙面和地面融为一体,成为园区厚重稳定的“基座”,强化了整个街区,从外到内,从街道到广场公共空间的蔓延与连续。二层以上则是完型体量的玻璃幕墙,根据街道关系错动漂浮,轻盈且自由。而悬挑的部分,则有意的组织成为建筑主入口,避免雨棚重复设计,从而让建筑体量更清晰纯粹。

单体夜景 ©CreatAR
单体日景 ©苏圣亮
施工过程

入口节点 ©CreatAR
入口节点:考虑到今后入驻企业的品牌标识需求,在入口区域设计安装企业logo,吊顶部分布置星空式的灯阵,形成夜间的照明指引。


石材节点:靠近人尺度的石材幕墙部分,有意设计很多斜切的节奏变化,并以黑色铝板收边,弱化材料本身的厚重感

围墙节点 ©CreatAR
围墙节点:首层庭院的围墙,设计成石材镂空关系,外部公园景观可以有效的渗透进庭院来。镂空墙本身的门洞与窗洞,形成了视线的互望与对穿,产生出妙趣横生的空间层次。为了让镂空石材幕墙更加轻薄通透,所有石材均嵌套在15厚的网格状钢板中,从视觉上隐藏其真实的结构关系,产生如同轻盈幕帘的效果。




玻璃幕墙部分,再一次细分成为凹凸幕墙和折形幕墙,旨在隐藏开启扇的同时保持通风效率。


围墙节点 ©苏圣亮
结语:
随着城市化进程的不断推进和城市用地的功能置换,未来的产业街区将不能仅仅满足于生产办公的基本需求,而更需要以开放的姿态,面对产业生态升级、城市街道开放和市民生活多样的新需求。
©苏圣亮
AI未来街区凭借外向开放的建筑组群、适应产业定位的建筑单体设计和多样化行为导向的公共空间组织,探索了面向城市未来发展方向的全新的产业街区模式,这不仅是对于产业街区空间形态的重定义,更是对于未来街道生活的新设想。
©CreatAR
未来,科技创意产业集聚的低密度、中小尺度的街区将成为具有较强活力的产业园区空间形式。以AI未来街区为代表的这种空间形式,不仅捕捉了其目标企业对于人群活力和相互交流的需求,而且有望凭借与城市的多元联系,形成发展触媒,带动区域整体产业发展的步伐。

技术图纸:
总平面图
组合平面
典型平面
立面图
剖面图


幕墙节点
项目概况:
项目名称:上海浦东张江AI未来街区
项目地点:上海市浦东新区张江科学城海科路
项目功能:公共办公建筑
建筑设计:大正建筑事务所
主持建筑师:李硕,周雪峰,余江帆
设计团队:樊明明,李乐,叶磊,涂单
建筑规模:40,000平方米
设计/建成时间:2017/2021
业主:星月投资
施工图设计院: 上海中森建筑与工程设计顾问有限公司
建设单位:中国建筑第八局
幕墙顾问:凯腾幕墙
景观设计:奥雅纳
奖项:2021年ICONICAWARDS 德国标志性设计至尊奖(Best of Best)
摄影:苏圣亮 CreateAR
本资料声明:
1.本文为建筑设计技术分析,仅供欣赏学习。
2.本资料为要约邀请,不视为要约,所有政府、政策信息均来源于官方披露信息,具体以实物、政府主管部门批准文件及买卖双方签订的商品房买卖合同约定为准。如有变化恕不另行通知。
3.因编辑需要,文字和图片无必然联系,仅供读者参考;
微信公众号“搜建筑”(ID:sjz9999)
合作、宣传、投稿
联系微信:soujianzhu006



