▲ 更多精品,关注“搜建筑”


在施瓦本城市图宾根,总部位于斯图加特的 VON M 事务所完成了市政住宅公司 GWG 的新总部,该总部既是一座同质化的城市建筑街区,也是客户的现代建筑旗帜。
In the Swabian city of Tübingen, the Stuttgart-based office VON M has completed the new headquarters for the municipal housing company GWG, which is both a homogenizing urban building block and a contemporary architectural flag ship for the client.

周围环境错落有致。从火车站步行到这里需要一刻钟,你会发现自己置身于一家零售集团的分店、带人字屋顶的两层世纪之交房屋和三层战后现代主义建筑之间。
The surroundings are heterogeneous. It takes a quarter of an hour to walk here from the train station and you find yourself between a branch of a retail group, two-story turn-of-the-century houses with mansard roofs, and three-story post-war modernism.

在艾森巴赫恩大街,GWG 设立了新的公司总部。该公司从事住宅建筑的建造、销售、租赁和管理。公司新旗舰大楼的设计由斯图加特的 VON M 公司完成。建筑师的设计理念是将公司的现代自我形象转化为适当的建筑形式和功能空间。
Here, on Eisenbahnstrasse, GWG has set up its new company headquarters. The company builds, sells, rents, and manages residential buildings. The design for the company's new flagship building was created by Stuttgart-based VON M. The architects' maxim was to translate the company's contemporary self-image into an appropriate architectural form and functional spaces.

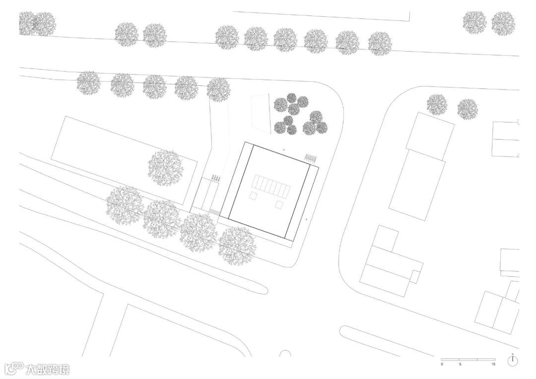
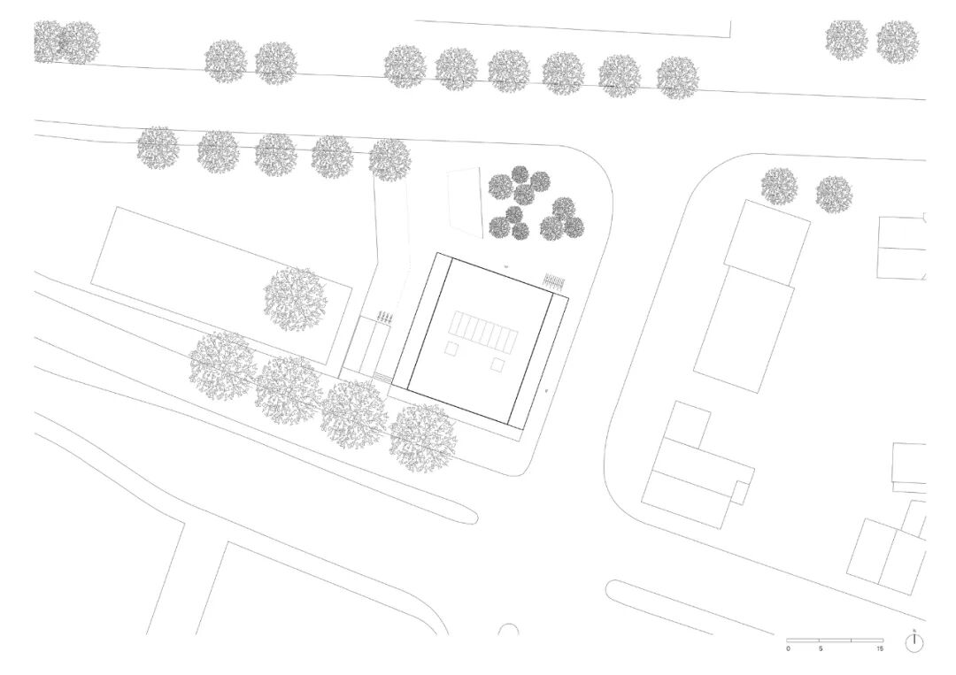
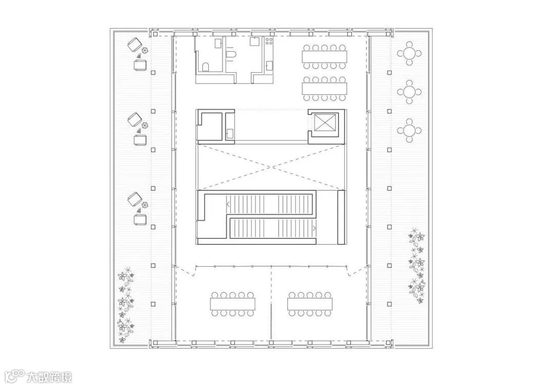
建筑师决定不在整个场地上建造建筑。建筑位于 Reutlinger 大街和路德维希大街交界处的南侧,这样,在 Eisenbahn 大街的实际地址和路德维希大街拐角处的北侧就会出现一片小树林。
由于当地种植的树木可以成为蜜蜂和其他昆虫的家园,因此这里现在开辟了一个城市空间,我们现在和将来都需要更多这样的空间来调节城市小气候,同时也可以成为居民和员工在车水马龙的街道上休息的地方。
The architects decided not to build over the entire site. The building is positioned on the southern edge of the site at the junction of Reutlinger Strasse and Ludwigstrasse so that a small grove opens up to the north at the actual address on Eisenbahnstrasse and the corner of Ludwigstrasse. With local trees planted in such a way that they can serve as a home for bees and other insects, one of those urban spaces is now opening up here that we need much more frequently today and in the future to regulate the urban microclimate - and which can be a place for residents and employees to pause in an area roaring with traffic.

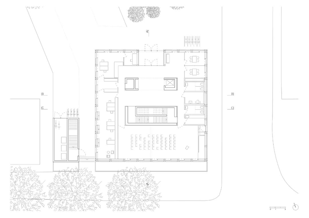
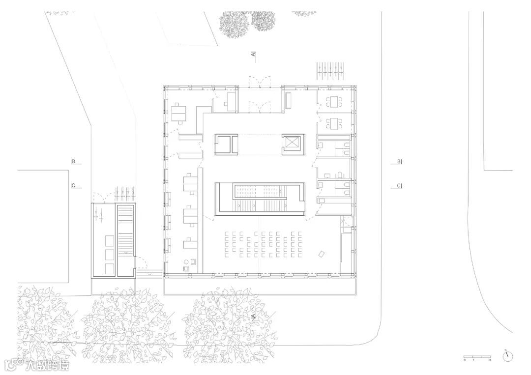
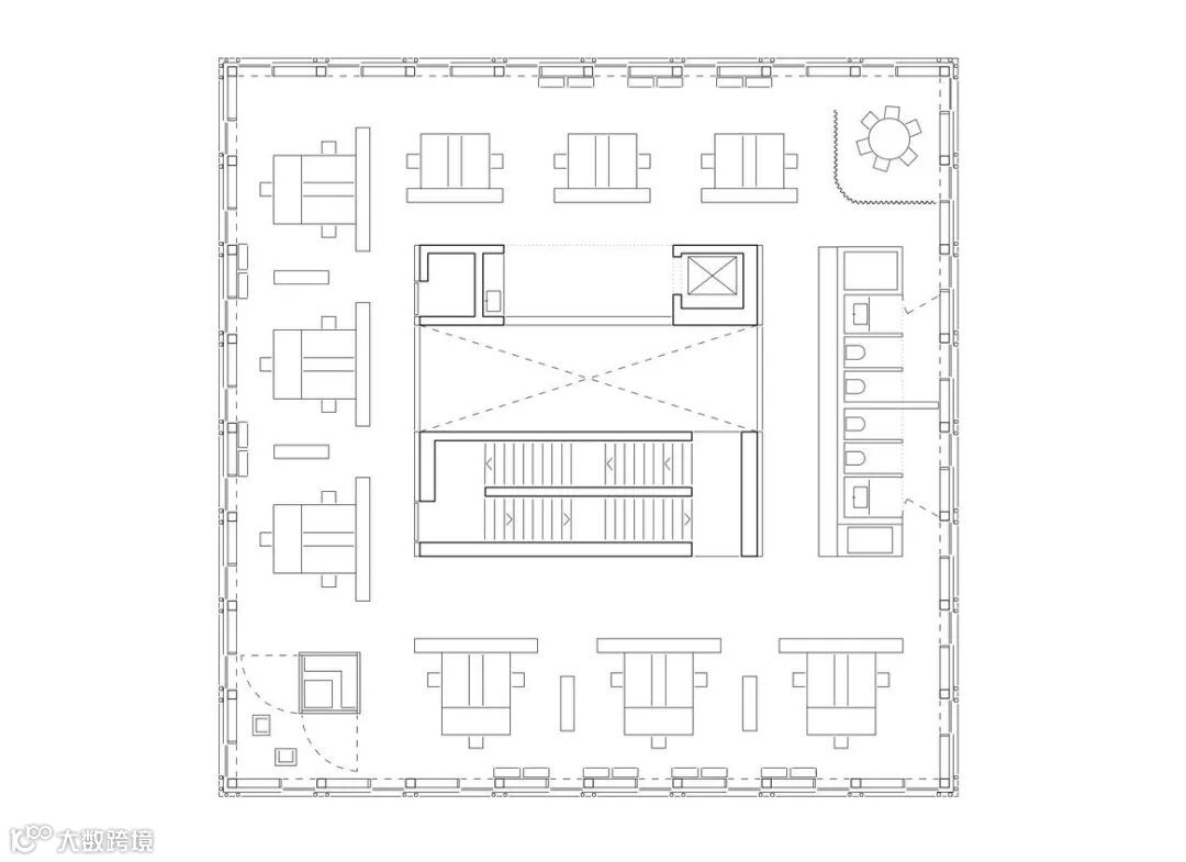
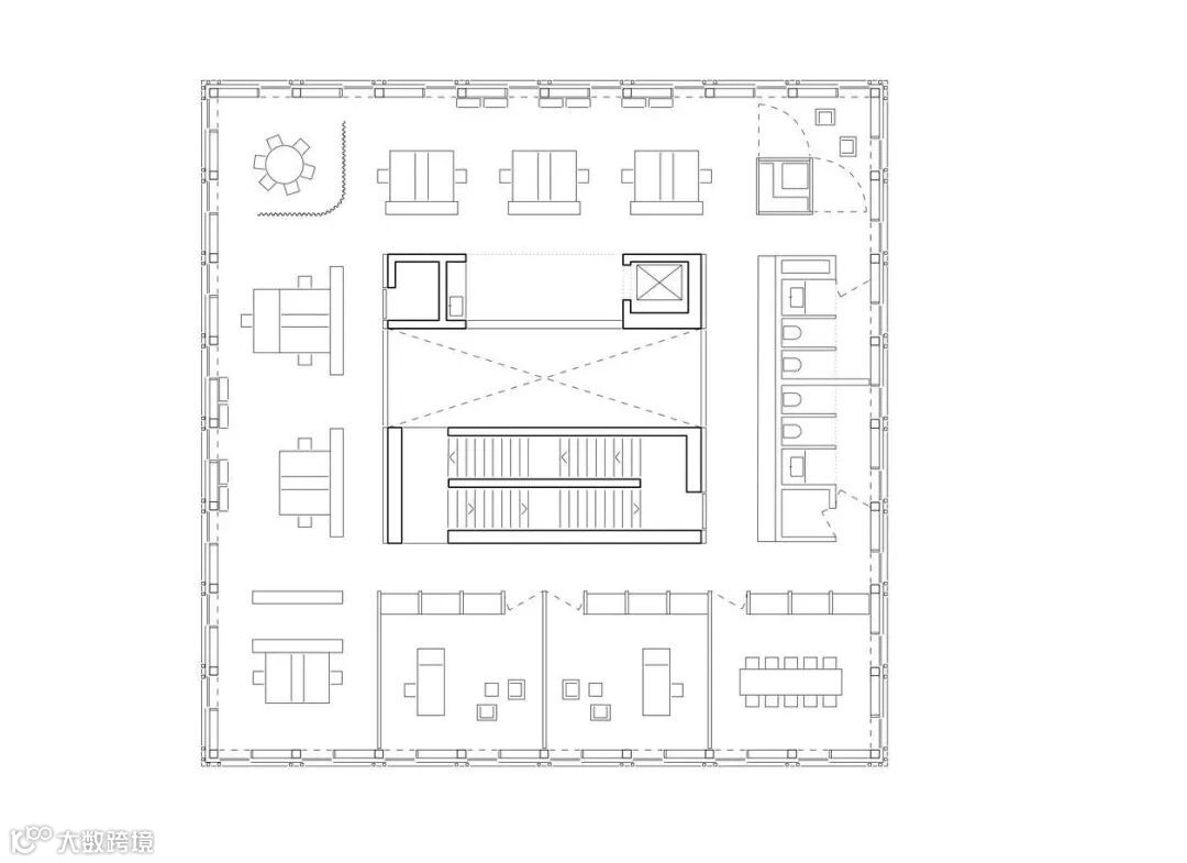
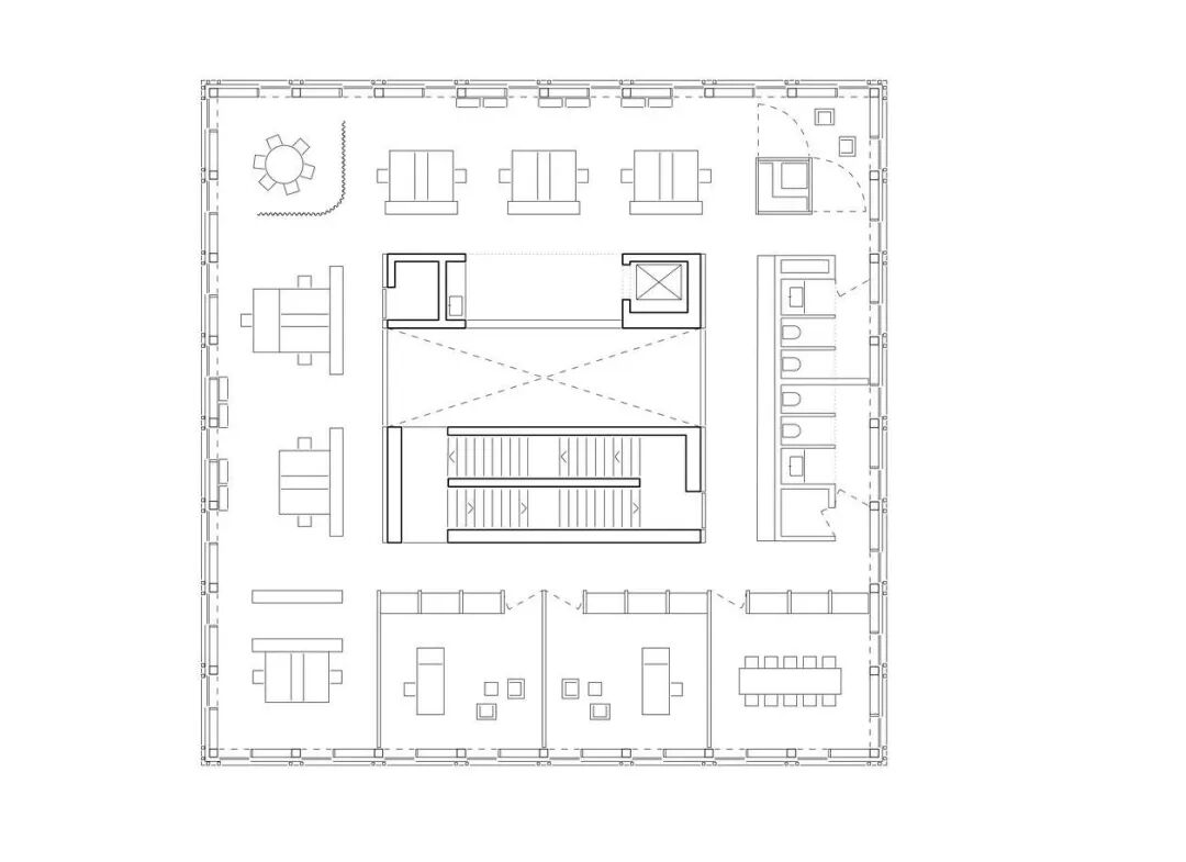
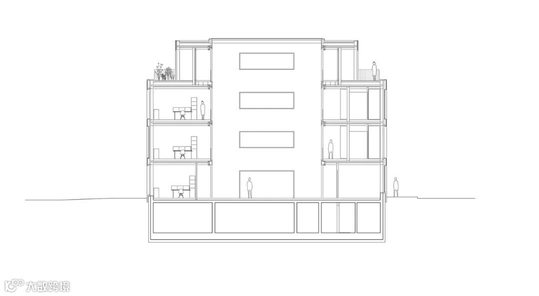
木结构建筑采用方形平面。地下室和支撑建筑结构的核心部分由混凝土制成。然而,在外观上却看不出任何痕迹--木材占据了主导地位。预制的木质构件让人可以追溯到各组成部分的构造连接,而每层的落地窗都沿轴线偏移。南北两侧的两个屋顶露台错落有致,在形式上充当了高度不一的邻近建筑屋檐和屋顶边缘之间的中介。
The timber construction is based on a square floor plan. The basement and a central core, which structurally braces the building, are made of concrete. On the outside, however, there is no sign of this - the wood dominates. Prefabricated wooden elements make it possible to trace the tectonic joining of the components, while the floor-to-ceiling windows are offset along their axis on each story. Two roof terraces to the north and south stagger the structure and formally act as a mediator between the eaves and roof edges of the neighboring buildings, which vary in height.
穿过小树林,穿过自行车架,经由一个带双叶门的双前庭进入大楼。入口处主要是支撑核心的混凝土框架,左侧是电梯,右侧是一种展示壁龛。接待处位于房间右侧角落的混凝土栏杆前,对面房间的左侧角落则是用于客户会议的玻璃房间。
这样,抽象的大门就成了一个空间门槛,在它前面是公共用途,而后面则是内部流程区。这部分裸露的混凝土像脊柱一样将整个建筑组织起来,起初让人感到惊讶,因为在看到木制的街道立面后,人们不会想到会有这样的效果。
但随后,精雕细琢的混凝土与墙壁、室内设备和裸露天花板横梁的暖木色调形成鲜明对比,令人信服。因此,混凝土核心部分的天花板略低,并覆盖着金属网,而橱柜和电梯的固定装置则采用了浅绿灰色。这种材料的使用清楚地表明,无论是在建筑方面,还是作为一种空间缓冲和氛围元素,这种材料在房屋中都发挥着特殊的作用。
The building is entered through the grove, past bicycle racks, via a double vestibule with double-leaf doors. The entrance area is dominated by the concrete frame of the bracing core, which accommodates the elevator on the left and a kind of presentation niche on the right. The reception is located in the right-hand corner of the room, in front of the concrete bar, on the opposite side, in the left-hand corner of the room, there are glazed rooms for customer meetings. In this way, the abstract gate situation becomes a spatial threshold in front of which the public uses take place, while the area of internal processes begins behind it. The exposed concrete of this component, which organizes the entire building like a spine, is surprising at first, as one would not have expected it after seeing the wooden street façade. But then the contrast between the finely crafted concrete and the warm wood tones of the walls, interior fittings, and exposed ceiling beams is quite convincing. Consequently, the ceiling of the concrete core is slightly lower and covered with metallic mesh, while the fixtures for the cupboard and elevator are kept in a light green-grey. The use of this material makes it clear what a special role this component plays for the house, both in terms of construction and as a spatial buffer and atmospheric element.
如果你走过这个具体而抽象的拱形建筑,你的视线几乎会被自动向上吸引:一个狭长的矩形中庭穿过所有楼层一直延伸到屋顶,日光从这里通过大窗户照射进来。这里不仅是建筑的空间中心,也是建筑能源概念的核心,因为办公楼层通过中庭自然产生的热气流进行通风,这样,通过外立面上简单的通风挡板,工作站就能源源不断地获得新鲜空气。这种系统在很大程度上无需技术,因此经得起时间的考验。
If you walk through this concrete, abstract arched figure, your gaze is almost automatically drawn upwards: a narrow, rectangular atrium extends across all floors up to the roof, from where daylight floods in through large windows. This is not only the center of the building in spatial terms, but it also plays a central role in its energy concept, as the office floors are ventilated through the atrium via the naturally occurring thermals so that the workstations are constantly supplied with fresh air through simple ventilation flaps in the outer facades. A system that largely dispenses with technology and could therefore stand the test of time.
这个空间中心的狭长两侧是由细长栏杆围成的开放式走廊区。在长边,平卧的窗型在长度上与入口门户的尺寸相呼应,对面是高高的矩形窗型,这表明上层楼层可以多次看到这个高高的中心空间。事实上,即使从通往高层的双层楼梯,也总能看到中庭和办公室的景色。
同样由混凝土包裹的楼梯与入口门户形成了空间上的对应,入口门户上方的茶水间位于上层,是建筑内非正式的聚会点。通过大窗户,中庭的景色尽收眼底,一楼采用的材料和色彩将房间隔间与中庭连接起来,从而与功能不同的工作区形成鲜明对比。
This spatial center is bordered on the narrow sides by open corridor zones framed by slender railings. On the long sides, flat-lying window formats, echoing the dimensions of the entrance portal in their length, and high rectangular window formats opposite them, indicate that the upper floors repeatedly offer views into and through this high central space. And indeed: even from the double-flight staircase leading to the upper floors, there is always a view from the stairwell into the atrium and the offices. The staircase, also encased in concrete, forms the spatial counterpart to the entrance portal, above which tea kitchens are located on the upper floors as informal meeting points within the building. Through the large windows, the view from here is into the atrium, to which the room compartments are atmospherically connected by the materials and colors introduced on the first floor, thus contrasting the functionally differently programmed work areas.
楼上的办公楼层既可提供独立的办公室,也可提供占据整个楼层的开放式工作环境。因此,理论上很容易进行改建和翻新。为该项目专门设计的货架系统可以组织开放式空间,例如用于分隔流通区和工作站或会议区。它继承了建筑的立方体主题,并通过使用木材将其延续到最后一个细节。
最后,从上层的会议厅和会议室可以通过法式门通往两个屋顶露台,在这里可以俯瞰整个城市。
The office floors on the upper floors allow for both individual offices and open-plan working environments that occupy the entire floor. Conversion and retrofitting are therefore easy in theory. A shelving system specially designed for the project organizes the open-plan spaces and can be used, for example, to separate circulation zones from workstations or meeting areas. It takes up the cubic theme of the architecture and continues it down to the last detail with the use of wood. Finally, from the upper floor with its conference and meeting rooms, French doors lead to the two roof terraces, which offer views over the city.
VON M 团队采用简单的方法,确保当地住房公司拥有一张建筑名片,既反映了自己的愿景,又不会自以为是地占据城市空间。该建筑采用了二氧化碳约束材料、可灵活使用和转换的室内设计以及低技术含量的设计,代表了当代建筑的一种方法。
它作为一个朴实无华的立方体矗立在城市空间中,有意识地从城市发展的实际地址中抽身而出,从而为小气候和公众创造了一些东西,这种方式也证明了当今建筑可以是一种适当的、当代的而非永恒的理念。
Using simple means, the VON M team has ensured that the local housing company has an architectural calling card that reflects its own vision but does not egotistically occupy a space in the city. Coupled with carbon dioxide-binding materials, flexibly usable and convertible interiors, and its low-tech design, the building represents a contemporary approach to architecture. The way in which it stands as an unpretentious cube in the urban space, consciously and thus literally withdrawing from the actual address in terms of urban development and thus creating something for the microclimate and the general public, also testifies to an appropriate, contemporary, and not timeless idea of what architecture can be today.

平面图

平面图

平面图

平面图

平面图

剖面图

剖面图

剖面图

项目信息
建筑师:ON M
地点:德国
面积:2300 m²
年份:2023
本资料声明:
1.本文为建筑设计技术分析,仅供欣赏学习。
2.本资料为要约邀请,不视为要约,所有政府、政策信息均来源于官方披露信息,具体以实物、政府主管部门批准文件及买卖双方签订的商品房买卖合同约定为准。如有变化恕不另行通知。
3.因编辑需要,文字和图片无必然联系,仅供读者参考;
推荐一个
专业的地产+建筑平台
每天都有新内容
扫描二维码关注

微信公众号“搜建筑”(ID:sjz9999)
合作、宣传、投稿
联系微信:soujianzhu006
搜建筑·矩阵平台