▲ 更多精品,关注“搜建筑”
今年的楼市迎来了众多重磅消息,各城市已经打开“政策工具箱”,满足刚需、改善和豪宅用户需求。
开发商们都铆足了劲打造豪宅大平层,千万级的200㎡、300㎡+的户型产品“乱花渐欲迷人眼”,拥抱刚需的住宅新房却“寥若晨星”。
一波强大的红利来袭,年轻人安家首选的第一套房无疑还是黄金小户型。空间小,居住的需求并不会因此而压缩或者减少。
年轻刚需们买房的基础逻辑,也发生了变化:
1、低总价、低首付,不用卷、不躺平;
2、更多的人均绿化以及社区生活;
3、建筑外立面也美得极具辨识度;
4、户型追求大面宽、多开间;
5、更好的采光和视野;
6、户型公区开放式社交设计做到最大化;
7、对于卧室私密休息区的追求更高:
……
搜建筑往期给大家分享过很多小户型设计:
90㎡户型:5开间设计,太卷了……
80-99㎡小户型:也可以——大方厅
90㎡小户型:做出120㎡空间感
90平4房,不止“多一房”的设计!!
看到这些户型,久违了的肾上腺素飙升的感觉又回来了。
1
面宽、开间,逐步“豪宅化”
中交·拾园雅集建面99㎡的产品,户型为三房两厅双阳台两卫,套内面积约89㎡,得房率超高。整体接近15米的超大面宽,五开间设计,LDKG一体化方厅,厅的面宽约5.8米,还能拥有一个X空间;三个卧室空间均设计有观景飘窗,对于小户型来说飘窗的合理利用,还能增加收纳,尤其主卧配有独立卫浴形成了大套房;次卫还连接一个家政阳台,家务动线设计就非常合理。

建面99㎡户型示意图

样板间示意图
外立面极简的现代风格,灰色系的主体建筑色彩搭配深灰色系格栅,以及对称布局和简洁线条,大比例的窗墙比,最大限度地将自然光线和园区景观引入室内。


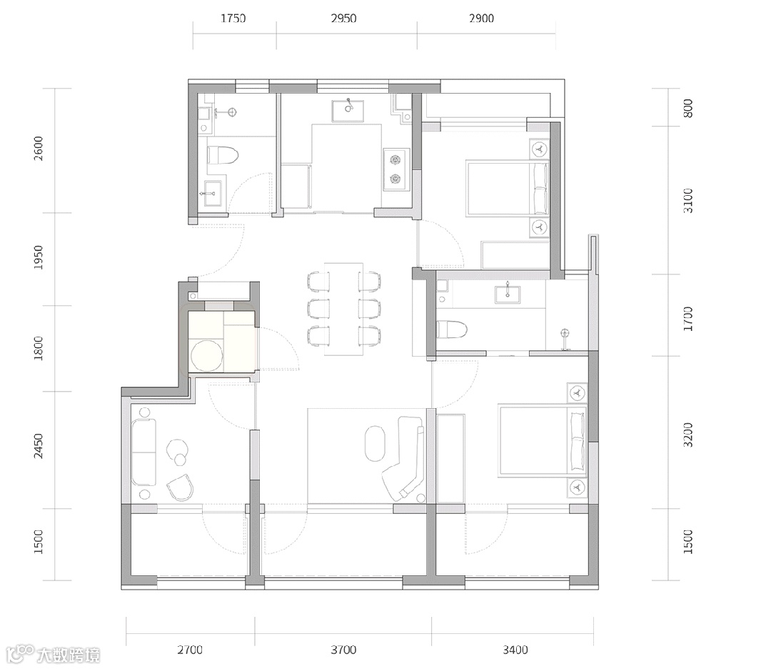
重庆中建启宸建筑面积约99㎡户型,4房2厅3卫的格局,采光通透,空间布局方正合理,预留充足收纳空间。整体做到了约16.6米超大面宽,竟然达到了6开间,在空间上实现了更舒适的尺度,将采光面、景观面充分调和。而且还是全明户型,附带独立的家政间。

建筑面积约99㎡户型图
项目实景图

景观摄影:广东新山水文化发展有限公司+袁孝权
2
小户型也要做一体化公区
重庆中建启宸建面约92㎡户型,3房2厅2卫设计,项目室内用到了LDK一体化设计,是目前市场认可度很高的布局设计。
一体化横厅设计可能会占用一定的室内空间,但是带来的居住体验是一般户型不能比拟的。整个户型做了LDKG一体化设计,约5.8米的大横厅,与U型厨房、家政间、阳台完美地形成聚合空间。

建面约92㎡户型图
中建启宸是重庆的新盘中真正做人性化精装的项目,从日常生活习惯出发,打造100项精装细节:
• 全屋地暖、空调、前置净水等
• 厨房吊滑防撞门,解决导轨槽藏污纳垢问题;
• 配备了前置净水器、抽拉式水龙头、人性化台面高度、防水防油插座、智能感应灯带、静音坐便器……
北京中建璞园LDK一体化竖厅设计,客餐厨有机融合,减少走廊面积浪费,把空间感放大到MAX,相当气派。搜建筑测量了一番,整个一体化空间的面积能有约33㎡,U型厨房的洗菜台,优化了整体动线,洗切炒取极为便捷。餐厅一侧还可以打造一整面墙的收纳空间,井井有条。

建面约99㎡户型示意图

效果图
保利中交·云上雅集建面约99㎡户型,三室两厅两卫设计,南北朝向、采光通透,空间布局方正合理,约5.9米大横厅的设计,在空间上实现了更舒适的尺度,将采光面、景观面充分调和。客、餐厅一字型排开,尽可能的拉宽采光面,横厅的方正格局,

E户型效果示意图
上海华发四季河滨建面约91㎡的面积做到了其它项目99㎡同样的3房2卫,不失功能性的同时舒适度更高。经典的飞机户型,房间分列两侧,把卧室间的干扰降到了最低。空间利率用高,没有过道面积浪费。
双朝南卧室带飘窗,北向次卧带飘窗,两个卫生间,还有一个U型厨房。这样的空间控制功力,还能满足舒适度
建面约91㎡户型示意图


本装修效果展示间实景图仅供示意,具体交付细节以买卖双方合同约定和实际交付为准。
除了户型空间,精装上也足够硬核,人性化细节惊喜满满:
• 中央空调、地暖,新风三大件配齐,在品牌上,油烟机、洗碗机、燃气灶等都是交付标准,厨电选用了德国西门子(或同档次其它品牌);
• 洁具、龙头、花洒等均为科勒品牌(或同档次其它品牌),高层带卫生间的主卧更配置智能马桶....
• 客餐厅、卧室区域的背景墙都是交付,且墙面贴的艺术墙布也都是交付标准;
• 玄关收纳柜、收纳镜柜、台盆柜也都全部定制好的,避免后期再定制的麻烦;
本装修效果展示间实景图仅供示意,具体交付细节以买卖双方合同约定和实际交付为准
外立面颜值也做了迭代升级。大面积“米白色”搭配“银灰色”,呈现出现代海派范儿的外立面。金色的金属边,建筑顶部弧形塔冠装饰,远远望去就是一副特色美学画面。


效果图
3
小户型也需要创新设计
珠海华发横琴荟Ⅱ期全新产品使用率超高,能达到80%以上,89平做到了120平的空间感受




深圳万科未来之光的建面约80㎡三房两卫户型,解决小户型收纳空间不够的难题。高拓展小户型,作为绝对的刚需产品,也开始花更多心思去思考实际的居住场景和需求。
万科遵循“户型再小也要有玄关”,利用墙体内凹预留了超大玄关位,足够将日常出入常用的鞋子、雨伞、部分衣物,甚至能将小件智能家居等收纳其中。

建筑面积约80㎡户型示意图
结语:
如今刚需小户型还是有很大的市场和发挥空间的,各大开发商做出了120㎡户型以上的功能以及空间感,力求呈现“小面积大体验”的空间感受,我们期待市场能做出更多创新的小户型设计,让年轻人更容易实现拥有一个家的梦想。
本资料声明:
1.本文为建筑设计技术分析,仅供欣赏学习。
2.本资料为要约邀请,不视为要约,所有政府、政策信息均来源于官方披露信息,具体以实物、政府主管部门批准文件及买卖双方签订的商品房买卖合同约定为准。如有变化恕不另行通知。
3.因编辑需要,文字和图片无必然联系,仅供读者参考;
推荐一个
专业的地产+建筑平台
每天都有新内容
扫描二维码关注
微信公众号“搜建筑”(ID:sjz9999)
合作、宣传、投稿
联系微信:soujianzhu006



