
Highnote is a residential tower for starters in Almere and the latest addition to the city skyline. For the design, we came up with a unique feature: a triangular plinth that consists entirely of 'urban rooms'. They are intimate, urban indoor and outdoor spaces, flowing into each other and enticing you to wander through them. Each urban room sparks its own sense of wonder, yet always leaves its use to your imagination.

Along the edges of the entire plot, one continuous colonnade contours the urban room sequence. Its appearance is strong yet abstract, inviting your own interpretation of the spaces it surrounds. Together, the urban rooms create the gradual transition from the buzzing city to the private homes in the tower.

The city of Almere has a quickly rising number of young and starting city dwellers, yet there is still limited housing in the city center. The municipality aims to turn the center more sustainable, green and dense. Pedestrians are prioritized: by linking existing and future squares and places with their own characters and functions, a new green walking strip through the city center is emerging.

Until only recently, there was a stony and barren residual site, lying fallow along one of the city axes to the heart of Almere. The municipality had the ambition to repurpose the site into one of these new urban destinations, merging quality housing for a wide range of starters with healthy living space and unexpected functions that generate new liveliness in public. The plot’s compact, triangular shape raised additional challenges for this desire.

The urban rooms within are new places to meet up, work, relax, and study: they are spaces designed to inspire, fostering you to use them as you see fit. So, characterful yet as versatile as possible, the urban rooms are adaptable to current and future needs.

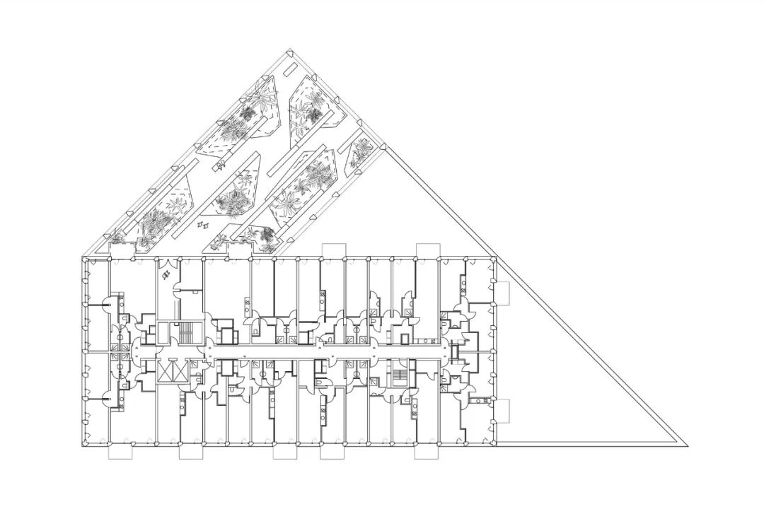
We conceived the square on the west side to be transparent and open, welcoming the people entering from the city center. This square, or as we call it the Werf, is set to initially become the site for art installations and public events for residents and the neighborhood. In parallel, it will co-function as an outdoor workspace for adjacent creative maker spaces to be installed inside. Along the alley lies the Hof — a contrasting, sheltered space through which new walking paths with seating elements wind. This area brings a luscious green garden, providing a space of tranquility and flooding with daylight at certain times of the day. On top of the lower, south-facing volume lies the Dak, a rooftop garden offering the residents their own 450m2, green space to host a birthday party, organize a sports class or just take a break from the hustle and bustle of the city. At the base of the tower, is an internal cultural area with workspaces, to which a café and restaurant will be added this year.

On top of this public program, the tower volume accommodates 157 homes of which, for the first time in Almere, 67 ‘friends’ apartments for two sharing tenants. On its prominent location next to the city hall, Highnote now marks the entrance to the heart of the city.

The stepped, leaning volume and signature color make Highnote stand out in Almere's cityscape, with a changing silhouette from all angles. We opted for a monochromatic, soft red concrete facade that seems to shift in color throughout the day and soothes the rectilinear grid. Each volume has its own facade rhythm, reinforcing the stacked building configuration.

The facade is built with robust concrete columns with deep, angled recesses that create a play of light and shadow. At street level, the facade flows smoothly into the mystical colonnade. We implemented load-bearing, prefabricated facade elements throughout, allowing the building to be constructed in a tight timeframe and virtually scaffold-free. Highnote's structure allows the entire building to remain flexible in its configuration, now and in the future.

项目信息
建筑师:Studioninedots
地点:荷兰
面积:16000 m²
年份:2023
摄影:Sebastian van Damme
本资料声明:
1.本文为建筑设计技术分析,仅供欣赏学习。
2.本资料为要约邀请,不视为要约,所有政府、政策信息均来源于官方披露信息,具体以实物、政府主管部门批准文件及买卖双方签订的商品房买卖合同约定为准。如有变化恕不另行通知。
3.因编辑需要,文字和图片无必然联系,仅供读者参考;
微信公众号“搜建筑”(ID:sjz9999)
合作、宣传、投稿
联系微信:soujianzhu006


