▲ 更多精品,关注“搜建筑”
市场改善盘井喷,户型PK卷翻天。
约139-143㎡面积段作为市面上最为常见的改善户型,这一面积段的客群对于居住品质、空间功能等方面有了进一步需求,因此会更加注重产品的功能性、舒适性以及性价比。
该面积段户型大多产品为四室格局,能够覆盖更多不同的家庭结构,满足更多元的生活场景需求。
从户型设计上看,可以发现这一面积段的产品有以下几个明显亮点:
①空间利用率进一步提高;
②户型面宽更大,整体更通透;
③空间功能性提升,体验感增强;
④全生命周期设计,降低置换成本;
......
1
建面约143㎡户型
华发股份&华润置地联合鼎信长城开发的——新川印143㎡户型四房两厅双卫,其最大特点当属全明花园独立玄关厅以及约2.5m大进深景观阳台。

新川印建面约143㎡户型平面图
约15.6米超大面宽在同级别产品中,表现突出。
此外,该户型最小的两个房间都在约10㎡以上,次卧开间没有一个低于约3米;客餐厅开间达到约7.1米,约4.5开间朝南,拥有独立生活阳台等配置,均远超同级别对手。

效果图 (仅为项目意境效果呈现,非交付标准)
新川印外立面意境图
龙湖江天阙约143㎡户型南向面宽达到了5开间,约6m的横厅+约9.2m的阳台不仅彰显了排面与气场,更实现了对生活场景的全面升级。

龙湖江天阙建面约143㎡ 户型示意图


龙湖江天阙实景图




龙湖三千云锦电梯前室实景图
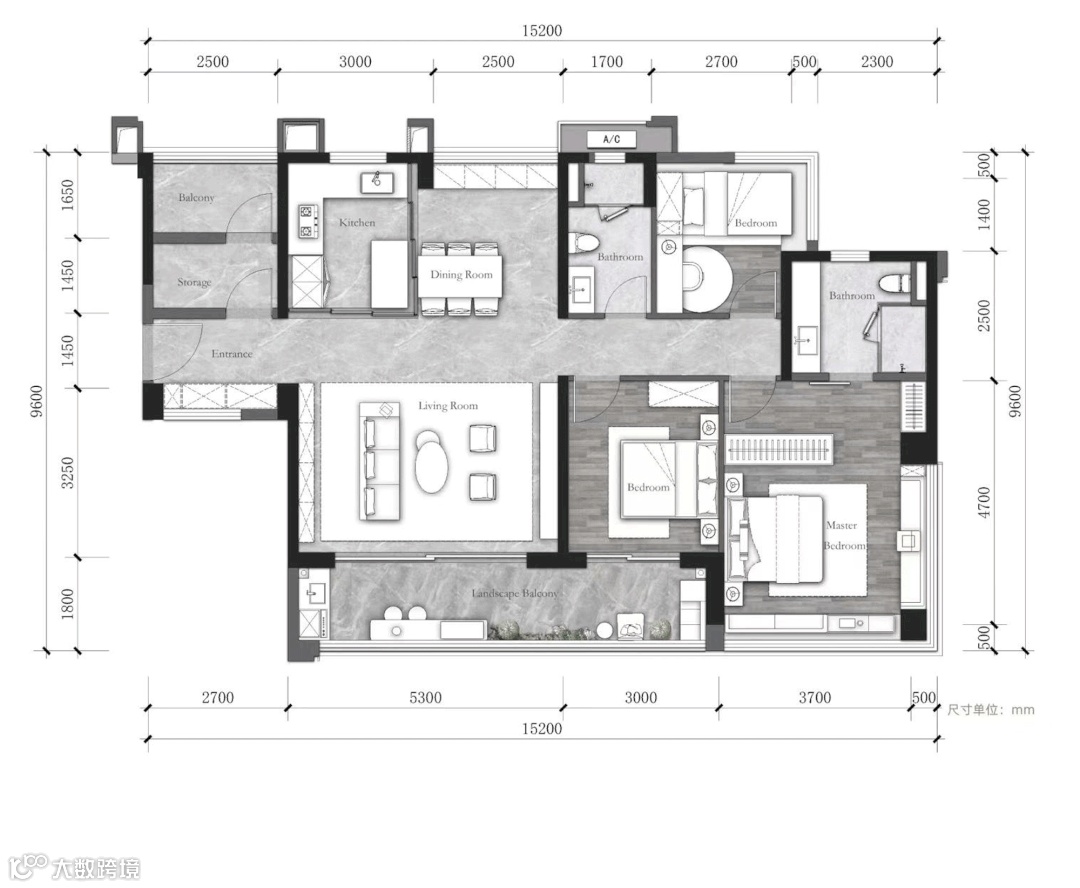
龙湖天府云河颂143㎡户型,合计赠送约16.08㎡,为客户实现了160-170㎡的居住体验。
每户业主都享有约10㎡的私人电梯厅,让人倍感尊崇。进入房间,豪华配置双排玄关柜,独一无二的双收纳系统,让生活更便捷,在这里即可以放置业主的个性收藏,也可以实现归家理想。

龙湖天府云河颂建面约143㎡户型
客厅、餐厅、厨房以及阳台公共区域(LDKG)总宽度达约8.8米,面积近35㎡,布局规整,南北通透,一体化空间,再加上生活阳台,南向宽度一览无余达到8.8米,无需改造便是孩子的天然“跑道”。




2
建面约142㎡户型
铁建城花语墅“悦墅”约142㎡户型,把大面宽、窄进深演绎到极致。四房两厅两卫,露台宽度约8.6m,赠送面积最高约42㎡。整体面宽更是达到约18.4米。


悦墅样板间实景图

悦墅样板间实景图


星河WORLD公园3号建面约142㎡户型平面图
142㎡户型的动区开间做到了约9.4m。大面宽加持下,LDK一体设计的巨型横厅面积甚至高达56㎡,常规175㎡户型也不过40㎡左右。
中西厨、客餐厅、大落地窗,各个板块之间离而不分,形成一个清晰有序而又彼此交融的多功能家庭活动区。
星河WORLD公园3号主卫装修效果图
约32㎡的豪华主卧套房,让整体的空间布局充满想象力。
山语和溪二期建面约142㎡户型,四室两厅两卫,加上可拓展面积实用率达到了惊人的近100%。户型的南北面,几乎达到了全采光,像是感受不到墙体的存在。
山语和溪建面约142㎡户型效果图
超大横厅及约23㎡的主卧套,空间感达到了全新升维。
3
建面约141㎡户型
金湾华发新城·公园四季建面约141㎡户型,四室两厅三卫,巧妙地将入户设计成具备收纳功能的玄关空间,玄关柜深度约80CM。


建面约141㎡户型效果示意图




金科·美院约141㎡空中大平墅,四室两厅三卫,将生活的动能功能区合理分开,并赋予空间更多功能性。

金科·美院建面约141㎡户型图
约13.5米南向面宽,约6.2米南向客厅开间,加上LDK餐客厨一体设计,约40㎡方厅营造就餐会友的舒适空间。

金科·美院建面约141㎡效果图
南向幻变第三厅可改造为茶室、健身房、书画间、品酒屋、空中花园、瑜伽室、儿童游乐场、IMAX巨幕影院……

金科·美院建面约141㎡室内效果图
三套房设计,每间房均配备独立卫生间,阔绰的生活尺度、流畅的室内动线,奢华之余更兼私密性,生活动静分离,一家同层而互不打扰,各有私属天地。
4
建面约140㎡户型
城发·高明壹号建面约140㎡户型,配备了专属采光电梯厅,尊享归家仪式感和尊贵感。
城发·高明壹号建面约140㎡户型示意图

广州中国铁建·西派粤府约140㎡江瀚户型,四房两厅两卫,设计了270°环幕客厅、270°环幕阳台以及270°环幕主卧,360°无死角采光。

中国铁建·西派粤府约140㎡江瀚户型示意图
约15m南向采光面、约60+㎡大方厅、约9m超长大阳台,基本超越同级别140平户型的体验。
还有约140㎡鎏光户型,仅仅是户型图,都能感受到空间格外方正、无拘无束。

中国铁建·西派粤府约140㎡鎏光户型示意图
LDKS一体化设计,客餐厅面宽约6米,整体近似于正方形,再配合上进深约1.8米,长约9米的大阳台,实际空间效果真的很惊艳。餐厨空间双岛台设计,具备收纳功能的同时,又进一步打破空间边界。
中国铁建·西派粤府效果图
5
建面约139㎡户型
保利和著薇棠轩139㎡户型约15.2米的南向五开间,实现了主卧、次卧、客卧、客厅皆向南一字排开。

保利和著薇棠轩约139㎡户型示意图
约5.4米宽幕大横厅和跑道式阳台,将厨房、餐厅、客厅、阳台四大空间集合,形成以厨房为中心的多功能一体化通厅。



绿城云诵桂月的约139㎡户型做了南厅、边厅2种。
南厅户型的客厅是“社交大方厅”,面宽约12.9米、开间约5.8米、进深约7.7米,一体化设计的阳台、客厅、餐厅总面积约45㎡。

绿城云诵桂月建面约139㎡南厅户型示意图

绿城云诵桂月建面约139㎡边厅户型示意图
边厅实现户型朝南的全部可能,面宽约10米,宽约6.3米的大边厅,LDKB一体化的空间流线,可以去客厅化设计,采用超大的板桌,直接将客厅变成餐厅、工作台的欢乐场。

云诵桂月建面约139㎡样板房实景图

云诵桂月效果图
华润置地港悦城这款建面约139㎡四室两厅两卫户型,每1㎡面积都做到了不浪费。
华润置地港悦城建面约139㎡户型图
整个南向观景面达到了约12.3米,阳台观景面约5.6米,而且南向阳台和主卧飘窗皆为270°转角视野,这样的大尺度观景视野,打通了自然与人的隔膜。

建面约139㎡户型可储藏空间示意图
约4.8㎡的玄关空间,做个储藏柜实用度瞬间提升,动线设计规避了狭长窄道,南向主卧也能隔出来近7㎡做衣帽间,厨房、卫生间各个角落的储藏体系同样强大。
华润置地港悦城方厅意向图
华润置地港悦城立面示意图
广州中海保利朗阅约139㎡户型打造约5.9米开间客厅,南北对流,坐在家中也能享受穿堂而过的清风,倍感惬意。

广州中海保利朗阅约139㎡户型示意图
主卧近30平,带了巨幕270°L型飘窗,清晨拉开窗帘,享受满屏阳光,心情瞬间美丽。
本资料声明:
1.本文为建筑设计技术分析,仅供欣赏学习。
2.本资料为要约邀请,不视为要约,所有政府、政策信息均来源于官方披露信息,具体以实物、政府主管部门批准文件及买卖双方签订的商品房买卖合同约定为准。如有变化恕不另行通知。
3.因编辑需要,文字和图片无必然联系,仅供读者参考;
微信公众号“搜建筑”(ID:sjz9999)
合作、宣传、投稿
联系微信:soujianzhu006


