▲ 更多精品,关注“搜建筑”
市面上的很多叠墅痛点非常多:
• 为了控制总价,户型面积通常较小,墅感全无;
• 多数只有两开间、面宽窄,采光面舒适度极低;
• 没有独立的归家电梯动线;
• 电梯到不了每一层,室内要走楼梯;
• 室内楼梯间没有窗,逼仄压抑;
......
叠墅的创新形式可以通过多种方式来实现,包括外观设计、空间规划、材料、结构和环保等多个方面,让叠墅形式呈现出更多样化、更独特化和更具有创新性的特点多层平台式叠墅。
动静分区、独立入户成为主流
比如仁恒祥生·珊瑚世纪,独立电梯、凌空花园、270°环幕阳台设计,最重要的是在产品中做出大胆尝试:上下叠之间,做到静区相连,提升居住体验感,明确解决了叠拼客户的私密性痛点。

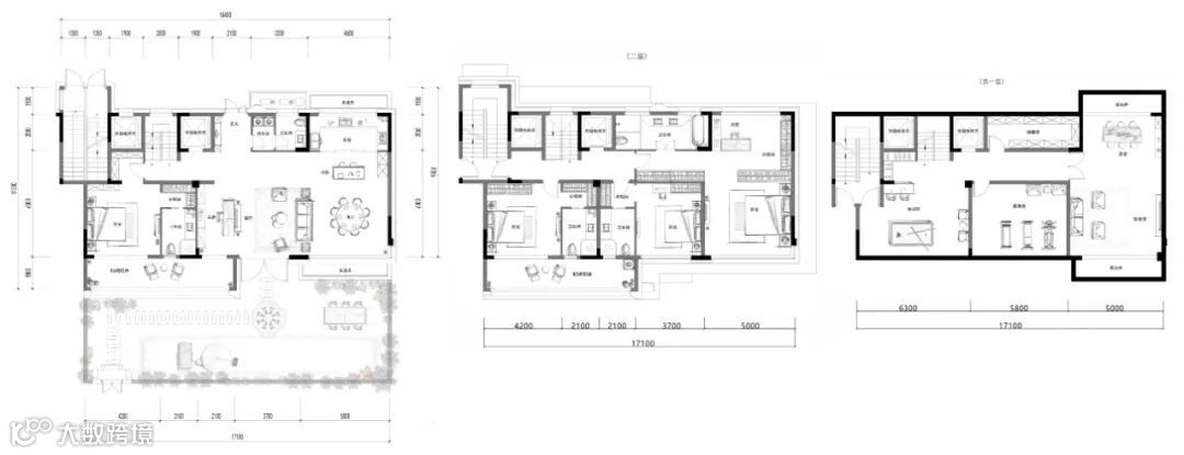
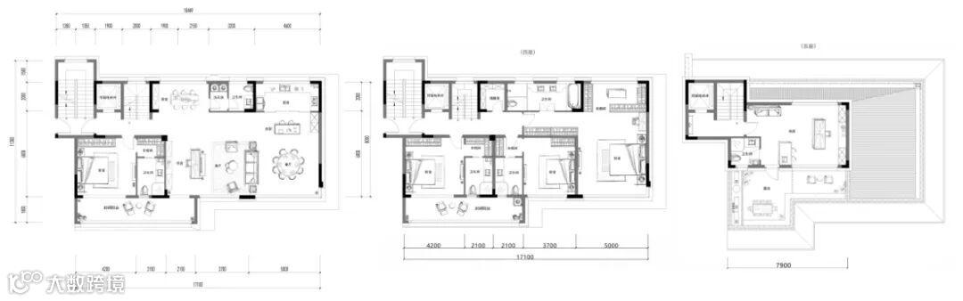
珊瑚世纪5层叠墅结构示意图
上叠也带有凌空大花园和地下室,且每户配有独立电梯,可从车库直达大多数楼层。

珊瑚世纪5层叠墅效果示意图
再比如成都华润置地玺宸上院,也是将上叠动静区倒置。

成都华润置地玺宸上院效果示意图
嘉兴鸿翔传承樾府,建面约226㎡-400㎡,户户三开间朝南,更做到了全套房,全明卫设计。通过错落退台的设计,让上叠也能拥有1-2个两层通高的户外凌空花园。

传承樾府效果图
重点是传承樾府还配上了独门独户的私家直达电梯,以七层叠墅为例,下叠电梯可在地下一层、一层、二层、三层停驻;中叠电梯可在地下一层、四层、五层停驻;上叠可在六层、七层停驻。
也就是说,一栋垂直的单元里,三户人家,配置了三部电梯!实现专梯入户,尊贵私密,互不干扰。

电梯示意图(仅供参考,一切以实际交付为准)图源:禾枫说楼
更难得的是,部分楼栋的下叠户内三层,还可做到全玻璃景观观光电梯!

传承樾府效果图

传承樾府效果图
下叠建面400㎡,双入户动线:地下电梯直达+花园入户。一层有近12米巨幕面宽,客餐大横厅约42㎡,加上局部做约6.35米挑空,空间非常舒适;二层双套房+独立储藏室,更有家庭交流空间,带L型环抱式跑道景观阳台;三层南向约57㎡套房,双开门入户+双衣帽间+双台盆+双沐浴系统,带近22㎡L型转角阳台。

下叠户型图
中叠建面约316㎡,占据4-5层。专梯入户,带独立玄关。一层大方厅设计,空间超60㎡,能够充分满足各种宴饮会客需要。U型环抱式景观阳台,在这里可肆意感受鲜氧扑鼻,微风撩拨。二层三套房设计,实现家庭平权空间。还带家庭CLUB,临睡前的家人交互空间。上下两层共约25米面宽,皆带270°全面屏转角阳台,层层皆是明朗大境。

中叠户型图
上叠建面约324㎡,占据6-7层。同样的专梯入户,带独立玄关。同样的巨幕面宽+社交方厅+270°观景台+垂直花园+整层套房。上叠的层高更加出色,每层足足约3.6米。

上叠户型图
所有的2层,都做的是“无梁柱”设计,整层空间可自由设计。



传承樾府效果图
叠墅尺度堪比大平层
重庆龙湖天曜昱府建面约327㎡下叠户型,约10.8米三开间设计,进深约10.6米,1:1的比例,等同于大平层的面宽。端户一层花园约160㎡,非端户的下叠前后双庭院,平均面积也能有约60㎡。
客餐厅约7.2米×约6.9米,面积超过50㎡的方厅,加上约23㎡的中西厨和玄关,公区共70多㎡,大概是建面200㎡户型才有的。

建面约327㎡下叠户型图

天曜昱府样板间实拍图

天曜昱府样板间实拍图

天曜昱府样板间实拍图

天曜昱府下叠样板间花园实景
二层一整层的卧室套房设计,尤其主卧双衣帽间、双台盆、五件套的卫生间像极了酒店的行政套。



天曜昱府 主卧套房实拍图
再来看下叠的地下空间,单层面积达到约122㎡,层高约5.2米。

天曜昱府 下叠地下空间实拍图
而上叠的面宽和进深比也是非常阔绰的,再加上层层退台的设计,整个空间变得更有趣、更独立。大面宽+方厅,再搭配上约3.2-3.3m的层高,而且还有一整层留给主卧,含露台面积可能超过50㎡。

上叠建面170平米户型图

天曜昱府上叠 样板间实景图
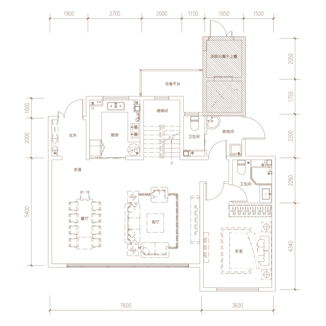
我们先来看一套鸿翔阳光城·君望府建面约290㎡的下叠户型。
南北双入户,室内预留电梯井,直达-1、-2层。一二层南向面宽阔达约17.1米,所有重要的功能空间,一字朝南排开。赠送-1层地下室,自带南北采光井。可以分割成影音室、茶室、健身房、台球区、储藏室等,体验感直追大独栋。

建面约290㎡下叠户型图
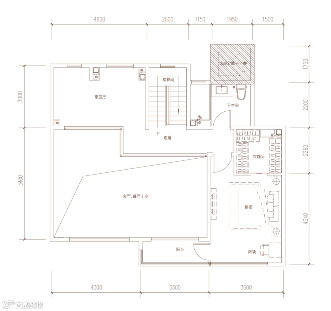
再来看建面约356㎡的上叠。采用另一部电梯,实现专享入户,与下叠完全无关。另外在一楼还附加一个北花园,可实现双动线入户。三四层总面宽约17.1米,各带一个约8.4米宽的阳台。顶层是一层一室格局,环屏景观式大书房,外接专属顶楼露台。

建面约356㎡上叠户型图


意向图
天津阿朵云岛观澜庭,充分体现叠拼产品“多开间、大面宽”的特点,扩展南向采光及湖面视野。户型设计功能区分明确,扩大视野范围及活动空间,优化家庭日常生活方式。
以建面约180㎡下叠为例,约6米宽、约2.6米高的超大落地窗,约6.5米挑高空间,为生活方式带来无限可能,整体外立面窗墙比例优越。

建面约180㎡下叠 首层户型图

建面约180㎡下叠 二层户型图

180叠拼装修体验馆实拍图

180叠拼装修体验馆实拍图


观澜庭 效果示意图
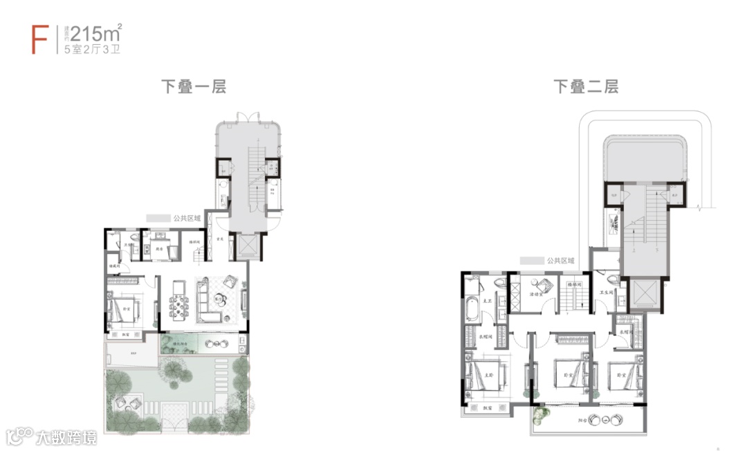
嘉兴万科·光年里叠墅面积约230㎡下叠,带有“超尺花园”;上叠5房2厅3卫,总共三层,下层和中层都是三开间朝南,相当于有六开间朝南。

建筑面积约230㎡上叠户型图
上叠一层客餐厅面宽约6.9米,连接同宽的阳台。朝南卧室正好可以让老人住,一方面保持舒心的距离,另一方面不用爬楼,进出更方便。
上叠二层排布了3+1个房间。主卧的套房带独立卫生间,舒适性很强,还预留了打造衣帽间的空间,主人的隐私感也得到了提升。朝南的次卧也带有独立的衣帽间,家里再多衣物,也有足够的空间可以收纳。
上叠顶层约60多㎡的大露台,甚至比许多排屋院子还要大。
我们再来看看下叠户型,建面约215㎡,5房2厅3卫。一层二层的空间格局与上叠基本一致。

建筑面积约215㎡下叠户型图
最令人向往的是约59㎡的墅居庭院,在家里可以享受花园度假风情。
杭州和悦清晖园的样板房,视觉震撼:每一套都是看齐大平层的尺寸。
譬如建面约190㎡的四房三卫,两层总面宽就达到了约15.8米。一层是餐客一体的公区,面积近40㎡;朝南的卧室,作为老人房最合适。二楼还有三个房间,主卧套贯通南北,南向面宽约4.7米,主卫浴缸与双台盆兼备。


户型图
还有尺度更豪的建面约240㎡户型,单层就达到了约11米面宽,下叠边套约240㎡,客餐厅是一个约7.8米×6.3米的转角厅。下叠的私家庭院主力面积约60-130㎡,上叠的屋顶露台约70-90㎡。还有挑高约5.6米的地下室。


户型图



和悦清晖园建面约240㎡样板房实景图

和悦清晖园实景图
杭州华夏·溪揽星院建面约187㎡的上叠户型,南向整体面宽约9.3米,客厅面宽约6米,由于该户型全部是边套,所以客厅L型双面采光,270°观景!旁边的朝南房间,可以规划为客卧、书房或是私宴厅。

溪揽星院建面约187㎡上叠装修示意图
客厅北侧,衔接的是面宽约6米的餐厅,餐客厅约7.1米的进深,足够配一方西厨岛台或是吧台,许多300㎡大平层公区的尺度,也不过如此。
上叠二层除了三间卧室,还有南北两个露台,主卧更是脑洞大开,也留足了约6米的开间;上叠三层70多㎡的环幕式露台。


溪揽星院效果图(过程稿,不作为交付标准)

溪揽星院效果图(过程稿,不作为交付标准)

溪揽星院效果图(过程稿,不作为交付标准)
杭州信达之江壹品,难得的“无高低配”纯叠墅区,而且之江壹品全部是“上下叠”设置,没有中叠。之江壹品以天然石材和铝板为外立面主材,同时窗墙比还达到60%。
之江壹品园区鸟瞰效果图
之江壹品叠墅实景图
之江壹品叠墅实景图
每户下叠均带南向庭院和地下室,正是传统之江生活方式的馈赠。无论在地下辟出一个带水吧酒柜的派对空间,还是春日花园里的一次户外晚餐,都拓展了我们对“家”的定义。
比如下叠主力户型约180㎡四房三卫,一楼客餐厅开间约7.2米,相连的次卧开间约3.6米,加上约3.2米层高,大宅气质自显。二楼主卧开间约4.2米,连通书房与主卧的阳台长约7.2米,大气通透。

下叠建筑面积约180㎡户型图
之江壹品下叠样板房实景图
上叠主力户型约188-195㎡,占据建筑的三、四、五层,居住空间更立体而富于趣味。以上叠约188㎡四房四卫为例,三楼做出约4.5米宽的大转角厅,四楼主卧也是约4.5宽的奢阔尺度。五楼独立书房,还连接着卫浴间和大露台。

上叠建筑面积约188㎡户型图
之江壹品上叠样板房实景图
外立面设计要有辨识度
杭州和悦清晖园的建筑设计由绿城六和主笔,总共24幢四层小楼,线条极简的立面,以灰金色镜面玻璃主打,斜切45度角的玫瑰金边框勾勒,潮流感和辨识度俱在。


和悦清晖园实景图
成都城投绿城·凤起蘭庭,立面设计:现代简约Trees Villa风格。
建筑整体以铝板线条强调横向水平延伸,大面积玻璃幕墙凸显建筑现代感,叠加深色铝板栅格、砂岩质感真石漆、暖色水包涂料、屋顶廊架修饰立面,建筑立面简洁大方,宛如水晶盒子,延续绿城经典三段式立面。


成都城投绿城·凤起蘭庭实景图
德信大家·运河云庄,以现代工艺、东方美学为原则,建筑的造型设计,汲取杭州南宋文化为文脉,以生态化、休闲性、文化性为主题,融合现代简约的气质打造,婉约中透出俊逸,娴雅而大气纯净。
德信大家·运河云庄实景图
莫干山语,以意象笔触呈现当代山居禅意之境,向世界表达中国脉络上的东方美学。立面双坡取屋面设计,考虑对山水自然格局的回应并形成相互衬托的关系,屋顶的结构造型和双坡曲屋面的设计取意《富春山居图》的文化意象。

莫干山语实景图
建筑师模拟富春江水两岸的山形,屋顶轮廓与山形融汇相映,屋顶曲线如群山叠嶂,形态起伏如山峦层叠,屋脊与檐口线条勾勒出舒缓磅礴的天际轮廓。

坡屋面采用金属屋面,并在古典建筑对称性构图的基础上增加现代建筑非对称的均衡感与动态性特征,从各个角度看,屋檐都是一条纤细优雅的弧线,随着视角的变化,形成不同的建筑形态。
莫干山语实景图
无锡山水江南,建筑造型意承传统,而细节表达上去繁就简、取其神意,将传统精神与现代性充分的融合在一起。
建筑形体对称布局、线条舒展,由檐部、中段和基座组成,具有典型的三段式特征。
檐部结合复式的顶层退台形成重檐形制,保留了双重屋顶的比例和出檐深广的韵味;而手法表现上化翘为平,纯化为简洁的三角形金属线条。

无锡山水江南效果图
建筑中段借鉴传统楼阁式塔的多层檐口意向,结合L型叠墅错动的长阳台,在“塔身”上形成灵动的韵律。
基座的入户空间同样采用了重檐形式,比例上更加扁长,同时借助景观矮垣、灌木,拉长水平向的延伸感。

建筑色彩延续山水系产品的淡雅,以灰白为主色调,间以少许木色来调剂冷色调;同时独创性的使用了亮银色来诠释江南的素净与现代的轻盈,追本溯源,并不是简单拼贴和一成不变。

无锡山水江南实景图
杭州云檐里外立面主材是石材+铝板,门窗是三玻两腔LOW-E玻璃,预留私家电梯入户,花园面积也普遍在60㎡以上……
阳光灿烂的时节,首排建筑南立面呈现为大片高级灰石材和香槟金铝板的矩阵,搭配横向大面积玻璃栏板,泛出温润又极富质感的光泽。

云檐里实景图
可别小看“石材+铝板”CP,杭州近期的叠墅盘里,我只见过另一个项目立面用了石材,当然总价也在千万以上。
若再定睛细看,你会发现云檐里连南阳台的内墙,都一丝不苟全用石材和铝板,顶部饰以木纹铝板,阳台移门也用的是三玻两腔LOW-E玻璃……


云檐里样板房实景图
结语
叠墅的创新设计需要设计师从空间规划、结构设计、环境适应性、技术创新、外观设计等多个方面进行思考和探索,以实现更为出色和令人惊叹的建筑效果。
本资料声明:
1.本文为建筑设计技术分析,仅供欣赏学习。
2.本资料为要约邀请,不视为要约,所有政府、政策信息均来源于官方披露信息,具体以实物、政府主管部门批准文件及买卖双方签订的商品房买卖合同约定为准。如有变化恕不另行通知。
3.因编辑需要,文字和图片无必然联系,仅供读者参考;
微信公众号“搜建筑”(ID:sjz9999)
合作、宣传、投稿
联系微信:soujianzhu006


