▲ 更多精品,关注“搜建筑”
产品不断向新,能为生活带来怎样的新体验?万科通过洞察新一代消费人群的内在需求,用一种更符合当代人群生活需求的产品理念,为都市人群找回生活的本真,在新的空间里拥有更多的生活可能性。
上期我们给大家分享了
万科创新户型:140㎡面积段
160㎡面积段户型:布局+趋势
今天我们来看看万科的180㎡面积段大平层户型都有什么亮点。
1
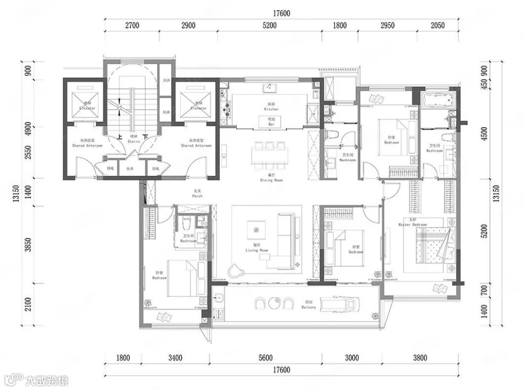
南通万科溯源,建筑面积约180㎡的摩登东方系列产品,四室两厅三卫,该户型全明设计,南向开间足有15.8米宽,四开间朝南的设计,更是让整个户型都拥有较好的通风与采光。
LDKG一体化设计,将客厅、餐厅、厨房、多功能区空间进行集聚化布局,同时与阳台联通,扩大家庭居住空间的视野范围和活动空间,优化家庭的日常生活方式,营造出一个全家人使用频率更高的家庭核心区。

约8.6米南向双联阳台,横跨客厅与卧室,为家庭的各个空间预设了欣赏风景的不同场景。
户型采用南向主客卧均套房的设计,充分保证居住者私密生活空间的前提下,更保证生活的便捷性与舒适度。

南通万科溯源示意效果图
2
常州万科·新都会|青藤郡,建筑面积约189㎡央境宽邸,多功能巨幕宽厅,四南向开间,三南卧双套房。
双厅与厨房动线相接,厨房拥有约5.6米操作台,可以为居者规划更科学的烹饪动线。
西厨岛台亲厅设计(岛台为非交标),烘焙机、烤箱、咖啡机都可以安排在这里,餐厅绰绰有余的8人桌,友邻聚会更轻松。
总长约9.1米,堪称“跑道式”的大阳台,横跨客厅与南卧双开间,震撼感十足。
3
兰州万科城·山望,建面约185㎡户型,可以看出产品定位非常纯粹和明确,就是为了兰州乃至全国的高阶人群而打造,充分从居住角度考量了功能性、舒适性、空间感、仪式感,满足了这些人对生活场景的需求。

约185㎡户型平面图
约60㎡、约7m面宽的巨厅,大大扩展了公区空间,客厅、书房、餐厅、岛台、厨房位于同一平面上,空间感更强、动线更合理,将整个空间的单向层次关系转化为多层次关系,其实核心诉求就是未来整个公共空间可以成为一个家庭完整的情感交流的场所。

效果图
约7m的多功能厅让娱乐、待客、学习、办公、休息等居住需求不再受空间限制,为更多生活场景确定基础。
面宽约7m、进深约1.8m的阔景阳台与客餐厅相连,可作为公区的延伸空间,这样一来,整个空间显得更为宽敞明亮,窗外景色更是一览无余。
独立生活阳台的设计,洗衣、家政可以都在这里进行,满足日常生活需要的便利性,也很好的满足了孩子对于房间开阔以及舒适性的居住需求。
主卧很明显的设计趋势就是全功能化,夫妻两人关上门可以喝茶谈心,重温二人世界。

效果图
约5.8m×5.7m的主卧包含独立玄关、独立衣帽间+化妆间、独立卫浴间、具功能性的超大飘窗等等配置,构成全套房设计,充足的空间为卧室承载更多生活场景提供了可能性,且尺度感超强,让居住品质得到真正的提升。

效果图
该户型独立电梯间、独立玄关、储藏间的设计,可以提升居住私密性,更具有仪式感和尊崇感,并能够拥有足够的收纳存储空间,居住的实用感与品位感皆可满足。

平面图
4
烟台万科翡翠长安,整个户型采用经典十字轴线格局,四居室沿轴线独立分布,家庭成员团圆相聚时共享温馨美好,各自独处时,随心专享私属空间。
约16.5米南向阔绰面宽,南向五面宽,MAX级寰幕风光视界,更大化将优美河景与自然静谧引入进日常中。

万科翡翠长安[GREAT185] 样板间效果图
约3.15米层高,打造更加郎阔通透的空间,使得采光更加丰沛,通风对流更高效。
约9.2米的南向景观阳台,与客厅贯通,开放的宽敞空间,赋予生活更多想象。

万科翡翠长安[GREAT185] 样板间效果图图

万科翡翠长安[GREAT185] 样板间效果图
三卧朝南,约30行政级主卧私属奢阔空间,尺度非凡,超大观景卫浴,通透空间更明朗;步入式衣帽间,生活尊享便捷优雅。

5
宁波万科·朗拾建筑面积约188㎡户型,南向双联阳台横跨客厅和书房,在设计中融入南向揽景视野,呈现更多光景写意。
户型的最大一个亮点是主卧创新的做了270度的景观飘窗,尺度相当震撼,极大愉悦了主人的居住体验。

6
金华万科·锦里江澜建筑面积约185㎡户型,四房两室三卫,有三个房间处在同一区域,房间南北通透,LDK一体化设计尊享格局。

5.4米客厅开间,宽大的客厅更适合三孩的玩闹。主卧带浴缸、衣帽间、双台盆,“豪”的标配。而且装修设计也挺贴心,注重贮藏空间,三孩的玩具和家用占比大,庞大的储藏功能避免家庭过于杂乱。


概念展厅样板房实景图

概念展厅样板房实景图
7
长沙万科森林公园建筑面积约180㎡户型,整体动静分区,超大三卧室朝南且全带飘窗,整体双阳台4飘窗设计。
超大入户玄关,功能分区和动线规划合理,独立私密尊崇礼遇;270°环幕客厅,中西双厨设计。

8
扬州万科都会滨江建筑面积约180㎡户型,四室两厅两卫,270°环幕瞰江,超高窗墙比,一线瞰江视野;超阔餐客一体边厅设计,中西双厨,三面采光,享受更丰富江景;奢阔套房步入式衣帽间,双人洗漱台,预留化妆空间;多功能房环幕飘窗,可做瑜伽运动室、茶室、书房。

9
成都轨道城市万科美的·高线公园,建筑面积约188㎡户型,四室两厅三卫。
LDK+R厅布局让整个居住空间体验感及视野范围更大更开阔。约7.8米横厅,层次感强,尺度合适,没有浪费空间。
另外,该户型最大的亮点莫过于约45㎡的超豪华主卧,在世面上非常少见。缺点是没有生活阳台。

10
成都万科·天府锦绣,建筑面积约188㎡户型,四室两厅两卫,约17米南向大面宽,五开间朝南;南北通透,三面采光,三卧室朝南,居住舒适度高;独立入户玄关,仪式感和功能性强;约7.45米超大横厅满足多元化生活想象,匹配同宽南向景观阳台,扩大采光、观景性;北向约4米宽超大厨房,操作空间更阔绰,匹配北向生活阳台,实用更方便。

结语:
用品质生活革新崭新时代,万科在户型创新上的超强产品力,正通过不断的优化设计,呈现生活方式的全新改变。
本资料声明:
1.本文为建筑设计技术分析,仅供欣赏学习。
2.本资料为要约邀请,不视为要约,所有政府、政策信息均来源于官方披露信息,具体以实物、政府主管部门批准文件及买卖双方签订的商品房买卖合同约定为准。如有变化恕不另行通知。
3.因编辑需要,文字和图片无必然联系,仅供读者参考;
微信公众号“搜建筑”(ID:sjz9999)
合作、宣传、投稿
联系微信:soujianzhu006



