▲ 更多精品,关注“搜建筑”
方案分享 | 国际竞赛第一名
海南三亚【海棠花语】驿站
林同棪国际
项目全称:海南环岛旅游公路驿站设计国际竞赛-海棠花语驿站设计
项目地址:海南省三亚市
规划范围:约110.1亩,总建筑面积约81000㎡
设计内容:概念规划及建筑方案设计
项目阶段:方案国际竞赛征集第一名
设计单位:林同棪国际工程咨询(中国)有限公司
设计背景
Design Background
海南环岛旅游公路及驿站项目是海南自贸港先导性重大基础设施项目,定位于打造1000KM长的“国家海岸一号风景道”, 也是海南打造国际旅游消费中心的标志性工程。1000公里环岛旅游公路沿途规划建设40座因地制宜的综合驿站。
2023年,位于海南三亚“海棠花语”、文昌“木兰波光”、儋州“银滩泛歌”三处海南环岛旅游公路重点驿站面向全球公开征集设计方案,林同棪国际赢得了最具旅游度假和消费属性的三亚“海棠花语”驿站方案竞赛第一名。
▲ 环岛旅游公路驿站总体规划
虽然统称驿站,得益于三亚得天独厚的旅游资源,海棠花语驿站的规划用地近100亩,建设规模约8万平方米,是一个不折不扣的旅游度假服务中心和消费集合体。在这样的背景下,设计结合场地,从策划、规划、建筑、景观、基础设施等多个维度对项目进行了深入思考和研究,给出最具在地性的解答。
设计理念
Design Concept
源点:原乡记忆 自然肌理
用地位于三亚亚龙湾与海棠湾交界处的内海湾铁炉港边,紧临环岛旅游公路。铁炉港作为内海,区别于我们对三亚大海及沙滩的固有认知和想象,这里山海连绵相依,成片的稻田、湿地和鱼塘塑造了独特的大地肌理,牛群奔跑、海鸟振翅,场地传递出独特的原生态美感和原乡印记。
▲ 场地现状及自然肌理
这种原乡记忆和自然肌理带给我们最初的感动,是成片的稻田、是唱晚的渔歌、是海塘所留下的大地肌理和原乡记忆,也让我们发现三亚除沙滩外的另一种可能。设计提炼特色的海塘肌理,转译到建筑屋顶形态中,结合功能模块,以院落、中庭的形式进行空间组织,保留生态,融入场地,将这份原乡记忆留存于场地,还给了场地。
▲ 由海塘和稻田自然肌理转译的院落体系
在三亚的现场调研,也让我们深刻感受到当地特殊的热带气候对环境舒适度的要求,骑楼下的凉爽和日晒下的暴汗形成强烈对比,良好的通风对空间体感的舒适度至关重要。因此在设计中我们一以贯之的最重要理念是:引导风、柔和光、亲近水、留住绿,让大自然来设计。
▲ 让大自然来设计
设计通过多种方案的风环境模拟对比,结合功能布局,选择总图的最佳布局,大量底层架空引导视线和通风廊道,直达海岸;庭院的布局和尺度也遵循风力场的漩涡效应,以达到最佳通风效果。结合日照分析,在光照最强的地方,设置架空连廊、高大乔木等,降低强日照影响。
▲ 风环境和光环境分析辅组设计
三亚的酒店缺少不了水元素,设计也希望通过大量水景去提升度假和休闲体验。面对三亚强烈的日照蒸腾,水的补给是运营中很大的成本,设计中我们非常重视水资源的可持续利用,通过游憩及景观用水分类管理,结合雨水回收、海绵渗透、海水地下过滤等水循环措施,满足旅游度假的亲水需求。
▲ 水生态循环措施
我们保留现有的海塘肌理,退出养殖功能,进行生态修复和湿地保护,并活化滨海湿地的生态价值,局部保留稻田、鱼塘景观,留住原乡记忆。让游客可以参与田野亲子、湿地科普、休闲观鸟等活动。
▲ 海塘湿地的生态修复及生态价值活化
链接:通山达海 链珠成串
总图布局链接山海,消融了城市与乡村、建筑与环境的边界,渗透入农田与湿地景观,通过庭院和廊道化整为零,消解尺度,让建筑与周围的山海、渔村、海塘、稻田融为一体。

▲ 设计总平面图
▲ 建筑与山海、渔村、海塘、稻田融为一体
▲ 山海交融 云雾晨曦,沉浸自然里
总体布局强化人车分流,并结合功能组团构建了名为夜光云庭的廊道系统,链接空间与环境,形成通风及视线引导,营造舒适的慢行体验。
▲ 夜光云庭——慢行廊道系统
设计基于大数据分析海棠湾及三亚全域旅游体验的核心客群,描摹出以高净值人群与年轻人为主的旅游消费客群画像。功能策划上,结合三亚得天独厚的旅游资源禀赋和旅游客群画像,营造特色消费场景,链接周边旅游资源,搭建2-3日旅游环线。
▲ 链接资源,搭建2-3日旅游环线
区别于传统的服务配套驿站,超大体量的海棠花语驿站,承载着汇聚人气、创造记忆点和目的地,激活消费意愿的使命。
基于目标客群画像和建筑的公共及消费属性,在功能策划中我们搭建了海语艺庭、海梦椰林、海棠水院、海街剧场、海月邀杯、海塘渔歌六大场景空间。
▲ 功能策划:创造目的地
场景:在地营建 空间效应
在空间设计中,我们并不希望通过视觉奇观去创造打卡即走的“网红基地”,我们更希望让空间的温度得以被感知,让一草一木的光影能被触动。开放的环境、舒适的体感、可以触摸得到的在地性,场所效应,成为空间营建的目标。
酒店大堂采用开放式设计,步入大堂、舒适的海风扑面而来;平和深远的挑檐遮挡日晒雨淋,当地的火山岩成为主要的建筑材料。
▲ 开放通透式的酒店大堂
建筑突起的屋顶和凹下的内院,源自海南独特的火山形象。更为重要的是通过起伏的屋面和庭院强化了拔风效应,在热带环境下,自然通风、被动式节能成为更深层次的地域性表达。
▲ 建筑概念:舒展起伏的海南火山口
▲ 建筑形态匹配在地性的气候环境
海语艺庭——游客服务中心是服务环岛旅游公路的先导建筑,建筑以平行舒缓的形态致敬宽阔无垠的海岸线。在建筑平和的外表下,是异常丰富的空间内核:游客大厅、椰林书吧、海棠美术馆,可观天听海的艺术云庭,成为环岛旅游公路上不得不去的目的地。
▲ 海语艺庭——游客服务中心
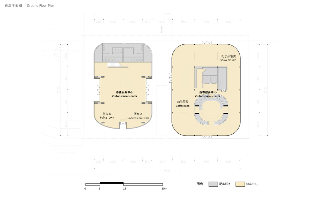
▲ 游客中心一、二层平面图
▲ 海语艺庭——游客服务中心剖面模型及室内空间
▲ 游客中心剖面图
游客中心通过底层架空廊道引导客流向滨海商业-海街剧场延伸。海梦椰林在光影斑驳中通往海边落日。融合300间滨海度假客房、20栋枕水康养聚落的海棠水院;集合国际特色美食、全球美酒收藏品鉴的海月邀杯,共同塑造根植于三亚海棠湾的康养度假及消费体验目的地。
▲ 海梦椰林
▲ 海棠水院
▲ 海街剧场
▲ 海月邀杯
▲ 海塘渔歌
过滤掉疲倦和嘈杂,我们希望游客能在北纬18°的海风中,乘一艘小舟湿地观鸟,品一处美食稻香庭院,观一场日出沉浸忘返,举一杯美酒共邀明月,枕一窗星河入梦海岸,共同感受海棠花语的无穷魅力!
▲ 湿地观鸟
▲ 稻香庭院
▲ 海湾日出
▲ 举杯邀月
▲ 星河入梦
项目阶段:方案国际竞赛征集第一名
设计单位:林同棪国际工程咨询(中国)有限公司
项目负责人:黄 聪Bill. CongHuang、蒲蔚然
主创设计师:张震、林南置
建筑设计: 陈启光、滕祥成、杜萌、张屹翔、Rashwan Khalil、 陈阳燕妮、罗蕲、邱佳玮、Meimei Isobel Williamson、王冉
景观及规划设计:罗方青、聂权、陈泽、何洪梅、王玥媛、陆圣中
主办单位:海南省人民政府
承办单位:海南省自然资源和规划厅
协办单位:上海山水土创意咨询有限公司、上海不假思所文化艺术有限公司
(排名不分先后,感谢每一位项目参与者的辛苦付出!)
本资料声明:
1.本文为建筑设计技术分析,仅供欣赏学习。
2.本资料为要约邀请,不视为要约,所有政府、政策信息均来源于官方披露信息,具体以实物、政府主管部门批准文件及买卖双方签订的商品房买卖合同约定为准。如有变化恕不另行通知。
3.因编辑需要,文字和图片无必然联系,仅供读者参考;
微信公众号“搜建筑”(ID:sjz9999)
合作、宣传、投稿
联系微信:soujianzhu006



