从位于中央商务区的选址来看,一座城市的最心脏地带通常意味着高度密集的片区开发,周边相嵌的绿地与交通系统为其勾勒出愈发清晰的边界。

△ 区位总平面
聚 | 植入广场的布局策略



△ 形态生成分析
叠 | 复合功能的竖向展开

△ 功能布局分析

联 | 提振活力的场所营造

地面花园意在通过连续性的街道界面放缓都市节奏。友好的步行尺度界定了地块内的特定领域感,户外座椅、公共雕塑等元素增强了公共空间的可停留性。
建筑回应给人们的不再是冰冷的表情,而是以开敞的姿态将使用者的工作、休闲与生活融为一体。


结 语
Z中心项目的地标性引自“∑”。这一符号指向主楼折板包裹的立面处理手法,以及体块切削对出入口的流向导引。
它应用于数学求和,或许也包含了某种隐喻:在开发当中兼顾建筑本体与城市活力,有效激发触媒效应,从而在均衡之上实现超越。

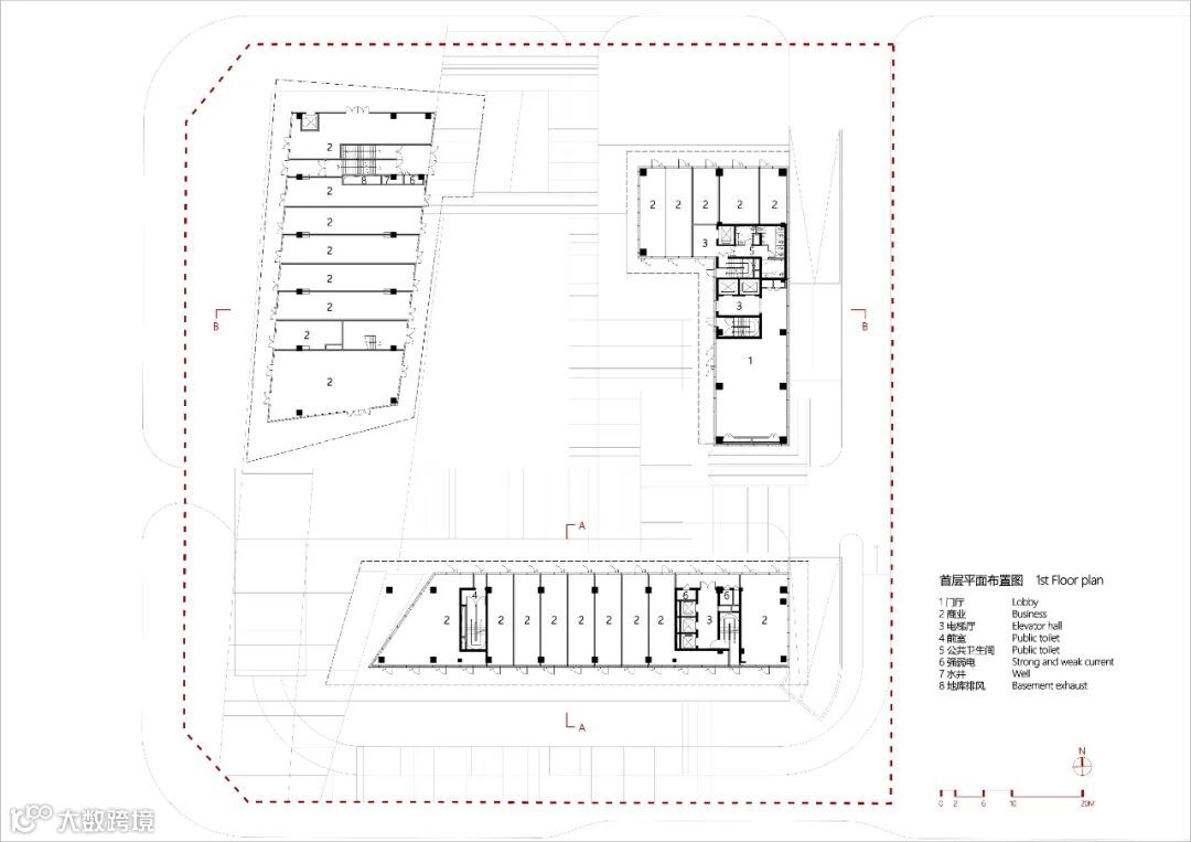
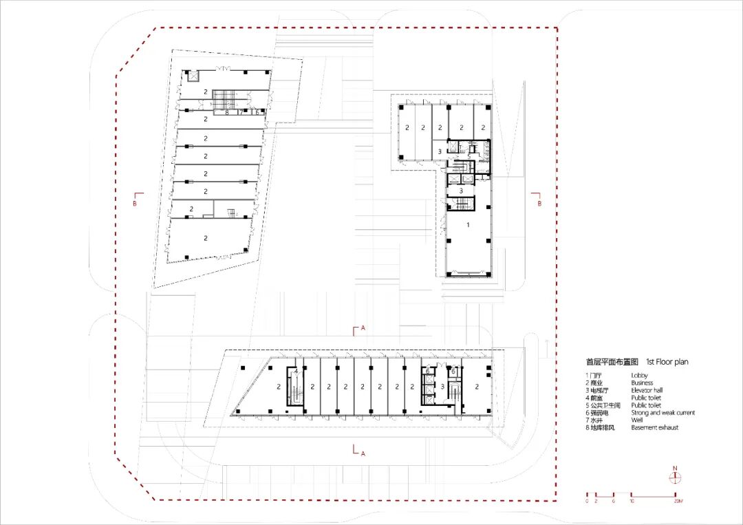
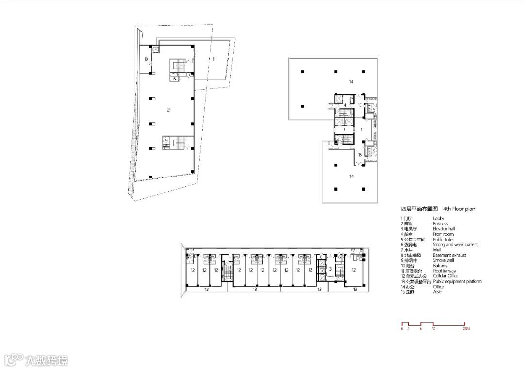
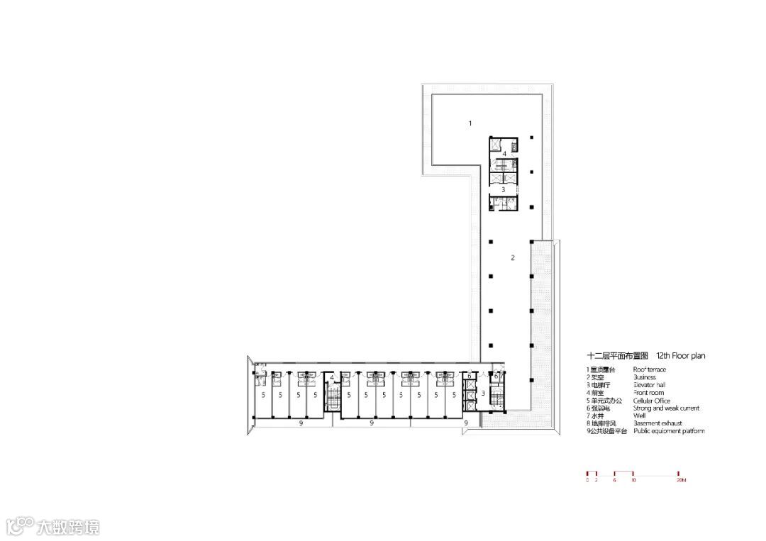
项目图纸
区位图



12层平面图



剖面图


项目信息:
项目名称:台州Z中心
项目地点:浙江省,台州市,椒江区
项目类型:商业办公
设计时间:2017年
建成时间:2020年
项目规模:48141㎡
设计单位:gad
项目总监:张微
项目主创:张微,宋一村
完整团队成员:
建筑:张凯俭,宋一村,康鹏飞,邵俊燕,祖丰楠
结构:宋仁乾
给排水:赵晓亮
暖通:姚国财
电气:陈国平
其他参与者
业主:浙江景隆置业有限公司
摄影:建筑译者•姚力
▼ 更多精品·点击关注
本资料声明:
1.本文为建筑设计技术分析,仅供欣赏学习。
2.本资料为要约邀请,不视为要约,所有政府、政策信息均来源于官方披露信息,具体以实物、政府主管部门批准文件及买卖双方签订的商品房买卖合同约定为准。如有变化恕不另行通知。
3.因编辑需要,文字和图片无必然联系,仅供读者参考;
微信公众号“搜建筑”(ID:sjz9999)
合作、宣传、投稿
联系微信:soujianzhu006


