▲ 更多精品,关注“搜建筑”
住宅社区入口是连接住宅与城市的过渡空间,是展示社区文化的窗口,因此,入口作为住宅的关键设计节点,设计师在进行居住区设计时,应加大对于大门入口的关注。
住宅社区入口的功能主要有交通与疏导、保护与阻隔、识别等。
尤其交通疏导是社区大门入口设计的一个重点,组织好人、车的交通流线,是住宅小区居民生活井然有序的必要条件。入口交通与疏导功能设计的流畅与否,会影响整个住宅小区的交通组织状况,并直接决定小区出入交通和城市街道交通是否相互通畅。

入口设计应根据住宅小区的规模、组织交通等实际情况,设置规模适宜、数量合理的住宅小区入口,并且遵循人流、车流的具体情况,合理分配各个功能分区的尺度和规模。
社区出入口做人车分流有什么好处?
① 方便行人出行
既保障了居民的出行安全,也能保护车辆不被划伤,增大居民的居住舒适度。
② 降低停车压力
③ 减少噪音
④ 增大社区公共区域
⑤ 城市街道交通更加顺畅
好的人、车的交通流线,不仅提升整个住宅小区的交通组织状况,对于城市街道交通是否相互通畅也起到了很大的作用。
延伸阅读文章:住宅项目设计:公区趋势+细节,对整个归家动线的详细解读。
现代住宅社区入口人车分流设计的几种常见形式有:

接下来搜建筑就这五大类型进行解析:
正面为人行通道
侧面为地下车库出入口
此种形式强调人行通道的品质感。当人行道路居中时,就为做一个漂亮的门头或者大气的岗亭创造了条件,配合上景观绿化和铺装,可以使小区入口体现出高档社区的风貌,且由于两侧的车行通道还可采用进出分离的设计,小区内部也更容易实现人车分流。
比如杭州大家金鼎府社区大门,中间为人行入口,两侧为车道入口,接驳城市主干道,给予归家人群便捷、富有仪式感的归家体验。

杭州大家金鼎府 人车分流分析
杭州大家金鼎府 主入口实景图 ©大家房产
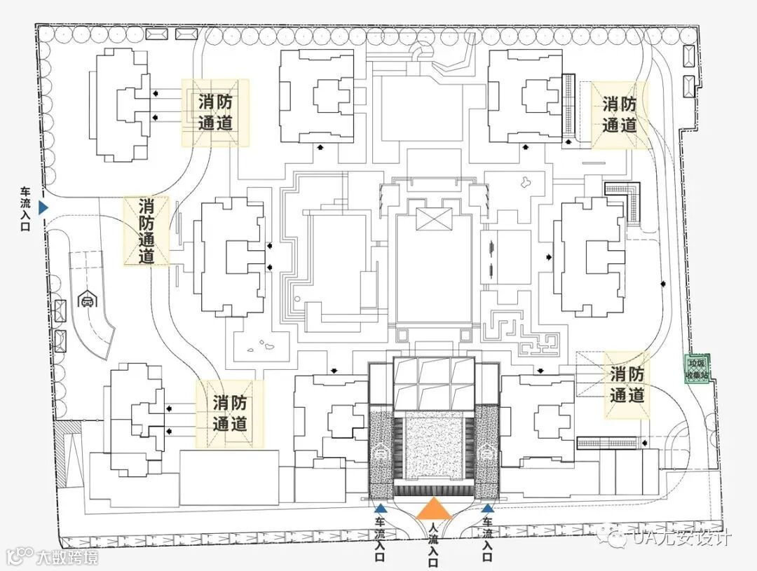
人车分流的巧妙运用、消防通道的“不干扰式”分布设置、垃圾收集站的“边缘化”呈现等,共同刻画出静享式花园空间。
比如常州旭辉·铂悦天宁的入口坐落在一片树林之下,业主乘车落客后直接步行进入社区内部,车辆便从两侧进入地下停车场,实现了人车分流。

常州旭辉·铂悦天宁 社区入口示意图
在人行进入时,先是路过大门一侧的水景,再到达更开阔的空间,不是单纯穿越一个门或一面墙来形成空间的转换,让回家这件小事变的更具有体验感和仪式感。

常州旭辉·铂悦天宁 入口实景图 摄影:小花摄影
上海保利·云上采用人车分流的形式,中间为人行流线,车行流线位于两侧,有效避免了上下班高峰期的拥堵,在拥挤时段也能充分保障了小区内居民安全。
上海保利·云上 人车分流示意图
保利台州·凤起云城社区主入口同样采用的是中间行人,两侧行车的布局方式。
保利台州·凤起云城 社区主入口效果图
泉州金茂阳光城檀悦社区主入口中间正面为人行入口,一侧为车行入口,呈现出一个气度非凡的大门形象。

泉州金茂阳光城檀悦 归家动线示意图

泉州金茂阳光城檀悦实景图 摄影:匠力摄影 陈勇
一侧为地下车库出入口
另一侧为人行和访客车辆通道
此种布局一般在人行和车行之间设置岗亭,保安可以兼顾两侧,功能及效率各方面的需求都能得到满足。
比如济南中海·九樾府入口府门方正挺拔,整合了地下车库出入口、人行出入口、商铺等多种功能需求。

济南中海·九樾府 社区出入口示意图

济南中海·九樾府实景图 摄影:麒文摄影
外侧人行道与内部园区存在9米的落差,整个动线清晰流畅,使进入场地的人们自然而然融入其中,体验到满满的归家仪式感。大门立面上采用统一的石材与金属装饰条和清透干净的玻璃幕墙,形象界面整齐统一。

摄影:麒文摄影
重庆龙湖·尘林间社区人车分流设计,地库入口彰显豪宅气场,人行归家动线十分静谧。
重庆龙湖·尘林间 社区入口实景图
整体园区大门相融奢侈品门店级理念设计,整体采用黑白根弧形大理石的墙体设计,360°的高级隐谧入口,尽显豪宅的距离感与神秘气质,真正体现品质归家之感。

重庆龙湖·尘林间人行入口实景图 摄影:河狸景观摄影
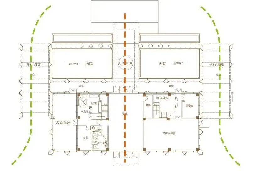
再比如天津景瑞誉璟天地社区设有4个地下车库入口,主入口的人行入口与车行入口是分离的,避免出现人车交叉动线,也方便业主步行前往北侧商街购物、去南侧幼儿园。

天津景瑞誉璟天地 车行动线平面规划图
车库主出入口朝东设计,左侧是常闭消防门,右侧是地库入口,中间是酒店式社区归家大堂。搜建筑

天津景瑞誉璟天地 主出入口功能规划图

天津景瑞誉璟天地 社区主出入口效果图
成都万科·公园传奇大门人行和车行入口由一个质感岗亭分隔,入口设计采用酒店式门头,以硬朗的金属质感,彰显轻奢品质。

成都万科·公园传奇实景图 摄影:刘聪
浙江龙湖葛洲坝·皓玉府社区入口近30米的超长展面,右侧地下车库入口,左侧为人行归家入口,内设酒店式接待大堂,同时辅以特色铺装、涌泉水景等,层层递进的空间层次彰显出现代中式深宅大院的东方神韵,满满的归家的礼序感与尊崇感。

浙江龙湖葛洲坝·皓玉府 摄影:Chill Shine丘文三映 龙湖集团浙江公司
厦门中骏·天宸社区入口人群和车辆彼此互不干扰,从根本上保障居住安全性。搜建筑
厦门中骏·天宸 主入口实景图
新疆中海·雲鼎南项目两个社区入口均为人车分流设计,营造尊崇礼仪之感,彰显业主身份。

新疆中海·雲鼎南 主入口实景图
新疆中海·雲鼎南 次入口实景图
人行入口与车行入口相隔较远
由于人行入口与车行入口相隔较远,这种设计有着非常好的人车分流效果,可能需要给车行入口单独设置一个岗亭或者保安进行管理,一般高端项目多会选择这种布局方式。
比如重庆龙湖金茂北岛项目的人行入口与车行入口就相隔较远,人流与车流动线完全分隔开,动静分开、互不干扰、各行其道。搜建筑

重庆龙湖金茂北岛 入口示意图

重庆龙湖金茂北岛 入口实景图
黄龙溪谷清峯岸采用人车分流,两个车行入口均与人行入口距离较远,打造酒店式归家体验。

黄龙溪谷清峯岸 入口示意图

黄龙溪谷清峯岸 摄影:PrismImage
杭州万科古翠隐秀项目人行主入口动线:谦逊隐贵、曲折婉转。对外,以内凹式入口广场作为序曲,围墙及出入口后退,形成舒适的落客空间,同时后退的姿态形成适当的距离感,隔绝外界的嘈杂。

杭州万科古翠隐秀 人行出入口实景图 摄影:吴志盛
车行口至地下大堂动线:温润细腻。车行动线在这里同样备受关照,车行主入口单独设置,形成独立的出入口及落客区,地下单独划定的人行区域、入户大堂前的前场空间,都是设计的细腻温润之处。搜建筑

杭州万科古翠隐秀 车行出入口实景图 图源:杭州万科
重庆龙湖·宸峯采用人车分流的双重动线——人行通过林荫大道、奢隐门庭、景观长廊塑造归家仪式感;车行通过地块东西两个街角的地库出入口入户,避免了车库出入口对内部环境的影响。
重庆龙湖·宸峯 社区出入口示意图
重庆龙湖·宸峯社区出入口实景图 摄影:PrismImage三棱镜
武侯金茂府一期出入口彻底实现“人车分流”,规划多个人行与车行出入口,确保园内人车独立安全通行。
武侯金茂府一期 车行出入口实景图

武侯金茂府一期 人行出入口实景图
中间为会所
车辆从侧面进入地下车库
主入口结合小区会所设置,充分利用了小区的景观资源,对于打造小区的高品质非常有利,营造出一种尊贵感,但增加了小区的运营成本,一般高端住宅会设计会所。
比如常州新城璞樾春秋,其会所不仅承载着休闲会客等功能,还是高端居住体验的象征,更是小区圈层的社交平台。

常州新城璞樾春秋实景图 ©水石设计 摄影:王恺
泉州南益·刺桐春晓做了文化泛会所,全面提高业主生活质感。

泉州南益·刺桐春晓 社区出入口实景图
中间为车行通道
两边为人行通道
这种形式是住宅小区很常规的入口形式,管理效率较高,分开设置进一步提高了效率。但这种形式难以做到彻底的人车分流,行人、非机动车与汽车之间会产生明显的相互干扰。搜建筑

余姚·荣安中南新悦府 平面示意图

余姚·荣安中南新悦府 社区出入口实景图
结语
住宅出入口区域人车分流,互不干扰流线清晰,才能让业主居住体验感更为舒适,溢价也能更高。
本资料声明:
1.本文为建筑设计技术分析,仅供欣赏学习。
2.本资料为要约邀请,不视为要约,所有政府、政策信息均来源于官方披露信息,具体以实物、政府主管部门批准文件及买卖双方签订的商品房买卖合同约定为准。如有变化恕不另行通知。
3.因编辑需要,文字和图片无必然联系,仅供读者参考;
微信公众号“搜建筑”(ID:sjz9999)
合作、宣传、投稿
联系微信:soujianzhu006












